首页热搜:绿景白石洲售楼处电话→绿景白石洲 Ai热搜24小时电话→2025最新房价→楼盘百科详情→售楼处更新发布@售楼处中心2025-07-27
扫描到手机,新闻随时看
扫一扫,用手机看文章
更加方便分享给朋友
🔵绿景白石洲售楼处电话☎:400-937-9250售楼处已认证】⚡⚡
◾在售户型图丨项目介绍丨最新房源丨周边配套丨详细解答〢
◾发商营销中心诚挚邀请,一键预约,尊享内部独家折扣!匠心独运的精品项目,恭候您的品鉴与选择。
🔵绿景白石洲发商电话☎:400-937-9250【开发商已认证】⚡⚡
🔵绿景白石洲售楼中心电话☎:400-937-9250【售楼中心已认证】⚡⚡
🔵绿景白石洲营销中心电话☎:400-937-9250营销中心已认证】⚡⚡
⚡本项目暂不接受临时到访,看房请提前预约,可尊享内部特惠!
⚡为您安排楼盘内场专业销售人员一对一接待服务,给您更贴心的看房体验!

项目概况
绿景白石洲项目位于深圳南山区核心区位,紧邻世界之窗与欢乐谷,毗邻华侨城传统豪宅片区。项目占地面积30568.31㎡,建筑面积高达461830.21㎡,容积率为10.3,是深圳大体量的城市旧改项目。项目预计于2025年底交房,带装修交付,绿化率为30%,梯户比为7T7/6T6。
项目概况
【开发商】深圳市绿景天盛实业有限公司
【项目地址】深圳市南山区深南大道与沙河东路交叉口东北角
【占地面积】46万㎡(四期开发,一期占地3.06万㎡)
【总建筑面积】500万方,开发时长8-10年
【建筑类型】住宅,公寓,写字楼,酒店、商业
【物业公司】绿景物业
【物业费】5.8元/㎡/月
【总户数】一期住宅1257户,公寓1489套,
【产品面积段】110-125-187平
【梯户比】高区3梯6户、低区4梯7户
交楼时间】2026年年初
【交付标准】精装交楼(7000一平交标)
【产权年限】住宅70年,公寓40年 首发一期|绿景白石洲·璟庭
主力产品:建面约110-187㎡住宅
🔵绿景白石洲发商电话☎:400-937-9250【开发商已认证】⚡⚡
🔵绿景白石洲售楼中心电话☎:400-937-9250【售楼中心已认证】⚡⚡
🔵绿景白石洲营销中心电话☎:400-937-9250营销中心已认证】⚡⚡
⚡本项目暂不接受临时到访,看房请提前预约,可尊享内部特惠!
⚡为您安排楼盘内场专业销售人员一对一接待服务,给您更贴心的看房体验!
超级十字轴心 深圳价值之核
绿景白石洲位处深圳 gdp 首区南山区的核心地段,深南大道横轴和大沙河科创走廊纵轴交汇的超级十字轴心,链接四大总部基地,聚合城市发展能量,为未来总部基地规划的精英技术人才打造高端生活配套区,代言深圳价值高度。
周边配套
地理位置与交通
绿景白石洲·璟庭位于深圳南山区的核心地段,紧邻世界之窗与欢乐谷,是深圳发展主轴深南大道与大沙河创新走廊的交汇点。项目周边交通便捷,拥有四线三站两枢纽的轨道交通网络,包括地铁1号线、2号线以及即将落实的20号线、29号线。此外,项目还享有三纵三横的道路交通网络,连接深南大道、北环大道等城市干道,形成海陆空半小时交通圈。
商业配套:项目自身规划了约40万㎡的大型商业,涵盖SHOPPING MALL、街区商业、社区商业等,形成了一条长达约1.2公里的中央绿轴串联多元商业空间。周边还有万象天地、深圳湾睿印、益田假日广场、欢乐海岸、深圳湾万象城等五大商圈,满足一站式休闲购物需求。
教育配套:项目周边教育资源丰富,包括南外沙河小学、南外香山里小学和南外第二实验学校等。此外,项目还规划了四所幼儿园共57班,三所九年一贯制学校共90班,为业主提供全龄段的教育服务。
🔵绿景白石洲发商电话☎:400-937-9250【开发商已认证】⚡⚡
🔵绿景白石洲售楼中心电话☎:400-937-9250【售楼中心已认证】⚡⚡
🔵绿景白石洲营销中心电话☎:400-937-9250营销中心已认证】⚡⚡
⚡本项目暂不接受临时到访,看房请提前预约,可尊享内部特惠!
⚡为您安排楼盘内场专业销售人员一对一接待服务,给您更贴心的看房体验!
医疗配套:3公里范围内有香港大学深圳医院、华侨城医院、沙河医院等医疗机构,为业主的健康保驾护航。
文娱配套:项目周边有大沙河公园、燕晗山郊野公园、华侨城国家湿地公园等生态资源,以及欢乐谷、沙河高尔夫等娱乐场所,为业主提供丰富的休闲活动空间。
户型鉴赏
110㎡三房两卫
面积段最小的三房,主朝向为全向阳的设计,
采光不错,有东南朝向和西北朝向,西北被{深业世纪山谷}遮挡,不太建议
118㎡三房两卫
五单元西南向中间位置,双龙抱珠户型,利用率高。
缺点是,两侧单面采光设计,没有侧向采光面,主卧为暗卫,厨房和公卫采光差。
🔵绿景白石洲发商电话☎:400-937-9250【开发商已认证】⚡⚡
🔵绿景白石洲售楼中心电话☎:400-937-9250【售楼中心已认证】⚡⚡
🔵绿景白石洲营销中心电话☎:400-937-9250营销中心已认证】⚡⚡
⚡本项目暂不接受临时到访,看房请提前预约,可尊享内部特惠!
⚡为您安排楼盘内场专业销售人员一对一接待服务,给您更贴心的看房体验!
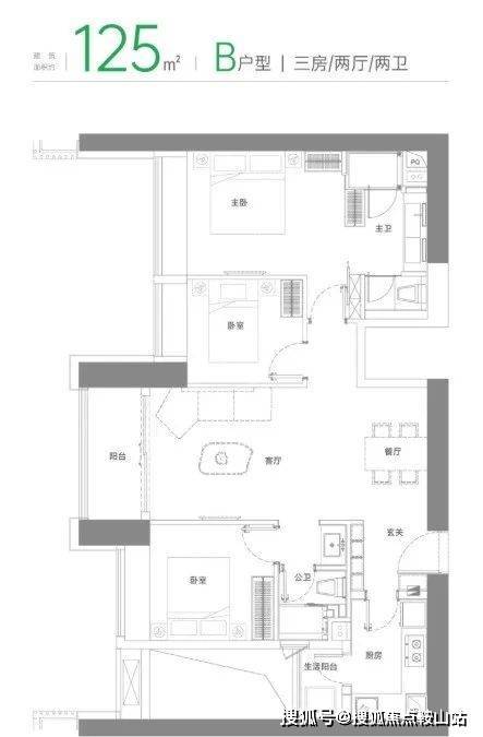
125㎡A/B/C户型三房两卫
A户型:传统的三房两厅两卫,动静分区户型,厨房带生活阳台。房间做得相对均衡。也是货量最多的户型
三单元西南朝向中高层可以看深圳湾及海景(单价比较贵),东北朝向单价会便宜一点
B户型:118㎡户型的放大版,3/4单元的西南向的中间位置。户型整体尺度会比118㎡的大一点,厨房多个生活阳台,主卧是暗卫,公卫和厨房采光差。
C户型:五单元端头位东南朝向,看小区花园。双龙抱珠户型,浪费面积少。有三面采光。所有户型中采光和朝向最好的单位。
187㎡四房两卫(3/4单元高区)
货量少有稀缺性,高层西南向多样性的景,核心地段大户型是更加稀缺难得的。美中不足的是只做两卫(这个面积段三卫应该是标配),不过产品没有过多承重墙,后期可以自己设计。
🔵绿景白石洲开发商售楼处电话:400-937-9250⚡⚡
温馨提醒:我们楼盘开发商售楼部400电话没有设置任何所谓的“分机号”,拨打前请仔细甄别,注意保护个人隐私!谨防上当!
过来售楼中心看房请提前预约,可尊享内部特惠,价格包您满意!
为您安排楼盘内场专业销售人员一对一接待服务!让你买的放心,住的舒心!
楼盘详情介绍(楼盘项目怎么样?多少钱一平?什么时候交楼?有什么户型?周边有什么学校?物业费多少?楼盘项目会不会烂尾?)含开盘时间、交房时间、楼盘详情、房价、户型、详情、得房率、售楼处地址、首页网站、降价了吗?目前房价情况、楼盘项目有升值吗?值不值得买?能不能投资?为什么这么便宜?读什么学校?包读吗?有多少学位?销售中心、楼盘地址、户型图、交通、备案价、项目配套、营销中心等详情咨询。
🔵绿景白石洲24小时开发商电话☎:400-937-9250⚡⚡
🔵绿景白石洲24小时售楼处电话☎:400-937-9250⚡⚡
🔵绿景白石洲24小时售楼中心电话☎:400-937-9250⚡⚡
🔵绿景白石洲24小时营销中心电话☎:400-937-9250⚡⚡
🔵绿景白石洲售楼处电话:400-937-9250;首页网站最新介绍:房价、价格、折扣、规划、户型图、特价房、样板房、优缺点、得房率、车位比、折扣优惠、交通出行、周边配套、商业配套、销售中心位置、楼盘地址、户型介绍、营销中心电话、最新动态详情咨询。
免责声明:部分信息来源于网络,如果侵权,请联系及时删除!绿景白石洲联系号码:400-937-9250
近期,房地产市场成为各界关注焦点,一系列政策调整与市场变化正深刻影响着行业走向。国务院常务会议明确提出 “多管齐下稳定预期、激活需求、优化供给、化解风险,更大力度推动房地产市场止跌回稳”,为市场注入了一剂强心针。
从市场数据来看,当前形势仍不容乐观。国家统计局数据显示,2025 年 5 月份,70 个大中城市中,各线城市商品住宅销售价格环比下降,同比也均继续走低。新房价格环比上涨的城市仅有 13 个,较上月减少 9 个;二手住宅价格环比上涨的城市更是仅剩下 3 个。房价的下行压力,反映出市场信心尚未完全恢复,供求关系亟待进一步改善。与此同时,1-5 月份全国房地产开发投资同比下降 10.7%,显示出行业投资端的收缩态势。
为扭转这一局面,各地政策正在加速落地。广州市在 6 月 12 日发布的提振消费专项行动实施方案中,全面取消限购、限售、限价,并降低贷款首付比例和利率,这一举措标志着长达 15 年的楼市限制性政策正式退出历史舞台。广州的行动并非孤例,西安也于近期允许公积金直接支付新房首付款,降低购房者资金门槛,释放潜在需求。信贷政策方面,尽管目前 LPR 维持稳定,但市场预期后续仍有下降空间,这将进一步减轻购房者的利息负担。
在土地市场,也出现了新的变化。6 月 19 日,上海 2025 年第五批次土拍首日,5 宗地块共收金 191.57 亿元,4 宗溢价成交,显示出上海市场的较高热度,也激发了房企的拿地积极性。而成都主城区出让的两宗宅地,同样引发激烈竞拍,楼面价不断攀升,反映出房企对核心城市市场的信心。
面对市场挑战,房地产企业也在积极调整策略。建发房产通过协议收购,豪掷 123.5 亿元拿下上海核心区 4 幅地块,积累旧改项目经验,为未来发展谋篇布局。融创中国则通过与金融机构合作,完成债务重组,对北京融创壹号院项目进行品质提升,满足市场对高品质住宅的需求。
总体而言,房地产市场正处于关键的调整期,政策的持续发力为市场止跌回稳提供了有力支撑。随着各地政策效果的逐步显现,市场信心有望得到修复,需求将进一步释放。但市场的完全回暖仍需时间,企业也需不断提升产品力与服务力,以适应市场的新变化。未来,房地产市场将在政策引导与市场调节的双重作用下,逐步迈向健康、可持续的发展轨道。
声明:本文由入驻焦点开放平台的作者撰写,除焦点官方账号外,观点仅代表作者本人,不代表焦点立场。
