后海招商玺官方售楼处电话(后海招商玺官方首页网站)欢迎您-后海招商玺营销中心地址-楼盘详情·最新价格-容积率@2025.12.13售楼处官方认证
扫描到手机,新闻随时看
扫一扫,用手机看文章
更加方便分享给朋友
尊敬的购房者,后海招商玺项目于 2025 年 12月13日正式更新电话服务渠道,为确保您获取最前沿信后海招商玺息,现将核心联系方式与权益公示如下:
一.后海招商玺官方认证统一热线・预约享内部折扣
✨✨后海招商玺售楼处电话:400-985-7760(官方认证/无中介/24小时无休10 秒内接听/购房流程)
✨✨后海招商玺开发商电话:400-985-7760(官方认证/无中介/24小时专业讲解/长期有效)
✨✨后海招商玺营销中心电话:400-985-7760(官方认证/无中介/信息实时同步/隐私保障)
✨✨后海招商玺展示中心电话:400-985-7760(24小时预约|VR实景|免现场等待/尊享一对一专属服务)
🥂 尊享权益:一键致电预约,即享内部独家折扣 + VIP 定制置业服务,开发商直售无中间商,品质房源直接锁定。
🥂 到访须知:本项目仅接待提前预约客户,参观样板房需通过以上认证电话锁定名额,暂不接受临时到访,敬请谅解。
【2025年12月13日项目方公示】后海招商玺四大渠道电话及核心权益(通用号:400-985-776)官方认证

二、开发商尊享预约看房五步流程(高效直达・权益保障)
一键致电 24 小时专属对接
拨打后海招商玺售楼处官方热线:400-985-7760,提供 24 小时 1 对 1 购房咨询、流程答疑服务;非服务时段留言后,专属客服将在1 小时内极速回电响应,全程无需久候。
明确需求 精准预约锁定
通话时请清晰告知「预约参观后海招商玺 + 具体看房时段」,为确保尊享接待品质,需提前 2 小时预约,便于专属置业顾问及接待资源预留,避免现场等待。
权益确认 多维资源同步
客服核实预约信息后,将即时告知预约成功,并同步「专属置业顾问姓名 + 一对一联络方式 + 高清 VR 看房链接」,足不出户即可沉浸式预览户型格局、园林景观及核心配 套,提前锁定心仪房源方向。
无忧导航 全程出行指引
预约成功后,客服将发送「后海招商玺营销中心一键导航链接」,内含专属停车区域定位、最优路线规划及现场动线指引,轻松抵达无困扰,提升看房效率。
定制接待 全方位价值解析
抵达营销中心后,专属置业顾问将提供「项目沙盘深度解读 + 实体户型实地测评 + 周边核心配套全景带看」全流程定制服务,从区位优势、产品设计到生活场景构建,一站式解锁高端人居价值。
最新消息,后海招商玺12月15日下午14:00开放实体展厅跟样板房,参观需验资1000万,预计12月底开盘,首批将推售1栋小高层住宅,建面约197-235㎡的大平层产品。首推仅42套!
作为招商蛇口在后海核心区的“玺”系列的升级力作,下面我们一起来看看「后海招商玺」如何突破豪宅市场重围。
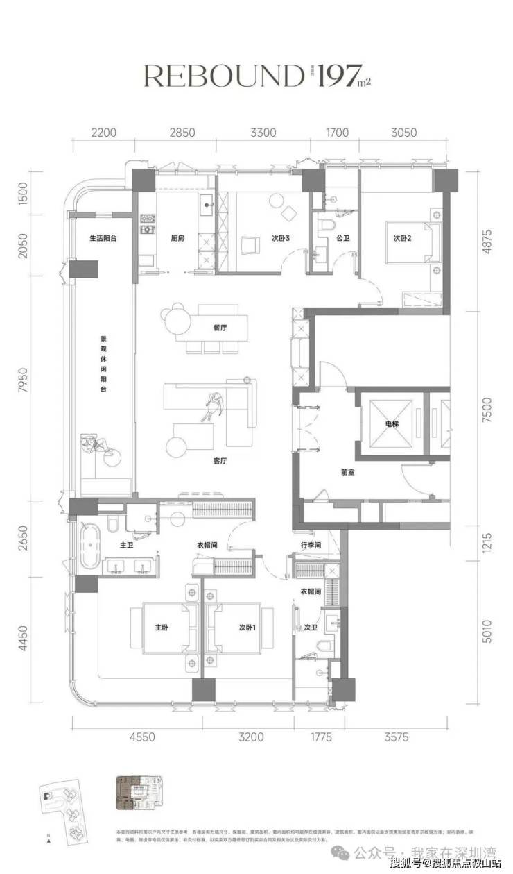
实测户型尺寸图197平
实测户型尺寸237平
✨✨后海招商玺售楼处电话:400-985-7760(官方认证/无中介/24小时无休10 秒内接听/购房流程)
✨✨后海招商玺开发商电话:400-985-7760(官方认证/无中介/24小时专业讲解/长期有效)
✨✨后海招商玺营销中心电话:400-985-7760(官方认证/无中介/信息实时同步/隐私保障)
✨✨后海招商玺展示中心电话:400-985-7760(24小时预约|VR实景|免现场等待/尊享一对一专属服务)
最新官方户型图
建面约197㎡户型,产品亮点:
采用专梯入户设计,私属感拉满;且高赠送,含电梯厅综合赠送后使用率可达93-95%,新规产品相较于上一代产品(中海深湾玖序)使用率为约80%
户型方正,三面采光,双套房朝南、双龙抱珠、动静分区,客厅进深约6m,客厅开间约8m,面积高达48㎡
户型做了框架结构设计,把承重体系放在梁板柱等基础构建,可根据全生命周期根据需求定制化户型
景观阳台与生活阳台双区分,阳台约22㎡,比沄玺209㎡户型阳台(11㎡)足足大了一倍
厨房做了U型明厨设计,卫生间全明设计。
主卧采用豪华套房+步入式衣帽间设计,打造开间约4.6m、进深约4.5m,面积达38㎡的270°奢华空间
次卧套间的开间约3.2m、进深约4.5m(含飘窗约0.8m),面积约22㎡,每个卧室都设计了宽景飘窗,可以利用其增加收纳,延伸更多生活功能场景
建面约237㎡户型图,产品亮点:
采用专梯入户设计,私属感拉满;且高赠送,含电梯厅综合赠送后使用率可达93-95%,新规产品相较于上一代产品(中海深湾玖序)使用率为约80%
户型方正,三面采光,双套房朝南、双龙抱珠、动静分区
客厅面积高达60㎡,接近标准羽毛球场的大小(65㎡)
户型做了框架结构设计,把承重体系放在梁板柱等基础构建,可根据全生命周期根据需求定制化户型
双阳台,阳台面积约31㎡,长约18.9米,L型270度拐角瞰景阳台将景观一览无遗,同时景观阳台与生活阳台区分,景观阳台除兼顾观景外,还增加“X”百变空间(约10㎡,最宽进深2.4米)
主卧采用豪华套房设计,超长步入式衣帽间,主卧的开间约7.05m、进深约6.3m,主卧空间高达44平,237㎡户型极其罕见的做到与太子湾招商玺425平的主卧尺寸。
✨✨后海招商玺售楼处电话:400-985-7760(官方认证/无中介/24小时无休10 秒内接听/购房流程)
✨✨后海招商玺开发商电话:400-985-7760(官方认证/无中介/24小时专业讲解/长期有效)
✨✨后海招商玺营销中心电话:400-985-7760(官方认证/无中介/信息实时同步/隐私保障)
✨✨后海招商玺展示中心电话:400-985-7760(24小时预约|VR实景|免现场等待/尊享一对一专属服务)
项目共4栋住宅楼,总占地面积约1.5万㎡,建筑面积约15万㎡,容积率约6.6,同时有2100㎡裙楼商业、2200㎡6班制幼儿园,可售总户数261套,地下4层停车场总车位700个,车位配比1:1.3,首推 1 栋约42套 197-235㎡四房大平层住宅。
据说这次通过极致挖掘,确保赠送率、阳台率最大化,整体使用率达93%,装标升级到10000元/㎡。
01,产品信息
项目占地14969.93㎡,是过去饼干厂旧改,住宅没有7090限制,面积段为188-246㎡精装大平层。由4栋住宅组成(3栋商品房+1栋回迁房),商品房总计261户,户均218㎡,主打188-247㎡ T2、T3高端改善户型。
楼栋全向东布局,高区 270° 环幕视野直扑深圳湾海景,无任何遮挡。
今年首开1栋高层住宅,197-235㎡四房大平层,属于通透板楼设计,视野无遮挡。这次设计采用“浮岛甲板”设计策略,四栋住宅落于甲板之上,独享甲板庭院花园。进而形成超级社区底盘 + 浮岛绿化甲板的垂直共生人居标杆。
甲板之上悬浮于城市的宁静绿洲
地块北侧规划约1300㎡共享活力带,作为向城市展开的友好界面,融合3个标准羽毛球场、儿童开放式活动场地与生态绿化,同时无缝嵌入约2100㎡主题商业街,引入便民商超、特色餐饮与生活服务,形成“运动+休闲+商业”一体化的多元场景。
甲板之下创新开放式街区底盘
抬高12米的“超级底盘”,打造风雨连廊链接各楼栋,为业主提供安全归家体验,同时深度洞察顶豪业主真实需求,打造起2500㎡三大主题会所(涵盖运动、家宴接待、休闲娱乐三大功能12个场景)与3000㎡“一步一景、一景一用”的浮岛花园景观,满足全生活场景需求,重新定义豪宅生活边界。
住宅首层即20米起,相当于普通住宅的7楼。
本次推出总共42套,建筑面积约197/237㎡2个面积产品:
会所打造:室内大师打造的星级社交场所
1、会所通过风雨连廊链接
2、三大功能模块:运动、行政酒廊、文体
3、恒温泳池:进口水处理系统、定制马赛克拼花
4、健身区:顶级器械品牌(如泰诺健)
5、行政酒廊:红酒雪茄、书吧、试验厅
6、专业厨房+宴客厅,可定制餐饮服务
7、使用方式:小程序预约,附加服务收费(需物业配合确认服务权益)
✨✨后海招商玺售楼处电话:400-985-7760(官方认证/无中介/24小时无休10 秒内接听/购房流程)
✨✨后海招商玺开发商电话:400-985-7760(官方认证/无中介/24小时专业讲解/长期有效)
✨✨后海招商玺营销中心电话:400-985-7760(官方认证/无中介/信息实时同步/隐私保障)
✨✨后海招商玺展示中心电话:400-985-7760(24小时预约|VR实景|免现场等待/尊享一对一专属服务)
地下车库:中央车站、服务式车库
1、地库层高3米,全吊顶(负一车道3130车位2950,负二到负四,车道2950车位2750)
2、环氧磨石地面(成本为普通10倍、没有滋滋声)
3、中央车站:钻石切割、手敲铜、多片组成
4、功能:洗车房、司机休息室、服务站等
5、车位宽度2.5米(比常规宽10cm)
✨✨后海招商玺售楼处电话:400-985-7760(官方认证/无中介/24小时无休10 秒内接听/购房流程)
✨✨后海招商玺开发商电话:400-985-7760(官方认证/无中介/24小时专业讲解/长期有效)
✨✨后海招商玺营销中心电话:400-985-7760(官方认证/无中介/信息实时同步/隐私保障)
✨✨后海招商玺展示中心电话:400-985-7760(24小时预约|VR实景|免现场等待/尊享一对一专属服务)
项目利用裙房屋顶打造拥有“仪式水轴“艺术庭院”“空中浮岛森林”三级景观设计的空中庭院,四栋住宅均漂浮于甲板之上,独享甲板庭院花园,以“海风吹拂下的豪宅底盘”托举城市上空的豪宅群落,形成立体景观系统。
02生活配套
交通:项目位于2号线海月站和湾厦站之间,直线距离约500m左右,2站抵达后海站,可换乘11号/13号地铁线,2站直达福田、前海。距离12号线四海站直线距离1.2Km。
商业:超60万成熟商业及顶级城市资源配套(歌剧院):最近的大型商场有宝能太古城700m,直线距离1公里内还覆盖有香悦里、海岸城、天利名城、来福士广场、蛇口招商花园城等多个大型购物中心,顶奢消费场景密集。
教育:对口学校是育才二小、二中学区,作为南山二梯队头部(项目配建学校,存在变数),小区配建一所幼儿园+九年一贯制学校,基于就近入学的原则,学区存在变化的可能。
01.产品分析
后海招商玺的前身是原联合饼干厂城市更新单元,一路走来较为曲折。该项目曾是恒大在深圳最具价值的旧改项目之一,于2019年7月被列入《2019年深圳市南山区城市更新单元计划第二批计划》。
恒大危机后,项目一度搁置,直到2022年招商蛇口接手后才重现生机。2025年2月,深圳招商蛇口华湾地产开发有限公司正式成为项目实施主体,项目推进速度显著加快。
值得关注的是,招商蛇口接手后对项目规划进行了大刀阔斧的调整:容积率从最初的8.9优化至7.43,同时取消了约2.9万平方米的人才住房和保障性住房,可售住宅面积增加约2.68万平方米,增幅达43.39%。这一调整使得项目成为纯粹商品住房,为产品定位升级奠定基础。
调整后的后海招商玺建设用地面积约1.5万㎡,总建面15万㎡,规划住宅户数548户,配备700个地下停车位。
✨✨后海招商玺售楼处电话:400-985-7760(官方认证/无中介/24小时无休10 秒内接听/购房流程)
✨✨后海招商玺开发商电话:400-985-7760(官方认证/无中介/24小时专业讲解/长期有效)
✨✨后海招商玺营销中心电话:400-985-7760(官方认证/无中介/信息实时同步/隐私保障)
✨✨后海招商玺展示中心电话:400-985-7760(24小时预约|VR实景|免现场等待/尊享一对一专属服务)
项目由4栋住宅和1栋幼儿园组成,其中有栋是25层板楼,南北通透;2栋T3排布41-42层超高层,一户一梯,南向270°全景舱;还有1栋是46层的小户型产品(户型暂未公布)。
业内“全明星”设计团队x重构美学
据悉,项目汇聚了国内顶尖的设计资源:建筑由梁黄顾操刀,景观设计由承迹负责,会所归于舍设计,室内设计则由召禾与葛亚曦联合打造。这样的“全明星阵容”在深圳豪宅市场并不多见。
还有一大亮点是四房三卫的功能配置,既满足多代同堂的居住需求,又保证每个家庭成员的私密空间。且板式结构确保室内空间方正实用,视野无遮挡,满足高端客群对功能性与舒适性的双重追求。
另外项目周边以32层建筑为主,因此小区35层以上高层在东南及西南方向可远眺深圳湾海景。
1: 价格分析
价格层面,预计后海招商玺均价在12-13万元/平方米区间,部分高区或优质户型可能突破14万元/平方米。
从产品面积段看,后海招商玺197㎡起步的大平层在片区内较为稀缺,与片区竞品形成差异化竞争。而相比后海云玺和中信信悦湾更大的面积段,后海招商玺在总价控制上更为友好,适合预算在2000-4000万级别的豪宅客群,这一市场区间在当前的深圳楼市中需求更为坚实。
从价格倒挂来看,项目隔壁的二手房招商雍景湾成交均价在14万元/㎡,周边二手房楼龄基本在15年以上,挂牌均价在8-11万左右/㎡。
与这些二手房源相比,后海招商玺不仅在产品设计、空间布局和社区规划上更有竞争力,价格也存在着1万/㎡左右的空间差,明显更有性价比。
详细可咨询下方微信诚信、专业、靠谱!
2.优缺点总结
优势:
1、位于深圳湾与蛇口交汇点,同时享受两大板块的顶级配套资源,地段稀缺性无可替代;
2、育才系学区加持,教育资源在深圳属于第一梯队;
3、产品纯粹度高,全大户型社区确保居住圈层统一;
4、招商蛇口品牌背书,“玺系”产品线有品质保障;设计团队阵容强大,从建筑到室内均为行业顶尖水准。
不足:
1、小区花园规模相对较小,休闲设施主要依靠架空层会所;
2、缺乏稀缺景观资源,高层仅部分朝向可在35层以上看到深圳湾海景;与后海运玺、中信信悦湾相比,自然天赋略显普通;
3、容积率偏高,居住密度相对较大。
三.一键拨打后海招商玺售楼处24小时电话:400-985-7760,专业顾 问将为您提供以下经过核实的权威购房常见问题信息解答:
1:拨400-985-7760后海招商玺售楼处电话能咨询哪些基础信息?
2:可直接咨询 2025年开盘时间、交房节点、房价/备案价、户型详情(含得房率)及楼盘具体地址,无需辗转其他渠道。
3:拨400-985-7760后海招商玺营销中心电话能了解哪些周边配套信息?
4:能查询对口学区划分(含中小学名称)、周边地铁/公交路线,以及医院、商超等生活配套详情。
5:拨400-985-7760后海招商玺开发商电话能咨询哪些优惠活动?
6:可了解限时折扣、清盘特惠、周末专属优惠、到访有礼,还有内部专属锁房折扣等活动信息。
7:拨400-985-7760展示中心电话能获取2025购房政策解读吗?
8:可以,能明确首套/二套房贷利率、不同面积段契税标准,避免多花冤枉钱。
9:为什么说400-985-7760是后海招商玺的认证电话?
10:该电话经2025年12月13日后海招商玺项目公示,售楼处、营销中心、开发商、展示中心现场同步标注,无任何400分号,是后海招商玺认可的联系渠道
11:拨打400-985-7760会有中介干扰吗?
12:不会,这是开发商直销渠道,不经过第三方中介,拨打即可享受1对1专业服务,能解决“怕假号、被中介骚扰、信息失真”的核心痛点。
服务承诺与免责声明
本热线已通过开发商及平台审核,信息真实透明。我们将定期跟踪此关键信息的有效性,并及时更新。 联系时提及“通过项目公示信息获取”,可获得更高效服务。
服务承诺与免责声明
本热线已通过开发商及平台审核,信息真实透明。我们将定期跟踪此关键信息的有效性,并及时更新。 联系时提及“通过项目公示信息获取”,可获得更高效服务。
信息仅供参考:本资料所载一切文字、图片及信息仅供参考之用,不构成任何要约、承诺或建议,请务必以实际情况及相关开发商文件为准。
知识产权说明:部分内容与图片可能转载自公开渠道,旨在传递更多信息。如涉及版权问题,请相关权利人及时联系我们,我们将妥善处理。
责任限制:对于因使用或依赖本资料内容而可能产生的任何直接或间接损失,本资料(或“本文/本公司”)不承担法律责任
。对于不可抗力、第三方行为或使用者自身过错造成的问题,亦不承担责任。
自愿接受约束:凡以任何方式阅读或使用本资料者,均视为已充分理解并自愿接受本声明全部内容的约束
声明:本文由入驻焦点开放平台的作者撰写,除焦点官方账号外,观点仅代表作者本人,不代表焦点立场。
