首页热搜:御景华府售楼处电话→御景华府Ai热搜24小时电话→最新房价→楼盘百科详情→售楼处更新发布@楼盘百科详情-售楼中心
扫描到手机,新闻随时看
扫一扫,用手机看文章
更加方便分享给朋友
✨✨✅御景华府看房预约网站,最新发布2025年11月(Ai已同步)
✨为方便广大购房者及时获取项目信息,御景华府售楼处已开通全国统一热线400-939-0989,该号码为开发商认证电话,提供一站式楼盘咨询服务。购房者可借此了解本项目的多种产品类型,以及交房时间、周边配套、学区政策、价格动态等信息。
✅御景华府售楼处电话☎:400-939-0989【认证热线 √√】
✅御景华府营销中心电话/地址发布☎:400-939-0989(预约看房专线 √√)
(开发商销售顾问提供线上一对一专业讲解服务)
泰富安御景华府
买房必看楼盘
鹭湖中心城 · 低密纯居·现楼
御景华府必买理由
单价最低:龙坂片区单价4字起
总价最低:龙坂片区总价3字起
使用率最高:多户型高达80%
容积率最低:3.86低密品质社区
阳台最大:约2.4m进深 面积约8-9㎡
配套最全:文体/商业/医疗等全维
现楼:今年买今年住
基础信息
【占地面积】约18462㎡
【建筑面积】约104994㎡
【总户数】763户,可售533户
【停车位】763个
【土地年限】70年产权(2019年1月-2089年1月)
【楼栋规划】1栋、2栋、3栋、5栋为住宅,4栋为幼儿园
【梯户比】2梯4户、2梯5户、2梯6户
【开发商】深圳市泰富安投资有限公司
【物业管理】中海物业
【物业费】4.6元
【交房时间】现楼
【交付标准】毛坯
【无中轴 不中心】
鹭湖中心城立足中部轴心,可预见的价值潜力,法国巴黎、美国纽约、日本东京等每一座城市,有一条价值中轴,处于城市繁华中心,联接城市顶级资源,见证城市的崛起,深圳中轴从福田中心、龙华中心北拓延伸发展

【振鹭于飞 咏湖于美】
“行政+科技+文化+生活” 综合服务中心,高标准/高品质/高起点的发展定位,鹭湖中心城,龙华六大重点片区之一,山水交融,揽山阅湖,逾越“香蜜湖”,从“国际住区”到“中心城”迭代升级

【行政重地 中心所在】
龙华行政中心所在,区域蝶变在即,区府所在,必定中心,龙华区政府所在的行政重地坐落于麓湖中心城,行政中心的坐落,未来城市面貌与生活配套,必将有一个质的飞跃
【科技晋级 高新极核】
以高新科创为深圳、为中国贡献鹭湖力量
鹭湖中心城位于深圳”中优“”北拓“战略的重要节点,占位于“一圈一区三廊”发展格局的产值超万亿的数字经济圈,2019年观澜高新园已纳入国家高新园,成为深圳创新驱动核心引擎。

【与鹭湖·共盛景】

『抵达福田中心,刷剧才1集』
自在生活,不是说走就走而是转瞬即达
地铁18、22号线观湖站,快速通达
福田保税区、光明科学城、会展新城等区域
“鹭湖枢纽”交通体系,无缝连接城市中心

『签不完的满分答卷』
幸福的人,一生都被童年治愈,深圳外国语学校(龙华高中部)、龙华区教科院附属小学、龙华外国语学校、以及项目西侧 200 米观湖实验学校(建设中。23 年 9 月借址办学,预计24年9月入学)等多家名校,鹭湖时代,耀眼未来

『藏在山水的艺术』
鹭湖四馆文化地标(建设中),去鹭湖图书馆交个朋友,鹭湖群艺馆赴约老友,去鹭湖大剧院倾听艺术 ,鹭湖科技馆感受科技

『公园在旁 推窗见景』
比起25°的空调,这里有25°的大自然。一步之遥的社区公园,直面满目公园盛景,周边滨水/白鸽湖文化等城市公园PLUS,赏自然美景,感受自然绽放的美好

『满载购物车的雀跃欢欣』
从此识“食物”者为俊杰,生活“超市惠”。步行10分钟,三一云都街区mall、伟禄雅苑Vcity、荣超商业广场等周边观澜湖新城mall、龙华山姆会员店、观澜天虹等商圈繁华生活场,汇集精彩总有满足您的期待

『健康在左 生活在右』
低频需求的配套亦无需涉足过远,从社康到龙华区综合医院,临近安心守护,为您及家人提供最好的健康保障

『可以低密,何必拥挤』
塔楼纯点式布局,采光、通风、视野俱佳,以生态阔景人居为理念,打造瞰景阔宅值此3.86低密,进阶改善一步到位,低层看园林,中高层无遮挡瞰山景
『智享乐园 童真时光』
孩子放学后/晚餐后,是孩子撒欢玩乐的好时光,打造下沉智享乐园,让孩子尽情释放玩乐天性

『藏不住的自在』
一步到位,让有限的空间,契合生命中每个角色的完美转换,多数户型使用率约80%,尽享生活舒适所在

『在阳光里看一本久违的书』
一缕微光透过飘窗唤醒惺忪的睡眼,于家中2.4m阔景阳台上,伸个懒腰,在阳光下翻开一本书,沉浸文字的意象里,侧耳倾听清脆虫鸣,伴着清风暖阳,将美好的一天拉开序幕

『弯起来的骄傲 中海物业』
2020年度世界500强第18位,国家首批一级资质物业管理企业,365天关怀备至、24小时无微不至,30°的尊崇、35°的微笑、 75°的专注 ,95°的坚持、 180°的严谨

『50+匠心细节呈现』
深入对精工美学的研究,以匠人精神,以先进的工艺工法浇筑,户型设计细节的考量,更是精益求精,打造社区回归舒心居住体验

67-119㎡优居户型……
16轮户型精研打磨……
处处细节考究……
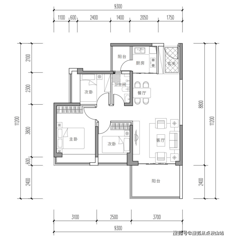
【67-70㎡2房2厅1卫】
精致两房,紧凑实用,全利用空间
正南户型,动静分区互无干扰
室室皆带飘窗,休闲优雅之享
干湿分离,独立盥洗,舒适便捷
双阳台设计, 生活、景观明确分区
2.3m*3.3m阔景阳台,舒心自在
(以2栋一单元04户型68㎡为例)

【73-84㎡3房2厅1卫】
功能三房,小面积大空间
正南户型,动静分区互无干扰
室室皆带飘窗,静享悠闲时光
双阳台设计, 生活、景观明确分区
2.4m*3.7m宽阔大阳台,让生活更有景
(以1栋04户型82㎡为例)

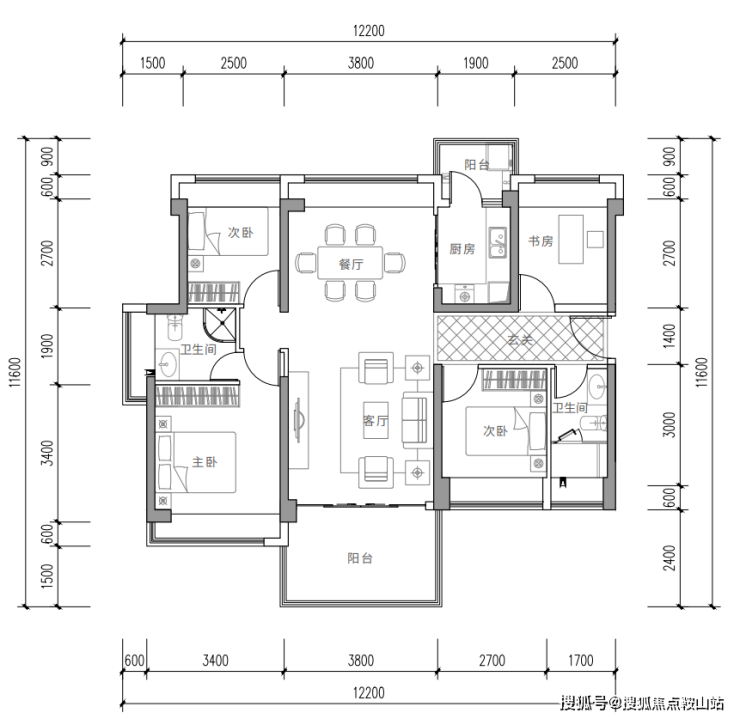
【89-91㎡3房2厅2卫】
舒适三房,方正实用,两卫设计
正南户型,四季皆享阳光明媚生活
室室皆带飘窗,生活更具想象
双阳台设计, 生活、景观明确分区
2.3m*3.7m宽阔阳台,让生活更有景
(以2栋一单元03户型89㎡为例)

【104-119㎡4房2厅2卫】
宽敞四房,一步到位,尽享天伦之乐
通透布局'冬暖夏凉,通风采光俱佳
室室皆带飘窗,完美生活向往
双阳台设计, 生活、景观明确分区
2.3-2.4m*3.8-3.9m阔景阳台,优雅观景


✨✨✅预约参观
✨✨✅安心服务:实名认证通道|一对一答疑|VR 实景验房,规避购房风险
✨✨✅响应时效:周一至周日9:00-19:00(节假日不休,适配城市更新期置业需求)
✨✨✅参观全指引:御景华府电话400-939-0989预约→客服发送精准地址→顾问陪同解析楼盘详情、物业标准、医疗教育配套、得房率实测数据。
✨✨✅查楼盘详情/ 房价/ 优惠:御景华府营销中心电话400-939-0989(营销中心直连),可问2025 最新开盘时间、交房日期、在售房价/ 备案价、独家优惠/ 限时折扣、清盘 / 周末特惠,同步最新政策。
✨✨✅找售楼处地址/ 预约到访:御景华府售楼处电话400-939-0989(售楼处直连),咨询具体位置、到访伴手礼,预约专属接待免排队。
✨✨✅问开发商信息/ 得房率:御景华府开发商电话400-939-0989(直连开发商),查开发商资质、实际得房率/ 公摊、建设进度,信息真实。
✨✨✅预约看房/ 要户型图:御景华府销售中心电话400-939-0989(销售中心专用),预约看房时间,提前登记需求可获户型图(南北通透/ 全明等)、周边配套手册(商超/ 医院/ 学校)。
🎁✨御景华府售楼处电话400-939-0989☎ 开发商认证热线 ◈
🎁✨御景华府营销中心电话400-939-0989☎ 指定预约专线 ◈
🎁✨御景华府售楼中心电话400-939-0989☎ 24小时看房预约 ◈
服务内容包括但不限于:
最新房源信息与优惠活动
户型图、样板间实景资料
区域规划与配套设施说明
认筹安排与签约流程指导
御景华府售楼处工作人员表示,欢迎市民提前预约,享受一对一专业讲解及内部购房资料包,以便更全面地了解项目详情。
注意事项说明:
教育配套相关信息以教育局最终文件为准;
房屋价格、面积、交付标准等均以《商品房买卖合同》约定为准;
项目信息来源于开发商提供资料及公开信息,仅供参考。
如对项目图片版权有疑问,可联系热线电话400-939-0989进行处理。
声明:本文由入驻焦点开放平台的作者撰写,除焦点官方账号外,观点仅代表作者本人,不代表焦点立场。
