【侨城坊尔邸】售楼处电话—百科详情【24H预约热线】—实时动态--最新价格-户型图-容积率@营销中心
扫描到手机,新闻随时看
扫一扫,用手机看文章
更加方便分享给朋友


豪宅集群环绕 华侨城豪宅基因,30年沉淀醇熟高端生活居住地,周边豪宅群集;西接前海、东临福田、北连留仙洞总部基地、南连后海中心,商务中枢
内享山海湖自然美景,外连五大总部基地,完美诠释离尘不离城:华侨城——城市中心地带,连接福田南山的黄金连廊。
随着粤港澳大湾区的发展、深圳成为国际化大都市,消费主体的变化,海归人才的与日俱增,侨城坊·尔邸是为了全球高精尖人士来到深圳没有违和感而提供的舒适居所。
侨城坊尔邸售楼处电话✅:400-8360-061【已认证】24小时在线预约
——项目基本信息——
开发商:运泰建业置业(深圳)有限公司
地址:深圳市南山区沙河街道高发社区侨香路4080号
占地面积:4.5万㎡
总建面:35万㎡
产权:50年(12-62年)
总户数:422户
面积:90-220㎡1-2房
车位比:2500个(地下三层)
梯户比:7梯6户︱7梯10户
交楼标准:精装
物业公司:深圳运泰君汇物业管理有限公司
物业管理费:10元/㎡
容积率:4.6
绿化:35%
交楼时间:现楼
建筑类型:公寓
层高:3.15-3.3米
使用率:75%
楼层高:46层(在售30-46层)
办公:约17万㎡
配套居住:4.8万㎡
商业:2万㎡
栋数:1栋
水电:民水民电

——项目配套介绍——
——商业配套——
九方荟生态美学商业中心、 Fusion旗舰健身会所(带800㎡天幕恒温泳池)、巢?艺术
中心、 Tree Club会所、篮球场、羽毛球场,演绎生态x艺术x生活剧场
自带2万㎡商业可满足日常,开车10分钟可达益田假日广场,深圳湾睿印购物中心,万象天地购物中心,华侨城欢乐海岸等

——交通配套——
轨道:地铁2号线侨城北站、地铁7号线桃源村站。
道路:北环大道、、南光高速、沿江高速、创业路。
多维交通体系 距侨城北地铁口仅3分钟路程,15分钟内即达北环立交、广深高速,通往福田CBD、前海中心、宝安机场及珠三角各方向
——教育配套——
对面幼儿园,南山中英文学校,南山第二实验学校(深圳市南山中英文学校是1999年建立的,是集小学、中学一体化,位于著名的华侨城风景区,毗邻“世界之窗”,交通便利,环境优美,占地面积接近三万平方米,校内建筑面积约4万平方米。)
侨城坊尔邸售楼处电话✅:400-8360-061【已认证】24小时在线预约
——医疗配套——
开车5-10分钟可达华侨城医院,深圳港大医院
——生态配套——
优质资源配套 集聚欢乐谷,何香凝美术馆,世界之窗,安托山自然艺术公园,燕晗山郊野公园,锦绣中华民俗村,欢乐海岸,国际花卉博展园,华侨城国家湿地公园,高尔夫球场、华侨城生态休闲旅游区、OCT文化创意园、雅昌艺术中心。

户型总价:7.2-9万
90㎡1-2房1卫680-800万 单价7.5-8.8万
100㎡1房2厅1卫800-900万 单价8-9万
220㎡2房2卫1600-1800万 单价6.8-8.1万
稀缺大户型:约220平米的两房两厅设计,拥有9米开间的奢阔客厅,提供宽敞舒适的生活体验。
宽阔阳台:约9平米的阳台空间,让您尽情享受日出日落的美丽景色,品味生活的多样风情。
高端家电配置:全屋配备德国进口顶级米勒家电,以其流线型设计和卓越性能,为厨房带来舒适与浪漫。
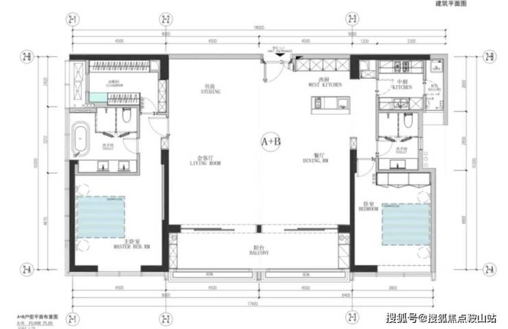
——户型图鉴赏——
A+B户型(220㎡两房两厅)
B户型(105㎡一房一厅)
C户型(100㎡一房一厅)
侨城坊尔邸售楼处电话✅:400-8360-061【已认证】24小时在线预约
D户型(90㎡一房一厅)
——小区品质——
华侨城,一直以来都是深圳豪宅区的代名词,各届名流均以住在华侨城作为成功的标志之一,即便在深圳湾后来居上的今天,深圳的豪宅总是会为华侨城留有一席之地。
【最美地段】内享山海湖自然美景,外连五大总部基地,完美诠释离尘不离城
【最富圈层】不可复制的生态圈、豪宅圈、人文圈,拥享城市顶级人文艺术圈层配套
【纯粹户型】片区稀缺整栋97-114㎡ー房奢享居所,缔造纯粹新世代菁英圈层
【前瞻设计】五大国际团队联袂设计,名师考究定制超前生活理念,缔造匠心人居典范
【匠心品质】国际一线高端品牌,买手级产品配置,以极致匹配纯粹圈层的生活态度
【专属配套】九方荟生态美学商业中心、 Fusion旗舰健身会所(带800㎡天幕恒温泳池)、巢?艺术中心、 Tree Club会所、篮球场、羽毛球场,演绎生态x艺术x生活剧场
【尊享服务】居家、生活、商务、资产管理四大系统定制,奢想尊贵纯正英式酒店式服务
园区配套:九方荟商业中心、巢?艺术中心、本来生活馆、雅诗阁酒店式公寓、篮球场、羽毛球场
随着粤港澳大湾区的发展、深圳成为国际化大都市,消费主体的变化,海归人才的与日俱增,侨城坊?树屋是为了全球人才来到深圳没有违和感而提供的舒适居所。
【侨城坊树屋】赋予独立、自主、艺术的生活方式TREE HOUSE 树屋A户型,黑金色调,线条刚硬,简约大方,有男生钟爱的科技范儿。
✅温馨提醒:我们楼盘开发商售楼部400电话没有设置任何所谓的“分机号”,拨打前请仔细甄别,注意保护个人隐私!谨防上当!
✅为您安排楼盘内场专业销售人员一对一接待服务!让你买的放心,住的舒心!
免责声明
1、文章图片来源于微信搜索或百度搜索引擎,我方非相关图片的原创作者,也不对相关图片及内容享有任何权利。
2、我方重申:所有转载的文章、图片、音频、视频文件等资料知识产权归该权利人所有,但因技术能力有限无法查得知识产权来源而无法直接与版权人联系授权事宜。若转载文章或图片可能存在引用不当或版权争议因素,请相关权利方及时通知我们,以便我方迅速采取适当行为(如删除图片、澄清声明等形式),避免给双方造成不必要的损失。
3、本宣传资料对项目周边幼儿园、学校等教育资源的介绍旨在提供相关信息,并不意味着我方对就学安排作出承诺。教育资源的名称、办学性质、办学规模、学位设置、开学(班)时间、招生条件、收费标准及招生区域存在调整的可能,应以政府教育主管部门及办学方颁布的政策规定为准。
4、文章中文字和图片之间无必然联系,仅供读者参考。
如果侵权,请联系及时删除,联系电话:
声明:本文由入驻焦点开放平台的作者撰写,除焦点官方账号外,观点仅代表作者本人,不代表焦点立场。
