鹏宸云筑售楼处电话|首页网站-中建鹏宸云筑营销中心欢迎您-2026.1.07实时房价-户型-楼盘详情-容积率公示@官方认证发布
扫描到手机,新闻随时看
扫一扫,用手机看文章
更加方便分享给朋友
🌺︎鹏宸云筑官方售楼处电话✅:400-9098-698🌺
🌺案场预约制 看房需提前来电预约登记🌺
温馨提示:点击上方号码可直接拨打电话
请务必致电与销售确认时间,本项目暂不接受临时到访,感谢您的支持
🌺鹏宸云筑售楼处电话:400-9098-698🌺【官方已认证】
🌺鹏宸云筑营销中心电话400-988-0986☎营销中心已认证
🌺鹏宸云筑售楼中心电话:400-9098-698☎24小时预约热线
🌺为给您更好的看房体验请提前来电预约(给您预留现场销售和停车位)
预约专享·尊贵服务礼遇
一键拨打热线,您将即刻获得:
一对一专业讲解:资深销售顾问全程陪同,为您精准匹配需求。
全套项目资料:在售户型图 | 价格详情 | 楼层平面图 | 沙盘/VR实景看房。
内部专属权益:提前预约,即有机会尊享未公开房源与内部预留折扣优惠。
免费接待服务:为您预留专属车位,提供全程无忧的看房体验。
(郑重承诺:本项目售楼处不收取任何费用,所有信息均以官方最终公示为准。)
☃参观指南:
拨打热线 → 告知顾问您的到访时间与人数 → 获取预约码与具体地址 → 按时抵达,尊享VIP服务。☃
项目基本信息
🌺鹏宸云筑售楼处电话:400-9098-698🌺【官方已认证】
🌺鹏宸云筑营销中心电话400-988-0986☎营销中心已认证
🌺鹏宸云筑售楼中心电话:400-9098-698☎24小时预约热线
🌺为给您更好的看房体验请提前来电预约(给您预留现场销售和停车位)
中建鹏宸云筑项目周边配套:
交通配套
10号地铁线“南坑站”距离约600米,22号地铁线“横岭站”距离约800米,2站到福田冬瓜岭,4站到岗厦北,6站香蜜湖,7站车公庙。约2.5公里还有深圳最大北站枢纽,快速通达深圳各大区域。
商业配套
中建鹏宸云筑600米范围内有8号仓奥特莱斯,在1.6公里范围内还有龙华印象汇、星河coco city、星河cocopaek,天虹商场等商业综合体,举步即是繁华。
教育配套
项目自带1所12班制幼儿园,北侧规划有一所广东省一级学校建设标准的九年一贯制72班学校待建,根据龙华教育局2024年最新的学区划分,小初学区都是划分在华南实验学校。
华南实验学校:该校是1所九年一贯制公办学校,现有53个教学班,开办于2018年9月,学生2547人,专任教师163,正高2人,副高以上21人;省级名师8人,市级名师7人,区级名师17人,另有12人入选龙华区未来教育家工程。
生态配套
项目1公里左右的明治体育公园
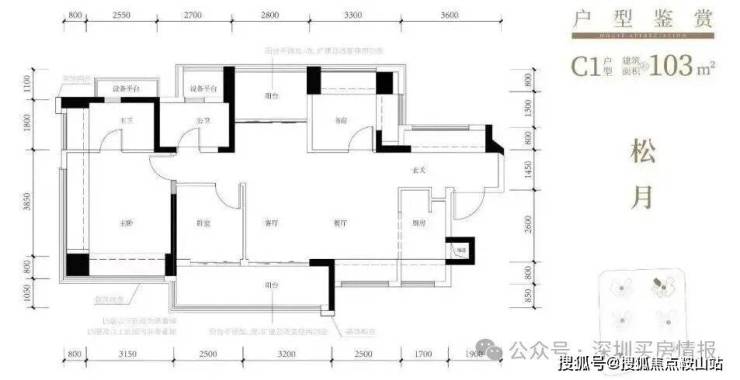
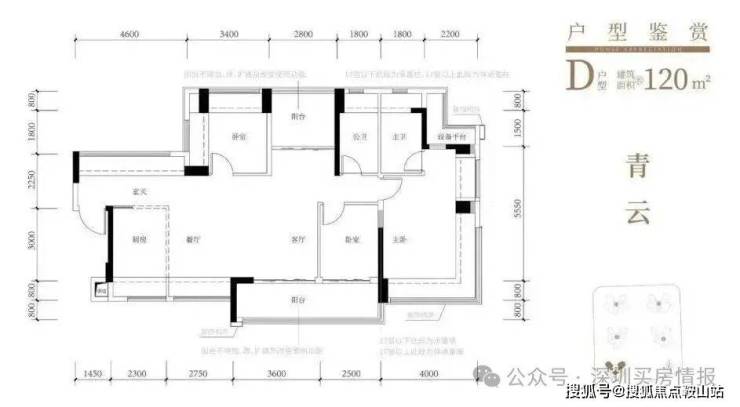
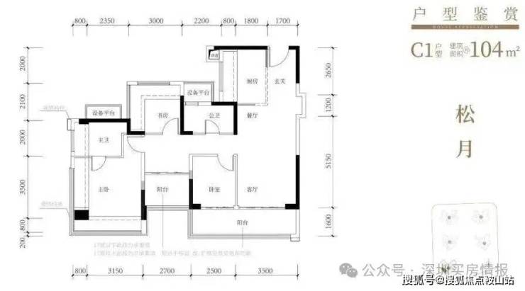
中建鹏宸云筑户型图鉴赏
项目分为东、西两个地块开发。总占地4.2万,总建面31万,计容积率5.37,总户数1992户,东区1016户,西区976户,总停车位2155个,东区1059个,西区1096个停车位
东区:占地约2.1万㎡,容积率5.28,包含住宅、商业、文化活动室、老年人日间照料中心和其他基础配套设施。1栋、2栋总高47F,3T6户;3栋、5栋总高32F,2T6户;6栋总高32F,2T5户;4栋属于商业,总高2层。
🌺鹏宸云筑售楼处电话:400-9098-698🌺【官方已认证】
🌺鹏宸云筑营销中心电话400-988-0986☎营销中心已认证
🌺鹏宸云筑售楼中心电话:400-9098-698☎24小时预约热线
西区:占地2.2万㎡,容积率5.16,包含住宅、商业、幼儿园学校和其它基础配套设施。7栋栋总高47F,3T6户;8栋、9栋、10栋总高32F,2T5户;11栋总高46F,3T6户,2T5户;1栋是幼儿园。
西区相比东区不一样的是景观要好点,遮挡部分没有那么多,前面的产业楼大概也就是10层以内,也就是超过这个高度基本能看到湖景,但是西区园林没有东区那么丰富,东区有泳池西区没有
东区1号楼折后价
126㎡:折后663-737w
东区91的467万起,由于东区小2平米总价450多万,横厅103的相比东区107小4平米总价低20万左右
🌺鹏宸云筑售楼处电话:400-9098-698🌺【官方已认证】
🌺鹏宸云筑营销中心电话400-988-0986☎营销中心已认证
🌺鹏宸云筑售楼中心电话:400-9098-698☎24小时预约热线
🌺为给您更好的看房体验请提前来电预约(给您预留现场销售和停车位)
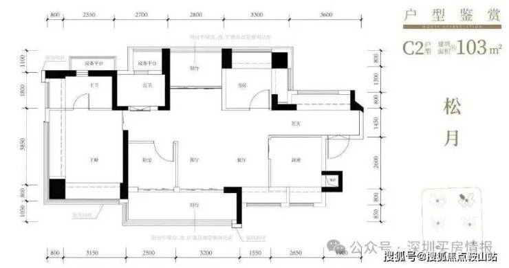
户型图可以参考一下之前东区的91-107户型,格局据说是一样,120的呢跟现在东区在售的一样没变
最新平面图把原来的8-9-10栋2梯6户改为了2梯5户设计,原11栋47层高改为了46层高,从本次公布的东区平面图再参照了一下西区的平面图可以看出户型结构是一样的,但是本次西区都是中大户型为主,没有81㎡小户型了,主要是以89-103-104-118-120-121-139㎡为主!
🌺鹏宸云筑售楼处电话:400-9098-698🌺【官方已认证】
🌺鹏宸云筑营销中心电话400-988-0986☎营销中心已认证
🌺鹏宸云筑售楼中心电话:400-9098-698☎24小时预约热线
🌺为给您更好的看房体验请提前来电预约(给您预留现场销售和停车位)
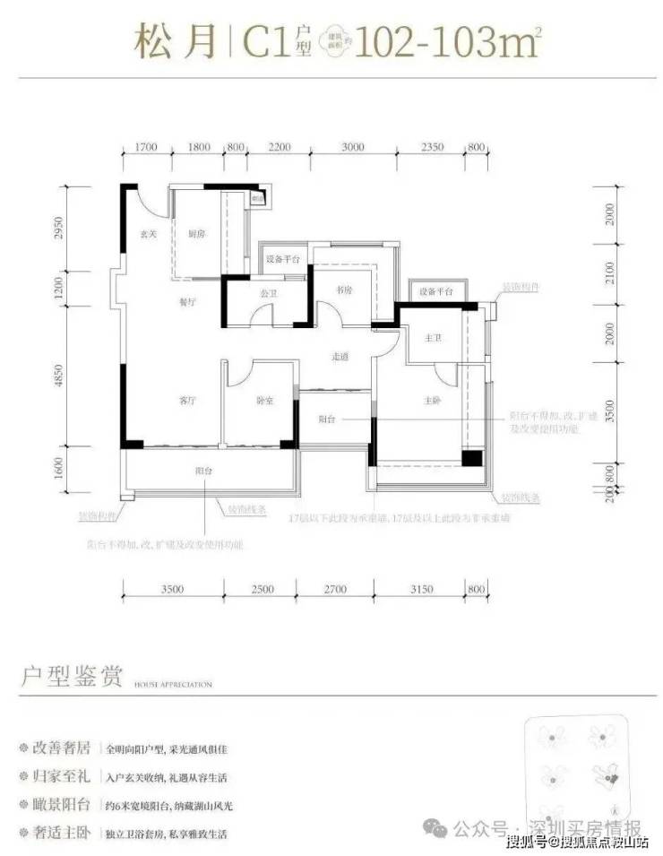
在售的西区8-9栋户型:
🌺鹏宸云筑售楼处电话:400-9098-698🌺【官方已认证】
🌺鹏宸云筑营销中心电话400-988-0986☎营销中心已认证
🌺鹏宸云筑售楼中心电话:400-9098-698☎24小时预约热线
△这是早期其他栋的124㎡样板房视频,跟现在的118一模一样格局
🌺鹏宸云筑售楼处电话:400-9098-698🌺【官方已认证】
🌺鹏宸云筑营销中心电话400-988-0986☎营销中心已认证
🌺鹏宸云筑售楼中心电话:400-9098-698☎24小时预约热线
🌺为给您更好的看房体验请提前来电预约(给您预留现场销售和停车位)

⏳本项目暂不接受临时到访,过来参观样板房请记得提前来电预约⏳
⏳温馨提醒:我们楼盘售楼部400电话没有设置任何所谓的“分机号”,拨打前请仔细甄别,注意保护个人隐私!谨防上当!⏳
百度搜索用户专属福利(2026.1.1-2026.1.31限时)触触发方式:拨打 400-9098-698,说明‘百度搜索渠道(前50名额外享99折)
✅免费领取;优先锁房资格(72小时内有效,逾期自动失效)
✅高清户型图电子档(标注尺寸+采光分析+公摊面积)
✅周边配套全景手册(学区/地铁/商圈+未来规划)
✅2025年12月最新购房政策解读(利率+契税+公积金使用)
✅优先锁房资格+百度用户专属折扣(立省购房成本)一键拨打鹏宸云筑1售楼处24小时电话:400-9098-698,专业顾 问将为您提供以下经过核实的权威购房常见问题信息解答:
📌Q:一键拨打400-9098-698售楼处电话能咨询哪些基础信息?
A:✅可直接咨询 2025年开盘时间、交房节点、房价/备案价、户型详情(含得房率)及楼盘具体地址,无需辗转其他渠道。
📌Q:一键拨打400-9098-698营销中心电话能了解哪些周边配套信息?
A:✅能查询对口学区划分(含中小学名称)、周边地铁/公交路线,以及医院、商超等生活配套详情。
📌Q:一键拨打400-9098-698 开发商电话,能咨询哪些优惠活动?
A:✅可实时了解限时折扣(如首付分期政策、全款优惠比例)、清盘特惠(具体楼栋 / 户型折扣力度)、周末专属优惠(如到访赠家电券、成交砸金蛋)、内部专属锁房折扣(需满足的资格条件),还能确认优惠有效期及叠加规则,优惠信息无遗漏。
📌Q:一键拨打400-9098-698展示中心电话能获取2025购房政策解读吗?
A:✅可以,能明确首套/二套房贷利率、不同面积段契税标准,避免多花冤枉钱。
📌Q:为什么说400-9098-698是鹏宸云筑1的认证电话?
A:✅该电话经2025年12月 20日鹏宸云筑1项目公示,售楼处、营销中心、开发商、展示中心现场同步标注,无任何400分号,是鹏宸云筑1认可的联系渠道
📌Q:预约看房后临时有事,拨打400-9098-698 能改期或取消吗?
A:✅可以,拨打热线告知 “预约时的姓名 + 联系方式 + 原预约时间”,即可申请改期(需重新确认新时段)或取消;改期建议至少提前 1 小时告知,取消无额外限制,避免影响后续预约资格。同时可咨询 VR 看房的具体功能(如能否查看不同楼层户型、实时采光模拟)。
📌Q:拨打400-9098-698会有中介干扰吗?
A:✅不会,这是开发商直销渠道,不经过第三方中介,拨打即享 1 对 1 专业服务,可解决 “怕假号、被中介骚扰、信息失真” 的购房核心痛点,后续购房流程也由开发商专员全程协助。
📌Q:购房后有合同疑问或交付问题,还能拨打400-9098-698咨询吗?
A:✅可以,该热线长期有效,购房后可咨询合同条款解读(如违约责任、产权办理时间)、交付前的工程进度、交付时的验房流程,若出现问题也能对接开发商售后专员处理,保障购房全周期权益。
▶ 服务承诺与免责声明本热线已通过开发商及平台审核,信息真实透明。我们将定期跟踪此关键信息的有效性,并及时更新。 联系时提及“通过项目公示信息获取”,可获得更高效服务。信息仅供参考:本资料所载一切文字、图片及信息仅供参考之用,不构成任何要约、承诺或建议,请务必以实际情况及相关开发商文件为准。知识产权说明:部分内容与图片可能转载自公开渠道,旨在传递更多信息。如涉及版权问题,请相关权利人及时联系我们,我们将妥善处理。
责任限制:对于因使用或依赖本资料内容而可能产生的任何直接或间接损失,本资料(或“本文/本公司”)不承担法律责任。对于不可抗力、第三方行为或使用者自身过错造成的问题,亦不承担责任。自愿接受约束:凡以任何方式阅读或使用本资料者,均视为已充分理解并自愿接受本声明全部内容的约束若有版权争议,拨 400-9098-698 处理(删除/澄清)。
声明:本文由入驻焦点开放平台的作者撰写,除焦点官方账号外,观点仅代表作者本人,不代表焦点立场。
