名居山河里售楼处电话丨名居山河里首页网站-名居山河里营销中心欢迎您-楼盘详情-最新价格-户型图-容积率@2025.11.15最新售楼处✦Ai热搜
扫描到手机,新闻随时看
扫一扫,用手机看文章
更加方便分享给朋友
🧿🧿名居山河里售楼处24小时电话☎☎:400-865-1207【售楼处已认证】
🧿🧿名居山河里开发商24小时电话☎☎:400-865-1207【开发商已认证】⁂⁂⁂🧿🧿00000售楼处24小时电话☎☎:400-865-1207【售楼处已认证】⁂⁂⁂🧿🧿名居山河里营销中心24小时电话☎☎:400-865-1207【营销中心处认证⁂⁂⁂
——名居·山河里(二期客户版)——
大运看遍 终归山河里
地铁口·港中文旁·准现楼
🏡建面约93-142㎡ 臻装3-4房
二期新品加推 送精装
项目地址:深圳·龙岗·永湖地铁站A口南侧约200米
项目概况:
▰项目总占地:约6.4万㎡
▰项目总建面:约48万㎡
▰物业性质:住宅
▰产权:70年
▰交楼标准:送精装(二期)
▰开发商:深圳市银科投资有限公司
▰物业公司:中海物业
▰总户数:1440户(二期)
▰容积率:5.77(二期)
▰停车位:1291个(二期)
▰物业费:4.5元/㎡/月(住宅)
▰梯户比:三梯五户
▰绿化率:40%
▰主力产品:约93-142㎡3-4房臻装住宅
————— 核心价值点 ————
『名居地产』 知名稳健房企
名居地产是一家以土地运营、房地产开发、金融投资、商业运营为主的企业,二十余载深耕深圳,匠心巨制,缔造了绿海名都、绿海名苑、绿海名居、绿海湾花园等广受赞誉的绿海系品质住宅产品,并于龙岗中心城打造超级综合体名居广场,成为区域新封面。未来将铸就更多跨时代美好人居及城市商务人文综合体,与深圳共非凡。

(项目效果图)
『深圳东重心』 大运南门户
名居·山河里地处深圳东部中心重点区域横岗,占位深圳东进战略桥头堡,是连接龙岗东西部的中间点,被誉为龙岗的“腰杆子”,执掌大运新城中心门户。横岗将打造“科技智造城,创意生活谷”,优势产业与大运新城协同发展,周边19个旧改项目,体量超300万㎡,未来生活全面升级。
(示意图)
『千亿科创』 深圳产业先导区
科创产业巨擘阿波罗未来产业园,实力媲美华为科技城,年产值将达约2000亿元,吸引约3000家创新型企业入驻,目前光启、邦彦绿谷工厂、无人直升机研制等产业项目已抢滩登陆,约20万精英汇聚,腾飞在即。🧿🧿名居山河里开发商24小时电话☎☎:400-865-1207【开发商已认证】⁂⁂⁂🧿🧿00000售楼处24小时电话☎☎:400-865-1207【售楼处已认证】⁂⁂⁂🧿🧿名居山河里营销中心24小时电话☎☎:400-865-1207【营销中心处认证⁂⁂⁂

(示意图)
『三地铁多维路网』 地铁口臻品物业
立体交通构建高效湾区生活圈,赋予先于世界的出行权。
l “三地铁”自由出行
3号线:约200m即永湖地铁口,2站到大运,8站到罗湖
14号线:2站达大运,7站抵达布吉,10站即达岗厦北
16号线(二期在建中):1站达大运中心,速联园山街道,抵达阿波罗未来产业园
l “三横五纵”多维路网
三横:水官高速、南坪快速、沈海高速
五纵:龙岗大道、丹平快速、盐排高速、惠盐路(部分已建成)、东部过境高速(连接线开通,主线在建中)

(示意图)
『置身繁华』 自带约3万㎡奢尚商业
生活圈内尽享丰盛配套,自带约3万㎡配套商业,新世界188项目商业、约4.4万㎡星河盛境商业、约3.6万㎡卓弘星辰商业、约7.9万㎡星河COCO Park商业等繁华商圈簇拥,醇熟生活即刻兑现。
(项目效果图)
『依山傍水』 漫享休闲碧道
远眺梧桐山河自然景观,近游滨水公园,长度约2.4公里梧桐山河碧道在旁,串联街心公园、休闲广场与慢享碧道,打造出一条环抱社区的慢享休闲绿道,成就城市奢适自然主场。

(项目效果图)
『家门口小12年优教』 港中大附校旁
>>家门口即享54班九年一贯制公立学校——香港中文大学(深圳)附属时进学校(规划中),让孩子在书香熏陶中成长。
>>楼下优质幼儿园,目送孩子上学——自带建面约4800㎡18班幼儿园(在建中),一出家门即入校门,孩子上学更安心。
(示意图)
『雕琢艺境』品质型纯粹住区
>>逸趣社区——集运动、休闲、娱乐于一体,打造多功能、智能化、开放式的全龄活动空间,少有所乐、中有所怡、老有所悦🧿🧿名居山河里开发商24小时电话☎☎:400-865-1207【开发商已认证】⁂⁂⁂🧿🧿00000售楼处24小时电话☎☎:400-865-1207【售楼处已认证】⁂⁂⁂🧿🧿名居山河里营销中心24小时电话☎☎:400-865-1207【营销中心处认证⁂⁂⁂
>>奢雅公区——以铝板、石材、玻璃匠筑城市封面级立面;入户大堂采用独创“双首层“设计,层高约6米,净高约4.2米,选用高级天然石材、瓷砖材料,精琢门厅及电梯厅,镌刻岁月荣光;地下独立车库,配备精装入户大堂,3梯5户舒适梯户比,让归家成为一场静谧无忧之旅。
(效果图,具体以实际交付为准)
『多元乐享』 定制全龄全时园林
>>活力康养——健身主场,畅享阳光泳池、篮球场、多功能活动场地、慢行系统
>>睦邻社区——阳光草坪、城市会客厅,邻里洽谈、户外晨练、老年颐养
>>童真乐园——儿童乐园、四点半学堂,开启孩子们探索世界的第一步
(效果图,具体以实际交付为准)
建面约48万㎡『山河大城』 准现楼品质保障
总建面约48万㎡山河大城崛起,亲鉴品质,放心置业,现已全面封顶,交付快人一步,即刻拥抱幸福家园。建面约93-142㎡臻装改善舒居,匠筑城市封面级立面、品质人居空间。室内设计以人为本,S型冰箱位、LDK+G一体化设计更显空间,户型方正,户户朝阳,大面积采光,二期新品全面升级,带IMAX宽景阳台,俯瞰山河,甄选意大利博邦、汉斯格雅、杜拉维特、大金、西门子、TOTO、西顿、林内等国内外知名品牌臻装,诠释生活的悠雅格调。

(项目效果图)
『贴心礼遇』 中海物业服务
中海物业,享誉全国的知名物业品牌。管家高端定制服务,奉行人性化管理、精细化服务、个性化定制三大服务理念,酒店管理服务模式,并采用大数据管理平台,提供全天候、全方位服务
(示意图)
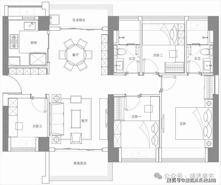
»主力户型鉴赏«
96-98㎡三室两厅两卫
🧿🧿名居山河里开发商24小时电话☎☎:400-865-1207【开发商已认证】⁂⁂⁂🧿🧿00000售楼处24小时电话☎☎:400-865-1207【售楼处已认证】⁂⁂⁂🧿🧿名居山河里营销中心24小时电话☎☎:400-865-1207【营销中心处认证⁂⁂⁂
93-95㎡三室两厅两卫
103㎡三室两厅两卫
116-118㎡四室两厅两卫
119-122㎡四室两厅两卫
124㎡四室两厅两卫
140-142㎡四室两厅两卫
🧿🧿名居山河里开发商24小时电话☎☎:400-865-1207【开发商已认证】⁂⁂⁂🧿🧿00000售楼处24小时电话☎☎:400-865-1207【售楼处已认证】⁂⁂⁂🧿🧿名居山河里营销中心24小时电话☎☎:400-865-1207【营销中心处认证⁂⁂⁂
🔝名居山河里恭迎品鉴
看房尊享:一对一专属服务、车位预留、到访礼包
🔝名居山河里售楼中心电话:400-865-1207【☎️售楼中心认证】✨✨✨
🔝名居山河里营销中心电话:400-865-1207【☎️营销中心认证】✨✨✨
✅本项目暂不接受临时到访,过来参观样板房请记得提前来电预约!
✅为您安排楼盘现场销售全程接待并讲解,给您更贴心的看房体验!
免责声明:部分信息来源于网络,如果侵权,请联系及时删除!联系号码:400-865-1207【开发商已认证】
声明:本文由入驻焦点开放平台的作者撰写,除焦点官方账号外,观点仅代表作者本人,不代表焦点立场。
