八月热搜焦点:富通九曜公馆售楼处电话→富通九曜公馆首页热搜24小时电话→最新房价→楼盘百科详情→营销中心最新发布@售楼处中心2025.8.16
扫描到手机,新闻随时看
扫一扫,用手机看文章
更加方便分享给朋友
项目核心理念在于最大化景观资源的利用,力求创造出别具一格的建筑立面形象。为确保南北方向的开阔观景视野,我们精心规划了四个塔楼,形成简约而典雅的玻璃盒子群,以此奠定了项目的初始场地布局。
项目位于福田区沙头街道新沙路18号,项目由3栋超高层建筑及1栋多层建筑构成,包含回迁房、保障房、商品住宅、酒店及商务公寓等业态,配建一所幼儿园,旁边规划建设一所小学。1栋由回迁房与保障性住房组成,64层加地下3层,楼高196.8米。2栋为商品住宅,59层加地下5层(含两层半地下室),楼高189.15米。3栋由酒店、商务公寓、人才住房组成,40层加地下4层(含一层半地下室)楼高172.85米。本期销售住宅有260户,其中户型套内建筑面积小于90㎡为230套,占比88.46%。
项目名称:富通九曜公馆
开发商:富通新光房地产开发有限公司
项目地址:福田区新沙路18号
占地面积:约1.7万㎡
总建筑面积:11.8万㎡
建筑类型:住宅、公寓,幼儿园 商业裙楼
物业公司:世邦魏理仕
物业费:住宅8.3/平/月公寓:9.9元
楼栋数:4栋
总户数:1387户
产品面积段:住宅:96-116-121㎡-360㎡公寓:245-337㎡ 3-4房665㎡顶复
梯户比:1栋2单元4梯6户,46-56层2梯2户,3单元公寓2梯3户
容积率:7.05
绿化率:30%
使用率:75%
车位比:1360 1:1
楼层:上舍21层,2单元41层-3单元59层
层高:3.15m 公寓:3.6米 住宅大户型3.4米
交楼时间:现楼
交付标准:毛坯
产权年限:70年(2018-88年)
房屋用途:住宅 公寓
单价:245平公寓:6.8-9万 337平9-10万住宅:360平12万-13万
学位: 明德实验五洲校区, 贝赛思双语学校
【品质立面,200米地标城市综合体】
外立面为玻璃+铝材类幕墙体系,豪宅才配备的旭格进口系统门窗,完美实现隔热、隔音、降噪。
【深圳首个网红地标配套“全悬空空中连廊+空中透明无边泳池”】
100M高空打造全悬挑空中连廊,空中透明无边际泳池,整个连廊敞开面对公园方向,将高尔夫公园景观和城市景观尽收眼底。
【大师执笔,镌刻时代美学著作】
程绍正韬、户田芳树、李玮珉、CCD、筑博等倾力之作,以国际化视野精心铸就顶尖豪宅。
【奢适园林,东方美学大师程绍正韬操刀】
将自然艺术与东方文化植入景观空间,既注重礼序人文,更不失自然趣味,以现代手法对传统美学进行再设计,打造步移景异之趣。
【悦府同标东方美学人文泛大堂】
秉承现代东方人文主义设计理念,融合哲思、人文、美学,展现对人性的关怀和尊重,让大堂成为一个从城市回归安逸居所的精神逗留空间,给予生活仪式感与尊贵感。
富通九曜公馆的开发商是深圳市富通新光房地产开发有限责任公司。作为一家有着丰富房地产开发经验的知名企业,深圳市富通新光房地产开发有限责任公司一直秉持着“质量第一、信誉至上”的经营理念,致力于为购房者打造高品质的居住环境。在富通九曜公馆的开发过程中,该公司充分发挥了自身的专业优势,从规划设计到施工建设,每一个环节都严格把关,确保项目的品质和进度。
项目坐拥香蜜湖金融中心南区,这里是南方金融中心的璀璨明珠。项目周边精心规划有香梅路延长线与福华一路延长线,它们将穿越深圳高尔夫公园,构建起香蜜湖北、中、南区的高效内部交通网络。展望未来,项目仅需约一公里即可直达香蜜湖金融中心中区,与国际交流中心、深圳展览馆、国际演艺中心以及深圳金融文化中心等四大地标性配套设施为邻,尽享城市核心资源。
【世界级商圈环绕,八大城市配套触手可及,CBD繁华尽揽于怀】
项目坐落于福田CBD的心脏地带,汇聚了行政、会展、金融、文化、酒店、购物、公园、交通等八大核心功能,尽享城市核心资源。
交通方面: 号线购物公园站1.2公里,7号线上沙站,沙尾站1.6-1.7公里,距福田CBD仅1.7公里,香蜜湖5.2公里,自驾都在8-12分钟范围内。门前的新沙路连通滨海大道,交通几乎轻松触达全市。
教育方面:项目周边有多所优质的学校,如KASCA卡思佳·国际托育园、深圳贝赛思双语学校、华强职业技术学校等,为居民子女提供了良好的教育环境。
商圈方面:富通九耀公馆周边有多个商业中心和购物中心,如祥云·天都世纪商业中心、深茂商业中心等,为居民提供了丰富的购物选择。无论是日常用品还是休闲娱乐,都能在这里找到满意的选择。
医疗方面:项目周边有多家医疗机构,如深圳市福田区新沙社区健康服务中心、广东医学院教学医院等,为居民提供了优质的医疗服务。
247平 【02户型3房】
246平 【03户型3房】
住宅
360平 【D户型5房】
360平 【09户型4房】
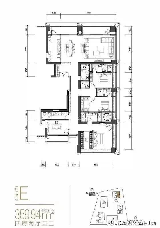
360平【 08户型4房】
96平 【B02/05户型2房】
声明:本文由入驻焦点开放平台的作者撰写,除焦点官方账号外,观点仅代表作者本人,不代表焦点立场。
