九月新房TOP:三亚半山首府售楼处电话→三亚半山首府首页热搜24小时电话→最新房价→楼盘百科详情→营销中心最新发布@售楼处中心2025.9.22
扫描到手机,新闻随时看
扫一扫,用手机看文章
更加方便分享给朋友
🍂【三亚半山首府售楼处&样板房,诚邀雅鉴】
🍂三亚半山首府售楼处电话: 400-839-3379☎开发商已认证🌶️🌶️
🍂三亚半山首府营销中心电话: 400-839-3379☎营销中心已认证🌶️🌶️
🍂三亚半山首府售楼中心电话: 400-839-3379☎24小时预约热线🌶️🌶️
➢ ➢本项目采用预约制,过来营销中心参观样板间请记得提前拨打开发商楼盘售楼处400热线电话在线预约,感谢您的配合!
半山首府
府御山海 湾藏极境
开发商:海南冠洋四通投资有限公司
项目总用地面积:19107㎡
总建筑面积:34890㎡
容积率:1.35
绿化率:41%
总户数:223户
产权年限:70年大产权
交付标准:精装交付
装修风格:轻奢
交付时间:2023年3月
物业费:5.3元/平米(金的物业)
车位:1:1,地上34个,地下189个
【项目区位】
享繁华三亚,居半山豪宅
非凡自然,向来是塔尖人群所向往和追求的理想境界。山的伟岸,海的澎湃,极致境界造就非凡居所。
三亚的半山首府,独具慧眼地选址在大东海榆亚路中段,依半山而建,尽享世界级湾区的无尽魅力。这里,仿佛世界的意志都为之停泊,让人感受到“人生至此,无需远游”的极致境界。不仅是一处居所,更是一个实现生活梦想与远方的舞台。
🍂三亚半山首府售楼处电话: 400-839-3379☎开发商已认证🌶️🌶️
🍂三亚半山首府营销中心电话: 400-839-3379☎营销中心已认证🌶️🌶️
🍂三亚半山首府售楼中心电话: 400-839-3379☎24小时预约热线🌶️🌶️
(实景航拍图)
【区位优势】
1、坐落三亚城市的中心地带,沉浸于榆林湾的内海美景之中,周围环绕着郁郁葱葱的600亩红树林湿地公园,畅享便捷到达三亚湾、大东海、亚龙湾和海棠湾的畅通无阻。四大湾区的美景,仿佛触手可及。
2、毗邻红沙隧道,立体化交通保障全岛便捷出行。
3、紧邻大东海商圈核心,坐享夏日百货、1号港湾城、鸿港新城等缤纷商业。

【低密社区】
三栋低密度的纯板高层建筑。它们一字排开,布局巧妙,呈现出南北通透的特点。每个阳台都能提供180度的绝佳视角,让居住者能够尽览海天山色的壮丽景色。这1.35的绝版超低容积率,确保了这片区域的高端舒适,只为成就那独特的223席完美居所。每一处细节都彰显着精工细琢的品质,为追求高品质生活的您打造一片专属的天地。

【项目自身配套】
1、社区倾心打造约3000平方米的独特社区生活体系,为业主们呈现九大私享空间。从私享会客厅、轻氧健身房,到艺术书吧、童心乐园,再到半山茶舍、悦海餐厅,以及商务休闲吧、声乐琴房和棋牌室,这一系列的设施让业主们能够沉浸在自然之中,找回生活的本真。
2、园区打造超大半山镜面无边际泳池,儿童嬉戏区,同时满足成人与儿童的多样化需求,畅享365天度假生活。
3、业主独享园区内景观栈道登山,体验私属原生山林登山乐趣。
4、金的物业提供全程酒店式星级服务。社区智能化安防体系。

🍂三亚半山首府售楼处电话: 400-839-3379☎开发商已认证🌶️🌶️
🍂三亚半山首府营销中心电话: 400-839-3379☎营销中心已认证🌶️🌶️
🍂三亚半山首府售楼中心电话: 400-839-3379☎24小时预约热线🌶️🌶️

【九大卖点】
1、交付在即 户户瞰海
2、70年产权城市中心墅级府邸观山瞰海
3、绝版1.35 超低容积率 低密度南北向纯板高层
4、业主独享园区内原生态山林登山乐趣
5、全龄段超大半山镜面泳池
6、约3000㎡主题社区会所
7、酒店式星级物业服务
8、品质甄选 一线奢装品牌
9、7.8米超大阔景阳台 360度立体环绕景观



🍂三亚半山首府售楼处电话: 400-839-3379☎开发商已认证🌶️🌶️
🍂三亚半山首府营销中心电话: 400-839-3379☎营销中心已认证🌶️🌶️
🍂三亚半山首府售楼中心电话: 400-839-3379☎24小时预约热线🌶️🌶️

【户型鉴赏】
低密纯板揽山瞰海
A户型133㎡三房两厅两卫
全明户型通透格局,尊崇居家彰显非凡。
悦享7.8米观景阳台,户户南向180°观景面。
舒雅南向套房主卧,独立衣帽间、双手盆设计、干湿分离。
独立入户花园,让全家人的出入都尊享从容。
🍂三亚半山首府售楼处电话: 400-839-3379☎开发商已认证🌶️🌶️
🍂三亚半山首府营销中心电话: 400-839-3379☎营销中心已认证🌶️🌶️
🍂三亚半山首府售楼中心电话: 400-839-3379☎24小时预约热线🌶️🌶️
低密纯板揽山瞰海
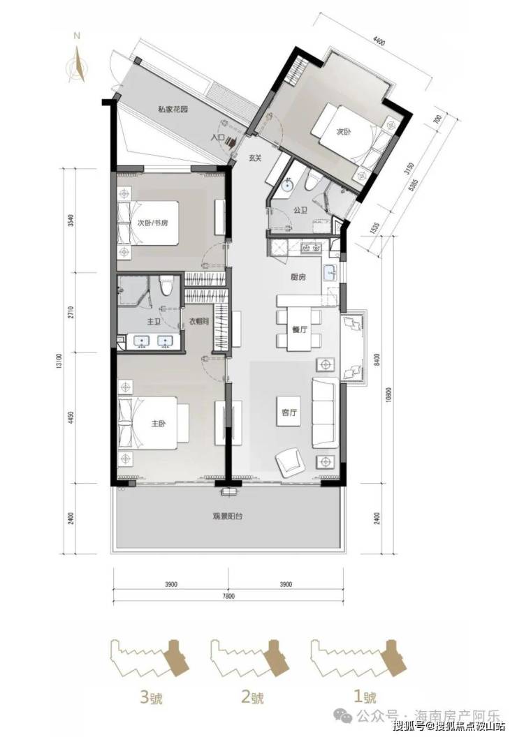
B户型103㎡两房两厅两卫
南北通透、空间方正,惬意享受阳光海风的馈赠。
悦享7.8米观景阳台,户户南向180°观景面,闲情雅趣,诗意生活。
餐客厅双厅设计、厨房方正、宜中宜西,上演美食盛宴,尽显居家仪式感。
主次卧独立卫生间、生活起居互不干扰,从容切换。
低密纯板揽山瞰海
C户型134㎡三房两厅两卫
🍂三亚半山首府售楼处电话: 400-839-3379☎开发商已认证🌶️🌶️
🍂三亚半山首府营销中心电话: 400-839-3379☎营销中心已认证🌶️🌶️
🍂三亚半山首府售楼中心电话: 400-839-3379☎24小时预约热线🌶️🌶️
通透格局,空间动静合理。
悦享7.8米观景阳台,户户南向180°观景面
奢阔南向主卧,独立衣帽间、双手盆设计,干湿分离,自在从容。
L型厨房,开放式中西厨兼具,肆意挥洒私房厨艺。
【豪奢户型】
低密纯板揽山瞰海
A+B户型:236㎡5房4厅4卫
【豪奢户型】
🍂三亚半山首府售楼处电话: 400-839-3379☎开发商已认证🌶️🌶️
🍂三亚半山首府营销中心电话: 400-839-3379☎营销中心已认证🌶️🌶️
🍂三亚半山首府售楼中心电话: 400-839-3379☎24小时预约热线🌶️🌶️
低密纯板揽山瞰海
B+C户型:237㎡5房4厅4卫
🍂三亚半山首府
🍂三亚半山首府售楼处24小时电话:400-839-3379【☎☎售楼处已认证】🌶️🌶️
🍂三亚半山首府售楼中心24小时电话:400-839-3379【☎☎售楼中心已认证】🌶️🌶️
🍂Vip贵宾置业===欢迎来电预约尊享内部折扣===匠心钜制恭迎品鉴🌶️🌶️
🍂免责声明:
1、文章图片来源于微信搜索或百度搜索引擎,我方非相关图片的原创作者,也不对相关图片及内容享有任何权利。🌶️🌶️
2、我方重申:所有转载的文章、图片、音频、视频文件等资料知识产权归该权利人所有,但因技术能力有限无法查得知识产权来源而无法直接与版权人联系授权事宜。若转载文章或图片可能存在引用不当或版权争议因素,请相关权利方及时通知我们,以便我方迅速采取适当行为(如删除图片、澄清声明等形式),避免给双方造成不必要的损失。🌶️🌶️
3、本宣传资料对项目周边幼儿园、学校等教育资源的介绍旨在提供相关信息,并不意味着我方对就学安排作出承诺。教育资源的名称、办学性质、办学规模、学位设置、开学(班)时间、招生条件、收费标准及招生区域存在调整的可能,应以政府教育主管部门及办学方颁布的政策规定为准。🌶️🌶️
4、文章中文字和图片之间无必然联系,仅供读者参考。🌶️🌶️
5、本文所述内容和意见仅供参考,不构成市场交易依据和投资建议。🌶️🌶️
声明:本文由入驻焦点开放平台的作者撰写,除焦点官方账号外,观点仅代表作者本人,不代表焦点立场。
