鸿荣源珈誉玖玺营销中心电话丨鸿荣源珈誉玖玺首页网站-鸿荣源珈誉玖玺开发商售楼处电话-楼盘详情-最新价格-户型图-容积率@2025.11.14最新售楼处✦Ai热搜
扫描到手机,新闻随时看
扫一扫,用手机看文章
更加方便分享给朋友
🎆🎆鸿荣源珈誉玖玺营销中心电话:400-8028-628【营销中心已认证📞📞】
🎆🎆鸿荣源珈誉玖玺售楼处电话:400-8028-628【售楼处已认证📞📞】
🎆🎆鸿荣源珈誉玖玺开发商电话:400-8028-628【开发商已认证📞📞】
🎆🎆鸿荣源珈誉玖玺展示中心电话:400-8028-628【展示厅已认证📞📞】
✦✦现场详细解答丨项目介绍丨户型图丨在售房源丨特价房丨学校丨交通鸿荣源珈誉玖玺位置丨样板房丨小区图片丨交房时间丨周边配套丨最新价格✦✦
🎆无论是咨询楼盘详情,还是预约实地考察,只需一个电话,全部轻松搞定!鸿荣源珈誉玖玺售楼处热线/售楼处电话/营销中心电话/24小时服务热线电话/销售中心电话/展示中心电话/开发商热线/Vip Tel/专属贵宾热线:🥇400-8028-628🥇【售楼处已认证☎,高频认证号码,建议优先拨打】
最新消息
最新消息:【珈誉玖玺】可0首付
全新7栋震撼登场 看山/湖/海/商业/园林
明星王牌户型 首发即绝版 价格仅限加推当天
折扣还是和之前一样0.99*0.99*0.96*0.99≈0.9315折(约93折)(另外还有5万返现,可直接抵扣房价,还有额外返现),折后均价4.8万/㎡,总价422-571万。
各户型折后价格如下:
94㎡南向性价比三房两卫,竖厅格局,折后422-447万;
98㎡南北通大横厅三房两卫,横厅格局,折后442-472万;
109㎡双龙抱珠四房两卫,折后552-571万;
新品便宜5000/㎡
新品94㎡总价比93㎡低30万+
新品98㎡总价比97㎡低40万+
新品109㎡总价比110㎡低50万+
🎆🎆鸿荣源珈誉玖玺营销中心电话:400-8028-628【营销中心已认证📞📞】
🎆🎆鸿荣源珈誉玖玺售楼处电话:400-8028-628【售楼处已认证📞📞】
🎆🎆鸿荣源珈誉玖玺开发商电话:400-8028-628【开发商已认证📞📞】
还有一则震撼消息:隔壁【鸿荣源·珈誉府】一区还有一批保留样板房工65套,带装修全部免费送,同户型一口价,需要登记才有资格选房
约77㎡3房1卫:总价330万
约85㎡3房2卫,总价362万
约86㎡(横厅)3房2卫,总价374万
约94㎡3房2卫,总价405/420万
约94㎡(横厅)3房2卫,总价440万
约105㎡4房2卫,总价525万
约153㎡3房2卫,总价815万
约151㎡5房2卫,总价975万
往期销售:
☆ 1、项目2024年10月13日推出的6栋,面积为169-199㎡4房和12栋的124-137㎡4房,6栋备案均价6.2万,12栋备案均价5.6万,开盘有93折优惠,首开当天去化9成。
☆ 2、2024年11月16日加推8栋的122㎡-126㎡4房,共87套。备案均价5.69万带精装,开盘93折优惠,折后均价5.29万。
☆ 3、今年开始推售小户型,3月1日加推10栋2单元75-84-94㎡3房和12栋78-97㎡3房,约339套住宅。开盘有93折优惠,折后均价约4.85万。
约75㎡:单价约4.70-4.91万/㎡,总价约354-370万
约78㎡:单价约4.68-4.95万/㎡,总价约367-388万
约84㎡:单价约4.64-4.93万/㎡,总价约389-413万
约94㎡:单价约5.01-5.17万/㎡,总价约473-488万
约97㎡:单价约5.03-5.25万/㎡,总价约490-511万。
☆ 4、3月22日加推9栋1单元,面积83㎡3房-89㎡3房-110㎡4房,约315套住宅。开盘有93折优惠。
约83㎡:单价约4.61-5.23万/㎡,总价约383-435万
约89㎡:单价约4.87-5.35万/㎡,总价约435-478万
约110㎡:单价约5.5-5.68万/㎡,总价约608-627万
☆ 5、4月26日加推13栋,面积77-90-93平,共266套,均为3房。
备案均价5.18万带精装,开盘有93折优惠,折后均价约4.8万,折后总价346万起。
约77㎡:单价约4.47-4.78万/㎡,总价约346-370万
约90㎡:单价约4.56-4.83万/㎡,总价约411-435万
约93㎡:单价约4.94-5.21万/㎡,总价约457-482万
☆ 6、7月12日加推10栋1单元,面积84㎡南向3房跟137㎡4房,价格如下:
137㎡(四房两厅两卫):单价约5.2-5.5万,总价约711-750万
84㎡(三房两厅两卫):单价约4.5-4.8万,总价约380-405万
一、项目介绍
鸿荣源·珈誉府,位于宝安大道于凤塘大道交汇处东南侧,该项目原是"塘尾片区城市更新单元“,由鸿荣源集团一手打造,也号称是第二个壹城中心升级版,地处沙井核心板块,周边1公里内涵盖3个重量级商业(万丰海岸城购物中心+鸿荣源壹方奥特莱斯+华强购物中心),11号地铁线”塘尾站“距离约300米。
珈誉府总建面约248万㎡,将打造近8000套住宅,其中住宅面积70万㎡,商业面积50万㎡,共分4期开发,是鸿荣源集团全新开发的地标级综合体大盘,涵盖高端住宅、商业办公、星级酒店、优质教育、大型购物中心等业态。
其中三期鸿荣源·珈誉玖玺,总占地面积约4.79万㎡,总建筑面积约40.53万㎡,计容建筑面积约27.63万㎡,容积率5.42,绿化率40%,共由10栋总高31-48F住宅组成,其中6栋1/2单元住宅44F,7栋/8栋住宅48F,9栋1单元住宅46F,9栋2单元住宅45F,10栋1单元住宅47F,10栋2单元住宅31F,11栋住宅46F,12栋/13栋住宅48F。
总规划2479户,全部都是商品房,地下室有3层,规划停车位2795个,车位占比约1:1.127。
二、项目基础数据
【项目基础数据】
【开发商】鸿荣源集团
【占地面积】总4.79万㎡
【建筑面积】总40.5万㎡
【总户数】2479户
【户型面积】加推10栋约84-137㎡3-5房
【停车位】2795个,车位占比约1:1.127
【物业及物业费】鸿荣源物业,5.9元/㎡
【绿化率】约40%
【容积率】5.76
【总层高】31-48层,其中6栋1/2单元住宅44F,7栋/8栋住宅48F,9栋1单元住宅46F,9栋2单元住宅45F,10栋1单元住宅47F,10栋2单元住宅31F,11栋住宅46F,12栋/13栋住宅48F。
【梯户比】2T2户/3T5户/3T6户/3T7户
【交楼时间】预计2026年,简装交房
【产权年限】70年(2022.5-2092.5)
【项目位置】宝安区宝安大道与凤塘大道交汇(11号线塘尾地铁站)
🎆🎆鸿荣源珈誉玖玺营销中心电话:400-8028-628【营销中心已认证📞📞】
🎆🎆鸿荣源珈誉玖玺售楼处电话:400-8028-628【售楼处已认证📞📞】
🎆🎆鸿荣源珈誉玖玺开发商电话:400-8028-628【开发商已认证📞📞】
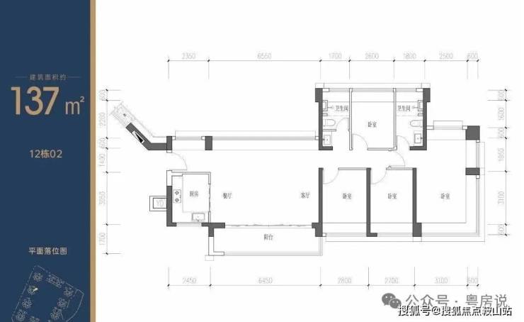
三、项目户型图
01
项目平面图
02
项目户型介绍
77㎡的3房2厅1卫,经典的竖厅户型,动静分区,S型冰箱位,餐客厅一体,客厅开间约3.1米,三个房间其中一个次卧和主卧都是双飘窗。
主要分布在13栋的06/07户型,西南朝向看珈誉府6区。
90㎡的3房2厅2卫,南北通大横厅户型,动静分区全明户型,U型厨房,餐客厅一体,客厅开间约5.9米,三个房间和客厅都带大飘窗,主卧双飘窗带独立卫生间。
主要分布在13栋的01/02户型,01户型是东北朝向(阳台)看小区花园,02户型是西北朝向(阳台)看小区花园。
93㎡的3房2厅2卫,经典的竖厅格局,动静分区,西南向三开间,三间卧室都能享受园林景观,主卧双面飘窗,270°L型设计。
主要分布在13栋的03/05户型,都是东南朝向看小区花园。
94㎡的3房2厅2卫,竖厅格局,客厅3.4米开间,三开间朝南,分别做到了主卧13.55㎡/次卧9.45㎡/次卧7.28㎡(含墙体飘窗),U型厨房,得房率约74%(不含赠送),加上赠送后得房率约84.22%。
98㎡的3房2厅2卫,横厅南北通透格局,客餐厅6.2米开间,分别做到了主卧15.27㎡/次卧8.58㎡/次卧7.92㎡(含墙体飘窗),L型厨房,得房率约74%(不含赠送),加上赠送后得房率约93.85%。
109㎡的4房2厅2卫,竖厅双龙抱珠格局,客厅3.5米开间,主卧270°转角飘窗,分别做到了主卧15.45㎡/次卧13.57㎡/次卧9.31㎡/次卧6.96m²(含墙体飘窗),U型厨房,房率约74%(不含赠送),加上赠送后得房率约89.34%。
🎆🎆鸿荣源珈誉玖玺营销中心电话:400-8028-628【营销中心已认证📞📞】
🎆🎆鸿荣源珈誉玖玺售楼处电话:400-8028-628【售楼处已认证📞📞】
🎆🎆鸿荣源珈誉玖玺开发商电话:400-8028-628【开发商已认证📞📞】
四、交通出行
鸿荣源珈誉玖玺家门口就是宝安大道及凤塘大道等交通主干道,
11号地铁线“塘尾站”,距离约300米,4站到宝安机场,6站到宝中,7站到前海湾,8站到南山,11站到车公庙。鸿荣源珈誉玖玺家门口就是宝安大道及凤塘大道等交通主干道。
五、商业配套
项目自带50万㎡奥特莱斯商业,汇集了壹方+奥莱的商业模式,在项目北侧还有万丰海岸城近18万㎡的购物中心,这个片区以后也将会是整个沙井最高端最集中的商业购物中心。
🎆🎆鸿荣源珈誉玖玺营销中心电话:400-8028-628【营销中心已认证📞📞】
🎆🎆鸿荣源珈誉玖玺售楼处电话:400-8028-628【售楼处已认证📞📞】
🎆🎆鸿荣源珈誉玖玺开发商电话:400-8028-628【开发商已认证📞📞】
六、周边学校
项目旁边,所规划的2个教育用地,已经正式出了红头文件,为深圳外国语宝安学校(集团)南校区,分别为1所63班九年一贯制学校,1所为27班九年一贯制学校(珈誉玖玺旁边),另外根据宝安区2024年最新的学区划分:
小学学区划分在桥头学校小学部、塘尾万里学校小学部、滨海小学(集团)福桥小学、立新湖学校小学部、凤凰学校小学部、滨海小学(集团)文昌小学;
初中学区划分在桥头学校初中部、塘尾万里学校初中部、立新湖学校初中部、福永中学、新安中学(集团)第二外国语学校(初中部)、航星学校初中部、凤凰学校初中部。
虽然同为宝安鸿荣源珈誉府项目,但是因为社区不同,学区划分是有明显区别的,旁边规划的深圳外国语宝安学校南校区仅27个班,后期录取积分应该会非常紧张,另外距离约900米的立新湖学校,在2024年小一的录取积分是86.8分,初一的录取积分是81分,塘尾万里学校在2024年的小一录取积分是100.5分,初一录取积分是94.2分;
按照宝安区教育局公布的积分政策,只要是深圳户籍(其它区)+学区内商品房,基础分100分,深圳宝安户籍+学区内商品房,基础分105分。
(*最终的学区划分、入学条件、招生计划等均以教育主管部门颁布的政策和学校的通知为准)
七、休闲配套
1公里范围内万丰湖湿地公园、立新湖公园等公园环绕,依然享受城市森意。
近新桥文体中心、沙井文体中心(建设中),高标人文配置,悦享品质生活。
👑鸿荣源珈誉玖玺👑开发商电话:400-8028-628(开发商已认证,高频认证号码,建议优先拨打)项目基本信息,楼盘价格,区域板块,开发商资料,楼盘详细地址,物业类型,产权年限,销售信息,销售状态,装修情况,交房时间,开盘时间,售楼处地址,营销中心地址,楼盘户型图,小区规划,绿化率,容积率,占地面积,建筑面积,总户数,物业费,车位数,物业费,楼盘介绍,踩盘报告,梯户比,标准层高,交楼标准,项目有缺点有哪些?是否有团购?找开发商买房便宜?还是找中介买房便宜?最新折扣是多少?最新房价是多少?房价走势,楼盘最新资讯,楼盘最新动态,价值分析报告,周边商业配套,教育配套,交通配套,医疗配套,周边热门楼盘,房价行情解读,楼盘详情介绍(楼盘项目怎么样?多少钱一平?什么时候交楼?有什么户型?周边有什么学校?售楼处电话是多少?营销中心电话是多少?)含开盘时间、交房时间、楼盘详情、房价、户型、详情、得房率、售楼处地址、首页网站、目前房价情况、楼盘项目有升值吗?值不值得买?能不能投资?读什么学校?有多少学位?销售中心、楼盘地址、户型图、交通、备案价、项目配套、营销中心详情咨询。
👑温馨提示:本楼盘暂不接受临时到访,看房需提前来电预约!即可尊享独家折扣
👑将为您安排楼盘专业销售一对一接待服务!让你买的放心!
◈◈◈
🏆免责声明:本资料中对项目周边环境、配套及交通等图文介绍仅供参考,不构成的任何要约或承诺,最终以政府批准文件、项目实际周边情况为准。本项目的图文资料仅供参考、非要约,具体以交付时现状及买卖合同的约定为准。本公司保留修改宣传资料的权利,敬请留意项目最新资料,最终的解释权归本公司所有。
图片
文 | 付一夫
回顾2025年的消费市场,最引人注目的现象之一,莫过于情绪消费的全面爆发。
从上海白领月均千元的解压盲盒消费,到成都老人排队两小时的怀旧下午茶;从年轻人跨省追看演唱会的狂热,到AI陪伴产品的销量激增……不经意间,情绪消费已跨越年龄与圈层,正在成为贯穿生活场景的消费新形态,并展现出强劲的增长动能。有数据显示,2024年我国情绪消费规模已达到2万亿元,预计2029年将突破4.5万亿元。而这场消费浪潮的来势汹汹,不仅重塑了市场供给逻辑,更折射出当代社会的精神图景,值得我们深入剖析其内涵、成因与影响。
一、情绪消费的内涵与形态
情绪消费,又名“情感消费”,一般是指消费者在满足基本物质需求之外,更加注重商品或服务所带来的情感体验和心理满足感,通过购买行为实现情绪释放、精神享受和心理补偿;在情绪消费的场景当中,商品或服务不仅仅是具有使用价值的物品,更成为了传递情绪价值的媒介。
从宏观角度看,情绪消费的兴起与社会经济的发展阶段密切相关。
随着社会从物质匮乏走向丰裕,人们的消费层次不断提升。在物质短缺时期,消费主要是为了满足基本的生存需求,如食物、衣物、住所等;当物质生活逐渐丰富,人们开始追求更高层次的精神满足,情绪消费便应运而生。以日本为例,随着高龄化加剧,结婚率和出生率逐年降低,独居者、独居家庭占比上升,这种“社会的个人化”趋势带来了“消费的个人化”特征,致使日本消费者越来越倾向于彰显个性且以内心愉悦为目的的情感消费。
放眼当下,情绪消费的例子比比皆是,尤其是在2025年的消费市场当中,情绪消费已形成了全域渗透的多元形态。
以盲盒为例。盲盒内的玩偶通常造型可爱、风格各异,且具有一定的收藏价值和随机性,而消费者购买盲盒,并非仅仅为了获得玩偶本身,更多的是享受开盒时那种充满惊喜与期待的情绪体验,以及收集不同款式玩偶所带来的成就感和满足感。据相关数据显示,泡泡玛特作为盲盒行业的领军品牌,其市场影响力不断扩大,反映出盲盒消费在情绪消费市场中的热度,其LABUBU系列盲盒二手溢价甚至超过数倍,限量隐藏款居然能炒至数千元。再如,年轻人对“谷子”(动漫、游戏等周边产品)的热衷,也是情绪消费的体现。这些周边产品承载着消费者对动漫、游戏作品及角色的喜爱和情感,购买“谷子”产品能够让他们获得情感上的满足和共鸣。
网络平台上的各种情绪消费服务同样引人注目。如“叫醒哄睡”服务,为那些在快节奏生活中感到孤独、缺乏陪伴的人提供了一种情感关怀。消费者在购买这些服务时,看重的是服务提供者给予的温暖问候与贴心陪伴,这些情绪价值成为了消费的核心驱动力。
再如“失恋安慰”服务,在消费者遭遇情感挫折、情绪低落时,通过专业人员的倾听开导,能够帮助他们缓解痛苦,获得心理上的慰藉。这些服务的出现,精准地捕捉到了消费者在特定情绪状态下的需求,以满足情绪价值为导向,构建起了独特的消费场景。
二、情绪消费兴起的四大原因
2025年情绪消费的全面爆发并非偶然现象,而是多重因素交织作用的结果,其深层成因可归结为以下四大维度。
(1)经济基础:物质富足催生精神需求
经过数十年经济发展,我国居民人均可支配收入持续提升,基本物质需求已得到充分满足。根据马斯洛需求层次理论,当生理与安全需求得到保障后,情感归属、尊重与自我实现的高阶需求将成为主导。而从实际情况来看,当人们不再为基本生活开销而担忧时,就会将更多的资金投入到能够带来精神愉悦的消费中。
以旅游为例。曾经旅游对于很多人来说是一种奢侈的消费,而现在随着收入的增加,越来越多的人选择在假期出游,去不同的地方体验风土人情并放松心情,这种旅游消费便是情绪消费的一种体现。
值得注意的是,Z世代群体作为新兴的消费主力军,其独特的消费观念对情绪消费的发展起到了巨大的推动作用:这批消费者成长于互联网时代,信息获取渠道广泛,他们更加注重自我表达和个性化,追求独特的消费体验;对他们来说,消费不仅仅是满足物质需求,更是一种展示自我、表达态度的方式。正因如此,他们热衷于购买具有独特IP形象的产品,如动漫周边、游戏联名款商品等,这些产品所承载的情感和文化价值,与他们的兴趣爱好和个性追求相契合,能够让他们在消费中获得强烈的情感共鸣和满足感。
(2)社会语境:压力与孤独催生情感补偿需求
当代社会的快节奏与高竞争,使各年龄段人群普遍面临多重压力。年轻人承受学业、就业、婚恋等现实焦虑,中年群体肩负家庭责任与职业危机,老年群体则面临孤独感与代际隔阂等等。有调研数据显示,超过8成的受访者表示自身存在压力,其中超过半数的受访者感觉压力较大。
在这样的环境下,情绪消费成为了人们缓解压力、寻求心理慰藉的重要途径。当人们在工作中遭遇挫折,或是被生活的琐碎压得喘不过气时,购买一个心仪已久的手办,或是参加一次放松身心的冥想课程,都能让紧绷的神经得到片刻的舒缓。这种消费行为不再仅仅是为了获取物质本身,更是为了满足内心对宁静、快乐等情绪的渴望。
社交方式的嬗变进一步加剧了情感需求缺口。线上社交的日渐普及虽然极大地提升了沟通效率,却导致现实社交疏离,“群体性孤独”成为普遍社会心态。此时,情绪消费可以通过提供虚拟陪伴、圈层认同等服务,有效填补现实社交的空白。
(3)技术支撑:数字化与场景化创新拓展消费边界
互联网和社交媒体的飞速发展,使得信息传播变得极为迅速。网红推荐、社交平台上的分享等,都能够在短时间内激发消费者的购买欲望。当一位网红在社交媒体上分享自己购买的一款解压玩具,并讲述其带来的放松效果时,往往会引发粉丝的跟风购买。社交媒体已成为消费者获取消费信息、交流消费体验的重要平台,消费者在浏览社交媒体时很容易受到他人的影响,从而产生情绪消费行为。
电商平台的普及和在线购物的便利性,也为情绪消费提供了广阔的市场空间。消费者只需动动手指,就能在电商平台上轻松搜索到各种满足情绪需求的商品和服务,无论是盲盒、手办还是线上的情绪陪伴服务,都能一键下单快速送达。电商平台还通过大数据分析,精准推送符合消费者兴趣和情绪需求的商品,进一步促进了情绪消费。以淘宝为例,其根据消费者的浏览历史和购买记录,为消费者推荐个性化的商品,极大地提高了消费者的购买效率和满意度。
另外,VR、AR等新技术在消费领域的应用,同样为消费者带来了沉浸式的购物体验,增强了消费过程中的情绪感受。在一些家居电商平台,消费者可以通过VR技术足不出户地虚拟体验不同家具的摆放效果,仿佛置身于真实的家居场景中,这种体验式消费让消费者更容易产生购买决策,等等。
(4)文化驱动:悦己主义与圈层文化的双重赋能
消费文化的转型为情绪消费提供了观念支撑。具体而言,当前传统意义上的“勤俭节约”消费观正逐渐向“适度悦己”转变,尤其是年轻消费群体,他们更愿意为个人感受买单,将情绪消费视为自我关怀的重要方式。来自某机构的上《2025Z世代情绪消费报告》指出,近六成青年愿意为情绪价值买单;而从青年目前的消费心态来看,选择“快乐消费,为情绪价值/兴趣买单”人群占比为56.3%,较2024年增长16.2个百分点;还有44.8%的青年关注“品质升级”,说明年轻人并非盲目悦己,而是在情绪驱动下追求更好的体验感。
与此同时,圈层文化的兴起也放大了情绪消费的传播效应。在潮玩、动漫、饭圈等圈层中,情绪消费成为身份认同与社交互动的载体。消费者通过购买同类产品、参与同一场景体验,获得圈层内的归属感与认同感,而这种情感共鸣进一步刺激了重复消费与口碑传播,也推动了情绪消费的发展壮大。
三、情绪消费的“双刃剑”效应
作为一种新兴经济形态,情绪消费在驱动经济增长、精准对接大众情感诉求的同时,亦衍生出多元消费风险与社会治理隐忧,呈现出机遇与挑战并存的复杂格局。
从积极方面看,情绪消费自然是发挥着经济新动能、社会情绪调节器、创新加速器等多重作用。
经济层面,情绪消费已成为拉动内需的关键引擎。其万亿级的市场规模,不仅直接带动潮玩、文旅、数字服务等细分产业加速发展,更催生出“疗愈经济”、“怀旧经济”等新兴赛道,为社会创造了大量就业岗位。以2025年淘宝天猫“618”大促为例,期间超2400家潮玩类店铺销量同比实现三位数增长,主要得益于盲盒、手办等趋势品类的大爆发,以及国潮IP、游戏周边等细分市场热度持续攀升,这无疑是直观印证了情绪消费对经济的强劲拉动作用。
社会层面,情绪消费扮演着重要的“社会情绪调节器”角色。通过情绪消费,人们可以在很大程度上释放生活压力、缓解内心焦虑、获取情感慰藉,既有助于维护个体心理健康,也在一定程度上降低了社会情绪矛盾爆发的风险。从承载情感记忆的失恋博物馆,到提供解压体验的主题场馆,这些消费场景将负面情绪转化为建设性的体验过程,实现了对情感创伤的温和疗愈;而老年群体通过怀旧消费重拾过往记忆、丰富精神生活,也有效缓解了孤独感,显著提升了晚年生活质量。
产业层面,情绪消费倒逼供给侧加速创新升级。企业的核心逻辑从传统的“功能满足”转向“情绪加持”与“增值供给”,纷纷通过产品创新、场景营造、服务升级等方式提升核心竞争力,推动消费市场向高质量发展转型。诸如“分手主题蛋糕”、“治愈系精品民宿”等创新产品与服务的涌现,正是供给侧精准响应大众情绪需求的典型实践。
然而从另一个角度看,情绪消费的快速扩张也暴露出诸多问题,一系列负面影响亟待警惕。
其一,过度消费与冲动消费风险凸显。部分消费者尤其是年轻群体,在商家精心设计的情感营销攻势下,很容易陷入“用消费填补情感空白”的认知误区,滋生非理性消费行为。例如,有女性消费者在乙女类游戏中投入重金,男性玩家为网游虚拟皮肤花费上千元,更有甚者挪用日常生活费用进行情绪消费,不仅加重个人经济负担,还可能引发家庭财务矛盾。
其二,行业乱象频发,服务质量参差不齐。情绪消费领域普遍存在准入门槛低的问题,从业人员资质缺乏规范审核,大量服务项目无统一标准可循。以某电商平台的情感服务类产品为例,陪聊、安慰等服务价格差异悬殊,却未明确标注服务内容、时长及从业人员资质;部分商家还通过夸大宣传、虚假营销,推出无实际价值的“情绪商品”,导致消费者权益频繁受损。
其三,隐私泄露与道德法律风险潜藏。树洞倾诉、连麦语音等情绪消费服务,往往需要收集用户个人隐私信息,若平台数据安全保护能力不足,极易引发隐私泄露、网络诈骗等问题;更有部分情感陪护服务暗藏软色情内容,既违背社会公序良俗,更可能触及法律红线,对社会风气造成不良影响。
其四,情感依赖加剧与社交能力退化。过度依赖情绪消费,可能导致个体逐渐丧失自我调节情绪的能力,形成“消费依赖症”;而虚拟陪伴类服务的普及,还可能进一步削弱人们的现实社交意愿与能力,加剧人际关系的疏离感,反而引发更深层次的情感缺失问题。
上述种种,无疑是值得我们重视和深思的。
四、情绪消费的规范与引导
为了充分释放情绪消费的积极价值,同时规避潜在风险,客观上需要政府、企业、消费者与社会多方协同,构建健康有序的发展生态。
政府层面,相关部门应加快制定情绪消费行业标准,明确服务内容、从业人员资质、平台运营规则等要求,建立严格的准入机制。对提供心理咨询、情感陪护的机构,强制要求从业人员具备专业资质;引入第三方评估机构,对平台服务质量、数据安全性进行公开评估,形成监督闭环。与此同时,还应进一步完善法律法规与执法力度,严厉打击虚假宣传、软色情、侵犯隐私等违法行为;健全消费者维权渠道,简化情绪消费纠纷处理流程,保障消费者合法权益。同时,加强数据隐私保护立法,明确平台在数据收集、存储、使用中的责任义务,防范信息泄露风险。
企业层面,商家应当摒弃短期逐利思维,将社会责任融入经营理念,避免过度营销与情感绑架。加强产品与服务创新,提升情绪价值的供给质量,从“情绪刺激”转向“长期赋能”,如结合心理健康知识开发科学的情绪调节产品等等。另外,商家还应建立从业人员培训与考核体系,提升服务专业化水平;强化数据安全管理,采用加密技术与访问控制手段保护用户隐私,在高风险场景设置隐私预警。对消费金额或频率过高的用户进行善意提醒,引导理性消费。
消费者层面,应明确情绪消费的本质是情感辅助,而非情感替代,避免将其作为填补情感空白的唯一方式。年轻消费群体需要树立“量入为出”的消费观,根据自身经济实力选择合适的产品与服务,警惕冲动消费与攀比消费。此外,消费者还应提升个人信息保护意识,谨慎向平台提供敏感信息;增强维权意识,遇到虚假宣传、服务缩水等问题时及时投诉。同时,主动培养健康的情绪调节方式,通过运动、阅读、现实社交等多元化途径释放压力,减少对消费行为的过度依赖。
教育机构与社会组织应加强情感教育,帮助公众尤其是年轻人提升情绪管理能力,培养健康的情感素养。通过线下活动、公益讲座等形式,搭建现实社交平台,减少群体性孤独感。与此同时,媒体应发挥舆论引导作用,客观报道情绪消费的利弊,曝光不良商家与消费陷阱,传播理性消费理念。鼓励社区建立情感支持服务,为老年人、青少年等重点群体提供心理疏导,构建多元化的情感支持网络等等。
总而言之,2025年情绪消费的现象级爆火,本质上是时代发展的必然产物。它既反映了我国经济发展的成就与消费升级的趋势,也映照出当代人内心的情感诉求。作为万亿级规模的新经济形态,情绪消费为市场注入了强劲活力,成为拉动经济增长的新引擎;同时,其背后暗藏的消费陷阱与社会风险,也需要我们保持清醒认知。
归根结底,情绪消费的健康发展离不开“理性”与“温度”的平衡。为了推动情绪消费健康可持续发展,企业需坚守商业伦理,提供真正有价值的情感产品;消费者需保持理性,不被情绪营销裹挟;政府与社会则需构建完善的支撑体系,让情绪消费回归“满足情感需求、提升生活质量”的本质。唯有如此,情绪消费才能从流量热点转化为长效动能,在促进经济发展的同时,真正成为滋养心灵、凝聚社会的积极力量,为每个人的美好生活增添温暖底色。
声明:本文由入驻焦点开放平台的作者撰写,除焦点官方账号外,观点仅代表作者本人,不代表焦点立场。
