中冶逸璟台(售楼处)首页网站-中冶逸璟台营销中心- 中冶逸璟台欢迎您-楼盘详情-最新价格-户型图-容积率@最新售楼处
扫描到手机,新闻随时看
扫一扫,用手机看文章
更加方便分享给朋友
【广州最具潜力板块】
位于黄埔科学城板块——政府斥资500亿打造的长岭新城。
2018年正式划入主城区,长岭新城强势崛起。
【黄埔轨道交通重要枢纽之一】
地铁21号线20分钟直达天河,黄埔第一条有轨电车就在家门口,全国首条高速地铁强势规划中,未来到广州东站只需9分钟。
【片区教育资源比肩越秀】
广州东部优质的公立学校和广州知名的国际学校坐落在项目周边。
【资源稀缺】
低密2.0绝版地块,主城区五年来唯一三山环抱在售项目,户户即享270°巨幕山林景观。
【国匠品质保证】
世界500强央企——中国中冶,参建北京人民大会堂、鸟巢、上海世博会、上海迪士尼和珠海长隆等国家地标性建筑。
【配套完备】
全龄生活空间打造,一站式娱乐即享
【纯粹圈层】
黄埔在售唯一纯改善社区,圈层高端纯粹。
项目配套
• 交通配套:黄埔交通规划2 国铁+4 城际+15 地铁+6 有轨!21号线长平地铁站——联通6号线、7号线二期、23号线,20分钟通达天河;项目出门即享有轨电车1号线——长岭居小学站;广汕公路、京港澳高速、济广高速快速通达全城
• 教育配套:高达58年教学历史的长岭居小学,公办名校北师大广州实验学校、铁英中学已招生开学;香港大学国际学院即将落户长岭居。
• 医疗配套:东部最好的三甲医院广医妇幼、中大岭南医院、宝能国际医院、广州市干部疗养院等。
• 商业配套:萝岗敏捷广场、萝岗万达广场、奥园广场、锐丰中心、华润人才创展中心(规划中)、奥园春晓西侧地块8万㎡商业综合体(已动工),超百万平米商业旗舰15分钟内即享。
• 公园配套:萝峰山、水牛山、黄旗山三大自然山体坐落在家门口,长岭居运动公园(规划中)。
美图鉴赏 一院至美天地 逸韵山水之间
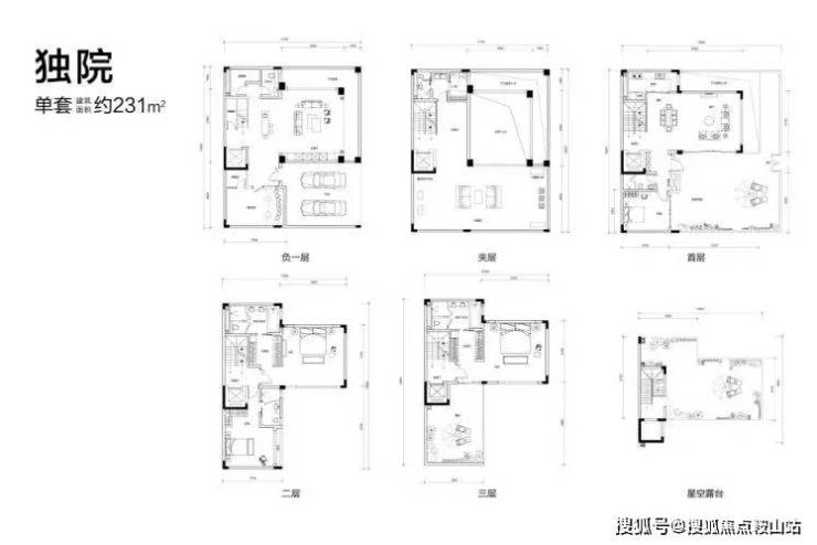
项目户型图

声明:本文由入驻焦点开放平台的作者撰写,除焦点官方账号外,观点仅代表作者本人,不代表焦点立场。
