翰熙典居(售楼处)首页网站-翰熙典居销售中心(营销中心)-翰熙典居楼盘欢迎您-小区环境-户型-价格-地址-楼盘详情-周边配套-售楼处电话-2025-9-19
扫描到手机,新闻随时看
扫一扫,用手机看文章
更加方便分享给朋友
🌟🌟【翰熙典居】🌟🌟
🏠 翰熙典居售楼处电话:400-893-6287【✅ 售楼处已认证】
🏬 翰熙典居营销中心电话:400-893-6287【✅ 营销中心已认证】
🏭 翰熙典居开发商电话:400-893-6287【✅ 开发商已认证】

📌📌 参观提示
本项目暂不接受临时到访,参观样板房请提前来电预约!
专属销售全程陪同讲解,为您带来舒心看房旅程!
💎💡 Vip 专属置业通道已开启
👉来电预约即可尊享内部专属折扣
🏅精工打造,诚邀品鉴
⚠️ 重要提醒
本楼盘售楼部 400 电话未设置任何 “分机号”,请仔细辨别号码,保护个人隐私,谨防受骗!

📲 置业咨询专线:400-893-6287【中介勿扰】
⚡⚡⚡翰熙典居售楼处电话☎400-893-6287(售楼处已认证)✨✨✨
⚡⚡⚡翰熙典居营销中心电话☎400-893-6287(营销中心已认证)✨✨✨
⚡⚡⚡翰熙典居售楼中心电话☎400-893-6287(售楼中心已认证)✨✨✨
粤海之上 逾50万㎡地标级奢居综合体 总建设用地面积:约41659㎡ 总建筑面积:约516339㎡ 首推主力户型:新规后建面约105-140㎡奢雅空间开发商:深圳市贯凯投资有限公司
科创中心丨擎领世界的粤海雄心世界四大湾区唯有粤港澳大湾区和旧金山湾有全球科创中心的发展定位。粤海作为粤港澳大湾区核心引擎,依托于重点院校、科创孵化、世界领军企业,成为对标阿瑟顿镇的深圳至臻人居价值版图。
粤海集萃腾讯、大疆等世界五百强企业,汇聚1600余家国家高新技术企业、百余家上市公司,驱动逾千亿年产值,2024年GDP约4500亿元。矜贵恒产丨问鼎全球的人居高地粤港澳大湾区——粤海街道,以科技南及后海、深圳湾片区为代表,代言湾区时代地标封面,问鼎深圳至臻人居价值版图深圳湾1号(二手房价约20-32万/㎡)
华润深圳湾悦府(约19-20万/㎡)
华润城润玺二期(约16-18万/㎡)
深湾CBD丨时代粤海的蝶变新章深湾CBD立足南山区“双核”战略核心,串联科技园、后海、深超总、深圳中央公园,聚合金融、科技、人文生态超级闭环,以多维战略产业叠加,重塑粤海价值天际线。翰熙典居,是继华润城之后深湾CBD又一人居地标之作,以时代中心之上的奢居基因,铸就跨越周期的矜贵人居恒产。
贵脉源点丨全维中心的奢居地标 翰熙典居占位深圳经济命脉滨海大道与南北科创主轴南海大道交汇处十字轴心。集萃城市区位、科创、人文、TOD四大中心源点。依托两大科技园、四大总部基地,集总部经济+全球科创中心价值,坐享区域发展利好。
人文中心丨百年人文印记 桂脉传承不息 桂庙新村,传承百年城市人文底蕴,是粤海科创产业的时代摇篮、深大学子的后花园,也是深圳奇迹的源点。从桂庙新村到翰熙典居,一脉城市向上的繁心,为於此奋进的各界时代精英,谨献伫立于中心之上的人文奢宅,为粤海匠造一座屹立于时代之巅的地标之作。
枢纽中心丨双地铁上盖TOD无缝接驳地铁9号线、15号线(在建中)交汇深大南站。核心区罕有TOD项目。四横:滨海大道、深南大道、北环大道、学府路 三纵:南海大道、后海大道、白石路 (以上所有交通规划最终通车时间以政府最新工程进度落实为准)
5重生态丨山/湖/园/海/湾 聚揽城市一湾风华 1山1湖:深圳大学杜鹃山、文山湖 4公园:荔香公园、文心公园、科技公园、深圳人才公园 1深大后花园1海湾:约15公里深圳湾滨海长廊 (项目规划连廊直通深大,中国十大最美校园之一。该天桥为方便深大师生进出而设置,后期具体人员进出管理以深圳大学有关规定为准)
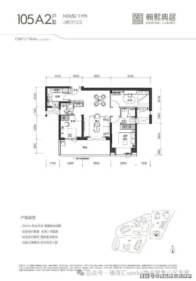
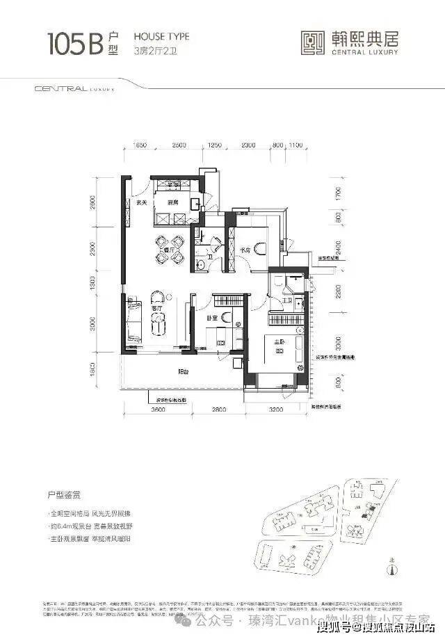
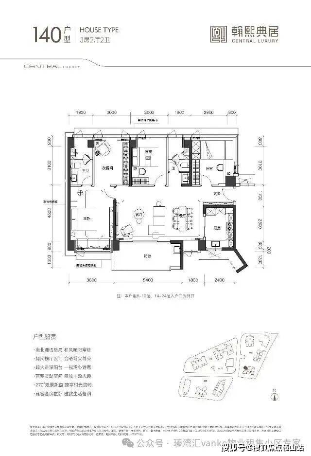
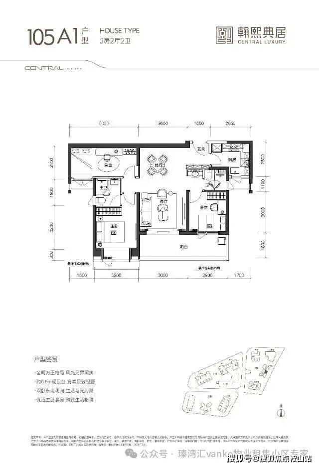
以下是户型图:
特别声明:以上内容(如有图片或视频亦包括在内)为自媒体平台“网易号”用户上传并发布,本平台仅提供信息存储服务。Notice: The content above (including the pictures and videos if any) is uploaded and posted by a user of NetEase Hao, which is a social media platform and only provides information storage services.
声明:本文由入驻焦点开放平台的作者撰写,除焦点官方账号外,观点仅代表作者本人,不代表焦点立场。
