三亚保利栖麓商铺售楼处电话首页网站-保利栖麓营销中心欢迎您-楼盘详情· 最新价格-户型图-学校-地铁-容积率@2025.11.08售楼处AI热搜
扫描到手机,新闻随时看
扫一扫,用手机看文章
更加方便分享给朋友
❄️❄️保利栖麓售楼处电话:400-879-6782❄️❄️
❄️❄️保利栖麓开发商电话⚡:400-879-6782❄️❄️📲【开发商已认证】
❄️❄️保利栖麓售楼中心电话⚡:400-879-6782❄️❄️📲【售楼中心已认证】
❄️❄️保利栖麓营销中心电话⚡:400-879-6782❄️❄️📲【营销中心已认证】
▪️本项目暂不接受临时到访,过来参观样板房请记得提前来电预约!
◆开发商营销中心诚挚邀请,一键预约,尊享内部折扣!匠心独运的精品项目,恭候您的品鉴与选择。
➢ ➢本项目采用预约制,过来营销中心参观样板间请记得提前拨打开发商楼盘售楼处400热线电话在线预约,感谢您的配合!
丨项目区位丨户型解析丨在售房源丨特价优惠丨学区配套丨交通动线丨样板间实拍丨小区环境丨交付标准丨周边商业丨
【保利栖麓14#、18# | 商业】
——100万买住宅底商——
低门槛、小总价、轻松购市新行政中心资产
项目地址:三亚市天涯区上抱坡北一路
占地面积:7.8万㎡
建筑面积:37万㎡(其中14,18地块商业建面约4705㎡)
产权年限:住宅70年/商业40年
总套数:住宅2875套,商业(14,18地块底商)81套
商业层数:一层
面积段:约26.45-87.58㎡
层高:一楼挑高6m
开间/进深:开间约3.8-5.4m,进深约8-12m
装修标准:商业(毛坯)

品牌篇
保利栖麓,央企品质钜筑
品牌优势:世界强打造
中国保利集团,2022年位居《财富》世界500强第位。旗下保利发展控股,常年稳居全国开发企业前五,央企第,优质绿档房企,29载恢弘布局全国115个城市,项目1200多个,深耕海南10年以来,敬献22盘经典著作。
(实景图)
区位篇
区位优势:抱坡新城 ,行政文体双驱动
抱坡新城属于海南政府最新规划三亚总部经济区内,承担三亚文化📚体育🥇与新的行政办公中心区的重要功能,在自然资源的打造上更具前瞻性地融合“山⛰、海、河🛶、城🏘”众多元素,区域值不彰自显。项目位于政府规划的万亩抱坡岭森林公园中的居住版块, 未来可期!
产品篇
高需求消费人群覆盖,人气十足
住宅共2857户安居业主,自有万人社区支撑;
项目西侧和南侧均规划有教育用地;
商街近享学府人流地利;
学府所在,轻松聚金;
北侧预留三亚市人民医院新院区用地;
覆盖市政、医院、学校的高需求消费人群;
稳定日人流量近万人次 ;
人气好铺在手,自然不愁赚。

邻里综合型生活场
首层社区临街底商,打造生活主题休闲商街 ;
周边多个项目开发建设中,2公里内,社区商铺祗此一处;
填补两公里内邻里商街空白,打造学府,新行政中心,医院旁的一站式缤纷生活场
展望未来人潮不断集聚。

灵动空间,多元创享
享8-12m高功能型进深,3.8-5.4m敞阔开间;
6m性价比大挑高,满足多元空间灵感;
一楼经商,二楼生活;
聚金邻里等生活所需;
以更小投入,掌控更大未来。
低门槛,轻松购
主推产品面积段集中在约49-55㎡;
低门槛投入,高投资收益;
甄稀市新行政中心资产;
仅献81套;
低门槛,轻松购。
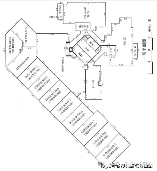
商铺平面图
14-1#号楼18套(面积28.2㎡-74.81㎡)


14-4#号楼11套(面积27.79㎡-73.59㎡)


14-6#号楼14套(面积43.47㎡-87.58㎡)


14-7#号楼4套(面积66.76㎡-67.38㎡)


18-1#号楼13套(面积31.58㎡-70.35㎡)

❄️❄️保利栖麓售楼处电话:400-879-6782❄️❄️
❄️❄️保利栖麓开发商电话⚡:400-879-6782❄️❄️📲【开发商已认证】
❄️❄️保利栖麓售楼中心电话⚡:400-879-6782❄️❄️📲【售楼中心已认证】
❄️❄️保利栖麓营销中心电话⚡:400-879-6782❄️❄️📲【营销中心已认证】
▪️本项目暂不接受临时到访,过来参观样板房请记得提前来电预约!
◆开发商营销中心诚挚邀请,一键预约,尊享内部折扣!匠心独运的精品项目,恭候您的品鉴与选择。

18-2#号楼10套(面积31.43㎡-60.42㎡)


❄️❄️保利栖麓售楼处电话:400-879-6782❄️❄️
❄️❄️保利栖麓开发商电话⚡:400-879-6782❄️❄️📲【开发商已认证】
❄️❄️保利栖麓售楼中心电话⚡:400-879-6782❄️❄️📲【售楼中心已认证】
❄️❄️保利栖麓营销中心电话⚡:400-879-6782❄️❄️📲【营销中心已认证】
▪️本项目暂不接受临时到访,过来参观样板房请记得提前来电预约!
◆开发商营销中心诚挚邀请,一键预约,尊享内部折扣!匠心独运的精品项目,恭候您的品鉴与选择。
18-3#号楼11套(面积53.51㎡-69.51㎡)

关于本项目最新动态信息,如:房价,主力户型面积,最新优惠,等等,剩余房源楼栋,销售进度,几号地铁哪个出入口,周边规划,项目的优势与不足以及教育资源的配套等等都可以致电售楼处进行了解,我们将会安排专属专业置业顾问为您详细解答!
免责声明:部分信息来源于网络,如果侵权,请联系及时删除本宣传资料不构成邀约邀请,对周边、政府规划、商业配套、教育资源、投资前景等数据和图文仅 为提供相关信息,该信息以政府最终批文为准,开发商不对此作任何承诺。买卖双方的权利义务以双方签订的买卖合同约定及附件、实际交付为准,本公司保留对宣传资料修改的权利,敬请留意最新资料。联系号码:400-879-6782
声明:本文由入驻焦点开放平台的作者撰写,除焦点官方账号外,观点仅代表作者本人,不代表焦点立场。
