2025天誉半岛花园售楼中心-首页网站-天誉半岛花园售楼处欢迎您|天誉半岛花园楼盘详情/价格/户型@售楼处
扫描到手机,新闻随时看
扫一扫,用手机看文章
更加方便分享给朋友
项目基本信息
项目名称:天誉半岛花园
开发商:天誉置业(控股)有限公司
项目位置:广州市海珠区工业大道北,滨江西路三江交会处,紧邻洲头咀公园
总占地面积:约8.7万平方米(也有资料显示为86557平方米)
总建筑面积:约32万平方米(也有资料显示为319089平方米)
容积率:4.6
绿化率:近5成(也有资料显示为48.7%)
总户数:535户(也有资料显示为406户)
天誉半岛售楼处电话:400 832 8772
项目简介;天誉半岛项目主要由住宅、办公及其配套设施等组成。其中A1栋为16层55米高公寓;A2、A3栋为两座38层123.55米超高层住宅楼;A4栋为30层高113.4米高办公楼;A5~A7栋为38层~52层超高层住宅楼,地下设置3层,总建筑面积约425524平方米。
天誉半岛售楼处电话:400 832 8772
天誉半岛项目位于广州市海珠区洲头咀公园旁,地处羊城八景之一的白鹅潭。西、北两面临江,西侧江边为滨江绿化带,北望白鹅潭、沙面,以现代前沿的曲面建筑艺术,将“丝路扬帆”的意境融入立面设计。
该项目距离地铁8号线同福西路站仅600米左右,步行约10分钟便可到达。生活配套齐全,可谓应有尽有。
广州美术馆、广东非物质文化遗产展示中心,广东文学馆,三馆合一,打造大湾区文化地标。
沿江总部经济带地标林立,国家呼吸医学中心、广州国际医药港,白鹅潭金融综合体、鹅潭一号总部、繁华的都市生活在这里就可以轻松拥有。
天誉半岛售楼处电话:400 832 8772
当代风水大师宋韶光先生造访时,曾点评此方格局:“从风水学上来讲,白鹅潭一边是三江合流,另一边分两条水龙流过广州城区,最后再度汇合出海,有去水,有来水,的确是旺丁旺财的地方”。
户型品鉴
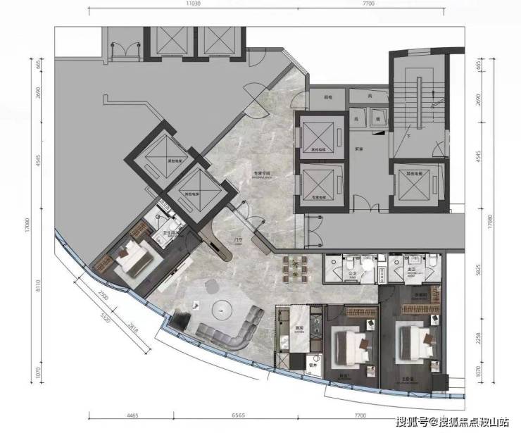
约405平A户型
一梯一户的设计,进门为独立电梯厅和走廊,连接洗衣房,洗衣房与独立的保姆房和司机房连通。
大门做了隔断,明确了保姆、司机和主人的活动范围。
门厅一侧是L型的鞋帽间,个人认为可以采用软装做一个小型储物间,门厅两侧分布了带独立卫浴的次卧以及主套,主套分布了步入式衣帽间以及的双盥洗台、浴缸、独立淋浴,而靠近鞋帽间的次卧也有浴缸以及独立卫浴。
L型的厨房配了中岛,连接餐厅,餐厅一侧还有西餐吧台,客厅的设计像一艘游轮的船头,可以观看270度的江景。
值得一提的是这个户型还配有雪茄房并带独立的公卫,每条动线都互不打扰,可以用作大平层之外还可以打造成私人的会所。
约183平B户型
这个户型同样设计了专属的电梯,进门为玄关,餐客厨做到了一体化,厨房带岛台,客厅一侧还划分了独立的办公空间。主套和次卧分布在不同的两侧,形成独立的动线。
主套和次卧都带有步入式衣帽间,以及独立洗漱空间,主套的浴缸被设在了靠近落地玻璃窗的一侧,可看江景。天誉半岛售楼处电话:400 832 8772
约181平C户型
入门即为玄关,厨房为双I型设计,厨房可以设计成开放式。
客卧分布在客厅一侧,带独立卫浴,和主人生活动线互不打扰,主套带三分离的独立卫浴以及衣帽间。
免责声明:部分信息来源于网络,如果侵权,请联系及时删除
声明:本文由入驻焦点开放平台的作者撰写,除焦点官方账号外,观点仅代表作者本人,不代表焦点立场。
