京基御景峯售楼处电话→2025京基御景峯首页网站→楼盘测评→京基御景峯营销中心电话→楼盘百科→京基御景峯24小时电话热线
扫描到手机,新闻随时看
扫一扫,用手机看文章
更加方便分享给朋友
»»【京基御景峯】收官席位 全城火爆竞藏««
»» 京基御景峯售楼处电话:400-9639-332【☎售楼处已认证】««
»» 京基御景峯营销中心电话:400-9639-332【☎营销中心已认证】««
»» 京基御景峯销售中心电话:400-909-9108【☎24小时预约热线】««
✅本项目采用预约制,过来售楼处参观需提前来电预约看房!恭候您的品鉴
京基御景峯是由深圳市京基房地产股份有限公司开发的大型综合社区,项目位于深圳,具备丰富的配套设施和便捷的交通条件。以下是项目的主要信息:157-215平米抵工程款单位,低楼层特价550万起
深圳(京基御景峯)京基御景峯售楼处电话:400-9639-332,营销中心_tel:400-9639-332,开发商售楼部热线400-9639-332(售楼处已认证电话)。提前预约看房尊享额外优惠!
京基御景峯,南山留仙大道5号线长岭陂地铁站A1出口。
现在售的为御景峯大厦1座(47F)及2座(F41)的大平层公寓,均价4.5万/平,折后单价3.28万/平起。
157平,总价约550万起
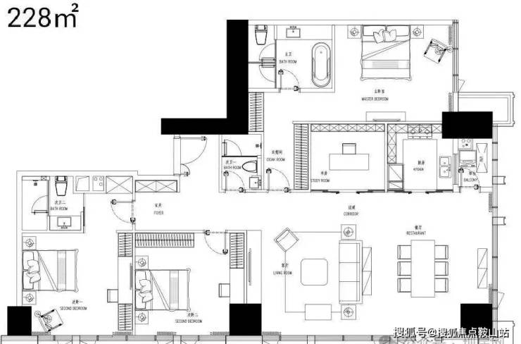
228平,总价约748万起
40年产权,6梯6户,可落户、可积分读书、民水民电。
»» 京基御景峯售楼处电话:400-9639-332【☎售楼处已认证】««
»» 京基御景峯营销中心电话:400-9639-332【☎营销中心已认证】««
»» 京基御景峯销售中心电话:400-909-9108【☎24小时预约热线】««
157平3房,适合三家之口或小型家庭。
格局方正,尤其是客厅宽敞,其中部分西北朝向,可以看长岭陂水库景观。
不过相对常规大平层,空间稍显局促,且双卫紧挨、安置在入门处,略显奇怪。
228平4房,整体空间感较强,最大的特色是主次卧全是套间,多窗设计也为通风采光作保障。
另外还有一个可改动的书房空间,据闻部分户型还享有270°环幕视野,景观效果很好。
»» 京基御景峯售楼处电话:400-9639-332【☎售楼处已认证】««
»» 京基御景峯营销中心电话:400-9639-332【☎营销中心已认证】««
»» 京基御景峯销售中心电话:400-909-9108【☎24小时预约热线】««
京基御景峯周边的道尔顿新华公学、玉龙学校、深圳外国语学校龙华学校等学校都有机会,但实际还得结合自身积分和学区情况。
项目自带约3.7万平旗舰mall,日常生活所需都能满足。
此外,约3公里范围内还有塘朗城、宝能环球汇等近20万平商业配套,包括深圳大学总医院、西丽大学城图书馆也在附近。
京基御景峯距离5号线长岭陂站约50-100米,一站就到深圳北。
通过深圳北站,可换乘4/5/6号线通往深圳各区域,乘坐高铁18分钟到达香港西九龙。
还有一点,项目毗邻约123公顷的长岭陂水库、塘朗山、阳台山,同时拥有一线水景和全尺度山景.
»» 京基御景峯售楼处电话:400-9639-332【☎售楼处已认证】««
»» 京基御景峯营销中心电话:400-9639-332【☎营销中心已认证】««
»» 京基御景峯销售中心电话:400-909-9108【☎24小时预约热线】««
深圳(京基御景峯)京基御景峯售楼处电话:400-9639-332,营销中心_tel:400-9639-332,开发商售楼部热线400-9639-332(售楼处已认证电话)。提前预约看房尊享额外优惠!
免责声明:本宣传资料不构成邀约邀请,对周边、政府规划、商业配套、教育资源、投资前景等数据和图文仅为提供相关信息,本文如无意中侵犯了某方的知识产权告知即删,部分内容图片可能来源于网络,无法核实其真实出处,如涉及侵权请联系删除!!!
声明:本文由入驻焦点开放平台的作者撰写,除焦点官方账号外,观点仅代表作者本人,不代表焦点立场。
