深圳深湾华府「深湾华府」售楼处丨深湾华府最新网站-限量争藏中-2025南山最新房价-电话-地铁-Ai热搜-户型图-楼盘详情-更新发布-最新深湾华府@最新营销中心
扫描到手机,新闻随时看
扫一扫,用手机看文章
更加方便分享给朋友
【深湾华府】
深圳湾 稀缺绝版小户型住宅
总价5⃣字头 入住深圳湾“亿级”豪宅圈层
海陆空轨 四维立体交通枢纽
百万商业云集 人文配套环绕
🔐国际一线精装交付!
深湾华府售楼处丨 深湾华府首页网站-价格-户型图-地铁-2025规划图-最新消息-楼盘详情-电话@营销中心服务
深湾华府营销中心售楼处24小时电话:400-835-2501(中介勿扰)现场详细解答丨项目介绍丨户型图丨在售房源丨特价房丨学校丨交通位置丨样板房丨小区图片丨交房时间丨周边配套丨深湾华府丨2025年最新发布
【基础信息】
【整体总建面】约26363㎡
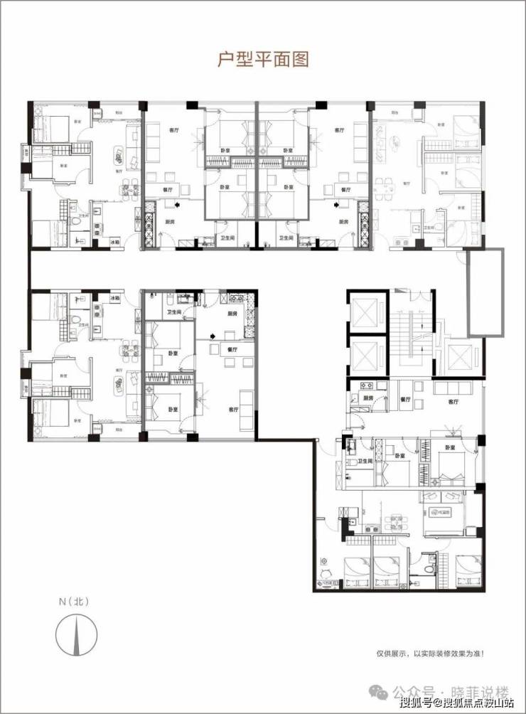
【产品面积】约37㎡小两房(实际套内使用面积接近54㎡)
【地块停车位】:1:1.2
【容积率】:3.11
【总层高】:18层
【产权年限】:70年
【稀缺必买价值】
🗺粤港澳大湾区国家战略,由香港、澳两个特别行政区和广东省广州、深圳、珠海、佛山、惠州、东莞、中山、江门、肇庆九个珠三角城市组成的世界级城市群,是中国开放程度最高、经济活力最强的区域之一。
区域聚集了粤港澳大湾区最震撼的滨海景观、最高标准的市政规划、最具影响力的企业总部、最顶级的居住圈层。深圳湾堪称“粤港澳大湾区皇冠上那颗最璀璨的明珠,是深圳未来实现“世界标杆城市”终极梦想的先锋代表
项目位于深圳湾核心区域-后海片区,后海片区是中国总部企业最为密集的区域之一,吸引了约80家如腾讯、阿里、华润、联想、中海油等知名企业总部竞相入驻,主打总部经济、科技创新和金融服务。
区域聚集了粤港澳大湾区最震撼的滨海景观、最高标准的市政规划、最具影响力的企业总部、最顶级的居住圈层。深圳湾堪称“粤港澳大湾区皇冠上那颗最璀璨的明珠,是深圳未来实现“世界标杆城市”终极梦想的先锋代表!
海陆空轨国际化四维交通 速达全球
距离2号线海月站约200米;
片区依托三纵四横道路交通及深圳湾关口约200米,实现深港链接;25分钟可达香港中环、香港国际机场;并且依托沿江高速可快速到达广州、珠三角等地。
①顶级商业配套
仅需5分钟便可抵达占地11万平方米的宝能allcity购物中心。与香悦里和天虹商业区的直线距离均不超过1公里。
②顶级人文配套
位于深圳湾豪宅区核心之地,北接后海总部经济群,南邻深圳湾口岸,坐拥一线海景资源,楼下中心河及深圳湾公园。
15公里滨海休闲长廊|深圳湾文化广场|深圳湾大街|深圳歌剧院
③全龄国际教育 医疗服务
深圳湾中小学, 楼下就是幼⼉园和南⼭外国语⾼中;
南山区新房均价高居全市各区之首,而深圳湾片区更是南山区高端豪宅最密集、市政规划最超前、居住环境最优的片区,这里汇集了深圳湾1号,华润深圳湾,恒裕滨城,宝能太古城,卓越维港等深圳最顶级的豪宅。
并且片区内可开发用地几乎全部是企业自持的办公总部用地,我们项目作为深圳湾稀缺绝版小户型住宅,是低门槛入住深圳湾“亿级”豪宅圈层的最后机会。
【全屋收纳 空间利用高效】
根据户型专属定制玄关柜、卫生镜柜、橱柜:
精准适配空间与需求,多元收纳、高效整理于一体,重塑入户精致体验
【臻装品质 国际一线品牌】
东芝/日立、施耐德、林内、西门子、TOTO、科勒等
低门槛 高实用率 精装交付小两房
户型鉴赏
深湾华府‼️
温馨提示:感兴趣的朋友欢迎来电预约前往参观,享受一对一专属VIP看房服务,享受开发商内部额外最低优惠折扣和大额现金购房补贴。
本项目推广名为“深湾华府",官方电话:400 835 2501本资料为要约邀请,不作为要约或承诺。以上所发布的关于楼盘相关图文信息仅供您买房前参考,以上所有关于本楼盘的图文资料及说明请以最终以项目批文及双方在楼盘营销中心现场签署的买卖最终合同为准;
声明:本文由入驻焦点开放平台的作者撰写,除焦点官方账号外,观点仅代表作者本人,不代表焦点立场。
