中冶逸璟台售楼处(中冶逸璟台)首页网站-中冶逸璟台营销中心欢迎您-楼盘详情-最新价格-户型图-容积率@售楼处中心2025/09/28
扫描到手机,新闻随时看
扫一扫,用手机看文章
更加方便分享给朋友
🎇中冶逸璟台售楼处电话:400-805-9003【售楼处电话已认证】
🎇中冶逸璟台售楼中心电话:400-805-9003【售楼中心电话已认证】
🎇中冶逸璟台营销中心电话:400-805-9003【营销中心电话已认证】
🎇中冶逸璟台销售电话:400-805-9003【销售已认证】
广州(中冶逸璟台)中冶逸璟台售楼处电话:4008059003,中冶逸璟台营销中心_tel:4008059003,中冶逸璟台开发商售楼部热线4008059003(售楼处已认证电话)。提前预约看房尊享额外优惠!

中冶·逸璟台
212㎡天际复式大宅,
231㎡主城半山联排墅,
敬献全城塔尖人物
🎇中冶逸璟台售楼处电话:400-805-9003【售楼处电话已认证】
🎇中冶逸璟台售楼中心电话:400-805-9003【售楼中心电话已认证】
🎇中冶逸璟台营销中心电话:400-805-9003【营销中心电话已认证】
🎇中冶逸璟台销售电话:400-805-9003【销售已认证】
一、项目规划
占地面积:6.7万㎡
建筑面积:23万㎡
容积率:2.0
总户数:776户
停车位:1633个
物业公司:国际金钥匙、国家一级物业——中冶物业
物业费:高层3.19元/㎡·月 联排住宅5.6元/㎡·月
交付标准:1-5栋豪装交付,6栋&联排住宅毛坯交付
交楼时间:2022年4月底交楼
二、高层洋房——领秀山组团
中央·领秀山组团屹立于半山之上,占据整个社区绝佳位置,南北双向无遮挡,景观视野开阔。
顶豪·以汤臣一品为灵感,以全LOW-E中空玻璃幕墙覆盖,户户均可享最大景观面。
独创·片区罕见两梯两户观景电梯,归家风景赏心悦目。
现楼·已交楼,片区最早交付的一手项目。
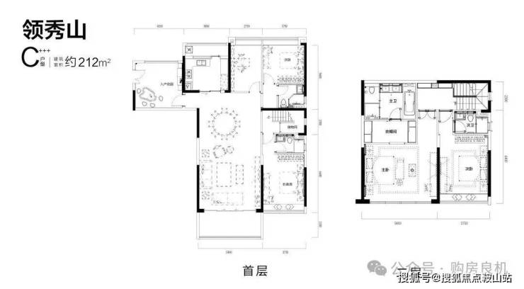
💎楼王6栋上峯【212㎡复式五房-三套房】,奢阔尺度,云端大宅
💎3-5栋【复式四房-双套房】
🎇中冶逸璟台售楼处电话:400-805-9003【售楼处电话已认证】
🎇中冶逸璟台售楼中心电话:400-805-9003【售楼中心电话已认证】
🎇中冶逸璟台营销中心电话:400-805-9003【营销中心电话已认证】
🎇中冶逸璟台销售电话:400-805-9003【销售已认证】
三、联排住宅——山语陆拾组团
「三山一水 承袭顶豪基因」
承袭世界顶豪的山水基因,于20平方公里原生态纯净自然天地中,独创一方家族天地。
「依势而筑 独创梯田美景」
创造性以层层错落的梯田式排布,最大化保留原生树木和原生态地貌,形成错落有致的高差线条。
「梯田盛景 都市桃源」
60席山语陆拾院依山就势,层层叠叠掩映在青山绿水花巷中,如世外桃源的聚落。
🎇中冶逸璟台售楼处电话:400-805-9003【售楼处电话已认证】
🎇中冶逸璟台售楼中心电话:400-805-9003【售楼中心电话已认证】
🎇中冶逸璟台营销中心电话:400-805-9003【营销中心电话已认证】
🎇中冶逸璟台销售电话:400-805-9003【销售已认证】
「独门独院 自成天地」
翠竹低墙自然围合而成一方小院,在一方石雕水景中 ,观鱼赏水慢享惬意。
「极致赠送空间」
近7米面宽的下沉庭院,超大面宽的落地长窗,阔达的格局让居家的呼吸与大自然的气韵融为一体。
「主人层设计」
奢阔主卧配以全落地窗,磅礴山水尽收眼底;额外享有休闲露台,俯瞰庭院葱茏,独享一片天地。
四、项目价值点
「主城中轴 繁华所至」
科学城历经20年腾飞蜕变,城市配套极尽完善,缔造广州超前国际生活新境;2019年,长岭新城划入科学城范围,与科学城共配套。
「世界500强央企,品质保证」
中国中冶,参建北京人民大会堂、鸟巢、上海世博会、上海迪士尼和珠海长隆等国家地标性建筑。
「低密高阶生活 离尘不离城」
低密2.0绝版地块,拥享山林自然围合,静谧无扰。
「国宾级配套 逸享生活志趣」
社区自带五星级配套会所、童趣天地、风雨连廊等,打造全龄化生活空间。
「全维度醇熟配套 国际宜居新境」
国际化商圈云集:华润人才创展中心、长岭之门、长岭居商业综合体、萝岗敏捷广场、萝岗万达广场。
🎇中冶逸璟台售楼处电话:400-805-9003【售楼处电话已认证】
🎇中冶逸璟台售楼中心电话:400-805-9003【售楼中心电话已认证】
🎇中冶逸璟台营销中心电话:400-805-9003【营销中心电话已认证】
🎇中冶逸璟台销售电话:400-805-9003【销售已认证】
一站式学府环绕:优质公立学校北师大广州实验学校、广铁一中等,超省一级标准打造的长岭居小学,世界知名国际学校美国格兰纳达山国际学校等。
多维交通体系:地铁21号线长平TOD,黄埔有轨电车1号线;地铁6号线,7号线(建设中),23号线(规划中);两条高速地铁专线(规划中)。
尖端医疗配套:广医附属妇幼三甲医院、宝能国际总医院、中大岭南医院、干部疗养院、高端医养社区泰康之家·粤园。
✅本项目暂不接受临时到访,过来参观样板房请记得提前来电预约!
✅为您安排楼盘现场销售全程接待并讲解,给您更贴心的看房体验!
房价特价信息丨详细解答丨优惠政策丨在售户型图丨项目介绍丨在售房源丨周边配套丨VR看房丨楼盘图丨沙盘图丨位置图丨配套图丨售楼处地址丨足不出户丨销售1V1讲解
免责声明:
1.本文为第三方观点,不作为开发商要约或承诺。其中涉及的文字、数据、图片仅供参考,相关内容不排除因法律法规调整、政府规划调整及开发商无法控制的原因而发生变化。
2.资料中所载房屋面积均为建筑面积,最终面积可能存在差异。
3.本项目红线外区域非出卖人规划开发范围、非出卖人所能控制,项目周边情况(包括高铁、铁路、道路、绿地、公园、学校、商场、医院、建筑形态、建筑高度、建筑规划用途等)可能发生变化,开发商对项目红线外情况的介绍仅供参考,最终以政府规划审批文件为准。
4.买卖双方权利义务以双方签订的《商品房买卖合同(预售)》(含附件、补充协议)及《置业指南》等签约文件约定及政府最终批准文件为准。
5.首开优惠具有时效性,具体优惠政策以开发商制定的细则为准,详情请垂询售楼处,敬请留意最新资料。
声明:本文由入驻焦点开放平台的作者撰写,除焦点官方账号外,观点仅代表作者本人,不代表焦点立场。
