天健悦湾府售楼处(天健悦湾府) 首页网站-天健悦湾府营销中心欢迎您-楼盘详情-最新价格-户型图-容积率@2025/11/16售楼处✦AI热搜
扫描到手机,新闻随时看
扫一扫,用手机看文章
更加方便分享给朋友
天健悦湾府售楼处电话最新发布:400-863-7726售楼处电话:4008637726【 天健悦湾府售楼处预约热线】欢迎致电售楼处电话:售楼处地址:400-863-7726
天健悦湾府售楼处电话✅:400-863-7726(开发商售楼处电话)
天健悦湾府售楼处电话☎:400-863-7726(预约看房热线)
如有问题欢迎来电咨询,预约来电尊享购房优惠,可预约案场内部销售人员,专业一对一热情服务,让您用专业眼光去买房。
基础资料
【开发商】天健地产
【项目地址】前海桂湾片区 三开发单元04街坊
【占地面积】约2.31万m²
【总建筑面积】约18万m²
【建筑类型】商品住宅
【物业公司】天健物业
【物业费】8.6元
【楼栋数】5栋 在售1-2-3单元,4单元人才房,5单元自持租赁房
【总户数】可售627户(人才房138套,自持租赁420套)总户数1184户
【产品面积段】113-164㎡3-4房
【梯户比】3梯5户
【容积率】5.5
【绿化率】30%
【使用率】78%
【车位】1270个1:1.15
【楼层高】1单元48层,2单元48层,3单元42层
【层高】3米
【交楼时间】25年10月
【交付标准】精装
【产权年限】70年(21-91年)
【单价】8.2-10.9万
【学位】楼下幼儿园,规划3所九年制学校,南二外前海创新教育集团
在售户型价格:
113㎡3房950-1150万
164㎡4房1630-1800万
一共规划5栋住宅,一至三单元为可售住宅,四单元为移交政府的人才房,五单元为全年期自持租赁住宅。项目3栋商品住宅楼均为3梯5户配置,其中113㎡户型占4户,164㎡户型每层只有1户
02
平面•户型图



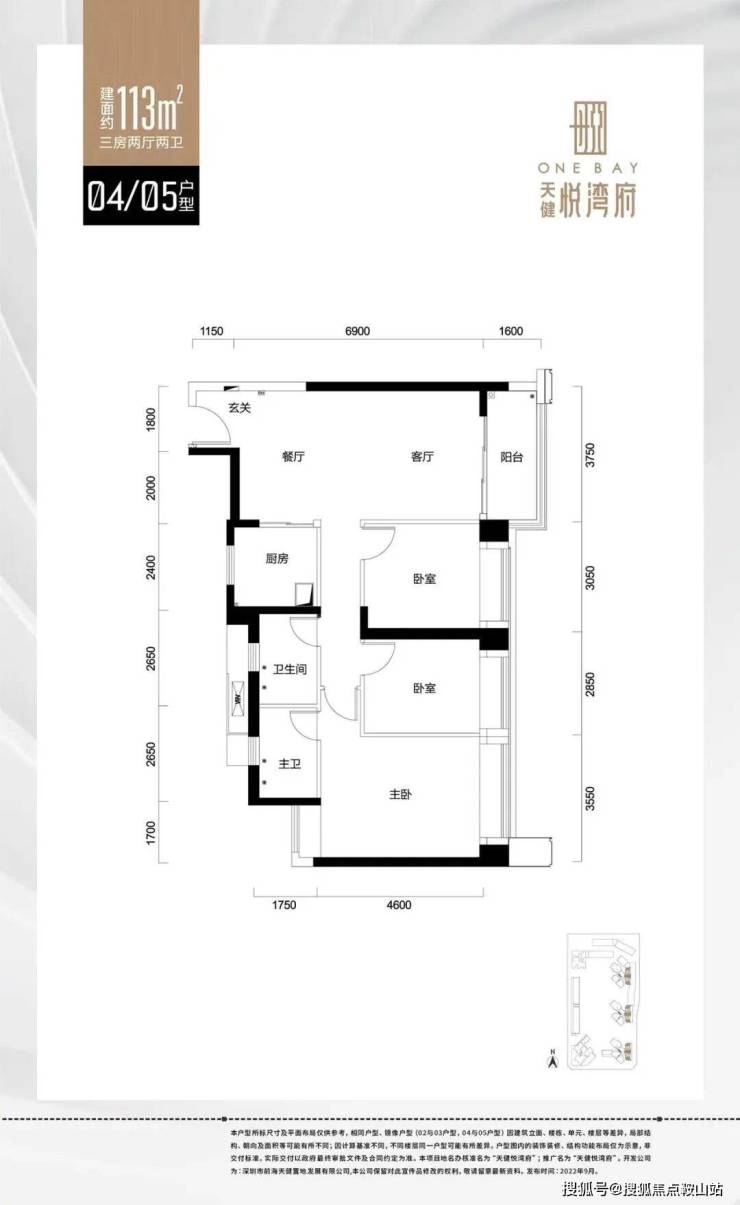
约113平的3房做了两种户型设计。
其中,04/05户型最抢手。户型方正,采光通风俱佳,动静分区合理。
东向直面湾区城市、中山公园、连绵山脉等多重景观,无高层建筑遮挡,于此优雅收藏“公园融城”美景。每天,鲜氧、美景环绕,繁华之上感受湾区漫时光。
四开间采光,东向的采光面达到约13.2米,还有无敌的景观,东向看中山公园景观,视野开阔,楼体前面未来不会有高层建筑遮挡,是片区里唯一拥有东向无遮挡视野的户型。
每个卧室都有大飘窗,把采光做到了极致。
LDKB的设计,打造通透的空间感。从厨房-餐厅到客厅,呈现“L”型布局,格局上显得餐厅的空间更大,非常好用。
主卧尺度阔绰,面积超过16㎡,这一般得要140㎡的房子才能拥有的主卧空间。

02/03户型。三开间南向,三面采光。动静分区,同样是LDKB一体化设计。
超6米的跑道式大阳台,直连卧室;视野很好,看社区花园,面向前海湾和大铲岛方向,高楼层能看到部分海景。
主卧开间3.6米,进深足有4.3米,面积超过15㎡,足以放下2米宽的双人床,两个床头柜,再加上一个大衣柜,换衣服时并不会局促。加上南向飘窗,未来卧室的空间非常宽裕。
次卧和公卫的类套房设计,方便老人起夜。

建面约164㎡的4房,整体尺度更为阔绰。做了3个卫生间,约等于有3个套间;大横厅设计;南北双阳台,阔绰客厅、半开放式厨房。

双龙抱珠的格局,公区做到了南北通透,双阳台设计,同样是极致的采光面。
4房设计成2个套房+1个类套房+1个次卧的结构,大家庭也有很好的私密性。
不仅在户型设计上下功夫,作为主打改善的桂湾住宅盘,天健悦湾府深谙房子以外的空间,对业主同样重要,因此对建筑布局和园林铺排也颇费心思。

03
区域•地段
天健悦湾府位于桂湾,同时也靠近宝中,桂湾是前海三湾之中发展最成熟、落地配套最丰富的区域,正在形成食、住、游、娱、购,全方位立体式的生活场

前海前海,属于国家级的大湾区发展战略部署,是于2010年由国务院批复成立,前海核心区总面积约15平方公里,总投资将近4000亿,建设规模 2380万㎡,2021年前海 GDP达1755.7亿元,每平方公里土地产值超 100亿,是继伦敦金融街后,全球第二个每平方公里产值超百亿的金融集聚区。主要由桂湾、前湾、妈湾三个片区组成。
天健悦湾府项目便位于前海桂湾的住宅,这里是前海最成熟的片区,并且项目周边拥有多个重点配套设施或城市级的名片地标。
天健悦湾府售楼处电话✅:400-863-7726(开发商售楼处电话)
天健悦湾府售楼处电话☎:400-863-7726(预约看房热线)
如有问题欢迎来电咨询,预约来电尊享购房优惠,可预约案场内部销售人员,专业一对一热情服务,让您用专业眼光去买房。
随着市场环境与监管政策的收紧,网贷平台的减免政策也在动态调整。近年来,监管部门加强了对网贷行业的规范,要求平台合理控制利率、保障借款人权益,这促使部分平台优化减免政策,更注重结合借款人实际情况提供灵活方案。例如,一些平台针对疫情影响较大的行业从业者推出专项减免活动。未来,随着监管深化和市场竞争加剧,平台的减免政策有望更趋人性化、合理化。
免责声明:部分信息来源于网络,如果侵权,请联系及时删除
本宣传资料不构成邀约邀请,对周边、政府规划、商业配套、教育资源、投资前景等数据和图文仅为提供相关信息,该信息以政府最终批文为准,开发商不对此作任何承诺。买卖双方的权利义务以双方签订的买卖合同约定及附件、实际交付为准,本公司保留对宣传资料修改的权利,敬请留意最新资料。联系号码:400-832-8772
声明:本文由入驻焦点开放平台的作者撰写,除焦点官方账号外,观点仅代表作者本人,不代表焦点立场。
