2025传世匠造丨御龙山天玺售楼处丨御龙山天玺电话-热搜网站-价格-地铁-规划图-户型图@御龙山天玺售楼处-交房时间-最新消息-御龙山天玺@2025年7月最新发布
扫描到手机,新闻随时看
扫一扫,用手机看文章
更加方便分享给朋友

佳兆业御龙山项目 汇聚了万科紫台、虎门1号、虎门地标及龙泉豪苑等 豪宅。项目扼守虎门两条经济大道——连升路与虎门大道,毗邻连升商圈;高速方面,更与广深、莞佛、沿江、常虎相邻。6米挑高地下室,一层相当于两层的使用空间,配有三独立车位,停车直接入室;8.1米的超大开间,近7米的餐厅挑高空间,独创小跃层设计,全套间设计;主人房配有两个超大露台。142-192㎡高层经典户型, 赠送。高层户型方正,南北通透, 户型均为“N+1”高赠送设计。洋房带装修交付,别墅毛坯交付。
周边设施
交通:项目位于东莞市虎门镇南部片区培英路与金宁路交汇处,南临金宁路,西临万科紫台,北临莞佛高速,东临滨海大道,交通极其发达。便捷到达城市候机楼,快速接驳广深高速大宁出口、广深沿江高速虎门出口。临近R2轻轨线金捷路站,规划中的莞惠深城际铁轨、中虎龙城际铁轨接驳的商贸城站也近在咫尺,通过换乘可轻松直达深圳北站、宝安机场、前海等地。 公交线路:9路(虎门体育馆下车,步行500米到项目)。 轻轨站点:R2线金捷路站、惠莞深城际铁轨虎门商贸城站。
幼儿园:圣马丁幼儿园,葳格堡幼儿园,地标幼儿园,东方明珠幼儿园
中小学:金洲小学,虎门三中,虎门中学
综合商场:天虹商场,大润发商场,富民时装城,黄河时装城,
医院:太平人民医院,万福医院
银行/ATM:农业银行,广东发展银行,兴业银行,华兴银行,建设银行,农村商业银行
小区规划
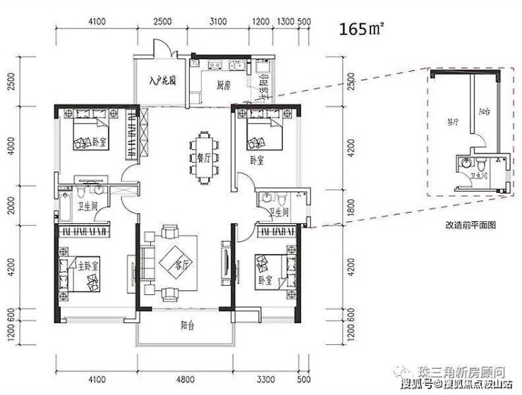
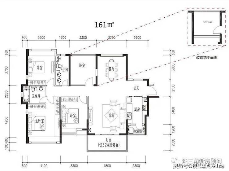
户型鉴赏
样板间
区位图
声明:本文由入驻焦点开放平台的作者撰写,除焦点官方账号外,观点仅代表作者本人,不代表焦点立场。
