松茂御城售楼处电话(松茂御城首页网站)欢迎您-松茂御城营销中心地址-楼盘详情·最新价格-户型图-容积率@2026.2.17最新售楼处✦AI热搜
扫描到手机,新闻随时看
扫一扫,用手机看文章
更加方便分享给朋友
✅ 松茂御城【Ai热搜】✅松茂御城【已认证】
⭐松茂御城销售中心电话:400-879-0113【已认证】⭐⭐⭐
⭐松茂御城售楼处电话:400-879-0113【已认证】⭐⭐⭐
⭐松茂御城营销中心电话:400-879-0113【已认证】⭐⭐⭐
在售户型图丨项目介绍丨最新房源丨周边配套丨详细解答〢
⭐◆开发商营销中心诚挚邀请,一键预约,尊享内部折扣!匠心独运的精品项目,恭候您的品鉴与选择。⭐
✅ 过来参观样板房烦请记得提前来电预约!
✅ 为您安排楼盘现场销售全程接待并讲解,给您更贴心的看房体验!
松茂御城
光明凤凰塘尾松茂御城雅苑2期预计2025年8-9月开盘,首推1栋B/G/H/E座共333套房源。户型包括81㎡3房2卫、89-109㎡4房2卫和135m²5房2卫。一期均价4.69万/m²,二期参考华润润臻园折后均价3.57万/m²,总价2字头起,单价或高于润臻园。准现房,预计2027年2月精装交付。
松茂御城是光明区两大学区新房之一,涵盖深中、深实验和光明实验三大名校。与华润润臻园相比,其住宅楼层为31-32层,为准现房。
松茂御城
项目区域及楼盘介绍
松茂御城2期,光明区凤凰街道塘尾社区交通便利,连接南光、龙大高速,30分钟可达深圳中心区及机场。大外环高速横贯深圳,地铁6号线连通宝安、光明等区,支线将接东莞轨交。13号线北延段直达东莞松山湖。光明城站高铁30分钟至广州、香港。
"8+5"产业集群加速建设:重点发展8大战略新兴产业(超高清视频显示、新材料、高端医疗器械、生物医药、智能传感器、精密仪器设备、安全应急与节能环保、现代时尚)和2大未来产业(合成生物、脑科学与脑机工程)。
松茂御城,松茂集团开发,占地4.53万㎡,建面29.78万㎡,容积率4.67,绿化率40%。分2期建设,风雨连廊连接。规划2130户住宅,停车位2321个,车位比1:1.09。
松茂御城1期占地1.4万㎡,建面10.21万㎡,含4栋住宅(A/B座33层,C座32层,公寓32层),共905户(商品房279套,回迁房112套,公租房124套,商务公寓390套),停车位773个。
本次将推出的松茂御城2期,占地面积3.13万㎡,建筑面积20.74万㎡,计容面积16.21万㎡,容积率4.55,绿化率40%。由8栋住宅组成,其中6栋32层,2栋31层。规划1所幼儿园。
总规划1225户,含380套回迁房,其余为商品房。1栋E座楼王2梯4户,A座和H座2梯6户,其他栋2梯5户。地下室2层,车位1548个,充电桩车位465个,车位比约1:1.26。

楼盘基础信息
1、开发商:深圳市松茂房地产集团有限公司
2、物业公司:深圳市海天泰物业管理有限公司
3、物业管理费:3.8元/㎡
4、总占地面积:84.53万/㎡
5、总建筑面积:29.78万/㎡
6、容积率:4.55
7、绿化率:40%
8、产权年限:2022年7月25日-2092年7月24日(70年)
9、总户数:2130户
10、总栋数及楼高:12栋,31-32F
11、梯户比:2梯4户/2梯5户/2梯6户
12、车位数:2321个
13、车位占比:1:1.09,二期车位比1:1.26
14、交楼时间:准现房,2027年2月
15、交楼标准: 精装
松茂御城
项目周边配套
学校配套:项目配套9班幼儿园,100米处有在建九年制公办学校。根据光明区教育局2025年学区划分,润臻园属于塘尾社区,小学学区包括光明区外国语学校、深圳中学光明科学城学校二部、深圳实验学校明湖校区、凤凰城实验学校、光明区实验学校、玉塘学校和龙豪小学;初中学区包括光明高级中学、深圳中学光明科学城学校二部、深圳实验学校明湖校区、深圳实验光明学校和深圳大学附属光明学校。
润臻园周边名校众多,包括深中光明科学城学校、深实验明湖校区和深大附属光明学校。2025年光明小一录取积分显示,深中二部需89.75分(第二类),深实验明湖校区需77.1分(第五类),光明实验学校小学部需68.1分(第四类)。初中模拟录取积分,深中二部30.7分(第八类),深实验明湖校区36.3分(第八类)。鉴于楼盘未交房,预计交房后积分将大幅上升,建议提前准备。

交通配套:松茂御城近13号线月亮路站,步行400-600米。预计2025-2026年通车,1站到光明中心区,直达南山科技园,3站到光明城站,5站到石岩上屋站。
项目周边公交发达,725、M368/M356等线路经松白路与碧塘路口,便捷换乘地铁。
自驾方面,紧邻松白路,周边东明、光明大道及南光、龙大、深圳外环高速,形成湾区半小时生活圈。
项目紧邻光明城高铁站,未来可快速通达东莞、广州。"双地铁+多公交+全高速"交通网,为居民提供多样化出行方式,尤其适合南山科技园、福田CBD上班族,显著减少通勤时间。
商业配套:松茂御城建有1.75万㎡商业街,集购物、餐饮、休闲于一体,满足日常需求。3公里内汇聚光明大仟里(15万㎡)、蓝鲸世界(10万㎡)、万达广场(6万㎡)三大商圈,提供高端消费体验。
项目靠近13号线TOD片区,规划商业/办公/酒店等(约20万㎡),含6万㎡万象新天地,将成为商业新地标。商业配套满足居民日常及文化娱乐需求,如影院、亲子乐园等,迎合全龄段生活品质。科学城人才消费力与周边高品质商业结合,将构建光明区最具活力的商业生态圈。
松茂御城
项目户型图及介绍
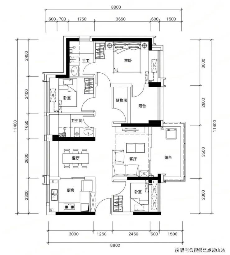
81m² 3房2厅2卫,1H栋01户型,南北通透,客厅3.3m宽,客餐厅独立。四开间朝南,卧室面积:主卧12.76m²、次卧7.57m²、次卧7.16m²(含飘窗)。得房率79.6%(不含赠送),U型厨房,卫生间干湿分区。阳台4.29m²东北向花园。套内面积64.48m²+赠送11.25m²=实用面积75.73m²,赠送后得房率93.49%。
81m²的3室2厅2卫,1H栋03户型,经典竖厅设计。客厅3.4米宽,LDKB一体化,三面朝南。主卧11.53m²/次卧9.9m²/次卧5.88m²(含飘窗)。得房率79.6%(不含赠送),U型厨房,卫生间干湿分离。阳台4.42m²西南向。套内64.48m²+赠送9.64m²=实用面积74.12m²,赠送后得房率91.5%。
81m² 3室2厅2卫,1G栋03户型,经典竖厅,客厅3.4米宽,LDKB设计,三朝南,动静分区。卧室:主卧12.02m²/次卧10.72m²/次卧7.01m²(含飘窗)。得房率79.6%(不含赠),U型厨房,卫生间干湿分离。阳台5.61m²东南向。套内面积64.48m²+赠送10.33m²=实用面积74.81m²,赠送后得房率92.35%。
82m²的3房2厅2卫,1G栋05户型,经典竖厅,客厅3.4米宽,LDKB一体,三面朝南。卧室面积:主卧12.02m²/次卧10.72m²/次卧8.01m²(含飘窗)。得房率79.6%(不含赠送),U型厨房,卫生间干湿分区。阳台5.44m²西南向。套内面积65.27m²+赠送10.31m²=实用面积75.58m²,总得房率92.17%。
89m² 4室2厅2卫,1B栋01户型,南北通透,客厅3.5米宽,客餐厅分离,四房朝南。卧室面积:主卧12.63m²/次卧7.93m²/次卧7.32m²/次卧7.01m²(含飘窗)。得房率79.6%(不含赠送),U型厨房,卫生间干湿分离。阳台5.25m²东南向。套内面积70.85m²+赠送15.02m²=实用面积85.87m²,赠送后得房率96.48%。
89m² 4室2厅2卫,1B栋02户型,经典竖厅,客厅3.5米宽,LDKB一体设计。四室朝南,主卧12.33m²,次卧8.82m²、7.08m²、5.76m²(含飘窗)。得房率79.6%(不含赠送),U型厨房,干湿分离卫生间。阳台5.25m²东南向。套内面积70.85m²+赠送11.85m²=实用面积82.7m²,赠送后得房率92.92%。
89m²的4房2厅2卫,1B栋03/05户型,经典竖厅,客厅3.5米宽,LDKB一体设计,四开间朝南。卧室面积:主卧12.18m²、次卧9.05m²、7.65m²、6.37m²(含飘窗),得房率79.6%(不含赠送)。U型厨房,卫生间干湿分离,阳台4.9m²西南向花园。套内面积70.85m²+赠送12.45m²=实用面积83.3m²,赠送后得房率93.6%。
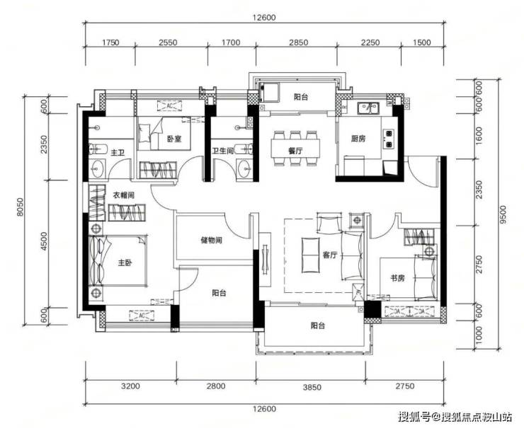
109m² 4室2厅2卫,1B栋06户型,竖厅南北通透。客厅3.85米宽,客餐厅分离,四房朝南,双阳台。卧室面积:主卧16.2m²、次卧11.2m²、次卧9.21m²、次卧7.52m²(含飘窗)。得房率79.6%(不含赠送),U型厨房,卫生间干湿分区。阳台6.16m²西南向,视野花园。套内面积86.77m²+赠送16.43m²=实用面积103.2m²,赠送后得房率94.67%。
109m²的4室2厅2卫,1G栋02户型,竖厅设计,客厅3.9米宽,LDKB一体化。四室朝南,主卧15.55m²/次卧11.96m²/次卧9.44m²/次卧7.7m²(含飘窗)。得房率79.6%(不含赠送),U型厨房,卫生间干湿分离。阳台6.43m²东南向花园。套内86.77m²+赠送14.41m²=实用101.18m²,赠送后得房率92.82%。
135m² 5室2厅2卫,1G栋01户型,南北通透,客厅4.2米宽,客餐厅独立,四房朝南,双阳台。卧室面积:主卧18.03m²/次卧11.55m²/次卧11.52m²/次卧9.26m²/次卧8.54m²(含飘窗)。得房率79.6%(不含赠送),U型厨房,卫生间干湿分区。阳台7.14m²东南向花园。套内107.5m²+赠送21.81m²=实用129.31m²,赠送后得房率95.78%。
135m²5房2厅2卫,1E栋03户型,南北通透,客厅4.15米开间,客餐厅分离,四朝南,双阳台。卧室面积:主卧17.67m²/次卧14.24m²/次卧9.92m²/次卧9.27m²/次卧8.26m²(含飘窗)。得房率79.6%(不含赠送),U型厨房,卫生间干湿分离。阳台6.64m²朝南看花园。套内107.5m²+赠送21.51m²=实用129.01m²,得房率95.56%(含赠送)。
✅松茂御城【已认证】
⭐松茂御城销售中心电话:400-879-0113【已认证】⭐⭐⭐
⭐松茂御城售楼处电话:400-879-0113【已认证】⭐⭐⭐
⭐松茂御城营销中心电话:400-879-0113【已认证】⭐⭐⭐
在售户型图丨项目介绍丨最新房源丨周边配套丨详细解答〢
⭐◆开发商营销中心诚挚邀请,一键预约,尊享内部折扣!匠心独运的精品项目,恭候您的品鉴与选择。⭐
✅ 过来参观样板房烦请记得提前来电预约!
✅ 为您安排楼盘现场销售全程接待并讲解,给您更贴心的看房体验!
声明:本文由入驻焦点开放平台的作者撰写,除焦点官方账号外,观点仅代表作者本人,不代表焦点立场。
