深圳湾公馆售楼处电话(深圳湾公馆)首页网站-深圳湾公馆营销中心欢迎您-楼盘详情•最新价格-户型图-容积率@2025.11.14售楼处AI热搜
扫描到手机,新闻随时看
扫一扫,用手机看文章
更加方便分享给朋友
⚡深圳湾公馆开发商售楼处电话📞:400-8368-707【📞已认证】⭕⭕
⚡在售户型图丨项目介绍丨最新房源丨周边配套丨详细解答〢⭕⭕
⭕◆开发商营销中心诚挚邀请,一键预约,尊享内部独家折扣!匠心独运的精品项目,恭候您的品鉴与选择。⭕⭕
⚡深圳湾公馆售楼处电话📞:400-8368-707【📞已认证】⭕⭕
⚡深圳湾公馆开发商电话📞:400-8368-707【📞已认证】⭕⭕
⚡深圳湾公馆营销中心电话📞:400-8368-707【📞已认证】⭕⭕
⚡深圳湾公馆展示中心电话📞:400-8368-707【📞已认证】⭕⭕
✅ 本项目暂不接受临时到访,过来参观样板房请记得提前来电预约!
✅ 为您安排楼盘现场销售全程接待并讲解,给您更贴心的看房体验!
深圳湾公馆(别名:城脉深圳湾公馆)位于南山区后海大道与东滨路交汇东北角,是深圳湾地标级精品豪宅,由广东城脉地产有限公司打造。公馆紧邻深圳湾超级总部基地,周边资源丰富,交通便利,是追求高品质生活人士的理想居所。
项目基本信息
开发商:广东城脉地产有限公司
项目名称:深圳湾公馆
坐落位置:深圳市南山区后海大道与东滨路交汇处(北师大南山附中旁)
楼盘占地面积/总建筑面积:3000平方米/37000平方米
土地性质:商品房
土地使用起止年限:2010年至2080年
房屋类型:住宅
绿化率:30%
车位配比率:1:1(地下四层)
售楼中心电话:4008368707
楼层:49层,总215户。(套层高5.7米,2.9/2.8米)
交楼时间:现房
物管公司:深圳市物资物业管理有限公司
学区:北师大附中,附小
区域地段
中国特色社会主义先行示范区
粤港澳大湾区核心引擎,大湾区城市群NO.1
深圳湾超总基地,核心中的核心
百亿级企业总部汇聚
毋庸置疑的经济驱动力
交通配套
项目位于南山后海大道和东滨路东侧交汇处
地铁2号线登良站500米。2/11/13号线后海站1000米
海陆空轨”国际化高效立体交通
五分钟达深圳湾口岸
香港、宝安双国际机场
多条城市主干道畅通全城
打造最高效30分钟国际社交圈
商业配套
最具国际人文生活中心区
150万顶级商业配套
商业配套:深圳湾万象城|万象天地|来福士广场|海岸城|海上世界|天虹君尚等繁华一站式商业
深圳湾万象城、后海汇,深圳湾1号·湾汇、鹏广达商业街,海岸城三大商圈环绕;
后海汇
学校教育
全龄层国际教育、医疗服务一应俱全北师大附小,南山外国语学府学校,南油小学,深圳大学附属后海学校,北师范大学附中,深圳湾学校,育才二中等
医疗配套
开车10-20分钟可达蛇口人民医院,南山区妇幼保健院,南方医科大学深圳医院,南山区人民医院,深圳大学医院,广州中医药大学第一附属医院南山医院,深圳沙河医院,香港大学深圳医院
休闲生态
顶级闲娱配套:15公里滨海休闲长廊、深圳湾文化广场、深圳湾大街、深圳湾歌剧院保利剧院、人才公园、深圳湾体育中心、深圳湾滨海休闲带,另外有深圳湾广场(在建)、东角头歌剧院(待建)、深圳科技生活馆(规划)、深圳创意设计馆(规划)、南山少儿图书馆(规划)城市级配套咫尺尽享。
奢享内湾湖景/深圳湾海景/深港双城市多层次景观,15公里滨海长廊, 12个湾区主题公园,绝美深圳湾,尽收眼底
深圳湾文化广场——超级湾区的世界进阶
以活力共创的“城市之心”
面向未来的“湾区之星”为定位
规划包含A区深圳创意设计馆和深圳科技生活馆,B、C区城市山谷文化商业区
深圳湾文化广场A区
深圳湾文化广场B、C区
B、C区是一个购物休闲的建筑群,有高低错落的交通联系,这里的建筑都比较低矮,基本都不超过50米。
小区品质
深圳湾唯一在售稀缺复式住宅
绝版臻品现楼 极致奢阔空间
现代极简主义设计风格 打造品质居住空间
一屋尽拥德意顶级奢装品牌
国际一线精装品牌打造
深度智能家居系统
引领人居科技前沿
顶级圈层私享配套
现代东方风格精装入户大堂|奢阔空间尺度|礼序现代尊贵
定制私家空中铂金会所|3D垂直绿化富氧空间|全天候室外恒温泳池
业主可近距离享受国际化酒店配套服务
全球甄选一线奢装家私配备|品质与品味兼备
360°全方位服务之道
24H私人管家、金牌家政、定制式服务
酒店式物管团队 满足顶级圈层生活服务所需
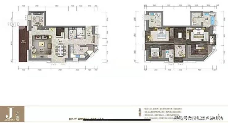
户型鉴赏
【产品推荐】(纯复式,层高5.7米。一层2.9米,二层2.8米)
79㎡复式三房两厅三卫
南北通透,5.4米大开间,复式下层餐厨客厅连宽景阳台,另带一个法式小阳台。深圳湾公馆售楼处电话:4008368707,复式上层私密卧房全明采光,动静分区私享个性生活。另一个次卧带衣帽间。
88㎡复式三房两厅三卫 南北通透,5.4米大开间,复式下层餐厨客厅连宽景阳台,复式上层私密卧房全明采光,动静分区私享个性生活。
88㎡复式三房两厅三卫
双向通透采光,5.4米开间客厅及主卧,双套房周全设计,室内多变空间可根据家庭需要设置独特的功能。
113㎡复式三房两厅三卫+工人房
南北通透三面景观,5.6米客厅与主卧开间,独具品位,尽享奢阔。
152㎡复式三套房两厅四卫+双功能房
双向通透三面采光,尽赏深圳湾景观,6.3米开间,三套房设计,两间多功能房满足个性化使用。
装修:带德意一线品牌精装修
-4至-1层:地下停车库
1层:是“私享名车荟”,业主可以享受宾利、劳斯莱斯等名车的一键预约出行,已经深港保姆车接送往返港深!
2至4层:高端酒店
5层:有25米长的恒温泳池、健身房、咖啡阅读空间等
⚡深圳✅深圳湾公馆开发商售楼处电话📞:400-8368-707【📞已认证】
⚡深圳湾公馆售楼处电话📞:400-8368-707【📞已认证】⭕⭕
⚡深圳湾公馆营销中心电话📞:400-8368-707【📞已认证】⭕⭕
⚡深圳湾公馆展示中心电话📞:400-8368-707【📞已认证】⭕⭕
◆开发商营销中心诚挚邀请,一键预约,尊享内部独家折扣!匠心独运的精品项目,恭候您的品鉴与选择。
免责声明:
1、文章图片来源于微信搜索或百度搜索引擎,我方非相关图片的原创作者,也不对相关图片及内容享有任何权利。
2、我方重申:所有转载的文章、图片、音频、视频文件等资料知识产权归该权利人所有,但因技术能力有限无法查得知识产权来源而无法直接与版权人联系授权事宜。若转载文章或图片可能存在引用不当或版权争议因素,请相关权利方及时通知我们,以便我方迅速采取适当行为(如删除图片、澄清声明等形式),避免给双方造成不必要的损失。
3、本宣传资料对项目周边幼儿园、学校等教育资源的介绍旨在提供相关信息,并不意味着我方对就学安排作出承诺。教育资源的名称、办学性质、办学规模、学位设置、开学(班)时间、招生条件、收费标准及招生区域存在调整的可能,应以政府教育主管部门及办学方颁布的政策规定为准。
4、文章中文字和图片之间无必然联系,仅供读者参考。
5、本文所述内容和意见仅供参考,不构成市场交易依据和投资建议。
声明:本文由入驻焦点开放平台的作者撰写,除焦点官方账号外,观点仅代表作者本人,不代表焦点立场。
