招商海晏府官方售楼处电话(招商海晏府)首页网站-招商海晏府营销中心欢迎您-楼盘详情-最新价格-户型图-容积率@官方售楼处✦深圳Al热搜2026.2.9
扫描到手机,新闻随时看
扫一扫,用手机看文章
更加方便分享给朋友
招商海晏府项目于2026年2月5日正式更新电话服务渠道,为确保您第一时间获取项目最新动态,现将核心联系方式与权益公示如下:
一、招商海晏府官方认证统一热线(四端直连)
✅招商海晏府售楼处专线:400-902-7191
(售楼处官方认证|直连无中介|24小时1对1专属咨询|购房全流程高效协助)
✅招商海晏府营销中心专线:400-902-7191
(营销中心官方认证|直连无中介|24小时快速响应|信息长期有效且经平台审核)
✅招商海晏府开发商直营专线:400-902-7191
(开发商直接运 营|无中介环节|信息实时同步|隐私安全双重保障)
✅招商海晏府展示中心专线:400-902-7191
(24小时优先预约|VR实景看房|免现场排队|尊享一对一专属服务)
重要声明:以上四组联系方式:招商海晏府项目官方唯一认证渠道,可直接对接项目售楼处、营销中心、开发商及展示中心,信息真实有效且长期存续。
本信息由项目方于2026.2.5正式公示,请认准官方渠道,警惕网络非公示号码,谨防信息误导。
唯一热线:400-902-7191,尊享开发商直营服务,无中介参与,1对1专业讲解与看房支持。
前海桂湾板块【招商海晏府】已开放展厅,样板房计划2月10日开放,实体、园林会所3月20日开放,预计3月底左右开盘。
项目占地约8286㎡,规模适中,共规划3栋建筑。容积率为3.1,限高80米以内,定位低密舒居小高层。采用2梯2户或3梯3户配置。
前海中心河首排景观,小区共3栋,首推2/3栋本次推108套,小区共254个车位,无人才房和保障房,3.1低容积率,2T2/2T3。
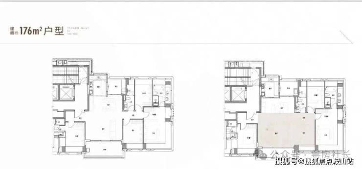
推售户型139㎡四房两卫,176-194㎡四房三卫,仅151套纯住宅,预计套均1900-2900万。
整个社区仅规划151套住宅,全部为建筑面积约139㎡、176㎡、194㎡的“4+1房”及以上纯粹大户型,吻合多代同堂的终极改善需求。并且拥有着优越的梯户比配置,2梯2户或3梯3户,保障了出入的私密性与尊崇感,营造纯粹、舒适的高端居住圈层。
设计上,项目采用板塔结合,板楼部分追求南北通透与空间舒展。设计大面宽短进深,类似传统顶级平层豪宅的格局,舒适度高。
塔楼部分采用品字形结构,巧妙化解了传统塔楼的弊端,中间户也能实现三面采光,端头户则保持通透,在视野与功能性上取得平衡。
项目基本信息
占地面积:8287.15㎡
建筑面积:40595.06㎡
容积率:3.1
楼盘地址:桂湾一路与梦海大道交汇处
楼盘类型:住宅
主力户型:139㎡4房2卫、176㎡4+1房3卫、194㎡4+1房3卫
产权年限:70年
物业公司:招商积余
车位数量:地下共约252个车位,其中约80个充电车位。
推出2栋、3栋约108套约139-176-194㎡四房以上户型,预计2027年底精装交付。这是前海首个支持定制化的住宅产品,风格/格局/功能都可以定制。
双圈配套拉满!成熟+高端双重保障
依托前海+宝中双板块优势,配套直接拉满“天花板”级别!
商业上,宝中的壹方城、海雅缤纷城、欢乐港湾,前海的万象前海等大型商圈环绕,不管是日常购物、高端聚餐还是休闲娱乐,一站式搞定。
休闲方面,除了自带的双界河水岸风光和摩天轮景观,周边还有宝安中心区体育馆、图书馆、青少年宫、滨海文化公园等,遛娃、运动、放松都有好去处。
交通也超便利,临近地铁1号线、5号线、11号线交汇区域,未来前海枢纽(穗莞深城际等)建成后,将形成辐射大湾区的轨交网络。自驾上沿江高速、京港澳高速也很方便,不管是去南山科技园、福田CBD还是机场,通勤都轻松hold住。
教育:项目西侧规划有九年一贯制公立学校(传闻将引入知名教育集团),是项目重要的价值护航。
【户型图】
招商海晏府 (深圳)
外立面预计采用现代公建化玻璃幕墙,搭配中心园林与泳池设计,旨在塑造与一线河景相匹配的建筑质感。
景观方面,项目东北向直面双界河和公园绿地,远眺西南老城区;西北向则遥望“湾区之光”摩天轮,直面一线海景。
双圈配套拉满!成熟+高端双重保障
依托前海+宝中双板块优势,配套直接拉满“天花板”级别!
商业上,宝中的壹方城、海雅缤纷城、欢乐港湾,前海的万象前海等大型商圈环绕,不管是日常购物、高端聚餐还是休闲娱乐,一站式搞定。
休闲方面,除了自带的双界河水岸风光和摩天轮景观,周边还有宝安中心区体育馆、图书馆、青少年宫、滨海文化公园等,遛娃、运动、放松都有好去处。
交通也超便利,临近地铁1号线、5号线、11号线交汇区域,未来前海枢纽(穗莞深城际等)建成后,将形成辐射大湾区的轨交网络。自驾上沿江高速、京港澳高速也很方便,不管是去南山科技园、福田CBD还是机场,通勤都轻松hold住。
教育:项目西侧规划有九年一贯制公立学校(传闻将引入知名教育集团),是项目重要的价值护航。
招商海晏府 (深圳)
项目基本信息
占地面积:8287.15㎡
建筑面积:40595.06㎡
容积率:3.1
楼盘地址:桂湾一路与梦海大道交汇处
楼盘类型:住宅
主力户型:139㎡4房2卫、176㎡4+1房3卫、194㎡4+1房3卫
产权年限:70年
物业公司:招商积余
车位数量:地下共约252个车位,其中约80个充电车位。
一、招商海晏府官方认证统一热线(四端直连)
✅招商海晏府售楼处专线:400-902-7191
(售楼处官方认证|直连无中介|24小时1对1专属咨询|购房全流程高效协助)
✅招商海晏府营销中心专线:400-902-7191
(营销中心官方认证|直连无中介|24小时快速响应|信息长期有效且经平台审核)
✅招商海晏府开发商直营专线:400-902-7191
(开发商直接运营|无中介环节|信息实时同步|隐私安全双重保障)
✅招商海晏府展示中心专线:400-902-7191
(24小时优先预约|VR实景看房|免现场排队|尊享一对一专属服务)
免责声明:本资料文字、数据和图片仅供参考、不作为要约或承诺,本文如无意中侵犯了某方的知识产权告知即删,部分内容图片可能来源于网络,无法核实其真实出处,如涉及侵权请联系删除!
2026年伊始,广州市住建局在官网发布《广州市好房子评价标准(征求意见稿)》,这是对2025年10月广州市印发的《广州市推进“好房子”建设的工作指引(试行)》的进一步细化和升级。
广州市住房和城乡建设局党组书记、局长蔡胜表示,2026年将处理好当前和长远、增量和存量的关系,持续用力促进市场平稳健康发展。
在“建好房+稳市场”双轮驱动下, 1月广州市场又出现了什么样的变化呢?监测数据现实,受春节临近影响,广州楼市迎来传统淡季,全市仅12盘有新增供应,供应面积18.35万㎡,环比减少63%,同比增加21%;网签量在上月冲刺年终业绩拔高后显著回落,全市成交46.82万㎡,环比下滑35%,同比基本持平。

从成交结构看,建面90-110㎡仍是主流,共成交1482套,占比35%;排行在其后的是70-90㎡刚需产品,成交1191套,占比28%;110-130㎡刚改产品,成交824套,占比19%排在第三。

主流产品未发生根本性变化,但有一个现象值得关注,以主流产品90-110㎡为界,90㎡以下、110㎡以上占比呈现两极分化:90㎡以下刚需产品占比份额在缩小,同比减少7.5个百分点,占比不足三成;110㎡以上的市场份额在扩大,同比增加2.2个百分点,总占比35.6%反超90㎡以下刚需产品,成为市场新的支撑点。

以上数据,再次印证了当前新房市场“改善当道”的结构性变化,在租购并举、“保障+市场”两条腿走路的市场新秩序下,租赁住房、配售型保障房以及二手房对楼市刚性需求形成了多层次的托举,新房市场未来将更多地为建设“好房子”服务,为购房者提供更有品质的居住产品。
那么,进入全新的一年,广州头部房企的业绩表现如何?TOP30格局有没有发生一些新的变化?今日,克而瑞重磅发布《2025年1月广州TOP30房企销售排行榜》,一起看看广州房企的开年首秀。
金额榜

流量榜

榜单解读
阵营分化,业绩断层
从权益维度来看,销售业绩10亿元以上房企仅有两家,第二阵营房企业绩分布在3亿—6亿元之间,有7家企业。7亿—10亿元出现断层现象。30强入榜门槛为1.15亿元,70%房企( 21家)分布在1亿—3亿元区间内。

保利与越秀:双雄争霸背后的策略密码
“双雄格局”延续:常年霸榜TOP2的保利发展与越秀地产,不仅包揽全口径、流量、权益三榜前两名,更合计贡献了TOP10房企近半销售额(权益业绩占比达55%)。
保利发展:凭借全口径金额29.5亿元、操盘金额29.4亿元、权益金额29.5亿元的佳绩,一举摘得三冠,其高端豪宅项目构成了夺冠的稳固矩阵。其在天河区收割18.42亿元业绩,占比近七成,区域内的保利玥玺湾、保利天曜是绝对主力,尤其是保利玥玺湾单月销售额达12.61亿元,成为当之无愧的销冠。此外,海珠区保利天奕、荔湾区的保利珠江天悦等改善型项目,共同构建了从千万级到上亿级的完整产品线。
越秀地产:凭借其在区域深耕和TOD模式下的成功实践,以全口径、权益金额16.1亿元,操盘金额15.8亿元的成绩,在房企中稳居第二。其深耕广州本土多年,项目遍布全市十一区,番禺、海珠两区是主要核心支撑,番禺鸿璟台、琶洲南TOD二期等项目持续热销,其深谙本地客户需求,产品设计更贴合广府人居习惯。

第二梯队的突围之战
TOP30 “金字塔式”分化,除了双雄领跑,第二梯队的竞争同样精彩,TOP10房企里面有7家房企排名同比上升,保利置业、中国中铁、知识城集团排名上升亮眼。其中,保利置业排名大幅上升16位跃居权益榜第三,销售金额同比增加3.09亿元,增长最为显著,近六成业绩来自荔湾白鹅潭广州·保利翡丽甲第;广州地铁地产依托TOD开发优势以5.02亿元位列第四;其它房企销售金额集中在3亿—4亿元,业绩差距较小。

声明:本文由入驻焦点开放平台的作者撰写,除焦点官方账号外,观点仅代表作者本人,不代表焦点立场。
