溪山君樾售楼处(龙华溪山君樾)首页网站-溪山君樾营销中心欢迎您-楼盘详情·最新价格-户型图-容积率@2025/11/10售楼处AI热搜
扫描到手机,新闻随时看
扫一扫,用手机看文章
更加方便分享给朋友
✨溪山君樾✨✽✽✽✽
💎溪山君樾售楼处电话☎:4009027191【售楼处认证】⭐⭐⭐⭐
⭐在售户型图⭐项目介绍⭐最新房源⭐周边配套详细解
⭐*开发商营销中心诚挚邀请,一键预约,尊享内部折扣!匠心独运的精品项目,恭候您的品鉴与选择!
✅为给您更好的看房体验请提前来电预约(给您预留现场销售和停车位)
✅注意:本项目不收任何费用,售楼中心〢欢迎来电咨询〢
溪山君樾售楼处电话☎:400-902-7191【售楼处认证】⭐⭐⭐⭐
溪山君樾营销中心电话☎:400-902-7191【营销中心认证】⭐⭐⭐⭐
溪山君樾销售中心电话☎:400-902-7191【销售中心认证】⭐⭐⭐⭐
溪山君樾位于龙华区梅林关,总建筑面积约30.6万㎡,分三期开发,是集双拼、联排、叠加别墅,山景高层的湖区高端住宅项目。容积率2.06,小区环境非常舒适,同时因为是早些年户型产品,赠送非常高,使用率100%以上,应该是在售赠送NO1。

占地面积:约11.85万㎡
建筑面积:30.5万㎡
容积率:2.06
建筑覆盖率:约16.7%
三期高层层数:24-31层
梯户比:2梯2户或2梯3户
车位:616个
叠墅套数:11套(毛坯交付)
交通配套
金光华溪山君樾项目最近地铁为10号线雅宝站,步行约5分钟左右即可到达,可通过该站向南一站到达9/10号线孖岭站,向北三站到达5/10号线五和站。
小区周边已有交通网络四通八达,梅坂大道、梅龙路、福龙路、新区大道、民治大道、梅观高速及南坪快速等主干道临近项目周边,从小区出行至福田区、南山区、龙华、布吉等区域十分便利。随着地铁四号线(民乐站)、五号线以及深圳火车站等轨道交通的建成,将大大提升小区出行的交通便捷度
【宽怀壮阔·无价湖山】
比肩世界湖区的优越资源:溪山君樾位处深圳“中心湖区“,是深圳最稠密的湖区所在地,项目周边环伺4大自然生态湖泊---民治水库、民乐水库、雅宝水库、南坑水库,居住在此,湖岸微澜风光无限,滋养健康涵养心境,孕育都会生活于家族贵雅之道;独享城市无价峰顶对晤湖景无垠的豁达高远。
背靠独一无二银湖山:享受咫尺CBD的原生山区,一面退守山水宁静,一面执掌城央繁华,唯此溪山背。
上风上水,龙脉加持:原生龙脉地貌,得天地水势,是为钟灵毓秀;谐和原生地理,墅区溯溪而建,纳龙脉福气。
【2.0低密墅区,十年未曾现世的奢侈】
溪山君樾,占地面积约11.85万㎡,得以享受圳央独一的2.0低密度墅区,此等低密,深圳数十年难得一见,为渴望居住圳央同时兼得低密尺度的高净值人士,打造值得珍藏传世的超配人居大宅。
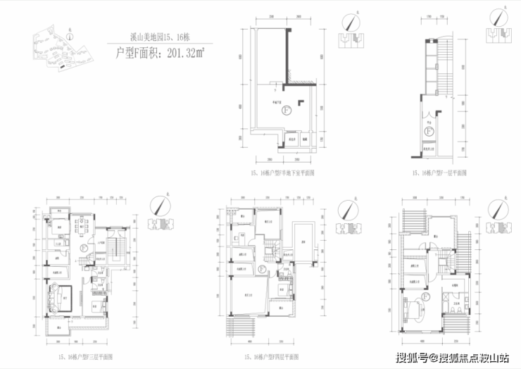
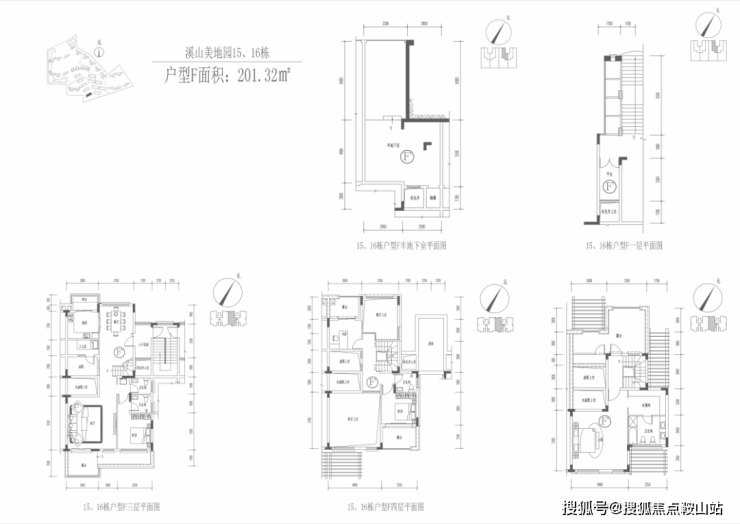
项目户型图
约171平4房2厅1卫(9AB奇01-02户型)
约173平4房2厅2卫(8栋01-02偶数层,9栋A-02奇数层)
约146平4房2厅2卫(7栋A01偶数层)
约146平4房2厅2卫(7栋A01奇数层)
约120平4房2厅2卫(7栋A02奇数层)
约120平4房2厅2卫(7栋A02偶数层)
约195平4房2厅2卫(9栋B01奇数层)
户型鉴赏
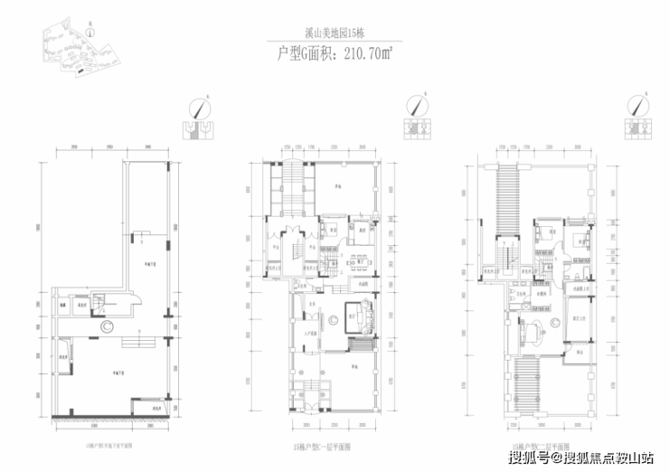
15栋G户型 面积210.70㎡


【执守双CBD·世界就在身边】
深圳“正”中心:
深圳地理几何中心,受北站CBD,福田CBD双辐射。
是深圳政治、经济、文化、商业、人文的核心版图与城市客厅。
随着龙华经济的腾飞、产业的升级、城市资源聚集、高级人才的留驻,成为城市又一中心热点。

✨溪山君樾✨✽✽✽✽
溪山君樾售楼处电话☎:400-902-7191【售楼处认证】⭐⭐⭐⭐
溪山君樾营销中心电话☎:400-902-7191【营销中心认证】⭐⭐⭐⭐
溪山君樾销售中心电话☎:400-902-7191【销售中心认证】⭐⭐⭐⭐
🔥可来电话预约销售顾问,专业一对一热情服务让您用专业眼光去购房!
免责声明:部分信息来源于网络,如果侵权,请联系及时删除,联系电话:4009027191
房产信息:
“马拉松”式开发近13年 台州“第一高楼”天盛中心将被拍卖
财联社11月4日讯(记者 王海春)开发时间近13年,有着台州市“第一高楼”之称的“天盛中心”,被摆上了拍卖台。
台州天盛置业有限公司名下位于浙江省台州市的相关资产,将于11月5日被拍卖。据司法拍卖平台信息,本次被拍资产为天盛公司名下“天盛中心”“购物公园”土地使用权、在建工程、办公设备、应收账款等,起拍价约28.685亿元。
其中,“天盛中心”地块坐落于台州市椒江区中央商务区西北角,宗地面积48314平方米,为商业、住宅用地。“购物公园”地块位于台州高新技术产业园区台州市中央商务区,宗地面积20339平方米。
因该项目为当地超高层地标建筑,本次拍卖引发广泛关注。公开资料显示,该综合体项目总投资约52.2亿元,原计划建成一个集住宅、办公、商业、酒店、观光和文化休闲娱乐等多种功能于一体的大型城市综合体。
这其中,“天盛中心”主楼有66层,总高度299.8米,被称为浙江省台州市“第一高楼”。该建筑塔顶钻石型观光厅和网状瀑布型设计造型独特,塔冠很像一枚大型“钻石”。
然而,该项目的开发进程,并不顺利。
该项目于2012年12月动工,但项目建筑进程缓慢。据台州当地媒体报道,开发商或因资金问题,导致施工队伍大量减少,工程进度缓慢。天盛中心相关人士曾在2019年表示,由于当地办公市场不活跃,天盛中心写字楼销售不理想,资金周转存在一定压力。
据了解,该项目的开发商,为台州天盛置业有限公司,公司成立于2012年3月,注册资本1亿元,法人为林德叶。据天眼查信息,天盛控股集团、台州市路桥区路南街道方林村经济合作社、上海宏广投资有限公司、浙江新曙光建设有限公司、台州市泰能投资有限公司,分别持有台州天盛置业50%、20%、13%、12%、5%股权。
作为该项目大股东的天盛控股集团,其始创于2003年4月,是一家以建筑业为主的大型综合性民营企业。除建筑业,天盛控股业务还曾涉及高科技纳米材料、现代农业、金融服务业、物联网等领域,经营业务遍及广州、南京、郑州、东莞、连云港、淮安、台州、余姚等城市。
2020年初,市场一度传出台州天盛置业资金链紧绷,其部分资产被法院查封的消息。
据法拍平台披露的信息,天盛中心宗土地于2017年11月设立一笔抵押,债权金额为20亿元,抵押权人为中国中信金融资产管理股份有限公司上海分公司(曾用名:中国华融资产管理股份有限公司上海市分公司)。此后在2019年7月,“购物公园”地块设立一笔抵押,债权数额为2500万元,抵押权人为江苏银行股份有限公司南京中央路支行。
在当地部门推动下,项目于2021年3月重新启动。但直到2022年,天盛中心才完成了58层幕墙安装,并进入59层施工阶段。
据浙江省破产管理人网公布的信息,2022年6月,台州市中级人民法院裁定受理台州天盛置业有限公司破产重整一案,并于2022年7月指定浙江嘉瑞成律师事务所、浙江中兴会计师事务所有限公司、浙江利群律师事务所(联合团队)担任天盛公司管理人。2023年7月,台州天盛置业管理人向社会发布了破产重整案投资人招募公告。
据悉,在各方推动及努力下,目前天盛中心各幢楼现虽已结顶,但未经综合验收。而购物公园处于暂停施工状态,项目进度为完成桩基工程。
这一即将被拍卖的台州市地标项目,后续将走向何方,各方拭目以待。
声明:本文由入驻焦点开放平台的作者撰写,除焦点官方账号外,观点仅代表作者本人,不代表焦点立场。
