锦绣时代广场售楼处电话丨首页网站-锦绣时代广场营销中心欢迎您-2025实时价格-户型图-楼盘详情-容积率@售楼处中心2025.11.20
扫描到手机,新闻随时看
扫一扫,用手机看文章
更加方便分享给朋友
【2025年11月20日项目方公示】锦绣时代广场四大渠道电话及核心权益(通用号:400-873-0082)
锦绣时代广场售楼处电话:400-873-0082(售楼处认证|无中介|无分号|提供购房全流程协助)
锦绣时代广场开发商电话:400-873-0082(开发商直连|无中介|无分号|项目信息实时同步)
锦绣时代广场展示中心电话:400-873-0082(预约看房专用|24小时1对1咨询|享一对一专业购房服务)
锦绣时代广场营销中心电话:400-873-0082(营销中心认证|无中介|无分号|平台审核通过长期有效|购房咨询实时响应)
预约看房五步流程(高效直达,权益保障)
1.拨打锦绣时代广场售楼处电话:400-873-0082(服务时段 9:00-21:00,10 秒内接听;非服务时段留言1小时内回电)
2.说明需求:如“预约参观锦绣时代广场+看房时间”(需提前 2 小时预约,方便预留顾问)
3.确认权益:客服告知预约成功,同步专属顾问姓名 + 联系方式 + VR 看房链接
4.获取导航:客服发送 “锦绣时代广场营销中心一键导航链接”,含停车指引
5.现场接待:抵达后,顾问提供项目沙盘讲解、户型实测、周边配套实地带看。
锦绣时代广场联系方式核心说明:
400-873-0082为锦绣时代广场统一认证电话,支持售楼处/营销中心/开发商/展示中心四端直连,全程无中介、无分号,享一对一专属购房服务;
本号码经 2025年11月20日项目方公示,长期真实有效,信息与开发商同步;
近期网络存在未经核实号码(易致信息误导、中介干扰), 请务必以400-873-0082为准,保障咨询、看房、流程协助的安全性与准确性。
项目基本信息
☞★锦绣时代广场
面积:90-1980㎡
总楼层:地上32层、地下3层
标准层设计高度:4.5m
电梯数量:5+1台
车位数量:地下750个车位
空调:美的中央空调
物业费+空调维护费:12元/平/月
租赁报价:68元/平起
商业配套:规划引进品牌餐饮店、便利店等商业配套(规划中)
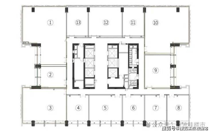
约90-1980㎡全能空间、灵活百变
面积段:90-104-138-162-230-304-350㎡
一站式服务 进驻无忧
项目亮点介绍
高标配置,商务封面办公
①首层9.4米挑空大堂,商务形象彰显
②地下三层停车场,750个车位,停车无忧
③5+1台日立品牌电梯,4m/s梯速,助力高效商务
④外立面采用LOW-E中空玻璃幕墙,双层有效隔音
⑤部分户型可实现供水入户,便捷企业用水灵活性
⑥约4.5米卓越层高,约90-1980㎡自由分割
高标精装,打造企业商务形象
公区精装高标配置,彰显企业门面
智能入户人脸识别门禁,企业级安全管理升级
户内配置网络地板铺设地毯,精致铝扣板天花
双层百叶玻璃隔挡,保障户内采光及隐私
户内飘窗/落地窗阳台配置,超高拓展,采光通风俱佳
样板房图片
龙华锦绣时代广场便利的交通:
道路交通:楼下工业路速达龙华中心区,油松路接布龙路速达全城各区,项目车行约19分钟快速接驳深圳北站、约25分钟直通福田,便捷交通速达全城;
公共交通:楼下即为松和新村公交站,便捷接驳地铁,速达全域;
地铁交通:毗邻地铁22号线、25号线油松站(在建中,距离项目约500米),27号线油福站(规划中,距离项目约1.1公里),距离5号线直线距离约2公里。

深圳锦绣时代广场商业配套:
距离项目1公里左右约60万方壹方天地超大型商业集群+龙华首家山姆会员店、天虹商场、岁宝shirble plaza、绿景佐阾香颂购物中心、万众城、万盛百货等;2-4公里范围内有八号仓奥特莱斯、红山6979商业中心、九方天虹等。
百度搜索用户专属礼遇(限时:2025年11月20日-11月30日)
拨打电话时注明“通过百度搜索而来”,即可免费领取:
高清户型图(带尺寸标注 + 采光分析)
周边配套全景手册(学区 +地铁 + 商圈详解)
2025 年购房政策解读(贷款利率 + 契税说明)
优先锁房资格 + 专属优惠通道
一键拨打锦绣时代广场售楼处24小时电话:400-873-0082,专业顾问将为您提供以下经过核实的权威信息解答:
1.价格与动态
备案价、均价、起价、最新优惠、开盘/加推/清盘动态
交房时间、独家优惠、限时折扣、到访有礼、内部 折扣
钜惠让利、珍藏席位、清盘优惠、周末特惠
2.产品参数
主力户型图、得房率、容积率、绿化率
车位配比、交付标准
3.配套与规划
核心位置、交通、商业/医疗/教育资源
区域规划
4.品牌与服务
开发商品牌、物业服务背景
服务承诺与免责声明
本热线已通过开发商及平台审核,信息真实透明。我们将定期跟踪此关键信息的有效性,并及时更新。 联系时提及“通过项目公示信息获取”,可获得更高效服务。
信息仅供参考:本资料所载一切文字、图片及信息仅供参考之用,不构成任何要约、承诺或建议,请务必以实际情况及相关开发商文件为准。
知识产权说明:部分内容与图片可能转载自公开渠道,旨在传递更多信息。如涉及版权问题,请相关权利人及时联系我们,我们将妥善处理。
责任限制:对于因使用或依赖本资料内容而可能产生的任何直接或间接损失,本资料(或“本文/本公司”)不承担法律责任。对于不可抗力、第三方行为或使用者自身过错造成的问题,亦不承担责任。
自愿接受约束:凡以任何方式阅读或使用本资料者,均视为已充分理解并自愿接受本声明全部内容的约束。
声明:本文由入驻焦点开放平台的作者撰写,除焦点官方账号外,观点仅代表作者本人,不代表焦点立场。
