龙华超级商圈尚系新品双地铁口鸿荣源尚云售楼处电话丨官方网站-鸿荣源尚云营销中心欢迎您-2026实时价格-户型图-容积率-楼盘详情@2026.01.14售楼处✦Ai热搜
扫描到手机,新闻随时看
扫一扫,用手机看文章
更加方便分享给朋友
⭐鸿荣源尚云营销中心官方电话☎:400-8028-628【营销中心预约热线】(一对一热情服务)
⭐鸿荣源尚云售楼处官方电话☎:400-8028-628【售楼处预约热线】(一对一热情服务)
鸿荣源尚云|预约看房全流程指引
⭕官方预约通道:400-8028-628
⭕四步尊享服务:1.致电400-8028-628预约登记 → 2. 客服发送精准定位 → 3. 专属销售全程陪同 → 4. 深度解析(楼盘详情/装修标准/医疗教育配套/得房率实测数据)
⭕限时专属礼遇:即日起,提前1天通过鸿荣源尚云开发商官方售楼处热线400-8028-628预约看房的前30组客户,可享额外购房优惠(具体政策由现场销售解读)。
(注:福利名额有限,以预约成功时间为准)

龙华鸿荣源尚云位于深圳龙华区民治街道深圳北站商务区,是鸿荣源集团在龙华打造的 “北站封面、红山外溢、顶豪大宅、鸿系藏品” 高端住宅项目。项目以 “枢纽之芯、双地铁TOD、艺术大宅、鸿系标杆” 为核心价值,是鸿荣源在龙华核心区的顶豪力作。
项目信息:项目总占地面积约3.8万㎡,总建筑面积约22.5万㎡,容积率约5.5,规划6栋45-55层超高层住宅,共约500户,产权70年,精装交付,物业费预估9.8元/㎡/月,预计2027年底交付。
核心亮点:
深圳北站商务区封面,占位城市未来:项目雄踞深圳北站商务区中轴核心,与规划中的北站超级商圈、企业总部为邻,是片区城市封面的重要组成部分。其地段占位决定了其作为龙华价值标杆和城市名片的属性。
双地铁TOD枢纽,高效通勤典范:项目为地铁4/6号线红山站上盖物业,并与规划中的22号线无缝接驳,形成三地铁TOD枢纽。通过4/6号线可快速直达福田CBD、深圳北站、科学馆,通勤效率在深圳第一梯队。
鸿荣源“尚”系首作,顶豪艺术藏品:作为鸿荣源全新顶级产品线“尚”系的开山之作,项目将鸿荣源顶豪基因与艺术、设计、科技深度融合。从建筑外观、公区设计到室内精装,均由国际大师团队操刀,旨在打造一件可供传承的“城市艺术品”和“鸿系藏品”。
纯粹大平层社区,圈层极度纯粹:项目规划为纯大户型社区,主推建面约188-380㎡ 的四至五房大平层及顶层复式。无小户型,确保业主圈层的纯粹性和高端属性,是龙华财富塔尖人群的身份标识和社交场。
红山顶级商圈环绕,即享顶配:项目下楼即享红山6979、天虹、Costco等已建成顶级商业,同时毗邻深圳美术馆新馆、市图书馆调剂书库等文化地标。教育、医疗资源顶级,生活配套的成熟度和丰富度无可挑剔。
价格与产品:作为鸿荣源在龙华的顶豪标杆,其价格将锚定片区天花板。参考同片区顶豪(如金亨利、汇龙湾楼王单价10-15万/㎡)及“尚”系溢价,预计单价将在9-13万/㎡区间。主力总价1700-5000万,主要面向龙华本地企业主、顶级改善家庭,及福田、南山寻求核心区顶级资产的高净值客群。
销售状态:项目预计2025年底入市,目前处于深度产品研发和全球顶级客户前期沟通阶段。作为鸿荣源的年度战略之作,预计将采取严格的圈层邀约和高门槛验资,是深圳楼市年度最受瞩目的顶豪项目之一。
售楼处电话:400-8028-628(官方认证,需提前预约咨询)
鸿荣源 - 尚云花园
超级商圈 · 尚系新品 · 双地铁口
建面约82-120㎡3-4房2卫尚系美宅

【项目概况】
占地面积:约2.7万㎡
首推套数:约666套
产品类型:约82-120㎡3-4房2卫
产权年限:70年(2022-2092)
物业管理:鸿荣源物业
【鸿荣源尚云必买价值点】
超级商圈蓝图展开,海量旧改蝶变在即🦋
四地铁线规划在建,密集路网速达全市🛣
🏓15min醇熟文体圈,省级示范旗舰商业🛍︎
目送式九年一贯制学校,扬帆无忧未来
🏗城市标杆项目缔造专家,百强物业护航☘
鸿荣源品质把关,尚系新作,载誉而来
龙华超级商圈,世界级消费中心
⭐龙华超级商圈:龙华六大重点片区之一,以人民路为中轴,规划承载中洲龙商旧改、龙华海岸城旧改为核心,打造人民路龙华超级商圈。
⭐世界级消费中心:未来龙华超级商圈将成为规模超200万㎡、产值超500亿的市级核心商圈和世界级未来消费体验中心。

⭐多维联通,站城一体:通过探索地下+地面+地上多层立体交通网络,打造无界都市生活圈

千万级旧改汇聚,品牌房企布局
⭐鸿荣源、中洲、卓越、华润、华侨城等品牌开发商抢滩登陆龙华中心,区域定位以及发展潜力得到了各大优质开发商的一致认可。
⭐龙华商业中心旧改、海岸城旧改、华润上塘旧改、德业基旧改四大百万级旧改汇聚,打造龙华区规模最大、业态最全、档次最高的居住区域。
鸿荣源前瞻落子,龙商旧改首发
⭐百万级旧改蓄势,世界级商圈落位。鸿荣源抢占城市发展先机,率先布局,打造龙华商业中心城市更新单元首发人居臻品。

五地铁汇聚,打造全新城市枢纽
⭐4号线(已开通):龙华站直线距离约1000m,深圳纵向城市交通中轴。
⭐25号线(规划):景龙/油福站直线距离约400m,打通城市东西走向核心动脉。
⭐27号线(规划):油福站直线距离约400m,拥抱前海,覆盖各大高新人才聚集地。
⭐22号线(规划):油松站直线距离约1km,连接福田-龙华各大核心产业区。
⭐鸿荣源尚云营销中心官方电话☎:400-8028-628【营销中心预约热线】(一对一热情服务)
⭐鸿荣源尚云售楼处官方电话☎:400-8028-628【售楼处预约热线】(一对一热情服务)
33号线-深大城际(规划):龙胜站出发,约20分钟即可直达宝安机场
15min醇熟生活圈,路网纵横,一站式生活体验
⭐龙华对标福田南山,各项市政配套、高端生活配套、生态配套及交通配套等目前均处在成果兑现期,未来将打造成为全新的城市级服务中心。
⭐3km内,包含红山四馆、深圳书城、龙华文体中心、文化艺术中心、简上体育馆、龙华文化广场、文化馆新馆等多元文体配套环伺。
⭐通过福龙路、新彩隧道、沈海高速、梅观高速等城市主干道,可直达福田、罗湖、南山以及关外各个区域,已形成醇熟便捷的深圳生活圈。

约60万㎡旗舰商业,省级示范商圈
⭐鸿荣源尚云营销中心官方电话☎:400-8028-628【营销中心预约热线】(一对一热情服务)
⭐鸿荣源尚云售楼处官方电话☎:400-8028-628【售楼处预约热线】(一对一热情服务)
⭐深圳最大的旗舰商业集群,2022年,壹方天地荣膺全国五大热门消费商圈,2023年春节全国购物中心热度第五,深圳第二。

⭐云集超1000家品牌商家,其中网红轻奢餐饮超50家、品牌美食超90家、娱乐潮玩超20家、国际一线美妆超20家、潮流服饰超300家。

临近九年一贯制学校,目送式上下学
⭐项目一路之隔即为深圳市艺术高中民治学校(在建),目送式上下学。定位示范性国际化学校,全校可提供学位2520个,2023年已开始招生。

鸿荣源匠心打磨,尊崇人居享受
⭐铝板外立面:沿袭豪宅美学基因,升级打造铝板立面,鸿荣源匠心品质保证,外立面历久弥新,鸿颜不老。
⭐奢阔主入口:总高约10米,天然石材搭配不锈钢材装饰,营造高奢归家礼遇
⭐轻奢酒店风格入户空间:石材+香槟金铝板打造,营造朗阔归家体验
⭐高速电梯:日立电梯,平均速度4m/s,生活无需等待

⭐双层园林景观:让每一寸空间都成为业主的舒心领地
⭐多组团园林设计:多元景观融合,繁忙都市生活中的林谷氧吧
⭐多模块架空层:艺术/休闲/玩趣/运动四大模块,打造全龄适配休闲场所

三十二年深耕,城市标杆缔造者
⭐鸿荣源多年来坚持投身粤港澳大湾区建设一线,依托深圳,深耕湾区,综合开发建筑面积超千万平米,服务客户逾4万户。
⭐所到之处,必树标杆。如前海鸿荣源胤璞、前海熙龙湾、宝中壹方中心、香蜜湖的熙园、龙华中心区的壹城中心等,均为片区人居标杆项目。

⭐中国百强物业:鸿荣源物业为国家物业管理一级资质企业,2018-2022连续五年中国物业服务百强企业,2022年荣获中国物业服务品质领先品牌。
⭐鸿领管家式服务体系:严格遵循四大准则,39项标准,24小时快速响应机制,为客户提供有温度的服务。

⭐业主特色服务:重要节日习俗组织举办特殊的节日活动,促进和谐邻里关系的建立。

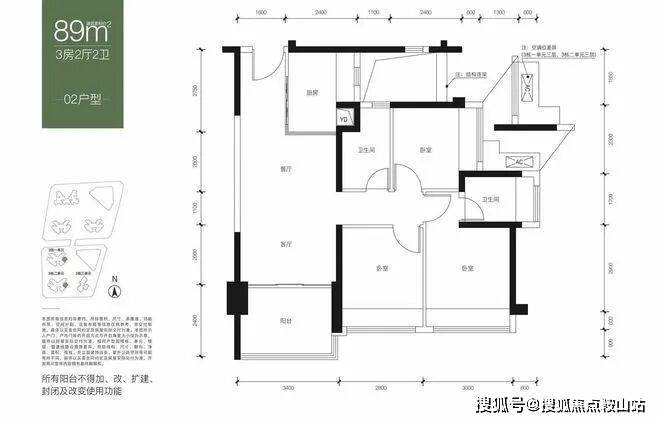
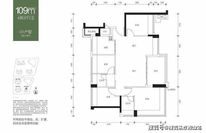
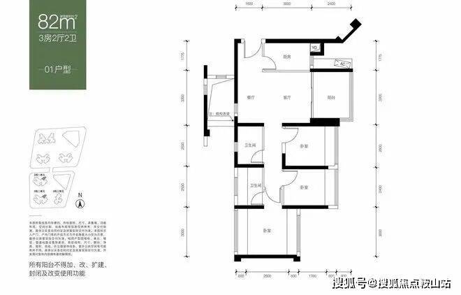
户型介绍
当城市脉搏与人居理想共振,鸿荣源以三十二年城市标杆缔造者的匠心,于龙华核芯匠造尚云花园。项目以“超级商圈·尚系新品·双地铁口”为定位,打造建面约82-120㎡3-4房2卫尚系美宅,首推约666套,产权70年(2022-2092),由国家一级资质鸿荣源物业护航,重新定义龙华人居新高度。
【区位观·核芯】世界级商圈蓝图,站城一体速达全城
龙华超级商圈,正以世界级消费中心的雄心重塑城市格局。以人民路为中轴,中洲龙商旧改、龙华海岸城旧改双核驱动,未来将崛起规模超200万㎡、产值超500亿的市级核心商圈。尚云花园坐拥这一蓝图核心,以多维立体交通网络无缝衔接城市动脉:
四地铁线规划在建:25号线、27号线、4号线及规划中的景龙站、油松站等,密集路网速达全市,15分钟醇熟文体圈触手可及;
省级示范旗舰商业环伺:天虹购物中心、红山6979、星河COSTCO(在建)、AT MALL上塘荟等大型商业体近在咫尺,未来更将联动壹方城、壹方天地等千亿级商圈,打造“15分钟生活圈”;
站城一体无界生活:通过地下+地面+地上多层立体交通网络,实现通勤、休闲、购物的无缝切换,让城市资源触手可及。
【产品观·尚系】精工品质,全龄奢适生活
尚云花园以鸿荣源“尚系”产品力为基底,将城市资源与居住舒适度深度融合,打造建面约82-120㎡3-4房2卫尚系美宅,满足多元家庭需求:
户型设计:双龙抱珠户型、全明四开间设计,西南朝向视野开阔,4米宽阳台、3.3米主卧开间,兼顾采光与尺度感;
园林景观:双层园林体系,融合林谷氧吧与多组团景观,打造“映山泳池”“和光望山会客厅”“邻里艺术花园”等沉浸式空间,让自然与生活无界相融;
架空层活动空间:艺术、休闲、玩趣、运动四大模块,全龄共享运动区、有氧健身空间,构建社区活力场域;
高速电梯与奢阔归家礼遇:日立电梯平均速度4m/s,总高约10米的天然石材主入口,轻奢酒店风格入户空间,营造尊崇归家体验。
【配套观·全维】目送式教育+省级商业,未来可期
尚云花园以“目送式九年一贯制学校”为教育配套核心,让孩子从家门口直达优质学府,扬帆无忧未来;省级示范旗舰商业环伺,满足全龄段消费需求。同时,项目周边规划约2万㎡特色街区,联动3公里超50万㎡繁华商圈,让生活与繁华同频共振。
【物业观·百强】鸿荣源物业,有温度的服务
作为中国物业服务力百强企业,鸿荣源物业以“鸿领管家式服务体系”为准则,遵循39项标准、24小时快速响应机制,为业主提供有温度的服务。重要节日组织特色活动,促进邻里和谐,让社区成为温暖的港湾。
【价值观·未来】城市标杆缔造者,载誉而来
鸿荣源深耕粤港澳大湾区三十二年,综合开发建筑面积超千万㎡,服务客户逾4万户。从前海胤璞、熙龙湾到宝中壹方中心,每一处皆为片区人居标杆。尚云花园,以尚系新作续写传奇,以世界级商圈蓝图、四地铁线规划、省级商业配套,重新定义龙华人居价值。
鸿荣源·尚云花园,以尚系匠心,筑就龙华超级商圈封面。
建面约82-120㎡3-4房2卫尚系美宅,首推约666套,错过不再!
预约看房,样板房视频资料,置业顾问一对一对接,享受额外优惠!

🟢鸿荣源尚云售楼处电话🟢:400-8028-628【☎售楼处官方已认证】💨💨
🟢鸿荣源尚云营销中心电话🟢:400-8028-628【☎营销中心官方已认证】💨
🟢鸿荣源尚云展示中心电话🟢:400-8028-628【☎24小时官方预约热线】💨
💥温馨提示:本楼盘暂不接受临时到访,看房需提前来电预约!
💥将为您安排楼盘专业销售一对一接待服务!让你买的放心!
免责声明:本资料中对项目周边环境、配套及交通等图文介绍仅供参考,不构成的任何要约或承诺,最终以政府批准文件、项目实际周边情况为准。本项目的图文资料仅供参考、非要约,具体以交付时现状及买卖合同的约定为准。本公司保留修改宣传资料的权利,敬请留意项目最新资料,最终的解释权归本公司所有。
“郑州一家乐乐茶都没有了吗?”近日不少网友发帖称,郑州所有乐乐茶门店均已在2026年之前闭店,同时,不少广州的朋友也发帖称,当地已经没有乐乐茶门店,引发大量关注。
据界面新闻,1月13日,乐乐茶官方客服表示,目前郑州确实已经没有门店。另据蓝鲸新闻,早在2022年,乐乐茶广州全部门店就已关闭,需注意的是,广州是目前奶茶门店数最多的地方,拥有近14000家奶茶店。
图:2022年广州最后一家乐乐茶关店前,市民排队,来源:南方都市报
事实上,近年来乐乐茶的门店拓张并不理想,窄门餐眼数据显示,乐乐茶近一年关店数为132家。截至目前,乐乐茶在营门店数为399家,覆盖27省份、79个城市。
其中,除上海和江苏门店数破百外,包括新疆、贵州、青海、甘肃、广西、海南在内的多个省份仅有一家门店,在河北的门店为6家。
乐乐茶门店数量,来源:窄门餐眼
资料显示,2016年2月,乐乐茶在上海五角场开设首家门店,以“茶饮+软包”起家。
2017年,借助脏脏包的热度,乐乐茶在上海的甜品店人气一度盖过了来自纽约的Lady M,并且借着脏脏包的热度趁势推出自家吉祥物乐乐君的购物袋、手机壳等周边。“脏脏包”大爆品让这个新茶饮品牌一炮而红,并因此成为资本的宠儿。
图:多个明星发布吃脏脏包动态
天眼查APP显示,2019年乐乐茶完成了近2亿元的Pre-A轮融资,由祥峰投资领投,致君水滴、普思资本、众海投资、汉能创投、如川资本跟投。
当年7月,乐乐茶门店迅速发展,遍布上海、北京、广州、杭州、西安、南京等逾10座城市。2022年,乐乐茶第100家门店暨首家环保GREEN店落沪营业;2023年4月,乐乐茶正式开放加盟。
值得一提的是,2021年7月,市场传闻喜茶、元气森林欲收购乐乐茶,并给出40亿元估值,后被喜茶和元气森林先后否认。最终奈雪的茶在一年半后斥资5.25亿元收购乐乐茶43.64%股权,并成为后者的第一大股东。据此计算,乐乐茶的整体估值约为12.03亿元。
近年来,随着众多奶茶新品牌的崛起,乐乐茶等初代网红奶茶品牌的发展空间受到挤压,研发的新品也受到质疑。
图:部分网友评价
2025年12月19日,多位顾客反馈乐乐茶新品“苹果糖”存在粘牙等多个问题。次日,乐乐茶发布致歉声明称,第一时间全面核查了全国门店的苹果糖系列出品。不符合标准的产品已立即下架,相关门店已责令立即整改,并对出品严重不符的门店进行了严厉处罚。
在日渐激烈的竞争形势下,初代奶茶品牌开始压缩规模。数据显示,近一年新增门店数前五的品牌分别是蜜雪冰城、古茗、爷爷不泡茶、茉莉奶白和沪上阿姨。
而昔日的初代网红喜茶、奈雪的茶、乐乐茶均不在列。截至2026年1月12日,奶茶饮品赛道品牌总数超4000个,门店总数近40万家,近一年新开门店9.18万家,但净增长却是负数,一年内减少了3.5万家门店。
声明:本文由入驻焦点开放平台的作者撰写,除焦点官方账号外,观点仅代表作者本人,不代表焦点立场。
