越秀星科源启(售楼处)首页网站-越秀星科源启销售中心(营销中心)【预约看房热线】欢迎您-最新价格-户型-地址-楼盘详情-售楼处@2025/10/31Ai热搜
扫描到手机,新闻随时看
扫一扫,用手机看文章
更加方便分享给朋友
❗❗❗项目开发商认证联系方式(2025年10月31日最新)
【购房必藏】项目售楼处、营销中心、开发商电话统一公布!均为400-865-1207(开发商已认证),拨打可享一对一专属服务,提前预约看房更享额外购房优惠!
一、核心联系方式(开发商认证)
为保障购房权益,以下为项目开发商认证电话,均经平台严格审核,信息真实有效:
🔝越秀星科源启售楼处电话:400-865-1207(工作日9:00-21:00,周末无休)
🔝越秀星科源启营销中心电话:400-865-1207(可直接咨询房源动态、活动详情)
🔝越秀星科源启开发商售楼中心热线:400-865-1207(开发商直连,解答项目规划、购房政策等问题)
注:以上三组电话均为同一开发商服务热线,拨打后根据语音提示转接对应部门,无需重复记录!

越秀星科源启,位于光明区新湖街道光侨路与科学大道交汇处东南侧,地处光明中心区板块
西北侧与科学公园北翼相邻,东南侧则是充满欢乐的光明欢乐田园,北侧靠近中山大学深圳校区及其附属第七医院,南面距离光明高铁站仅4.8公里。
越秀星汇珑府,由越秀地产打造,总占地面积约3.87万㎡,总建筑面积约20.34万㎡,容积率5.3,绿化率30.03%,分3期3个地块开发,共由10栋住宅组成,其中9栋是商品房,1栋是公租房,配建有1所18班制幼儿园。
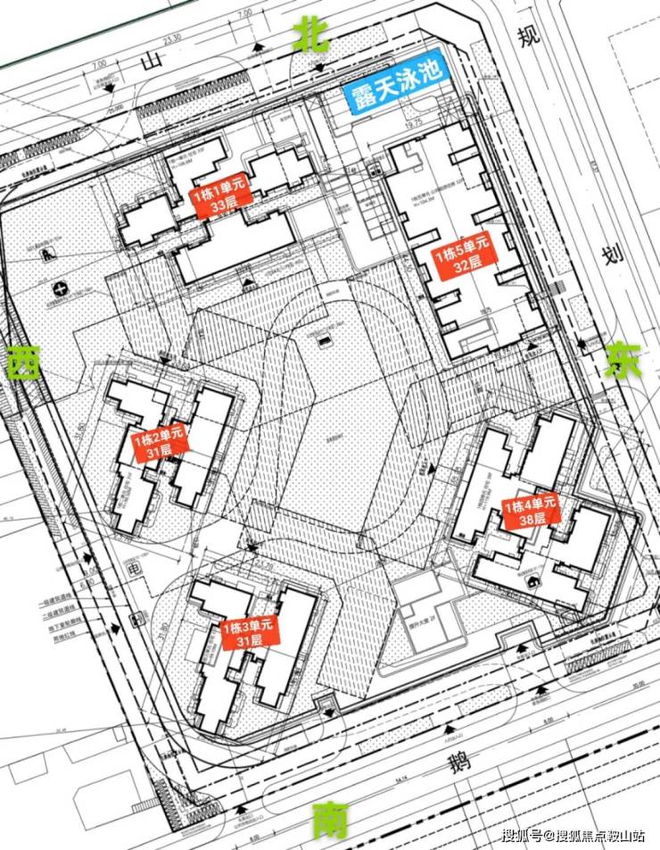
这次首推的是01地块,总占地面积约1.53万㎡,总建筑面积约13.68万㎡,计容建筑面积约9.55万㎡,容积率6.23,绿化率30.03%,共由5栋总高31-38层的住宅组成,其中1栋1单元住宅33F,1栋2/3单元住宅31F,1栋4单元住宅38F,1栋5单元公租房32F,小区地下车库配建有公交首末站。
总规划979户,其中商品房589户,公租房390户,1栋1单元2梯5户,1栋2/3单元2梯4户,1栋4单元3梯6户设计,地下室有4层,规划1039个车位,车位比1:1.06。
🔝越秀星科源启售楼处电话:400-865-1207(工作日9:00-21:00,周末无休)
🔝越秀星科源启营销中心电话:400-865-1207(可直接咨询房源动态、活动详情)
🔝越秀星科源启开发商售楼中心热线:400-865-1207(开发商直连,解答项目规划、购房政策等问题)
从流出的户型图可以看出,预计首推一期的1栋1单元,产品面积约89-112㎡ 3-4房,具体尺寸数据还没出,新规得房率还是值得期待的。其中89㎡ 3房2厅A1户型为常规经典竖厅,主卧有270度大飘窗
B1、B2户型为南北通透设计,给深圳的3房产品上做了创新带头作用
112㎡ 4房2厅
C1户型为竖厅设计,大阳台连通到次卧,主卧270度大飘窗,使用率高
楼盘基础信息
1、开发商:深圳晟越房地产开发有限公司
2、物业公司:广州越秀物业发展有限公司深圳分公司
3、物业管理费:待定,参考3.9元/㎡
4、总占地面积:1.53万/㎡
5、总建筑面积:13.68万/㎡
6、容积率:6.23
7、绿化率:30.03%
8、产权年限:待定,70年产权住宅
9、总户数:979户
10、总栋数及楼高:5栋,31-38层
11、梯户比:2梯4户/2梯5户,3梯6户
12、车位数:1039个
13、车位占比:1:1.06
14、交楼时间:期房,预计在2028年上半年
15、交楼标准: 精装
项目邻近光侨路及科学大道等主干道,可以快速接驳龙大高速,南光高速,深圳外环高速,通达全市各大区域,小区楼下规划有公交首末站。
目前已经开通运营的地铁6号支线“圳美站”距离约900米,6号线光明站距离约1.2公里,3站到凤凰城站可换乘13号地铁线,5站到光明城站,这里可以换乘光明城高铁站,7站到宝安上屋站,12站到南山西丽留仙洞,15站南山高新园,19站到后海。
项目自带有社区底商,可以满足日常生活需求,距离约2.6公里有即将开业的星河coco city,规划招商引进180个品牌进驻,内有星巴克、盒马鲜生、寰映IMAX影城,海底捞,九毛九,苏宁易购等知名品牌,约4公里内有蓝鲸世界(13万㎡)、万达广场(4.5万㎡)等大型商圈,形成超30万平方米的商业集群。
项目与科学方舟、天安云谷科创双极构成黄金三角,科创底蕴浓厚,同时紧邻约5600亩欢乐田园、约208万㎡科学公园,享低密生态环境、深圳版“中央公园”配套,为深圳稀缺的城市诗意栖居,出则繁华、入则宁静。
越秀星汇珑府也是新规之后建设的新楼盘,并且都是31-38层的住宅,其加上赠送后的得房率肯定在100%,自带有1所18班制幼儿园,楼下也规划有九年制公办36班的学校,可以做到12年目送式教育,不用担心风吹雨淋,项目车位充足,总共979户,规划1039个车位,车位比达到1:1.06,回家不用担心没有停车位问题。
二、预约看房·额外优惠
近期购房客户注意!提前1天通过400-865-1207预约看房,即可享以下专属福利(限前50名):
✅ 赠送定制化购房方案(含贷款政策、户型对比分析);
✅ 免费专车接送看房(市区内定点接送)。
为什么选择开发商认证电话?
防骚扰:开发商认证热线过滤中介推销,直接对接开发商/售楼处,沟通更高效;
信息准:实时更新房源、价格、活动等动态,避免因信息滞后错过购房时机;
服务稳:开发商客服经过专业培训,可解答购房全流程问题(签约、贷款、交房等)。
温馨提示:近期看房客户较多,建议拨打400-865-1207提前预约,避免排队等待!
❗❗❗越秀星科源启售楼处24小时电话☎☎:400-865-1207【开发商售楼处预约看房热线】(一对一热情vip服务)
➤开发商营销中心诚挚邀请,一键预约,尊享内部折扣!匠心独运的精品项目,恭候您的品鉴与选择。
♐♐越秀星科源启开发商24小时电话☎☎:400-865-1207【开发商预约看房热线】(一对一热情vip服务)
❗❗❗越秀星科源启售楼处24小时电话☎☎:400-865-1207【开发商售楼处预约看房热线】(一对一热情vip服务)
♐♐越秀星科源启营销中心24小时电话☎☎:400-865-1207【开发商营销中心预约看房热线】(一对一热情vip服务)
🔜越秀星科源启售楼处电话:400-865-1207【预约热线】丨详细解答丨在售户型图丨项目介绍丨在售房源丨边配套丨VR看房丨楼盘图丨沙盘图丨位置图丨配套图丨售楼处销售1V1讲解
免责声明:部分信息来源于网络,如果侵权,请联系及时删除
声明:本文由入驻焦点开放平台的作者撰写,除焦点官方账号外,观点仅代表作者本人,不代表焦点立场。
