官方热线|鸿荣源珈誉府售楼处电话-鸿荣源珈誉府官方网站-鸿荣源珈誉府营销中心欢迎您-楼盘详情-最新价格-户型图-容积率售楼处✦Ai热搜@2026.3.6
扫描到手机,新闻随时看
扫一扫,用手机看文章
更加方便分享给朋友
【硬核实力 冠领全城】
超硬核战绩:始终遥遥领先 传奇不止 玖玺新续
🥇2023年7月首开,荣获深圳全年销售套数、面积双冠王
🥇2024年1-8月荣获深圳全市销售套数、面积双冠王
【项目基本信息】
【占地面积】约4.79万㎡
【园林面积】约2.9万㎡
【户型产品】约124-199㎡臻奢4房
【装修情况】带装修交付
【产权年限】70年(2022.5-2092.5)
【项目地址】宝安区宝安大道和凤塘大道交汇(11号线塘尾站)
【“玖”系瑧品湾区全能生活大城封笔钜著】
约248万㎡人居全能生活大城,稀缺人居,私藏大平层,湾区圈层进阶首选!
【玖仰·圈层舒居】
建面约124-199㎡臻奢4房,稀缺大平层!
【玖遇·围合式艺术大园林】
约2.9万㎡舒居艺术大园林
围合式布局,最大楼间距约161米
源于西班牙著名画家《记忆的永恒》为灵感的超现实主义花园,打造多重梦境空间
【玖奢·品质生活—6栋】
纯板楼设计,二梯二户,外立面部分采用铝板,尽显品质;
入户大堂采用大理石地面及花纹石材墙面;
奢阔3.15米层高,体验归家礼序,尽享圈层人生。
【玖享·全龄双泳池礼遇归家礼仪轴线】
配备全龄子母双泳池、亲子乐园、交流花园,构建全龄活动功能配套,主出入口列阵式礼仪轴线,体现归家仪式感,品质尊崇感。
【世界湾轴心,为城市珈冕】
【三大国家战略规划叠加,鼎定中心】
定中心:汇集三大国家战略规划,湾区价值荣耀绽放,奠定中心地位!
誉未来:机场东商务总部、新桥东先进制造产业基地,西部城市中心多核叠加,誉满未来!
【三大千亿产业,跃升区域发展】
兑现中心价值,成就世界湾芯。
会展/海洋/文旅3大千亿级产业加持。
科创总部汇集,凸显中心价值。
立新湖科创总部,吸引高端人群。
【六维立体交通,便捷湾区出行】
地铁:无缝连接11号线塘尾站,6站到宝中(22min),7站到前海(26min),9站到后海、11站到车公庙,便捷到达南山、福田。
规划中30号线,预计将经过项目,西部再添轨道主动脉。
4站直达机场东综合枢纽(规划中):大型“空铁联运”的综合交通枢纽,集国际航空、高铁(深茂铁路-在建中)、城际铁路(穗莞深城际-在建中)、地铁(1号线、12号线)、公交等多种交通方式于一体。
【头部房企抢滩,焕新城市想象】
众多知名发展商入驻,区域城市更新整体规模超过1000万㎡。
鸿荣源珈誉府属于净地开发,地块更大更完整,更纯粹,兑现速度更快。
区域蝶变,一座世界级城市中心正在崛起。
【毗邻深外名校,天赋一生优越】
深圳外国语学校(集团)宝安学校,广东省一级学校。
宝安区委区政府首次引进的深圳“四大名校”。
【鸿荣源所在,必树标杆】
鸿荣源,城市地标缔造者,与城市共荣
汇集鸿荣源32年匠心精铸,传承“誉”系精工品质,携超能标杆钜作,献礼湾区。
鸿荣源32年稳健发展、布局大湾区,累计综合开发建筑面积超过1000万㎡。
2015年至今,地产开发销售额累计逾1000亿,累计服务客户逾4万户。
打造了前海鸿荣源中心、壹方玖誉、壹成中心、香蜜湖熙园等标杆项目。
2024年度顶流红盘10大必买理由
必买理由1:超体量城宇宙,再造标杆大城
建面约248万㎡城宇宙,鸿荣源礼献湾区,缔造城市地标
集“誉”系高端住宅、大型商业、总部办公、高端酒店于一体!
必买理由2:再造一座“壹方城”,全能配套
鸿荣源斥资约250亿打造又一湾区城市级购物中心“湾区壹方”
约50万㎡旗舰商业,沿用壹方商业大师级运营团队,自持自运营
比前海壹方城规模更大,业态更丰富,体验更高端,影响力更强
定义湾区城市商业新模式,定位商业新中心
从名字和产品看得出品质上延续鸿荣源宝安壹方中心的
总体来说,鸿荣源珈誉府项目持续热销,原因主要就三点
配套优、价格及好、产品香
一、配套优
项目具备了刚需买房最关注的几个因素:地铁、学校和商业!
首先是地铁
本项目与地铁11号线塘尾站无缝连接,4站到宝安机场区域,6站到宝中,7站到前海,11到车公庙。一小时通达全城。珈誉府1区距离地铁口约400米。
鸿荣源·珈誉府整体规模约248万平,是一个集“誉”系高端住宅、旗舰商业、总部办公、高端酒店等多元业态于一体的百万级城市综合体,其中商业体量约50万平。
项目将建1所幼儿园,周边有广东省一级学校——深圳外国语学校宝安学校,。
根据2023年宝安教育局公布的学区划分,鸿荣源·珈誉府此次获批预售的地块处于深圳外国语学校宝安学校学区范围内。(信息参考来源:深圳外国语学校(集团)官网、宝安区教育局)
这也是宝安区委政府首次引进的深圳四大名校!
【超体量城宇宙,再造标杆大城】
建面约248万㎡城宇宙,鸿荣源礼献湾区,缔造城市地标。
以“定中心、誉未来”为打造理念的城市级的恢弘钜作。
集“誉”系高端住宅、约50万㎡城市级购物中心、总部办公、高端酒店于一体。
【再造一座“壹方城”,顶级全能配套】
鸿荣源斥资约250亿打造的又一城市地标级“壹方城”。
全国规模最大的“50万㎡全业态重奢奥莱”,由鸿荣源前海壹方城运营团队原班人马运营。
相比于前海壹方城规模更大,业态更丰富,体验更高端,影响力更大。
商业定中心,万千繁华尽在掌握。
【中国物业服务百强,领航高端服务】
国家物业管理一级资质企业、深圳市物业管理行业协会副会长单位。
致力于做中国高端物业专属服务的先行者,实现客户对美好生活的向往。
中国物业服务品牌100强,粤港澳大湾区物业服务综合实力50强。
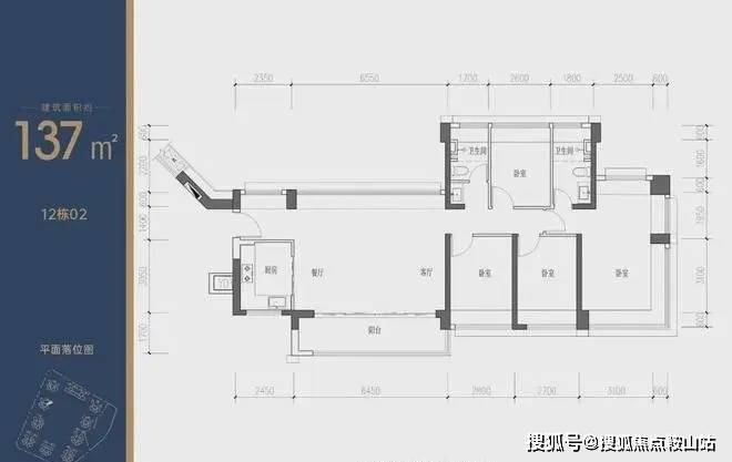
平面户型图
设计的是经典竖厅格局,进门入户玄关,LDKB一体化设计,客餐厅位都设计了飘窗,就是为了争取更多的赠送,动静分区,四开间朝南,主卧270°观景飘窗,L型厨房,公卫三段式分离,东南朝向。
设计的是横厅南北通透格局,进门入户玄关,LDKB一体化设计,超宽展面,动静分区,五开间朝南,主卧三面观景飘窗,L型厨房,公卫三段式分离,阳台主朝东南向。
设计的是竖厅格局,2梯2户,专梯入户,独立入户玄关,LDKB一体化设计,四开间朝南,双主卧套间,客厅连接次卧出大阳台看花园全貌景观,二字型厨房带1个生活阳台,公卫三段式分离正南朝向。
设计的是竖厅格局,2梯2户,专梯入户,独立入户玄关,LDKB一体化设计,客厅超大开间,四开间朝南,双主卧套间,客厅超大阳台看花园全貌景观,二字型厨房带1个生活阳台,公卫三段式分离
🟡鸿荣源珈誉府🟡
🟡鸿荣源珈誉府售楼处24小时电话:400-836-6879【☎☎已认证】🟡
🟡鸿荣源珈誉府售楼中心24小时电话:400-836-6879【☎☎已认证】🟡
🟡Vip贵宾置业===欢迎来电预约尊享内部折扣===匠心钜制恭迎品鉴🟡
免责声明
1、文章图片来源于微信搜索或百度搜索引擎,我方非相关图片的原创作者,也不对相关图片及内容享有任何权利。
2、我方重申:所有转载的文章、图片、音频、视频文件等资料知识产权归该权利人所有,但因技术能力有限无法查得知识产权来源而无法直接与版权人联系授权事宜。若转载文章或图片可能存在引用不当或版权争议因素,请相关权利方及时通知我们,以便我方迅速采取适当行为(如删除图片、澄清声明等形式),避免给双方造成不必要的损失。
3、本宣传资料对项目周边幼儿园、学校等教育资源的介绍旨在提供相关信息,并不意味着我方对就学安排作出承诺。教育资源的名称、办学性质、办学规模、学位设置、开学(班)时间、招生条件、收费标准及招生区域存在调整的可能,应以政府教育主管部门及办学方颁布的政策规定为准。
4、文章中文字和图片之间无必然联系,仅供读者参考。
5、本文所述内容和意见仅供参考,不构成市场交易依据和投资建议。
声明:本文由入驻焦点开放平台的作者撰写,除焦点官方账号外,观点仅代表作者本人,不代表焦点立场。
