拾悦城楠园官方售楼处电话 (拾悦城楠园)官方首页网站-拾悦城楠园营销中心欢迎您-楼盘详情•最新价格-户型图-容积率 @2026.01.28售楼处+Al热搜
扫描到手机,新闻随时看
扫一扫,用手机看文章
更加方便分享给朋友
⭐拾悦城楠园营销中心官方电话☎:400-8028-628【营销中心预约热线】(一对一热情服务)
⭐拾悦城楠园售楼处官方电话☎:400-8028-628【售楼处预约热线】(一对一热情服务)
拾悦城楠园|预约看房全流程指引
⭕官方预约通道:400-8028-628
⭕四步尊享服务:1.致电400-8028-628预约登记 → 2. 客服发送精准定位 → 3. 专属销售全程陪同 → 4. 深度解析(楼盘详情/装修标准/医疗教育配套/得房率实测数据)
拾悦城楠园(注:福利名额有限,以预约成功时间为准)

宝安沙井,拾悦城楠园在2023年10月11日首次推售B座/E座,后在2024年4月15日加推A座/G座,在2024年8月8日再次加推D座/F座,面积有86㎡的3房1卫,100-104㎡的3房2卫,118-120㎡的4房2卫,140㎡的5房2卫户型,共1235套房源,备案均价4.89万/㎡,备案单价4.18-6.07万/㎡,总价374-851万/套,合同约定在2025年12月底前带简装交房,目前已经是现房即买即住。

拾悦城楠园在2023年10月11日入市以来,总入市1235套房源,整体已经销控923套房源,去化率高达69.67%,还剩下约300套房源在售,剩下的基本都是100-107平之间的3房户型。
就在昨日,开发商刚推出了一批回迁房委托销售房源,折后单价3.44-3.61万/㎡,均价仅3.5万/㎡。
86㎡的3房2厅1卫,折后总价314万,单价3.65万/㎡。
94㎡的3房2厅2卫,折后总价340万,单价3.61万/㎡。
100㎡的3房2厅2卫,折后总价355万,单价3.55万/㎡。
125㎡的4房2厅2卫,折后总价430万,单价3.44万/㎡。
下面罗sir还特意做了份拾悦城楠园全套的备案价格+销控表,可以作为参考,如果想要具体的折后价格表以及后期最新的销控表,可以加罗sir微信联系。

请关注我们的公众号,深房瑧探团队,深耕深圳全市新楼盘,我们这里有各区新楼盘详细资料,还对每个楼盘做出了详细的优缺点分析,定期更新楼盘建设进度!还有全市年度土拍地块信息+全市季度待入市商品房信息+超前的新房情报!
也可以加罗sir微信深入交流,罗sir清楚深圳每个新盘的折扣体系,有做出对应的折扣价格房源表(具体到栋数房号)+销控表,各大楼盘的样板房实拍视频,也有统计深圳全市2025年在售商品房基本信息+去化率统计表,深圳2025年待入市商品房统计表,深圳各区学校录取积分+政策解析,深圳各区名校排行榜等关乎咱们买房都会关注到的知识点。
更有专属的VIP客户交流群欢迎您的加入(进群请加罗sir微信,审核拉群,避免广告信息+中介同行骚扰),另外找罗sir购买深圳各大新盘都能享受到额外的自媒体优惠福利,专业靠谱,信任来之不易,真诚大于一切。
01
项目平面图
02
项目户型介绍
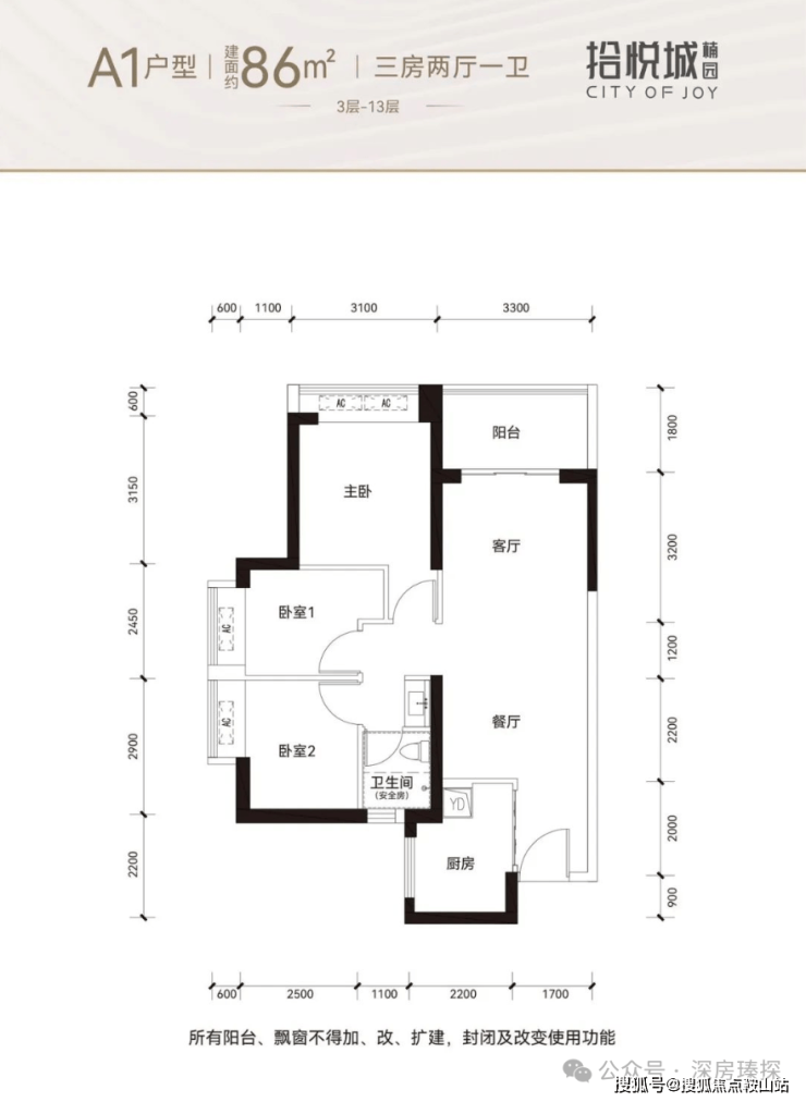
86㎡的3房2厅1卫,设计的是竖厅格局,进门入户玄关,客厅3.3米开间,LDKB一体化设计,分别做到了主卧11.62㎡/次卧8.37㎡/次卧8.27㎡(包含墙体飘窗),U型厨房,卫生间三段式分离,得房率:76.92%(不含赠送),阳台约5.94㎡东北朝向。
100㎡的3房2厅2卫,设计的是竖厅格局,进门入户玄关,客厅3.4米开间,LDKB一体化设计,分别做到了主卧14.7㎡/次卧13.34㎡/次卧8.08㎡(包含墙体飘窗),U型厨房,公卫三段式分离,得房率:77.14%(不含赠送),阳台约5.94㎡西南或东南朝向。

104㎡的3房2厅2卫,设计的是经典竖厅格局,进门入户玄关,客厅3.4米开间,LDKB一体化设计,分别做到了主卧14.7㎡/次卧13.34㎡/次卧8.08㎡(包含墙体飘窗),U型厨房,公卫三段式分离,得房率:76.21%(不含赠送),阳台约5.94㎡西南或东南朝向。
118㎡的4房2厅2卫,设计的是横厅南北通透格局,进门入户玄关,客餐厅6.3米开间,无过道设计,分别做到了主卧14.9㎡/次卧10.2㎡/次卧10.2㎡/次卧9.52㎡(包含墙体飘窗),U型厨房,公卫三段式分离,得房率:74.31%(不含赠送),阳台约6.48㎡主朝西南或东南向。
120㎡的4房2厅2卫,设计的是竖厅南北通透格局,进门入户玄关,客厅3.8米开间,分别做到了主卧17.39㎡/次卧10.64㎡/次卧9.62㎡/次卧9.25㎡(包含墙体飘窗),L型厨房带一个生活阳台,公卫三段式分离,得房率:74.31%(不含赠送),阳台约6.84㎡主朝西北或东北向。
126㎡的4房2厅2卫,设计的是竖厅南北通透格局,进门入户玄关,客厅3.6米开间,分别做到了主卧16.98㎡/次卧10.23㎡/次卧9.6㎡/次卧9.57㎡(包含墙体飘窗),L型厨房,公卫三段式分离,得房率:74.51%(不含赠送),阳台约6.48㎡主朝东北向。
140㎡的5房2厅2卫,设计的是竖厅南北通透格局,进门入户玄关,客厅4.1米开间,分别做到了主卧18.25㎡/次卧11.31㎡/次卧10.5㎡/次卧10.08㎡/次卧8.4㎡(包含墙体飘窗),L型厨房,公卫三段式分离,得房率:76.92%(不含赠送),阳台约7.38㎡主朝东北向。

03
项目区域及楼盘介绍
拾悦城楠园,位于宝安区宝安大道与寮丰路交汇处西侧约200米,地处西部城市中心,在“双区”建设、前海扩区等多重战略机遇叠加下,宝安区致力于产业转型、城市转型,全面优化空间结构,提出“422133”战略主框架,谋划以南北双中心建设带动城市发展。除了提升宝安中心区发展能级,加快打造设施更完善、功能更强大、品质更高端的现代化国际化创新型城市新中心;宝安区还将统筹沙井、新桥、松岗片区,建设人、产、城有机融合发展、品质卓越的西部城市中心,建设宜居宜业宜游的品质城区。

拾悦城,总规划3期住宅,其中1一期拾悦城雅居已经交付入住,二期是拾悦城楠园以及沁园,三期目前还在规划中。
拾悦城楠园,总占地面积约3.54万㎡,总建筑面积约32.39万㎡,计容建筑面积约23.54万㎡,容积率6.4,绿化率40%,共由7栋总高48-53层的住宅组成,其中1栋A/B/C座53F,1栋D/E/F/G座住宅48F,2栋是1所18班制幼儿园。
总规划2025户,其中商品房1315套,回迁房700套,3梯5户/3梯6户/3梯7户设计,规划车位2396个,车位占比约1:1.18。

04
项目周边配套
学校配套:拾悦城楠园自带1所18班制幼儿园,根据2025年宝安区教育局最新的学区划分,小学学区划分在壆岗小学、宝安中学外国语学校(集团)拾悦小学、宝安中学外国语学校(集团)博雅学校(小学部),初中学区划分在沙井中学,荣根学校。
宝安中学外国语学校(集团)博雅学校,是1所九年一贯制学校,总规划36个教学班,其中小学24个班,初中12个班,可以提供1680个学位,在2024年秋季首次招生,2025年小一录取积分是101.8分,按这个积分需要宝安户籍+学区商品房才能读得上。
另外拾悦小学24年的录取积分是73.7分,沙井中学录取积分78.4分,荣根学校初一录取积分87.7分,非深户+学区商品房基础分75分,深户+学区商品房基础分100分。
⭐拾悦城楠园营销中心官方电话☎:400-8028-628【营销中心预约热线】(一对一热情服务)
⭐拾悦城楠园售楼处官方电话☎:400-8028-628【售楼处预约热线】(一对一热情服务)
交通配套:宝安拾悦城楠园的交通配套以"地铁11号线+公交网络+自驾路网"三位一体为核心,构建了便捷高效的出行体系。地铁11号线沙井站,距离约700米,步行5-8分钟即可抵达。地铁11号线作为深圳西部重要的南北向交通大动脉,连接福田、南山与宝安,从沙井站出发,仅需5站可达宝安机场,7站直达宝安中心区,10站到后海,12站至车公庙,快速通达前海湾、后海总部基地、深湾总部基地、福田中心等城市核心区域,为居民跨区通勤提供了极大便利。
自驾出行方面,项目紧邻宝安大道这一双向八车道的主干道,2023年已完成南坪快速互通匝道工程,通勤效率显著提升。从沙井段出发,非高峰期约25-30分钟可到达宝安中心区,高峰期可能延长至40分钟。此外,项目周边还有广深高速、107国道、外环高速等快速路网,可快速接入珠三角区域交通网络。
商业配套:宝安拾悦城楠园的商业配套呈现出"现有成熟商圈+规划大型商业体"的多层次布局,满足了居民日常购物、休闲娱乐及社交聚会等多元化需求。项目自带约4500㎡的商业配套,以社区便利性服务为主,如便利店、早餐店、小型超市等,满足业主日常生活基础需求。在项目周边3公里范围内,已形成了超48万㎡的成熟商业集群,为居民提供了丰富的购物选择和便捷的生活体验。
现有商业设施方面,项目1公里范围内有多个社区级商业体。最近的百佳华奥特莱斯距离项目约682米,是沙井居民日常休闲购物的重要场所;沙井街道的商业地标沙井京基百纳广场,总建筑面积约18万㎡,拥有近1000个停车位,2024年8月由阳光股份接手经营管理后引入了KKV、BIGOFFS超级折扣等深圳首店品牌,为沙井商业注入了新鲜活力。
在2公里范围内,万丰海岸城购物中心于2024年7月13日正式开业,建筑面积达20万㎡,定位为"湾区社交商业新地标",是深中通道开通后承接的第一波商业利好项目。该项目由"两个盒子mall+公共平台街区"组成,通过空中廊桥与住宅区连接,形成良好的商业氛围。万丰海岸城引入了300+品牌,其中约100家为宝安北及沙井片区首店,业态涵盖国际服饰、高端影院、特色餐饮、健身中心、儿童成长中心及娱乐体验中心等。
山姆会员店(宝安店),总建筑面积约9.1万㎡,配备900余个专用停车位,已于2025年10月31日正式开业,是深圳第五家山姆会员店,也是该品牌首次进驻宝安区域。该项目通过空中廊桥与万丰海岸城购物中心无缝连接,为居民提供了全球30多个国家的进口商品和仓储式购物体验,满足了家庭大宗采购需求。
05
项目现状
拾悦城楠园在2025年12月底已经正式交房,目前已经是现房,即买即住,也可以做到买哪套看哪套,买房即办证,也不用担心小区烂尾或者质量问题。

🟢拾悦城楠园售楼处电话🟢:400-8028-628【☎售楼处官方已认证】💨💨
🟢拾悦城楠园营销中心电话🟢:400-8028-628【☎营销中心官方已认证】💨
🟢拾悦城楠园展示中心电话🟢:400-8028-628【☎24小时官方预约热线】💨
💥温馨提示:本楼盘暂不接受临时到访,看房需提前来电预约!
💥将为您安排楼盘专业销售一对一接待服务!让你买的放心!
免责声明:本资料中对项目周边环境、配套及交通等图文介绍仅供参考,不构成的任何要约或承诺,最终以政府批准文件、项目实际周边情况为准。本项目的图文资料仅供参考、非要约,具体以交付时现状及买卖合同的约定为准。本公司保留修改宣传资料的权利,敬请留意项目最新资料,最终的解释权归本公司所有。
声明:本文由入驻焦点开放平台的作者撰写,除焦点官方账号外,观点仅代表作者本人,不代表焦点立场。
