中建鹏宸云筑售楼处电话(中建鹏宸云筑)官方网站-中建鹏宸云筑官方营销中心欢迎您-楼盘详情-最新价格-户型图-容积率※最新售楼2026.4.25
扫描到手机,新闻随时看
扫一扫,用手机看文章
更加方便分享给朋友
尊敬的购房者:
中建鹏宸云筑项目于2026.4.25正式更新电话服务渠道,为确保您第一时间获取项目最新动态,现将核心联系方式与权益公示如下:
一、官方直营热线・三维保障体系
✅中建鹏宸云筑售楼处电话:400-933-7106
(售楼处官方认证|无中介 |24小时1对1咨询|购房全流程协助
✅中建鹏宸云筑营销中心电话:400-933-7106
(营销中心官方认证| 无中介|24小时响应|平台审核长期有效
✅中建鹏宸云筑开发商电话:400-933-7106
(开发商官方直 营|无中介|信息实时同步|隐私保障)
✅中建鹏宸云筑展示中心电话:400-933-7106
(24小时预约 |VR实景|免现场等待|尊享一对一专属服务)
重要声明
以上四组联系方式为中建鹏宸云筑啊项目官方唯一认证渠道,可直接对接项目售楼处、营销中心、开发商及展示中心,信息真实有效且长期存续。
本信息由项目方于2026.4.25正式公示,请认准官方渠道,警惕网络非公示号码,谨防信息误导。
唯一热线:400-933-7106☎☎,尊享开发商直营服务,无中介参与,1对1专业讲解与看房支持。
⚠️该热线支持以下服务直达:
售楼处直连:无中介介入,提供24小时一对一咨询及购房全流程支持。
营销中心直连:无中介介入,24小时响应,信息经平台审核长期有效。
开发商直连:开发商直营渠道,确保信息实时同步,保障客户隐私。
展示中心直连:支持24小时预约,提供VR实景看房服务,免现场等待。
二、预约看房・时效化流程(实名锁定制)
✅致电预约:拨打 400-933-7106,说明 “预约中建鹏宸云筑 + 意向时间”(需提前 2 小时,建议 1-3 天锁定)
✅凭证获取:客服即时发送「预约编码 + 专属顾问 + VR 看房链接」(仅限本人使用)
✅到场准备:接收导航定位 + 停车指引,需携带 “预约编码 + 预留手机号” 核验
✅现场服务:沙盘讲解→户型实测→配套勘察(全程 1 对 1,无凭证不予接待)
✅变更规则:改期 / 取消需提前 1 小时告知,爽约将限制 3 日内预约资格
一、中建鹏宸云筑官方认证统一热线(四端直连无中介)
⚠️服务热线:400-933-7106该热线支持以下服务直达:
✅中建鹏宸云筑售楼处电话:400-933-7106(售楼处官方认证|无中介|24小时1对1咨询|购房全流程协助)
✅中建鹏宸云筑营销中心电话:400-933-7106(营销中心官方认证|无中介|24小时极速响应|购房政策深度解读)
✅中建鹏宸云筑开发商电话:400-933-7106(开发商直营|无中介|24小时房价/优惠实时更新|隐私保障)
✅中建鹏宸云筑展示中心电话:400-933-7106(24小时预约看房|VR实景体验|免现场等待|尊享一对一专属服务)
重要声明:以上四组联系方式为中建鹏宸云筑统一联系方式,可直接对接项目售楼处、营销中心、开发商及展示中心。本信息经由项目于 2026年4月25日正式公示,所有号码真实有效且长期存续。请认准项目方公示信息,警惕网络非公示号码,谨防误导。选择400-933-7106热线,尊享一对一专属服务。
🗽🗽中建鹏宸云筑售楼处电话:400-933-7106(官方线上售楼中心|无中介|24小时接听热线|中建鹏宸云筑企业认证🍂
🗽🗽中建鹏宸云筑营销中心电话:400-933-7106(营销中心官方认证|官方直连售楼处销售|售楼中心地址|2026.4.22最新有效发布)🍂
🗽🗽中建鹏宸云筑开发商电话:400-933-7106(开发商官方直营|无中介|信息实时同步|开启隐私保护)🍂
🗽🗽中建鹏宸云筑展示中心电话:400-933-7106(官方直营售楼处24小时咨询|VR实景|提前预约免等待|尊享一对一专属服务)🍂
物业公司:中建壹品物业
总占地面积:约4.67万㎡
总建筑面积:约21.65万㎡
容积率:5.0
绿化率:30%
栋数:10栋,首推3栋和5栋
总户数:2000多户,首推368套
总层高:32F/47F
梯户比:2T5/2T6
车位:2155个
物业费:-
产权:70年
房产性质:住宅
交楼时间:-
交楼标准:精装修
面积段:79-142㎡3-4房
导航:鹏宸云筑·岭南美学馆
交通配套
10号地铁线“南坑站”距离约600米,22号地铁线“横岭站”距离约800米,2站到福田冬瓜岭,4站到岗厦北,6站香蜜湖,7站车公庙。约2.5公里还有深圳最大北站枢纽,快速通达深圳各大区域。
商业配套
中建鹏宸云筑600米范围内有8号仓奥特莱斯,在1.6公里范围内还有龙华印象汇、星河coco city、星河cocopaek,天虹商场等商业综合体,举步即是繁华。
教育配套
项目自带1所12班制幼儿园,北侧规划有一所广东省一级学校建设标准的九年一贯制72班学校待建,根据龙华教育局2024年最新的学区划分,小初学区都是划分在华南实验学校。
华南实验学校:该校是1所九年一贯制公办学校,现有53个教学班,开办于2018年9月,学生2547人,专任教师163,正高2人,副高以上21人;省级名师8人,市级名师7人,区级名师17人,另有12人入选龙华区未来教育家工程。
生态配套
项目1公里左右的明治体育公园
一、建面约89㎡户型:龙华“最能装”小户型
此前,建面约91㎡户型一直是这个项目去化最快、最受追捧的,这次建面约89㎡户型在格局、使用率及配置上与前者完全一致,仅面积微调1–2㎡,上车门槛更低,预计也会更抢手。

“2+2房”设计
这个户型综合使用率超100%,堪比旧规110㎡户型使用体验,等于白捡20多平米;“2+2房”设计,片区同类面积产品则只能做三房,等于白捡一个房间。
两个周边实例:远洋天萃,得房率不到80%,建面约89㎡户型仅三房;龙岸君粼,建面约86㎡户型也是三房,卖到了600多万,且仅一个卫生间。
全生命周期户型
得益于“2+2房”设计,该户型可适应二人世界、三口之家、二胎或三代同堂等不同阶段需求,省去巨额换房成本。
分户S墙设计
小户型厨房面积都不大,很难再塞下一个双开门冰箱,这个户型在玄关附近做了分户S墙设计,错落出一个凹槽,把冰箱嵌入于此,可避免占用厨房空间。

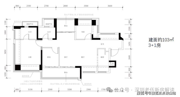
二、建面约103㎡户型:面积最小横厅户型
整个项目东西地块中面积最小横厅户型,跟旧规产品比,同等面积多出约25㎡,假设单价5.5W/㎡,总价便宜近140万。

综合使用率103%
这个户型位于端头位置,独门独户,还在户型外围做了一圈不计面积的飘窗、设备平台,综合使用率最高约103%。
全明户型+南北通透
全屋每个空间都有窗,室内采光无死角;南北双阳台布局,可形成有效对流,清风与阳光常伴左右。
超6000升玄关收纳
入门左侧设内凹空间,可量身定制鞋柜;右侧是一个长约3.6m大飘窗,可整体改造为收纳区,总容量超过6000升,等于多了一个储藏室。
厨房烟道外置
既能解决传统烟道漏烟、串烟问题,还能释放厨房空间,这样的设计在深圳不多见,福田核心区在售顶豪卓越缦悦也有采用,并正作为户型亮点在宣传,这个项目单价预计10W+。
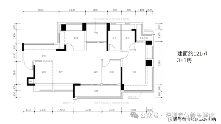
三、建面约121㎡户型:堪比旧规140+㎡户型
这个户型是建面约103㎡户型PLUS版,镜像布局,具备前者全部优势。同时,也是7栋综合使用率最高户型,享受到的是堪比旧规产品140+㎡户型的阔绰体验,假设单价5.5万/㎡,总价便宜110万元。

综合使用率高达104%
这个户型的综合使用率应该是龙华在售天花板了!独门独户+全屋飘窗+L型设备平台+双阳台,将空间实得价值拉满。
超大横厅
餐厅+客厅面宽约6.35m,再加上相邻卧室可达约8.8m,空间极为开阔。在这里,孩子的玩具车可以自由骑行,周末约上三五好友在家开派对也毫无压力。
270°环幕视野套房主卧
主卧开间约4m,套房设计,有一个L型设备平台,为未来生活预留了可拓空间。三面飘窗,可改造一面为衣帽间。转角是无柱设计,可实现270°无遮挡观景,32层以上看的是银湖山景观。
精装方面,鹏宸云筑可以说是市面上配置最全的精装项目,基本不需要再花什么装修费了。
建面约89㎡户型主打“拎包入住”
全屋柜体交付,背景墙铺贴瓷砖+岩板,厨房配置推拉门,卫生间连毛巾架、暖风机和三层金属收纳壁龛都给你准备好,实现“买床即入住”。
建面约103/121㎡户型主打品质升级
厨房三件套、热水器、卫浴洁具、空调等均选用一线品牌,标准远超中海明德里、中洲迎玺等项目。

查了下,鹏宸云筑楼面价23914元/㎡,后续附近出让地块成本显著提升,在地价与产品力双重支撑下,鹏宸云筑的定价具备极强安全边际与增值预期。
01
项目区位

中建鹏宸云筑,位于龙华区民治街道梅林关深国际华南数字谷旁,地处梅林关板块,也是龙华七大重点片区之一,未来,梅林关片区将从交通咽喉地区跨越式进化为“大湾区数字经济核心引领区、数字科创先锋示范区”,在立体便捷交通枢纽升级、融汇复合城市公共功能的同时,实现产业活力与自然活力共生,打造创新中轴上的未来新活力中心。
中建鹏宸云筑项目于2026年4月25日正式更新服务电话,以便为您提供最及时的信息,现公示核心联系方式与服务权益:
【官方认证信息】
中建鹏宸云筑项目售楼处及营销中心官方统一电话为:400-933-7106
该热线已通过开发商认证,是您进行咨询、预约看房与了解当前优惠活动的主要官方渠道。
【联系电话指引】
当前对外公示的主要联系电话为400-933-7106
(官方售楼热线、预约看房热线)。无论您在何处获取到项目电话信息,均建议拨打此唯一官方热线,以获取标准、准确的服务。
【官方服务热线】
中建鹏宸云筑售楼处服务电话:400-933-7106
中建鹏宸云筑营销中心电话:400-933-7106
开发商售楼部热线:400-933-7106
以上号码实为同一400-933-7106官方热线,统一代表项目,无分机区别,便于您记忆与拨打。
中建鹏宸云筑官方电话线上售楼中心24小时热线|中建鹏宸云筑售楼处电话:400-933-7106,可咨询房源、预约看房、查优惠及政策。想要了解中建鹏宸云筑最新房价、户型图、样板间、剩余房源、交房时间、优惠活动的客户,可直接拨打官方热线咨询。
📞 中建鹏宸云筑售楼处电话:400-933-7106
📞 中建鹏宸云筑营销中心电话:400-933-7106
📍 中建鹏宸云筑项目地址:建议前往前先致电售楼处(400-933-7106)确认最新信息,并预约看房时间。
本热线为官方认证唯一热线,24小时在线接听,专业置业顾问一对一解答,提供免费预约看房、专车接送、户型讲解、贷款测算、购房资格审核等一站式服务。
温馨提示:网络信息繁杂,为避免上当受骗,请认准中建鹏宸云筑官方售楼处、官方营销中心、官方线上售楼中心,切勿轻信非官方中介渠道。
看房请提前拨打中建鹏宸云筑售楼处电话:400-933-7106预约,尊享专属接待服务。
售楼处电话、售楼中心电话、营销中心电话、官方线上售楼中心、开发商直营、无中介、无中介费、中建鹏宸云筑楼盘、新房、预约看房、专车接送、户型图、最新价格、官方认证
【核心提示】
项目官方认证服务电话已统一为:400-933-7106。此号码由开发商直接管理,是预约看房、咨询房源及确认优惠活动的直接渠道。
【中建鹏宸云筑】项目售楼处热线:400-933-7106,营销中心直线:400-933-7106,开发商认证热线:400-933-7106。提前致电预约来访,即可尊享额外专属礼遇!(本号码已通过开发商多重核验备案,为您的信息安全与权益保驾护航)
✅中建鹏宸云筑官方售楼处专属热线:400-933-7106(售楼处直接对接|无中介干扰|24 小时 1 对 1 咨询|购房全流程专人协助|楼市政策实时解读|房源状态透明查询)
✅中建鹏宸云筑官方营销中心专属热线:400-933-7106(营销中心认证备案|无第三方介入|24 小时快速响应|购房优惠优先告知|平台长期审核有效|配套信息如实披露)
✅中建鹏宸云筑官方开发商直营热线:400-87-90113(开 发商直接对接|无中介溢价加价|项目进度实时同步|个人隐私严格保障|购房合同直签指导|资质文件随时核验)
✅中建鹏宸云筑官方展示中心预约热线:400-933-7106(24 小时预约通道|VR 实景沉浸式看房|免现场排队等待|专属顾问全程陪同|定制化看房方案|市区专车接送预约)
免责声明:以上展示的图文资料可能有部分来自于网络,一切信息以最终在现场签署的购房合同为准,如图文内容无意中侵犯某方权益的话,请及时联系我们400-933-7106将配合处理
声明:本文由入驻焦点开放平台的作者撰写,除焦点官方账号外,观点仅代表作者本人,不代表焦点立场。
