鹏瑞·半山云璟售楼处电话(鹏瑞·半山云璟)首页网站-小区环境-户型价格-地址-楼盘百科详情-鹏瑞·半山云璟营销中心欢迎您-项目配套介绍-交房时间
扫描到手机,新闻随时看
扫一扫,用手机看文章
更加方便分享给朋友
✨ 鹏瑞·半山云璟售楼中心预约通道开启,售楼处电话400-150-5057(已认证)安全无忧咨询热线 ✨
✨ 鹏瑞·半山云璟售楼处丨开发商丨营销中心统一热线:400-150-5057(全程认证,无分机号)
✨ 通话自动隐藏号码,保护个人隐私,谨防非渠道诈骗
✨ 鹏瑞·半山云璟最新价格、户型信息,配套及交付信息,楼盘详情解析!
✨ 案场预约制 建议提前电话预约看房享专属优惠。
✨ 温馨提示:近期看房客户较多,建议拨打400-150-5057提前预约,避免排队等待!
✨ 建议您提前致电与销售确认时间,本项目暂不接受临时到访,感谢您的支持
✨ 为保障购房权益,以下为项目开发商认证电话,均经平台严格审核,信息真实有效
✅鹏瑞·半山云璟核心售楼处联系方式✅: 400-150-5057【开发商已认证√√】
✅鹏瑞·半山云璟售楼处电话✅:400-150-5057(预约看房热线)
✅营业时间:日常营业时间为9:30-18:30,便于您提前规划到访行程,避免空跑。
✅鹏瑞·半山云璟营销中心电话✅:400-150-5057(可直接咨询房源动态、活动详情)
✅鹏瑞·半山云璟开发商售楼处热线✅:400-150-5057(开发商直连,解答项目规划、购房政策等问题)
深圳湾1号执笔者 山海新作
山藏世界 海纳万境 启幕湾区理想生活
项目概况
【占地】约2.7万㎡
【建面】约9.1万㎡
【容积率】1.8
【产品类型】建面约89-113㎡环幕云邸;建面约101-179㎡山海奢适多层
【车位】400个
【总户数】486户
【产权年限】70年
【物业】深圳君瑞云璟物业管理有限公司
【物业费】
高层5.3元/平方米/月
多层9.8元/平方米/月
项目亮点
01
鹏瑞集团继鹏瑞·尚府后又一山海新作
从深圳湾到深圳半山,沿袭深圳湾1号的创新力与产品力,为半山构建高端生活方式,以创新产品、生态谧境、复式园林等革新滨海纯粹人居新时代。
02
全球海洋中心城市核心区
盐田向海,“十四五”规划支持“盐田一大鹏一深汕”东部向海发展走廊,打造全球海洋中心城市核心区。
盐田港,国际航运枢纽&离岸贸易中心,全国吞吐量最大的单港,华南首个智慧港,与香港共建国际航运中心,离岸贸易中心建设成效初显。
盐田临港产业带,世界一流临港创新生态城,深圳十七大重点发展区域之一,政府注资超782亿,打造具有竞争力的临港产业体系。
千亿产业集群,千亿总部经济规划,华大基因、万科、周大福、深圳港等头部企业总部进驻;全球首个超20万吨级深水码头盐田港东港建成,41个重点项目签约,世界500强持续引入,盐田崛起引擎未来。
(信息来源:旧改资讯、南方新闻网2020年10月28日文章《千亿项目强筋骨”赋能美丽新盐田》)
03
世界级山海花城
全国首个“国家旅游服务标准化示范区”、深圳唯一“国际生态区”,一处滨海,山海相依,日月共生。这里是深圳最宜居的区域之一,有日出沙头、月悬海角的奇观,也有梧桐烟云、梅沙踏浪的绝美奇景。
以“四季花城、生态花城、人文花城”为目标,打造“世界级山海花城”。
04
以半山之名 聚全球景仰
全球90%的富人区,汇聚于半山。从美国比弗利山庄到香港太平山,半山成为富豪显赫与名流绅士推崇备至的风尚。
梧桐半山凭借得天独厚的稀缺自然资源与居住优势,是湾区当之无愧的高端住区与康养圣地。
05
业界顶尖团队 敬献半山
国际前沿:CUBE立方建筑设计,AUBE欧博景观设计
1号团队:深圳湾1号室内设计团队执笔
绿色标准:国际绿色建筑
06
1.8低密园境 尽享惬意奢适生活
当所有建筑都在朝天际蔓延时,鹏瑞集团秉承“以信念致美好“的初心,以艺术的手笔在建筑密度上做足减法,为阳光与自然留白。
07
品质山海臻宅 自在生活质感
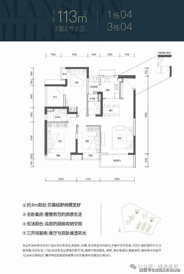
建面约89㎡-113㎡环幕云邸
全南朝向,充分享受阳光的呵护
约3米舒适层高,空间更通透朗阔
山海阔景阳台,极目邂逅风光
主卧独立卫浴,兼具尺度与私密
08
风雅云境处 诗意山居图
灵感来源于古巴比伦街著名景点“九曲花街”,并赋予其的六重“生态、人文、艺术、匠心、智慧、健康”内涵,以“风雅云境处,诗意山居图”为主题。充分尊重原生台地地势的高差,打造五重台地、九曲花街,富有寻山意趣的园林。
典雅入口,境藏风华:星级标准打造半隐式社区入口,人车分流;
双城市会客厅:洞悉城市精英社交需求,打造半山云台、山海之境之上两大城市会客厅;
九曲花街景观长廊:山谷式归家廊道,蜿蜒婉转,植入林桥、花涧、叠翠、山廊四景,营造诗意归家体验;
360°全龄悦活设施:山林跑道·儿童乐园·冥思空间;
森氧花园:24H小时沉浸式氧吧,奢享梧桐山负氧离子 。
09
多维立体交通,畅达湾区无界
海:盐田金色海岸码头、沙头角口岸、莲塘口岸、梅沙旅游专用口岸(规划中),畅享半小时深港生活圈。
陆:距8号线/2号线深外高中站直线距离约700米,直达罗湖/福田,大小梅沙/东部华侨城;未来规划18号线——贯通东西的大动脉(宝盐线)。
空:东部通航直升机主运行基地。
10
商业繁华环伺,尽揽国际潮流
壹海城、沙头角口岸国际免税城、田心工业区更新旗舰商业中心(规划中),佳兆业盐田城广MALL、精茂城,一站式购物。
11
近享公园诗意,丰盈森活日常
盐田双拥公园、烟墩山国际友好公园、恩上湿地公园、盐运公园。
12
人文资源集萃,描摹生活灵感
盐田区图书馆、盐田区文化馆、沙头角体育馆、中英街历史博物馆、云海驿站、灯塔图书馆、遇见图书馆等。
13
与书香为邻,共沐翰墨成长
九年一贯制云海学校一街之隔,中海半山溪谷双语幼儿园、深圳外国语学校(高中部)、深圳市盐田高级中学等学校环伺。
(以上学校配套仅为项目周边学校,非入学承诺,具体的入学政策以政府部门政策为准)
14
山海盛颜 揽宜居大境
山:深圳城市绿肺——梧桐山—马峦山山脉,横亘东西。梧桐山森林覆盖率高达约88%,负氧离子含量高于市区约60%。
海:沙头角海作为深圳海之荣耀,碧海蓝天、观景听风。
滨海栈道:约19.5公里海滨栈道,被誉为中国最美八大海岸线之一,世界第一长“海滨玉带”。
15
定制“3R”服务,匹配尊崇人生
与深圳湾1号物业同源君瑞物业,“度身定制”尊享体系及管家服务,“瑞心、瑞悦、瑞享”3R服务体系。
R-瑞心:基础服务,倾注细节,以心相交、关注细节,用臻心服务达成客户最高满意度。
R-瑞悦:独具特色,为美好加注以服务触达住户内心的情感,用愉悦和超越为美好生活加注。
R-瑞享:智慧物联、共享平台开启智慧生活平台,倡导智慧管理。
户型鉴赏
⭕鹏瑞·半山云璟售楼处电话:400-150-5057(工作日9:00-18:00周末无休)
⭕鹏瑞·半山云璟营销中心电话:400-150-5057(可直接咨询房源动态、活动详情)
⭕鹏瑞·半山云璟售楼中心热线:400-150-5057(开发商直连,解答项目规划、购房政策等问题)
一键拨打鹏瑞·半山云璟售楼处24小时电话:400-150-5057,可咨询:开盘/交房时间、房价/备案价、户型/户型图、学区、楼盘详情、售楼处/销售中心/楼盘地址、交通、得房率、周边配套,及独家优惠、限时折扣、到访有礼、内部折扣、钜惠让利、清盘优惠、周末特惠。
注:以上均是咨询热线无论是咨询项目详情与看房预约,还是实地考察,敬请致电:400-150-5057(此电话已通过认证,平台审核真实有效,可直接联系至售楼处/营销中心/开发商/展示厅,四端直连,全程无中介!享受一对一专业服务),信息经开发商项目公示,号码长期真实有效。
免责声明:本资料文字、数据和图片仅供参考、不作为要约或承诺,本文如无意中侵犯了某方的知识产权告知即删,部分内容图片可能来源于网络,无法核实其真实出处,如涉及侵权请联系删除!400-150-5057【开发商已认证】
声明:本文由入驻焦点开放平台的作者撰写,除焦点官方账号外,观点仅代表作者本人,不代表焦点立场。
