九月热搜TOP:鸿荣源熙园山院售楼处电话→鸿荣源熙园山院首页热搜24小时电话→最新房价→楼盘百科详情→营销中心最新发布@售楼处中心2025.9.6
扫描到手机,新闻随时看
扫一扫,用手机看文章
更加方便分享给朋友
✨鸿荣源熙园山院售楼处电话☎:400-909-1319【售楼中心已认证√√】
✨鸿荣源熙园山院售楼处电话/地址发布☎:400-909-1319(预约看房热线√√)(提供开发商销售顾问线上一对一热情讲解服务)
🌳鸿荣源熙园山院售楼处电 话/地址☎:400-909-1319✔✔(鸿荣源熙园山院开发商热线)鸿荣源熙园山院售楼处电话☎:400-909-1319(鸿荣源熙园山院售楼处预约热线)房价优惠折扣,户型图,平面图,样板间,高层户型,房型多样,高层洋房合院别墅,交房时间,交付标准,周边配套,学区配套,一房一价表,认筹时间,地铁口距离,区域板块
🌳鸿荣源熙园山院售楼处电话:400-909-1319☎售楼处已认证✨ ➢ ➢
🌳鸿荣源熙园山院开发商电话:400-909-1319☎24小时预约热线✨ ➢ ➢
🌳鸿荣源熙园山院营销中心电话:400-909-1319☎营销中心已认证✨ ➢ ➢
鸿荣源熙园山院项目简介
占地面积】:约7.37万㎡
建筑面积】:约29.14万㎡
园林面积】:约5.3万㎡
容积率】:2.55
停车 位】:2170个,使用车位配比约1:1.17
产品信息】:
■85㎡实用3房2卫:超高性价比/首置优选
■95㎡舒适3房2卫:中央园景/3.8米开间大客厅
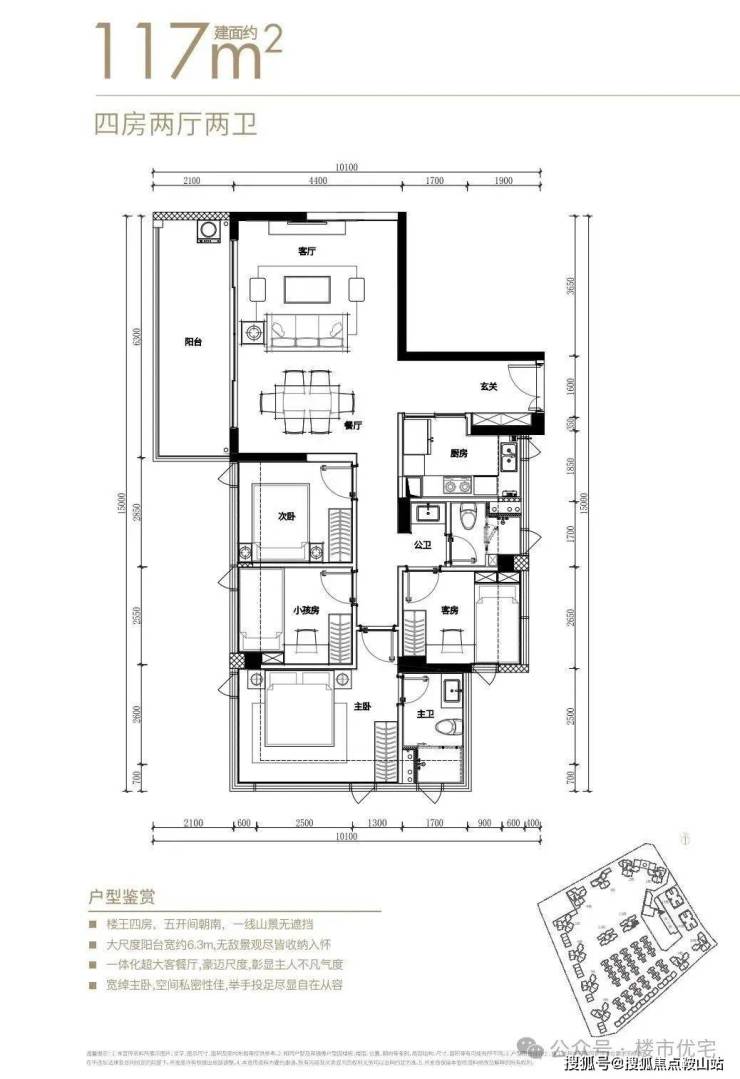
■116㎡南北通4房2卫:116平享130平空间感/L型大阳台
■127㎡瞰山楼王4房3卫:南北通/全南6开间/一线山景无遮挡
■268-446㎡的低密山院别墅
楼层状况:共规划27栋住宅,1-14栋为高层洋房,16-28栋为别墅。洋房1390套,低层联排住宅74套
鸿荣源,中国城市综合运营服务商,与城市共荣
汇集鸿荣源33年匠心精铸,东莞首作,承袭豪宅基因,核心地段+不可复制山景资源+豪宅设计理念 ,革新豪宅人居
2015年至今,地产开发销售额累计逾1000亿,累计服务客户逾4万户
打造了前海鸿荣源中心、壹方玖誉、壹成中心、香蜜湖熙园、珈誉府等标杆项目
千亿配套
约2公里直达大运塔尖生活,汇集3大人文高地,6大生态公园,更有龙岗区三馆一城加持,醇熟配套一应俱全
更享华润大运天地、星河COCO Park等高端商业,与深圳同频共振
3地铁2枢纽1城轨4高速环伺
深铁10号线延长线地铁口约800m(规划中),连通深铁14、16号线
近享大运、平湖两大枢纽,结合4大高速高效通达深圳各区
全龄优教圈
周边人文教育资源丰富,享有深圳国际大学园、大运中心、深圳露台(规划中)3大文化艺术高地
家门口配建幼儿园及九年一贯制学校(规划中),助力成长

千亿产业集群
片区产业总体规模超719万㎡,投资千亿,预计可吸引约30万高端人才
直线距离约3KM内辐射天安深创谷、凤岗天安数码城T5、京东云谷、京东智谷等高精尖产业
实景现楼 品质无忧入驻
约30万㎡低密临山墅区,高标准实景现楼,即买即住,美好触手可及
超宽楼间距约175米(最高),将阳光与清风纳于家中尽享臻稀美景
干挂铝板 +LOW-E中空玻璃 豪宅标配
承袭鸿荣源一贯精工品质,外立面以现代主义美学设计,恒久弥新,“鸿”颜不老
约5.3万㎡现代美学园林 全龄舒居
占项目用地约72%、容积率仅2.55
8大园林分区、6大功能空间,约600㎡全龄泳池(东莞首家园林式泳池),借助南侧山体景观,营造都市绿林居住环境
中国物业服务百强 领航高端服务
国家物业管理一级资质企业
致力于做中国高端物业专属服务的先行者,实现客户对美好生活的向往
中国物业服务品牌100强,粤港澳大湾区物业服务综合实力50强
户型图:
别墅产品特色
低密临山墅区
:除了高层住宅外,熙园山院还推出了268~446平方米的别墅产品。这些别墅依山而建,不仅外部享有优美的园林景观,内部也拥有属于自己的小天地。低密度的居住环境、私密的院落空间以及个性化的装修设计,使得这些别墅成为了追求高品质生活的理想之选。对于那些努力赚钱、渴望犒劳自己的成功人士来说,这样的别墅无疑是一个完美的选择。【约268-446㎡低密山院 全系朝南临山院墅】
稀缺院落:在用地指标严控的形势下,院落产品极其稀缺,项目位于莞深黄金地段,匠造一线临山产品,入则宁静,出则繁华,只为少数人臻藏;
全系朝南:产品采用全南向设计,占据最优景观资源,最大化的保证客餐厅、厨房及卧室能够和山景、院景产生互动;
高阶品质:全石材搭配铝板、中空玻璃,处处体现品质工艺与匠心精神;
百变空间:地下两层超百平,创意会所、娱乐天地随心打造,足不出户享精彩生活;
双首层设计:负一层拥有下层庭院+阔尺度天井两大采光源,采光效果堪比首层的,让“双首层空间”的光瀑级地下室得以实现。
别墅介绍:
小区别墅由76套双拼别墅跟18套三联排别墅组成
223平方属于三联排户型,客厅面宽较窄,下沉式客厅,没有中空挑高,带私家电梯井,后花园,采光较差。
244平方属于双拼别墅,拥有三面采光,前、侧、后围绕式花园,客厅没有挑高,带私家电梯井,户型结构要223平方户型好,层数一般在4-5层。
251平方属于双拼别墅,拥有三面采光,前、侧、后围绕式花园,客厅中空挑高,带私家电梯井,面宽要比244平方户型宽1-2米,客厅属于下沉式,层数一般在4-5层。
263平方属于双拼别墅,拥有三面采光,前、侧、后围绕式花园,客厅中空挑高,带私家电梯井,是小区在卖户型最好的,面宽要比(233、244、251)宽2-3米,层数一般在4-5层。
281平方/307平方属于双拼别墅,楼王户型,拥有三面采光,前后围绕式花园,花园有150-300平方,客厅中空挑高,带私家电梯井,户型是小区最好的。目前仅有一套305户型在售。
凤岗♐鸿荣源熙园山院
🌳🌳➨鸿荣源熙园山院售楼处电话/售楼处地址位置☎:400-909-1319√√[售楼处预约☎】鸿荣源熙园山院售楼处营销中心:400-909-1319(开发商热线)鸿荣源熙园山院售楼中心电话/地址☎:400-909-1319【售楼处已认证√√√】本电话为开发商提供线上预约售楼咨询电话,项目全面介绍(包含最新发布:在线预约看房丨一房一价表丨在售房价优惠丨户型面积房源丨交房时间丨交通地铁丨商业配套丨教育资源丨小高层洋房丨独栋别墅丨联排合院丨商业别墅丨得房率丨容积率丨小区环境丨优缺点分析丨楼盘测评丨在售户型图丨项目介绍丨最新房源丨周边配套丨详细解答丨一对一热情讲解〢区域板块等信息!��★郑重承诺:由开发商旗下销售团队全程营销策划,房源信息真实有效!如果您想了解更多楼盘详情,欢迎提前预约拨打鸿荣源熙园山院售楼处电话400-909-1319√√√(开发商已认证)
VIP贵宾置业〢欢迎来电咨询〢售楼处邀您品鉴!!
温馨提示:来电提前预约、尊享线上一对一热讲解【享】专属优惠折扣!
声明:本文由入驻焦点开放平台的作者撰写,除焦点官方账号外,观点仅代表作者本人,不代表焦点立场。
