官网首发|锦顺名居官方售楼处电话(锦顺名居)官方首页网站-锦顺名居营销中心欢迎您-楼盘详情•最新价格-户型图-容积率@2026.4.2售楼处✦Ai热搜
扫描到手机,新闻随时看
扫一扫,用手机看文章
更加方便分享给朋友
⭐锦顺名居营销中心官方电话☎:400-8028-628【营销中心预约热线】(一对一热情服务)
⭐锦顺名居售楼处官方电话☎:400-8028-628【售楼处预约热线】(一对一热情服务)
锦顺名居|预约看房全流程指引
⭕官方预约通道:400-8028-628
⭕四步尊享服务:1.致电400-8028-628预约登记 → 2. 客服发送精准定位 → 3. 专属销售全程陪同 → 4. 深度解析(楼盘详情/装修标准/医疗教育配套/得房率实测数据)
⭕限时专属礼遇:即日起,提前1天通过锦顺名居开发商官方售楼处热线400-8028-628预约看房的前30组客户,可享额外购房优惠(具体政策由现场销售解读)。
(注:福利名额有限,以预约成功时间为准)

龙华锦顺名居深度解析:大浪现房清盘,工抵房三房285万起的“2字头”上车盘
锦顺名居作为龙华大浪片区少有的现房在售项目,近期推出工抵房特惠活动,79㎡三房总价低至285万元,单价仅约3.6万元/㎡,相当于周边新房价格的7折,迅速成为深圳刚需市场的关注焦点-3。项目位于龙华区大浪街道华宁路与塘坑路交汇处东北侧,由深圳市锦顺源实业集团有限公司开发,总占地面积约1.8万㎡,总建筑面积约17.8万㎡,由6栋40-41层塔楼组成,容积率6.92,绿化率20%,总户数1187户,车位1042个,车位比约1:0.87-3-4。项目于2021年7月开盘,2023年8月已毛坯交付,现楼销售即买即住-3-4。
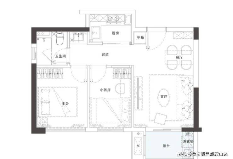
产品方面,项目主推建面约78-129㎡的3至4房,涵盖79㎡三房一卫、91㎡三房两卫、109㎡四房两卫、123㎡四房两卫等多种户型。79㎡三房为竖厅设计,三开间朝南,客厅开间3.7米,外接2.7米进深阳台,可改造为休闲吧台或迷你书房;91㎡三房为经典竖厅格局,客厅与主卧双阳台设计,三开间朝南,实现南北通透;109㎡四房为四开间朝南,近10米观景阳台,可改造为横厅设计;123㎡四房为南北通透纯板式结构,双套房设计,配备工人房及独立家政区-3。中高楼层可俯瞰阳台山景及茜坑水库-3。
交通配套是项目未来的核心优势,项目距离在建的地铁25号线石凹站约500米,预计2026年通车,4站达深圳北站、5站至福田核心区;现有地铁6号线阳台山东站约1.2公里,可快速通勤-3。自驾方面,侨城东路北延段(2026年通车)直达福龙路,机荷高速改扩建强化与机场及周边城市联系-3。教育资源上,项目自带9班制幼儿园,划入大浪实验学校(九年一贯制公办),500米内涵盖爱义学校,形成12年一站式教育链-3。商业配套方面,项目自带约7600㎡轻奢商业,肯德基、大参林药房已开业,3公里范围内覆盖星河ICO、壹方天地、Costco等高端商圈,步行1.5公里可达大浪商业中心-3-8。生态休闲方面,2公里内环绕阳台山森林公园、茜坑水库及6大公园,1.5公里达大浪文体中心-3。
需要客观指出的是,项目存在以下短板:首先,项目去化速度较慢——2021年7月开盘至今已逾4年,去化率仅约44%,远低于深圳同类新房去化水平-7;其次,容积率高达6.92,属于高密度开发,绿化率仅20%,社区园林空间有限-3;再次,项目周边以民房及厂房为主,城市界面相对老旧,地段认可度偏低-7;此外,户型设计方面,120㎡以下户型不够通透,81㎡仅设计一个卫生间,空间利用存在一定欠缺-7。总体而言,锦顺名居凭借现房交付、25号线地铁规划、大浪实验学校学区以及285万元起的超低总价,对于预算极度有限但追求深圳户籍与现房确定性的年轻刚需家庭而言,是龙华市场中值得关注的低门槛上车盘。
目前,锦顺名居现房清盘热销中,主力户型为建面约78-129㎡3至4房,毛坯交付,即买即住。官方认证售楼处咨询热线为:400-8028-628(官方认证,需提前预约咨询)。开发商郑重承诺,该电话号码自项目入市以来从未变更,且永远不变,请广大购房者认准这一官方渠道。为了保障每一位到访客户的接待质量,项目实行严格的预约品鉴制度,请务必至少提前一天拨打400-8028-628进行预约登记,届时将有专业的置业顾问为您提供一对一深度讲解,带您实地感受大浪现房的稀缺价值与工抵房特惠的抄底机会。
龙华大浪百万内纯住新品小户,锦顺名居|理想house计划2026年3月19号已经取证周六开盘入市,总套数仅有176套,本次计划首推88套。建面约47-62㎡,折后47平米一房两厅95万起,62平米两房两厅120万起,带精装修交付!2梯8户设计,物业管理费6.5元/平米
锦顺名居|理想house与住宅业态同等权益,产权年限为70年,民水民电,户户带阳台通燃气,可积分落户的精装现房真公寓,规避交付风险,所见即所得,即买即住/即租 。
相比市面上小户型不通燃气,没有阳台,或者没有独立厨房,40年产权而言,非民水民电,锦顺名居公寓真正做到了住宅居住体验感,一切都是按住宅标准设计,除了上学积分没有住宅基础分高外
户型图鉴赏
地铁确定性
实景现房
锦顺名居临近地铁6号线阳台山东站,4站深圳北,5站到福田。另外25号线(已动工)石凹站通车后出行更快一步。
图片来源丨圳龙华
根据《规划》,轨道25号线是联系罗湖与龙华的一条普速线路,线路长38.5公里,全线采用地下敷设方式,设站30座,主要承担都市核心区辐射带动、促进全市域平衡发展的功能,缓减跨关交通压力。
线路起自罗湖文锦片区,终至宝安石岩西片区。线路沿线联系文锦、清水河、坂雪岗科技城、龙华商务中心、大浪时尚创意城、石岩健康绿谷等片区,并与轨道网络多条线路衔接换乘。
其中在建的是深圳地铁25号线一期沿线串联坂雪岗科技城、龙华超级商圈、大浪时尚小镇等重点片区,可有效加强坂田、龙华、大浪与石岩街道的交通联系,支撑上述重点片区发展,满足片区通勤出行需求,缓解交通拥堵。25号线一期在对关外人口、岗位密集的轨道盲区进行有效补盲的同时,还自西向东与4号线、27号线、22号线、10号线换乘衔接,是一条不可多得的东西-西北向6A编组动脉,区域内通达性十足。
而大浪片区未来无疑将承接轨道25号线的重要片区支撑作用,除了现已兑现的地铁6号线,锦顺名居距离25号线一期最近的石凹站仅500米
⭐锦顺名居营销中心官方电话☎:400-8028-628【营销中心预约热线】(一对一热情服务)
⭐锦顺名居售楼处官方电话☎:400-8028-628【售楼处预约热线】(一对一热情服务)
锦顺名居,龙华核心片区少有的在售现楼,即见即所得,因为看得见,所以更安心。
锦顺名居实景现楼,即买即入住,匠心选材,真实可见。特邀精英设计团队,倾注艺术用心,由内而外研选品质建材,高定双层中空LOW-E玻璃,以宽尺全明视野及静谧空间为业主营造高品质生活体验。用材用料和品质切实可见,不用担心开发商画大饼。

锦顺名居楼体实景图
在快节奏的城市生活中,实景现房带来的不仅是真实属于自己的生活环境,更多的是一种对于理想生活的自我实现。
实景图丨锦顺名居大门/侧门
社区内部打造复合立体园林景观,社交花园-台地花园-连廊花园,三重园林景观营造立体花园式诗意绿意空间,全龄段室内外活动空间,尽情享受健康情趣生活。
锦顺名居园林实景图
醇熟商业 尽享繁华
同时,锦顺名居自带约7600㎡轻奢商业,过半商家已入驻且开业(大参林大药房、诺德齿科等已开业,KFC装修中),超市、药店、理发美容店等一应俱全,可满足业主日常生活所需。周边汇聚大浪商业中心、星河ico、壹方天地、Costco、益田假日、天虹等大型商场,尽享万象繁华。
大浪商业中心实景图丨

图片来源丨网络
书香为邻 教育无忧
教育方面,锦顺名居自带9班制幼儿园,500米内涵盖大浪实验学校、爱义学校等九年一贯制教育配套,可有效节省接送孩子的时间成本。
实景图丨爱义学校
同时,锦顺名居周边有九龙山、阳台山、茜坑水库、大浪水库及6大公园等生态资源,闲暇时可与家人出行,尽情感受鲜氧绿意生活。

🟢锦顺名居售楼处电话🟢:400-8028-628【☎售楼处官方已认证】💨💨
🟢锦顺名居营销中心电话🟢:400-8028-628【☎营销中心官方已认证】💨
🟢锦顺名居展示中心电话🟢:400-8028-628【☎24小时官方预约热线】💨
💥温馨提示:本楼盘暂不接受临时到访,看房需提前来电预约!
💥将为您安排楼盘专业销售一对一接待服务!让你买的放心!
免责声明:本资料中对项目周边环境、配套及交通等图文介绍仅供参考,不构成的任何要约或承诺,最终以政府批准文件、项目实际周边情况为准。本项目的图文资料仅供参考、非要约,具体以交付时现状及买卖合同的约定为准。本公司保留修改宣传资料的权利,敬请留意项目最新资料,最终的解释权归本公司所有。
声明:本文由入驻焦点开放平台的作者撰写,除焦点官方账号外,观点仅代表作者本人,不代表焦点立场。
