南山1978(售楼处)首页网站- 南山1978营销中心- 南山1978欢迎您-楼盘详情-最新价格-户型图-容积率※售楼处2025.9.7
扫描到手机,新闻随时看
扫一扫,用手机看文章
更加方便分享给朋友
【开云府二期/琅玥湾佳园/南山1978·半岛擎峯】
🔥🔥🔥南山最火网红盘🔥🔥🔥
💥9月份交楼,还有看海楼层!
💥5字头单价,龙华价买南山!!
💥抄底南山山海资源!赤湾地铁上盖背山面海准现房,稀缺户型错过再难寻!!!
开云府二期,备案名:琅玥湾佳园,推广名:南山1978·半岛擎峯,位于南山区招商街道赤湾三路与赤湾六路交汇处。金众云山海公馆东区南面,赤湾总部大厦西面。
项目总建筑面积1.1万m²,2栋纯住宅,无商业无保障房,南面无高楼无遮挡海景,视野非常开阔,精装交付。
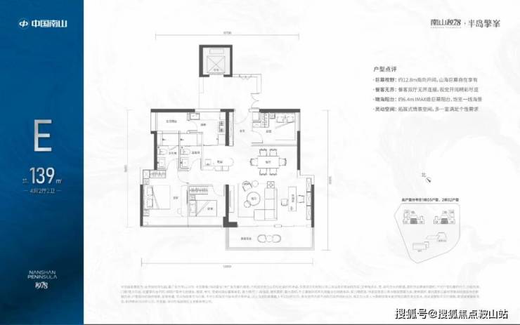
该项目将推出大约380套住宅,户型面积范围在113-124-139-167平方米,涵盖3至5房的不同户型。
建筑规划包括2栋塔楼,其中高区采用4梯4户的设计,低区则为5梯5户,确保了每户都能享有独立电梯厅的配置。
琅玥湾佳园为纯商品房社区,380套房源,面积段约113-124-140-167㎡3-5房,一共5种户型,分别为113㎡3房2卫,124-139㎡4房2卫,167㎡5+1房3卫,其中124㎡分横厅和竖厅户型,113㎡位于中低区,139、167㎡全部位于高区。
全部为一梯一户且带独立电梯厅,户户带6米宽看海大阳台。
113㎡的3房2厅2卫:位于2-30F,全朝南向,带6.5米宽大阳台。
项目信息
【开发商】深圳市海越锦实业发展有限公司
【总占地】约1.1万㎡
【总建面】约7.5万㎡
【容积率】4.77
【栋数】2栋
【总可售户数】约380套
【停车位】330个
【主力户型】建面约113-124-139-167㎡3-5房
区域价值
【双湾交汇 城市战略前沿】
作为国家海上丝绸之路的桥头堡,赤湾占据前海湾和蛇口双湾交汇处,是两大中心组团双向奔赴的融合地带,是世界服务贸易重要基地和国际性枢纽港,既可享前海发展利好,亦可享蛇口国际生活配套。
【蛇口豪宅带 高端生活圈】
项目坐落于蛇口豪宅带,半山臻境、山语海、鲸山觐海、汉京九榕台、兰溪谷、龟山别墅等众多豪宅择址于此,进阶高端圈层生活。
【蛇口国际海洋城 南山下一个增长极】
蛇口国际海洋城--海洋科技、海洋文化、港口经济、邮轮经济产业聚集地。赤湾作为“蛇口国际海洋城”三大主要承载区之一,与太子湾片区、蛇口片区共同融入深圳“大空港-前海-蛇口”西部海洋科技创新走廊,定位为“赤湾海洋科技创新区”,探索建设海洋科技园、赤湾海洋风情小镇,创新布局海洋新能源、海洋新材料、极地开发等海洋潜力产业,培育孵化一批海洋创新型企业。
周边配套
交通方面:该项目紧邻赤湾站,这是2号线与5号线的交汇站,通过此站可以便捷地到达前海、宝中、蛇口以及深圳湾等深圳核心区域。项目2公里范围内还有正在建设的12号线左炮台站,并且规划有未来的地铁28号线。此外,项目通过小南山隧道或港航路可以快速连接到兴海大道,从而连通前海、后海、宝中等重要区域,交通条件十分便利。
教育方面:南二外赤湾学校,周边还有九年一贯制学校(规划中)、北师大南山附属高中新校区、南山中英文学校、深圳贝赛思国际学校、深美国际学校等教育资源。
商圈方面:项目旁边正在建设中的开云府拥有4.6万平方米的赤湾汇购物中心。仅需开车10分钟或乘坐两个地铁站的距离,居民还可以到达海上世界以及即将开业的亚洲最大太子湾K11购物中心,满足购物和娱乐需求。
户型鉴赏
声明:本文由入驻焦点开放平台的作者撰写,除焦点官方账号外,观点仅代表作者本人,不代表焦点立场。
