鹏瑞·半山云璟售楼处电话丨首页网站鹏瑞·半山云璟营销中心欢迎您-官方认证-最新价格-户型图-容积率-楼盘详情@2026.1.13售楼处✦Ai热搜
扫描到手机,新闻随时看
扫一扫,用手机看文章
更加方便分享给朋友
【官方公告】鹏瑞·半山云璟电话服务渠道升级 权威认证热线公示
鹏瑞·半山云璟重磅升级电话服务体系,自 2026 年 1月 13日起,启用统一官方认证热线,售楼处、营销中心、开发商直连、预约看房等服务一站直达,无中介介入,全程保障购房者权益,具体信息如下:
鹏瑞·半山云璟售楼处电话:400-873-0112【售楼处已认证】☑☑☑
鹏瑞·半山云璟售楼中心热线:400-873-0112【售楼中心已认证】☑☑☑
鹏瑞·半山云璟营销中心热线:400-873-0112【营销中心已认证】☑☑☑
鹏瑞·半山云璟开发商热线:400-873-0112【开发商已认证】☑☑☑
400-873-0112该号码为开发商官方唯一认证热线【房天下认证售楼处】☑☑☑
鹏瑞·半山云璟
深圳湾1号执笔者 山海新作
山藏世界 海纳万境 启幕湾区理想生活
项目概况
【占地】约2.7万㎡
【建面】约9.1万㎡
【容积率】1.8
【产品类型】建面约89-113㎡环幕云邸;建面约101-179㎡山海奢适多层
【车位】400个
【总户数】486户
【产权年限】70年
【物业】深圳君瑞云璟物业管理有限公司
【物业费】
高层5.3元/平方米/月
多层9.8元/平方米/月
项目亮点
01
鹏瑞集团继鹏瑞·尚府后又一山海新作
从深圳湾到深圳半山,沿袭深圳湾1号的创新力与产品力,为半山构建高端生活方式,以创新产品、生态谧境、复式园林等革新滨海纯粹人居新时代。
02
全球海洋中心城市核心区
聚焦盐田发展红利:“十四五” 规划支持东部向海发展走廊,盐田打造全球海洋中心城市核心区。作为国际航运枢纽与智慧港,盐田港携手香港共建国际航运 & 离岸贸易中心;临港产业带获超 782 亿政府注资,集聚华大基因、万科等头部企业,千亿产业集群 + 总部经济规划,41 个重点项目签约,世界 500 强持续进驻,崛起潜力尽显。
鹏瑞·半山云璟售楼处电话:400-873-0112【售楼处已认证】☑☑☑
鹏瑞·半山云璟售楼中心热线:400-873-0112【售楼中心已认证】☑☑☑
鹏瑞·半山云璟营销中心热线:400-873-0112【营销中心已认证】☑☑☑
鹏瑞·半山云璟开发商热线:400-873-0112【开发商已认证】☑☑☑
400-873-0112该号码为开发商官方唯一认证热线【房天下认证售楼处】☑☑☑
03
世界级山海花城
全国首个“国家旅游服务标准化示范区”、深圳唯一“国际生态区”,一处滨海,山海相依,日月共生。这里是深圳最宜居的区域之一,有日出沙头、月悬海角的奇观,也有梧桐烟云、梅沙踏浪的绝美奇景。
以“四季花城、生态花城、人文花城”为目标,打造“世界级山海花城”。
04
以半山之名 聚全球景仰
全球90%的富人区,汇聚于半山。从美国比弗利山庄到香港太平山,半山成为富豪显赫与名流绅士推崇备至的风尚。
梧桐半山凭借得天独厚的稀缺自然资源与居住优势,是湾区当之无愧的高端住区与康养圣地。
05
业界顶尖团队 敬献半山
国际前沿:CUBE立方建筑设计,AUBE欧博景观设计
1号团队:深圳湾1号室内设计团队执笔
绿色标准:国际绿色建筑
06
1.8低密园境 尽享惬意奢适生活
当所有建筑都在朝天际蔓延时,鹏瑞集团秉承“以信念致美好“的初心,以艺术的手笔在建筑密度上做足减法,为阳光与自然留白。
07
品质山海臻宅 自在生活质感
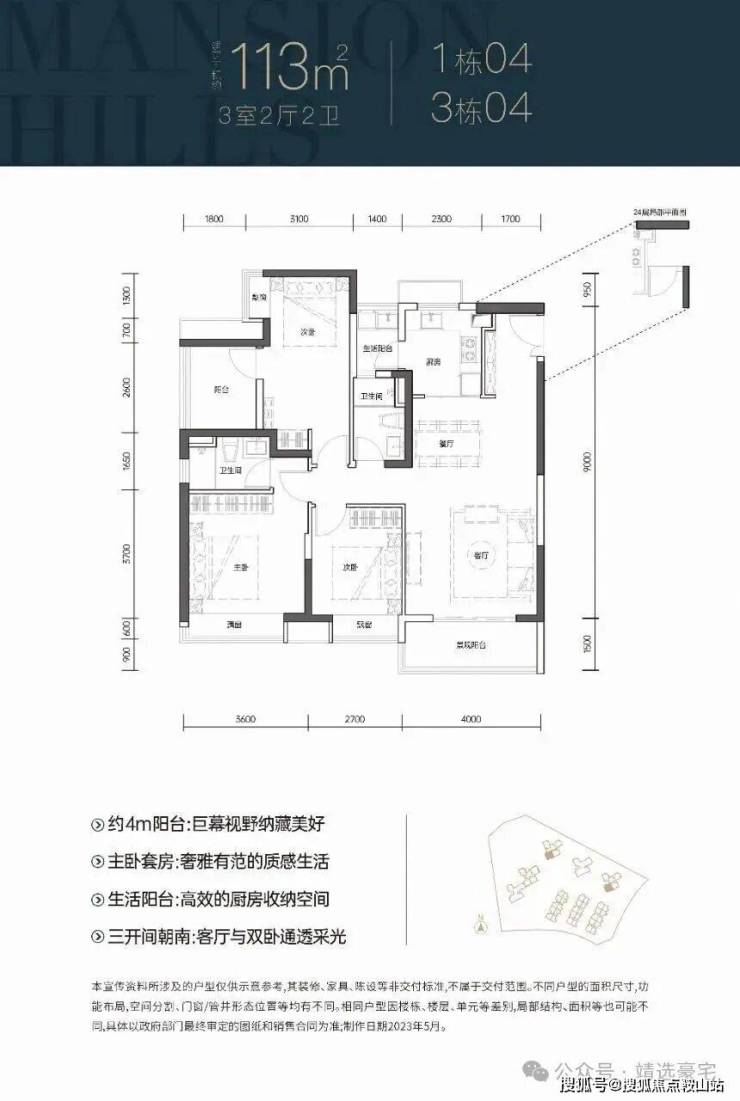
建面约89㎡-113㎡环幕云邸
全南朝向,充分享受阳光的呵护
约3米舒适层高,空间更通透朗阔
山海阔景阳台,极目邂逅风光
主卧独立卫浴,兼具尺度与私密
08
风雅云境处 诗意山居图
灵感来源于古巴比伦街著名景点“九曲花街”,并赋予其的六重“生态、人文、艺术、匠心、智慧、健康”内涵,以“风雅云境处,诗意山居图”为主题。充分尊重原生台地地势的高差,打造五重台地、九曲花街,富有寻山意趣的园林。
社区景观配套
半隐式星级入口,人车分流藏风华;
半山云台、山海之境双城市会客厅,契合精英社交;
九曲花街景观长廊,串联林桥、花涧等四景,诗意归家;
配山林跑道、儿童乐园、冥思空间全龄设施;
森氧花园 24h 沉浸式氧吧,尽揽梧桐山负氧离子。
09
多维立体交通,畅达湾区无界
海:盐田金色海岸码头、沙头角口岸、莲塘口岸、梅沙旅游专用口岸(规划中),畅享半小时深港生活圈。
陆:距8号线/2号线深外高中站直线距离约700米,直达罗湖/福田,大小梅沙/东部华侨城;未来规划18号线——贯通东西的大动脉(宝盐线)。
空:东部通航直升机主运行基地。
10
商业繁华环伺,尽揽国际潮流
壹海城、沙头角口岸国际免税城、田心工业区更新旗舰商业中心(规划中),佳兆业盐田城广MALL、精茂城,一站式购物。
11
近享公园诗意,丰盈森活日常
盐田双拥公园、烟墩山国际友好公园、恩上湿地公园、盐运公园。
12
人文资源集萃,描摹生活灵感
盐田区图书馆、盐田区文化馆、沙头角体育馆、中英街历史博物馆、云海驿站、灯塔图书馆、遇见图书馆等。
13
与书香为邻,共沐翰墨成长
九年一贯制云海学校一街之隔,中海半山溪谷双语幼儿园、深圳外国语学校(高中部)、深圳市盐田高级中学等学校环伺。
(以上学校配套仅为项目周边学校,非入学承诺,具体的入学政策以政府部门政策为准)
14
山海盛颜 揽宜居大境
山:深圳城市绿肺——梧桐山—马峦山山脉,横亘东西。梧桐山森林覆盖率高达约88%,负氧离子含量高于市区约60%。
海:沙头角海作为深圳海之荣耀,碧海蓝天、观景听风。
滨海栈道:约19.5公里海滨栈道,被誉为中国最美八大海岸线之一,世界第一长“海滨玉带”。
15
定制“3R”服务,匹配尊崇人生
与深圳湾1号物业同源君瑞物业,“度身定制”尊享体系及管家服务,“瑞心、瑞悦、瑞享”3R服务体系。
R-瑞心:基础服务,倾注细节,以心相交、关注细节,用臻心服务达成客户最高满意度。
R-瑞悦:独具特色,为美好加注以服务触达住户内心的情感,用愉悦和超越为美好生活加注。
R-瑞享:智慧物联、共享平台开启智慧生活平台,倡导智慧管理。
户型鉴赏
鹏瑞·半山云璟售楼处电话:400-873-0112【售楼处已认证】☑☑☑
鹏瑞·半山云璟售楼中心热线:400-873-0112【售楼中心已认证】☑☑☑
鹏瑞·半山云璟营销中心热线:400-873-0112【营销中心已认证】☑☑☑
鹏瑞·半山云璟开发商热线:400-873-0112【开发商已认证】☑☑☑
400-873-0112该号码为开发商官方唯一认证热线【房天下认证售楼处】☑☑☑
鹏瑞·半山云璟售楼处电话:400-873-0112【售楼处已认证】☑☑☑
鹏瑞·半山云璟售楼中心热线:400-873-0112【售楼中心已认证】☑☑☑
鹏瑞·半山云璟营销中心热线:400-873-0112【营销中心已认证】☑☑☑
鹏瑞·半山云璟开发商热线:400-873-0112【开发商已认证】☑☑☑
400-873-0112该号码为开发商官方唯一认证热线【房天下认证售楼处】☑☑☑
🏅关于本最新动态信息,如:房价,主力户型面积,最低折扣,等等,剩余户型楼层,去化率,几号地铁哪个地铁口,周边规划,项目的优劣势以及学校的配套等等都可以致电售楼处进行了解,我们将会安排内场专业置业顾问为您答疑解惑!
🔥最新房源动态、稀缺折扣、限时名额一键获取,极速响应!
⏰24小时线上预约!!!
400-873-0112官方热线开发商官网住建局已备案(住建局已认证)
☎ 马上拨打售楼处专线:400-873-0112(一键直连/预约看房)
免责声明:部分信息来源于网络,如果侵权,请联系及时删除本宣传资料不构成邀约邀请,对周边、政府规划、商业配套、教育资源、投资前景等数据和图文仅为提供相关信息,该信息以政府最终批文为准,开发商不对此作任何承诺。买卖双方的权利义务以双方签订的买卖合同约定及附件、实际交付为准,本公司保留对宣传资料修改的权利,敬请留意最新资料。联系号码:400-873-0112。
声明:本文由入驻焦点开放平台的作者撰写,除焦点官方账号外,观点仅代表作者本人,不代表焦点立场。
