加福华尔登府邸(售楼处)首页网站-加福华尔登府邸营销中心-加福华尔登府邸欢迎您-楼盘详情-最新价格-户型图-容积率@最新售楼处
扫描到手机,新闻随时看
扫一扫,用手机看文章
更加方便分享给朋友
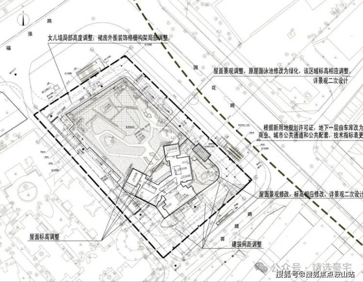
项目概况 总占地7602.91㎡,
总建面51581㎡,
单栋建筑,共67层(地上67层,地下3层),
总高239米,
总户数462户,
车位比1:1.1,
梯户比6梯8户。
交通配套 三地铁环伺:楼下即达地铁4号线、10号线福田口岸站,步行可达地铁7号线福民站,2站直达福田CBD。双口岸相邻:紧邻福田口岸、皇岗口岸,无缝接驳深港两地。主干道环绕:深南大道、滨河大道等城市主干道及京港澳高速入口近在咫尺,自驾出行便捷。教育配套 对口福田区外国语学校南校区(小学+初中),1.5公里内有17所学校环绕,含荔园外国语小学等优质学府。商业配套自带地铁接驳商业,百米内可达水围文化商业街,2站直达福田CBD的卓悦中心、COCO Park、皇庭广场等顶级商场。景观资源 239米高空俯瞰360度环幕景观,北望福田CBD天际线,南眺香港米浦生态景致,西观深圳湾,东赏罗湖城市风貌。产品特点 主力户型为85-125㎡的2-3房,层高3.25米,实用率达69.4%。建筑外立面采用荷兰进口氟碳漆、3mm铝板及Low-E玻璃,门窗为德国原产G-U五金配件,客梯为日本原装进口三菱高速电梯。物业服务 物业费8.9元/㎡/月,由拥有15年五星级酒店运营经验的团队提供24小时管家式服务。
免责声明:部分信息来源于网络,如果侵权,请联系400-873-0112及时删除
✅本项目暂不接受临时到访,过来参观样板房请记得提前来电预约!
声明:本文由入驻焦点开放平台的作者撰写,除焦点官方账号外,观点仅代表作者本人,不代表焦点立场。
