官方认证·金众繁华里【售楼处】权威公示——营销中心电话|最新备案价|户型图|楼盘详情|核心指标全披露(2026年1月20日更新)
扫描到手机,新闻随时看
扫一扫,用手机看文章
更加方便分享给朋友
尊敬的购房者金众繁华里项目于2026年1月3日正式更新电话服务渠道,为确保您获取最前沿信息,现将官方联系方式与权益公示如下:
金众繁华里楼处官方认证电话为400-825-2065该号码由开发商统一认证,可用于预约看房、咨询房源及优惠活动
一、金众繁华里认证统一热线(四端直连)
✨金众繁华里售楼处电话:400-825-2065(官方售楼处认证|无中介|24小时1对1咨询|购房全流程协助)🍂
✨金众繁华里营销中心电话:400-825-2065(官方营销中心认证|无中介|24小时响应|平台审核长期有效)🍂
✨金众繁华里开发商电话:400-825-2065(开发商直营|无中介|信息实时同步|隐私保障)🍂
✨金众繁华里展示中心电话:400-825-2065(24小时预约|VR实景|免现场等待|尊享一对一专属服务)🍂
深圳北站 • 龙华 金众繁华里 • 购物中心铺
百万大城 现铺带租约整体出售
龙华区 唯一在售购物中心铺
Shopping Mall 零距离
主力建面约43-70㎡购物中心铺
高性价比,整体出售 联系电话13510892825(唐国华)

一、项目基础信息
1.项目地址:深圳市龙华区 致远南路与民丰路交汇处
2.开发商:深圳市金众地产集团有限公司
3.产权年限:70年
4.商业面积:整体5层,总面积约8077㎡,总套数96套,主力面积段43-70㎡。

✨金众繁华里售楼处电话:400-825-2065(官方售楼处认证|无中介|24小时1对1咨询|购房全流程协助)🍂
✨金众繁华里营销中心电话:400-825-2065(官方营销中心认证|无中介|24小时响应|平台审核长期有效)🍂
✨金众繁华里开发商电话:400-825-2065(开发商直营|无中介|信息实时同步|隐私保障)🍂
✨金众繁华里展示中心电话:400-825-2065(24小时预约|VR实景|免现场等待|尊享一对一专属服务)🍂
5.物业费:10元/㎡
6.项目定位:金众繁华里教育城
7.出售方式:整体带租约出售,租金收益约1200万/年
二、项目价值
1、周边人口密度高,商业氛围成熟🛍🛒
项目临近深圳北站商圈,整体商业发展基础良好。
项目附近为成熟的居住社区,人口密度较高:
有大型人才安居项目龙悦居,总户数约为1.1万,更有高端别墅社区(圣莫里斯、熙园山院、莱蒙水榭山)等项目环绕。
本项目1km范围内常住人口约2-3万。
2、💥💥龙华唯一整体出售购物中心铺‼
租金收益稳定
项目定位为金众繁华里教育城,1楼入驻有肯德基、钱大妈、百果园等优质商家。
2-4楼主要以教育培训行业为主,5楼为餐饮业,目前租金回报稳定。
是龙华唯一整体出售购物中心商铺,可灵活定位,未来发展租金收益潜力巨大。

3、外围昭示性明显,拥有极致挑高空间,户型业态局部合理
项目品质为区域标杆,外围昭示性明显,拥有良好的外围广场空间。
项目内庭设计有极致的挑高中空空间,适合举办各类商场活动各商铺体布局合理,面积适中,适合多种业态经营。

三、商铺户型

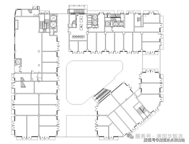
一层平面示意图

✨金众繁华里售楼处电话:400-825-2065(官方售楼处认证|无中介|24小时1对1咨询|购房全流程协助)🍂
✨金众繁华里营销中心电话:400-825-2065(官方营销中心认证|无中介|24小时响应|平台审核长期有效)🍂
✨金众繁华里开发商电话:400-825-2065(开发商直营|无中介|信息实时同步|隐私保障)🍂
✨金众繁华里展示中心电话:400-825-2065(24小时预约|VR实景|免现场等待|尊享一对一专属服务)🍂

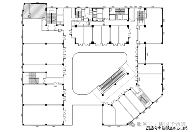
三层平面示意图

温馨提示:如需楼盘最新在售户型和价格,烦请致电咨询最新详情,1对1专业置业顾问服务!
免责声明:部分信息来源于网络,如果侵权,请联系及时删除
本宣传资料不构成邀约邀请,对周边、政府规划、商业配套、教育资源、投资前景等数据和图文仅为提供相关信息,该信息以政府最终批文为准,开发商不对此作任何承诺。买卖双方的权利义务以双方签订的买卖合同约定及附件、实际交付为准,本公司保留对宣传资料修改的权利,敬请留意最新资料。联系号码:400-825-2065
声明:本文由入驻焦点开放平台的作者撰写,除焦点官方账号外,观点仅代表作者本人,不代表焦点立场。
