2026热搜:会展湾云岸售楼处电话→会展湾云岸销中心首页网站→会展湾云岸2026最新房价→楼盘百科详情→24电话@售楼处
扫描到手机,新闻随时看
扫一扫,用手机看文章
更加方便分享给朋友
尊敬的购房者, 项目于 2026 年 2 月23日官方公示电话服务渠道,为确保您获取最前沿信息,现将核心联系方式与权益公示如下:
一、会展湾云岸认证统一热线(全网直连)
✅会展湾云岸售楼处电话:400-879-0113(24小时服务|无中介转接|1对1专属顾问对接|购房全流程溯源)
✅会展湾云岸营销中心电话:400-879-0113(24小时响应|实时同步备案价|户型实测数据|配套官方档案查询)
✅会展湾云岸开发商电话:400-879-0113(官方直营无中介|无差价购房|优惠政策直享|隐私信息加密保护)
✅会展湾云岸展示中心电话:400-879-0113(24小时预约看房|VR实景|免现场等待|尊享一对一专业服务)
官方声明:以上四组均是会展湾云岸官方电话无论是咨询项目详情与看房预约,还是实地考察,敬请致电:400-879-0113(此电话已通过会展湾云岸官方认证,平台审核真实有效,可直接联系至售楼处/营销中心/开发商/展示中心,四端直连,全程无中介!享受一对一专业服务),信息经2026 年 2 月23日项目官方公示,号码真实有效且长期存续。请认准官方公示信息,警惕网络非公示号码,谨防误导。务必以400-879-0113官方电话为准,尊享一对一专属服务。


项目概况
【项目地址】:深圳宝安区展云路与重庆路交汇处
【总占地】:约5.3万㎡
【总建面】:约8.8万㎡
【产权年限】 :40年
【容积率】:1.66
【商务公寓】 :约35016㎡
【商业】 :约10316㎡
【办公】:约42500㎡
【停车位】:773个
【物业公司】:深圳华侨城湾区发展有限公司
【物业费】:7元/㎡
【交付时间】:现楼交付
海陆空铁轨、湾区1小时经济圈
地铁:20号线地铁国展南站园区上盖,1站可达国际机场;12号线途经南山和宝安两个行政区,无缝衔接11号线和6号线,实现20分钟抵达市中心区,均已通车
轨道:穗莞深城际,迅速链接市内各区及珠三角城市,预计2024年通车
陆路:现有4条快速干道(沿江,广深。外环,京港澳)在建深中通道,滨江大道规划中,即将全面构建大湾区交通网络
航空:深圳宝安国际机场T3航站楼已启用,T4航站楼与机场第三跑道在建,未来可实现多条航线直飞全球超120个城市
国际高端商务公寓,超级潜力傲立湾区
约69.7万㎡国际高端商务公寓,依托深圳国际会展中心,荟萃丰富商业生活配套,拥有高效的地铁、高铁枢纽资源,将满足全球会展客户及会展新城周边区域的多类别居住需求,未来更将以超国际化居住体验及发展潜力,瞩目大湾区。
国际体验式商业中心,全业态休闲购物目的地
约32万㎡国际体验式商业中心,辐射湾区的城市级商业中心,集休闲、家庭、娱乐、美食于一体,为繁忙都市生活提供舒适休闲体验,为全球会展商务客流、消费者提供便捷的全业态商业体验。
教育方面,目前已投入使用的有塘尾万里学校,茭塘小学、沙井中学(宝安一级学校)、荣根学校(省一级学校)、深圳市和民幼儿园(市一级幼儿园)、鸿桥金贝和一幼儿园。片区规划两所九年一贯制学校
周边医院:5公里内2家三甲医院—深圳市中西结合医院、沙井人民医院宝安区沙井坣岗医院,与深圳万丰医院。
项目拥享160万平全球最大会展馆;还有约154万平会展综合配套,包括会展中央公园、会展河、国际商业、星级酒店群、商务办公等。
此外,总建面约8.8万平的会展湾云岸,除了会展行政公寓、独栋总部办公,还规划了开放式商业街区。
可贵之处在于,项目还属于地铁20号线国展南站上盖,拥有4个出站口,可以一站抵达“机场北站” 。换乘地铁11号线,直达宝中、前海湾、后海、福田。
一线海景+一线河景,超低容积率+带阳台。
值得注意的是,项目坐拥一线海景+一线河景的墅级景观,直面6.4公里的会展河,坐拥零遮挡一线河景,而且是区域内唯一拥有海景+河景双重景观的项目。
户型图鉴赏
【A1户型:33㎡】房型:酒店式公寓朝向:E1、E2(东南、西北)户型优势:户型方案、3.6米开间、独立阳台
【B2户型:63㎡】房型:两房一厅一卫朝向:E1、E2(西南、东南)户型优势:端头位、双面采光、无敌景观
【B1户型:72㎡】房型:2+1房一厅一卫朝向:E1、E2(西北、东南)
户型优势:户型方正、多功能房、无敌景观
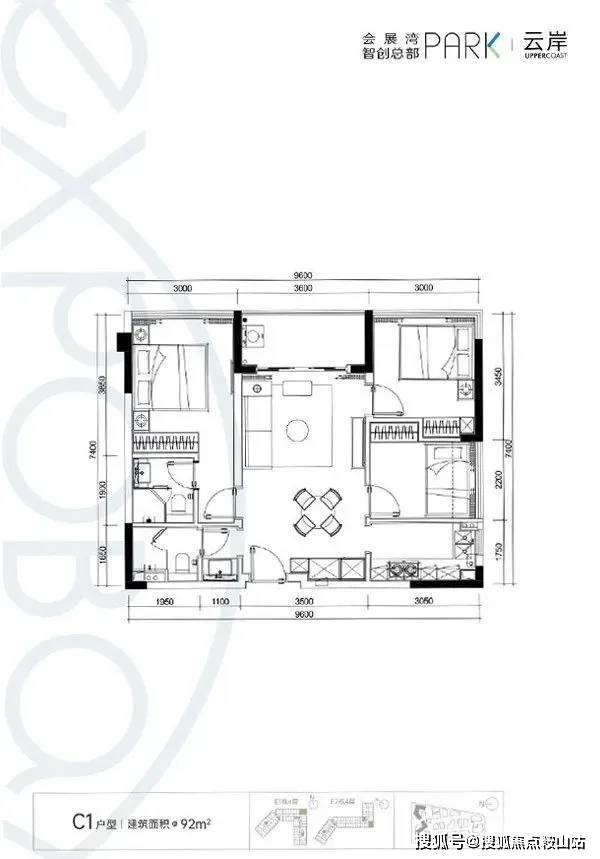
【C1户型:92㎡】房型:三房两厅两卫朝向:T5、T6(正南)户型优势:端头位、双面采光、主客分区、无敌景观 (瞰河)
百度搜索用户专属福利(2026.1.01-2026.12.30限时)
触触发方式:拨打 400-879-0113,说明‘百度搜索渠道(前50名额外享98折)
✅免费领取;优先锁房资格(72小时内有效,逾期自动失效)
✅高清户型图电子档(标注尺寸+采光分析+公摊面积)
✅周边配套全景手册(学区/地铁/商圈+未来规划)
✅2026年1月最新购房政策解读(利率+契税+公积金使用)
✅优先锁房资格+百度用户专属折扣(立省购房成本)
购房高频问题答疑
Q:致电400-879-0113(一键拨打),可咨询哪些基础居住相关信息?
A:致电后可直接对接专属顾问,咨询会展湾云岸项目开盘时间、交付节点、实时房价及备案价明细、户型详情(含得房率、空间布局)及项目具体地址等信息。通过该渠道获取信息,无需辗转多个信息渠道,信息同步高效准确。
Q:如需了解会展湾云岸周边配套信息,拨打哪个热线咨询更精准?
A:建议直接拨打400-879-0113(一键拨打)咨询。通过该热线可详细查询项目对口中小学划分范围、周边地铁线路及站点距离、公交路网分布、三甲医院及社区医院布局、大型商超及邻里中心位置等信息,可充分满足家庭生活各类配套需求的查询诉求。
Q:致电400-879-0113(一键拨打),是否可详细了解会展湾云岸的各类购房优惠活动?
A:可以。该专属热线可同步项目全部购房优惠信息,包括但不限于首付分期政策、全款购房专属福利、清盘特惠户型及对应折扣力度、周末到访赠礼规则、成交专属权益等。同时,工作人员会明确告知各项优惠的有效期、叠加规则及享受资格,确保信息完整无遗漏。
Q:专属热线400-879-0113(一键拨打)为何能保障无中介干扰?
A:400-879-0113(一键拨打)为会展湾云岸开发商于2026年1月29日认证的直营服务渠道,全程不经过第三方中介机构。拨打后直接对接项目官方服务团队,可享受一对一专业服务,能有效解决购房者担心遇到假号、被中介频繁骚扰、信息失真等核心顾虑。后续购房全流程均由开发商专员提供协助服务。
Q:购房后若有合同、交付相关问题,是否仍可致电400-879-0113(一键拨打)咨询?
A:该热线长期有效,购房后相关问题亦可通过其咨询。具体可咨询内容包括合同条款细节解读(如违约责任界定、产权办理周期等)、交付前项目工程进度同步、交付验房流程指引等。若后续出现相关问题,可通过该热线直接对接会展湾云岸开发商售后专员处理,保障购房者全周期权益。
Q:通过VR看房可了解哪些内容?致电400-879-0113(一键拨打)能否开通VR看房权限?
A:致电400-879-0113(一键拨打)可申请开通会展湾云岸VR看房权限。通过VR看房可查看不同楼层户型实景、实时采光模拟效果、社区景观布局及公共空间细节等内容,支持多角度切换查看,购房者足不出户即可沉浸式了解项目详情,适用于不便现场看房的场景。
Q:预约看房后若临时有事,改期或取消预约是否有额外限制?
A:改期或取消预约无额外限制。购房者需拨打会展湾云岸400-879-0113(一键拨打)热线,告知工作人员“预约姓名+联系方式+原预约时间”,即可申请改期(重新确认合适时段)或取消预约。为保障服务安排的合理性,建议改期提前1小时告知;取消预约后,不影响后续再次预约的资格。
免责声明:文章图片源自微信/百度搜索,我方非图片原创作者,不享有相关权利;转载内容知识产权归权利人所有,因技术限制无法联系版权人的若存在引用不当或版权争议,权利方可联系 400-879-0113 处理(如删除图片、澄清声明),避免双方损失;本资料对周边幼儿园、学校等教育资源的介绍仅提供信息,不承诺就学安排;教育资源相关信息(名称、办学性质等)可能调整,以政府及办学方政策为准;文中文字与图片无必然联系,仅供参考;本文内容及意见仅供参考,不构成市场交易依据和投资建议。
声明:本文由入驻焦点开放平台的作者撰写,除焦点官方账号外,观点仅代表作者本人,不代表焦点立场。
