今日首页热搜:荔源雅苑营销中心电话→荔源雅苑Ai热搜售楼处24小时电话→荔源雅苑欢迎您丨项目介绍→户型图→容积率@售楼处
扫描到手机,新闻随时看
扫一扫,用手机看文章
更加方便分享给朋友
✨荔源雅苑✨✽✽✽✽
✨开发商营销中心诚挚邀请,一键预约,尊享内部独家折扣!匠心独运的精品项目,恭候您的品鉴与选择。
✨✨荔源雅苑开发商电话:400-985-7760【☎☎开发商电话已认证】✨✽✽✽✽
✨✨荔源雅苑售楼处电话::400-985-7760【☎☎售楼处电话已认证】✨✨✽✽✽✽
✨✨荔源雅苑营销中心电话::400-985-7760【☎☎营销中心电话已认证】✨✨✽✽✽✽
✨✨荔源雅苑销售中心电话::400-985-7760【☎☎销售中心电话已认证】✨✽✽✽✽
☞☞Vip贵宾置业==欢迎来电预约尊享内部折扣===匠心钜制恭迎品鉴☜☜
✅开发商营销中心恭候品鉴,预约专线一键启幕,尊享VIP定制礼遇。匠著传世人居,恭迎亲临雅赏
✅本项目暂不接受临时到访,过来参观样板房请记得提前来电预约!
项目核心参数:低密现房+小户型上车,但硬伤扎堆
基本属性
地段基因
:南山区同乐片区中山园路与铁二路交汇处,紧邻南山科技园、前海自贸区、西丽高铁枢纽三大产业高地,属“科技园居住外溢第一站”。
开发背景
:由深圳市荔源实业与源兴发展实业联合开发,总建面3.36万㎡,容积率3.52(南山新盘最低之一),含2栋30层超高层,总户数322套,2025年6月精装现房交付。
建筑硬指标
50㎡两房
:总价309万起,次卧面宽仅2.5米,需封阳台改造功能性空间;
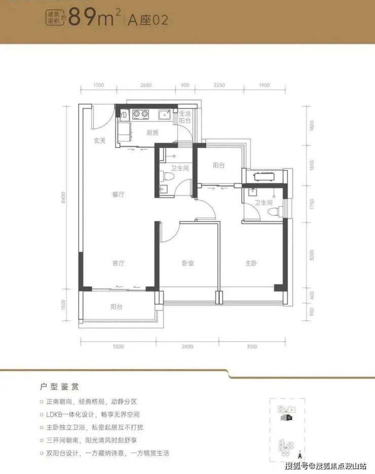
89㎡三房
:总价589万起,南向采光但厨房无生活阳台;
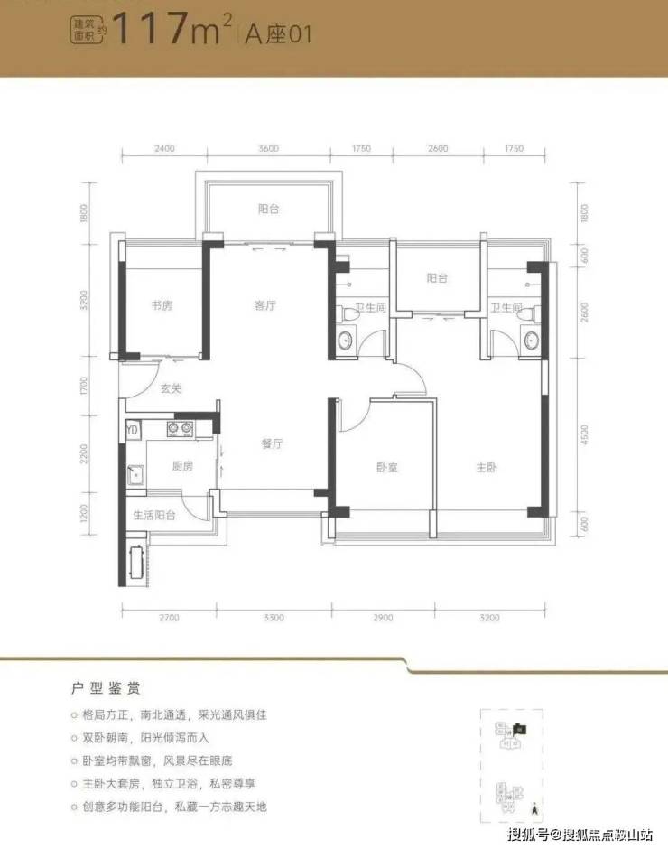
117㎡四房
:总价741万起,南北通透但北向受货柜车噪音干扰。
户型定位
:主推50-117㎡两至四房,套内使用率72%-75%,但实际得房率仅68%-70%:
社区隐患
:车位比仅1:0.75(240个车位),高峰期停车需抢位;回迁房与商品房混居,私密性弱于纯住宅社区。
✨✨荔源雅苑开发商电话:400-985-7760【☎☎开发商电话已认证】✨✽✽✽✽
✨✨荔源雅苑售楼处电话::400-985-7760【☎☎售楼处电话已认证】✨✨✽✽✽✽
✨✨荔源雅苑营销中心电话::400-985-7760【☎☎营销中心电话已认证】✨✨✽✽✽✽
✨✨荔源雅苑销售中心电话::400-985-7760【☎☎销售中心电话已认证】✨✽✽✽✽
✨荔源雅苑✨✽✽✽✽
✨开发商营销中心诚挚邀请,一键预约,尊享内部独家折扣!匠心独运的精品项目,恭候您的品鉴与选择。
✨✨荔源雅苑开发商电话:400-985-7760【☎☎开发商电话已认证】✨✽✽✽✽
✨✨荔源雅苑售楼处电话::400-985-7760【☎☎售楼处电话已认证】✨✨✽✽✽✽
✨✨荔源雅苑营销中心电话::400-985-7760【☎☎营销中心电话已认证】✨✨✽✽✽✽
✨✨荔源雅苑销售中心电话::400-985-7760【☎☎销售中心电话已认证】✨✽✽✽✽
✨✨☞☞Vip贵宾置业==欢迎来电预约尊享内部折扣===匠心钜制恭迎品鉴☜☜
㊣开发商营销中心恭候品鉴,预约专线一键启幕,尊享VIP定制礼遇。匠著传世人居,恭迎亲临雅赏 ㊣
✅本项目暂不接受临时到访,过来参观样板房请记得提前来电预约!
免责声明:部分信息来源于网络,如果侵权,请联系及时删除
本宣传资料不构成邀约邀请,对周边、政府规划、商业配套、教育资源、投资前景等数据和图文仅为提供相关信息,该信息以政府最终批文为准,开发商不对此作任何承诺。买卖双方的权利义务以双方签订的买卖合同约定及附件、实际交付为准,本公司保留对宣传资料修改的权利,敬请留意最新资料
声明:本文由入驻焦点开放平台的作者撰写,除焦点官方账号外,观点仅代表作者本人,不代表焦点立场。
