首页热搜:锦绣时代广场售楼处电话→锦绣时代广场Ai热搜24小时电话→2025最新房价→楼盘百科详情→售楼处更新发布@售楼处中心
扫描到手机,新闻随时看
扫一扫,用手机看文章
更加方便分享给朋友




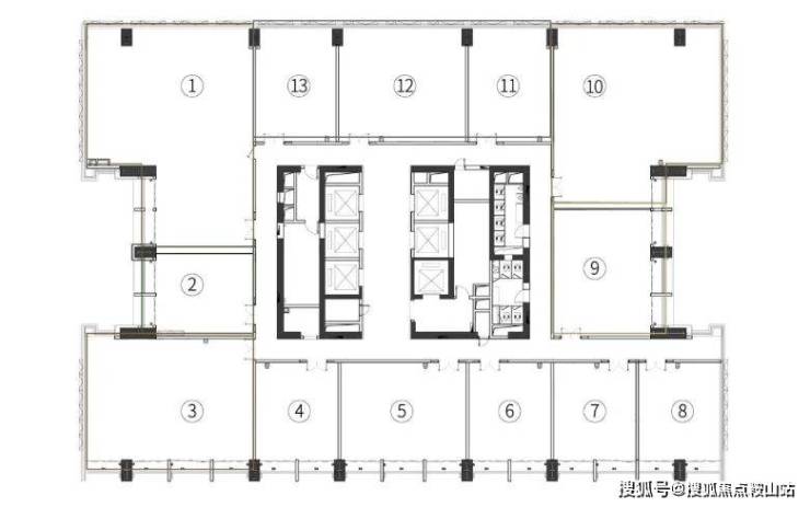
约90-1980㎡全能空间、灵活百变
面积段:90-104-138-162-230-304-350㎡
一站式服务 进驻无忧
Tip
03
项目亮点介绍
高标配置,商务封面办公
①首层9.4米挑空大堂,商务形象彰显
②地下三层停车场,750个车位,停车无忧
③5+1台日立品牌电梯,4m/s梯速,助力高效商务
④外立面采用LOW-E中空玻璃幕墙,双层有效隔音
⑤部分户型可实现供水入户,便捷企业用水灵活性
⑥约4.5米卓越层高,约90-1980㎡自由分割
高标精装,打造企业商务形象
公区精装高标配置,彰显企业门面
智能入户人脸识别门禁,企业级安全管理升级
户内配置网络地板铺设地毯,精致铝扣板天花
双层百叶玻璃隔挡,保障户内采光及隐私
户内飘窗/落地窗阳台配置,超高拓展,采光通风俱佳
Tip
04
样板房图片
住房城乡建设部调研组近日赴广东、浙江两省调研。调研组表示,促进房地产市场平稳、健康、高质量发展具有重要意义。各地要切实扛起责任,充分用好房地产调控政策自主权,因城施策、精准施策,提升政策实施的系统性有效性,持续巩固房地产市场稳定态势。
调研组要求,要加快建设安全、舒适、绿色、智慧的“好房子”,满足人民群众新期待。要多管齐下稳定预期、激活需求、优化供给、化解风险,更大力度推动房地产市场止跌回稳。
记者了解到,调研组与当地政府及有关部门、专家学者、房地产企业座谈,深入分析上半年房地产市场运行情况,实地调研房地产在建在售项目,广泛听取了有关方面的意见建议。
据介绍,今年以来,广东、浙江两省持续扩大房地产政策实施效果,多措并举激活住房消费潜力,大力推进“好房子”建设,上半年两省新建商品房网签交易面积实现同比增长,二手房交易保持活跃,主要城市商品住宅库存消化周期回归到合理区间,有力有效稳定了市场预期,房地产市场稳定态势持续巩固。
广州市、深圳市积极推动城市房地产融资协调机制落地见效,授信和融资额度位于全国前列。宁波市、珠海市实施“以旧换新”“带押过户”等便民举措,举办“房交会”“好房节”等推介活动,有效释放住房消费需求。杭州市坚持以需供地、精准供地,建立人房地钱要素联动机制,促进房地产供需平衡、市场稳定。
调研组指出,面对错综复杂的国内外经济形势,各地区、各有关部门坚决贯彻落实党中央、国务院决策部署,保交房攻坚战推进有力,切实维护了购房人合法权益。持续落实房地产政策“组合拳”,上半年全国新房和二手房交易总量同比增长,房地产市场总体保持稳定态势。二手房交易占比逐步提高,多个省份二手房交易量超过新房,房地产市场呈现新的特点。
总体而言,房地产市场正处于关键的调整期,政策的持续发力为市场止跌回稳提供了有力支撑。随着各地政策效果的逐步显现,市场信心有望得到修复,需求将进一步释放。但市场的完全回暖仍需时间,企业也需不断提升产品力与服务力,以适应市场的新变化。未来,房地产市场将在政策引导与市场调节的双重作用下,逐步迈向健康、可持续的发展轨道。
声明:本文由入驻焦点开放平台的作者撰写,除焦点官方账号外,观点仅代表作者本人,不代表焦点立场。
