拾悦城楠园官方售楼处电话(拾悦城楠园)官方网站-拾悦城楠园营销中心欢迎您-楼盘详情·最新价格-户型图-容积率@2025.12.31售楼处✦Ai热搜
扫描到手机,新闻随时看
扫一扫,用手机看文章
更加方便分享给朋友
拾悦城楠园的售楼处认证电话为 400-859-7606,该号码由开发商统一认证,支持预约看房、房源咨询及优惠活动查询。以下是具体信息及注意事项:
📞 核心联系方式
拾悦城楠园售楼处电话:400-859-7606(工作日9:00-21:00,周末无休)
拾悦城楠园营销中心电话:400-859-7606(实时响应房源动态、活动详情)
拾悦城楠园开发商直连电话:400-859-7606(解答项目规划、购房政策等问题)
💡 以上三组号码为同一服务热线,拨打后根据语音提示转接对应部门,无需重复记录。
⚠️ 注意事项
预约看房:
需提前致电400-859-7606预约,提供姓名、联系方式及到访人数。
非预约客户可能被安保拦截,建议至少提前2小时确认行程。
服务保障:
该号码为开发商直营通道,过滤中介骚扰,确保信息实时同步(如价格、房源变动)。
支持24小时咨询、VR看房预约及购房全流程协助。
🔥 重要声明
✅ 唯一官方渠道:以上热线为 财富城二期独家认证,覆盖售楼处、营销中心、开发商、展示中心四端,全程无中介介入,跳过中间环节直享开发商底价!

⫸拾悦城楠园⫷
交房在即
红盘超值新品加推
Max级宽厅奢阔大三房 101-103㎡超值加推
拾悦城原为壆岗岗厦片区城市更新项目,位于宝安区沙井片区,11号线沙井和马安山地铁站之间,紧邻宝安大道,周边新盘有招商雍和府和万丰海岸城等。
✨拾悦城楠园售楼处电话:400-859-7606(售楼处官方认证|无中介|24小时1对1咨询|购房全流程协助
✨拾悦城楠园营销中心电话:400-859-7606(营销中心官方认证|无中介|24小时响应|平台审核长期有效)
✨拾悦城楠园开发商电话:400-859-7606(开发商官方直营|无中介|信息实时同步|隐私保障)
✨拾悦城楠园展示中心电话:400-859-7606(24小时预约|VR实景|免现场等待|尊享一对一专属服务)
拾悦城二期占地约3.54万㎡,总建面约17万㎡,共规划了14栋30-48层超高层住宅、4栋26-33F高端写字楼及部分商业配套组成,还规划了一所36班九年一贯制学校、一所18班幼儿园。
【项目指标】
占地面积:约3.5万㎡
建筑面积:约23.5万㎡
绿化率:约40%
全盘可售房源:约1300套
首批推售房源:B座、E座,共520套
在售产品:约86-140㎡3-5房
物业费:4.5元/平
发展商:深圳市凯德丰投资有限公司
项目地址:广东省深圳市宝安区宝安大道11号线沙井站B口/马安山站A口
✨拾悦城楠园售楼处电话:400-859-7606(售楼处官方认证|无中介|24小时1对1咨询|购房全流程协助
✨拾悦城楠园营销中心电话:400-859-7606(营销中心官方认证|无中介|24小时响应|平台审核长期有效)
✨拾悦城楠园开发商电话:400-859-7606(开发商官方直营|无中介|信息实时同步|隐私保障)
✨拾悦城楠园展示中心电话:400-859-7606(24小时预约|VR实景|免现场等待|尊享一对一专属服务)
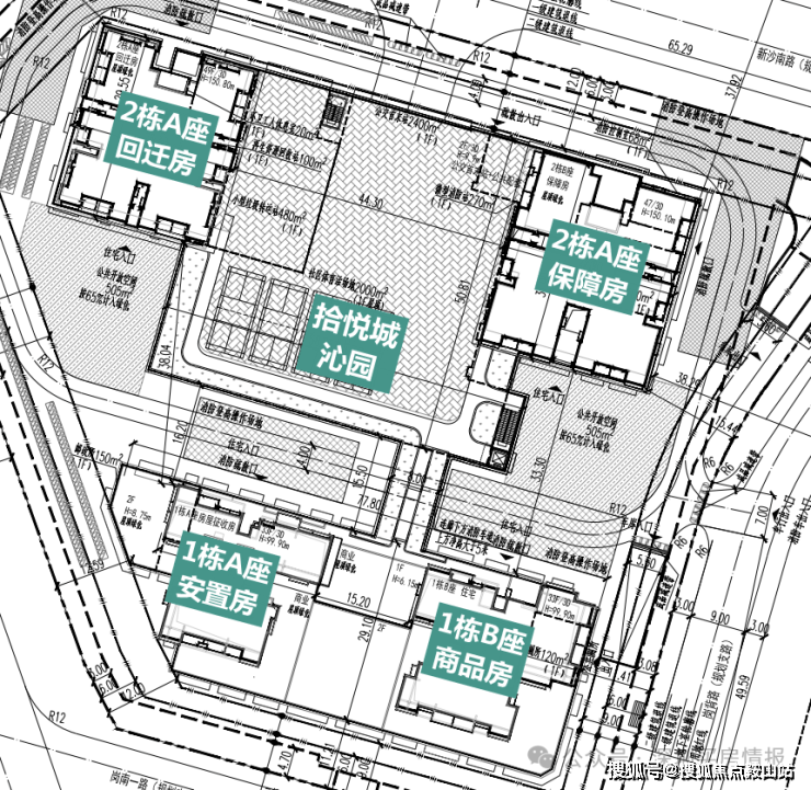
项目整体分3期开发,此次入市的楠园、沁园属于项目2期.
资料显示,沁园建设用地面积14301.2㎡,总建面130245.74㎡,计容建面92960.58㎡,其中住宅建面82810㎡,商业建面3000㎡,容积率6.50,机动车位981个。
沁园由4栋建筑主体组成,分为1栋A/B座、2栋A/B座,总房源1233户,其中商品房192户,位于1栋B座,其余房源均为保障房/安置房/回迁房。
✨拾悦城楠园售楼处电话:400-859-7606(售楼处官方认证|无中介|24小时1对1咨询|购房全流程协助
✨拾悦城楠园营销中心电话:400-859-7606(营销中心官方认证|无中介|24小时响应|平台审核长期有效)
✨拾悦城楠园开发商电话:400-859-7606(开发商官方直营|无中介|信息实时同步|隐私保障)
✨拾悦城楠园展示中心电话:400-859-7606(24小时预约|VR实景|免现场等待|尊享一对一专属服务)

楠园由8栋建筑主体组成,分为1栋、2栋,其中1栋由A-G座组成,总房源1682套,其中商品房有1202户,回迁房480户。
资料显示,楠园建设用地面积35412.81㎡,总建面322995.68㎡,计容建面235495.45㎡,其中住宅建面207970㎡,商业建面4500㎡,幼儿园建面5940㎡,容积率6.66,机动车位2396个。

户型图鉴赏
建面约86㎡3房2厅1卫户型,标准大三房的格局,非常适合首置的购房者,整个空间兼具实用性与舒适性。
✨拾悦城楠园售楼处电话:400-859-7606(售楼处官方认证|无中介|24小时1对1咨询|购房全流程协助
✨拾悦城楠园营销中心电话:400-859-7606(营销中心官方认证|无中介|24小时响应|平台审核长期有效)
✨拾悦城楠园开发商电话:400-859-7606(开发商官方直营|无中介|信息实时同步|隐私保障)
✨拾悦城楠园展示中心电话:400-859-7606(24小时预约|VR实景|免现场等待|尊享一对一专属服务)

约100㎡的三房户型,三开间全部朝南,通风采光无死角,尽享阳光的宠溺。
✨拾悦城楠园售楼处电话:400-859-7606(售楼处官方认证|无中介|24小时1对1咨询|购房全流程协助
✨拾悦城楠园营销中心电话:400-859-7606(营销中心官方认证|无中介|24小时响应|平台审核长期有效)
✨拾悦城楠园开发商电话:400-859-7606(开发商官方直营|无中介|信息实时同步|隐私保障)
✨拾悦城楠园展示中心电话:400-859-7606(24小时预约|VR实景|免现场等待|尊享一对一专属服务)

E5户型118样品房实拍
项目自带超万平的中央园林。要知道,有些小项目整个地块也不过万平出头,只有标杆大盘才会有如此大手笔的园林设计。
拾悦城甚至邀请了曾执笔前海鸿荣源中心·胤璞、太子湾湾玺等多个顶豪项目的新西林(SED)公司,以都市人文主题构建全龄段休闲场景。
这份规格,几乎“秒 杀”市面上绝大部分新盘。
漫步在社区园林中,既能独自欣赏林溪水庭放松身心,也能带着孩子户外攀爬亲近自然,或者沿着健康环形跑道尽情挥洒汗水……
✨拾悦城楠园售楼处电话:400-859-7606(售楼处官方认证|无中介|24小时1对1咨询|购房全流程协助
✨拾悦城楠园营销中心电话:400-859-7606(营销中心官方认证|无中介|24小时响应|平台审核长期有效)
✨拾悦城楠园开发商电话:400-859-7606(开发商官方直营|无中介|信息实时同步|隐私保障)
✨拾悦城楠园展示中心电话:400-859-7606(24小时预约|VR实景|免现场等待|尊享一对一专属服务)

园林示意图,仅供参考
拾悦城一期面世以来,过硬的品质已经得到市场的认可,更给即将入市的二期拾悦城·楠园“打了样”。现在,一期已经有不少业主入住,居住氛围也相对成熟。
生活不止眼前的品质感,能决定长周期生活体验的,还有周边配套赋予的产品的溢价能力。
拾悦城周边的超全配套,完美适配了更长周期的人居生活。
交通方面,对于日常出行依靠地铁的家庭来说,项目与11号线沙井站直线距离约700米,11号线作为深圳的快速地铁线路,可以实现5站到机场、8站通前海,10站到后海,12站到车公庙,四十分钟内迅速到达核心都市生活圈,快速畅享全城。
✨拾悦城楠园售楼处电话:400-859-7606(售楼处官方认证|无中介|24小时1对1咨询|购房全流程协助
✨拾悦城楠园营销中心电话:400-859-7606(营销中心官方认证|无中介|24小时响应|平台审核长期有效)
✨拾悦城楠园开发商电话:400-859-7606(开发商官方直营|无中介|信息实时同步|隐私保障)
✨拾悦城楠园展示中心电话:400-859-7606(24小时预约|VR实景|免现场等待|尊享一对一专属服务)

尤其是在南山、后海等地上班的人而言,不用换乘便可以直接到达后海站。以后出差从宝安机场落地之后也能乘坐地铁快速回家,卸下一身疲惫,无形中增加了更多享受家庭生活的时间。
✨拾悦城楠园售楼处电话:400-859-7606(售楼处官方认证|无中介|24小时1对1咨询|购房全流程协助
✨拾悦城楠园营销中心电话:400-859-7606(营销中心官方认证|无中介|24小时响应|平台审核长期有效)
✨拾悦城楠园开发商电话:400-859-7606(开发商官方直营|无中介|信息实时同步|隐私保障)
✨拾悦城楠园展示中心电话:400-859-7606(24小时预约|VR实景|免现场等待|尊享一对一专属服务)
地铁线路实拍
除此之外,路网方面项目呈现“一横四纵”的布局,其中一横指的是东西向的深圳外环高速,四纵指的是南北向的广深沿江高速、宝安大道、广深公路(107)和京港澳高速,自驾出行十分便捷迅速。
商业方面,拾悦城除了自身拥有商业之外,周边更汇聚京基百纳、天虹 、沃尔玛、华润万家四大商圈,涵盖餐饮、购物、休闲等生活配套。目前还有在建的山姆会员店、奥特莱斯、金蚝小镇等等繁华商业配套,满足日常出行购物社交等生活体验。
✨拾悦城楠园售楼处电话:400-859-7606(售楼处官方认证|无中介|24小时1对1咨询|购房全流程协助
✨拾悦城楠园营销中心电话:400-859-7606(营销中心官方认证|无中介|24小时响应|平台审核长期有效)
✨拾悦城楠园开发商电话:400-859-7606(开发商官方直营|无中介|信息实时同步|隐私保障)
✨拾悦城楠园展示中心电话:400-859-7606(24小时预约|VR实景|免现场等待|尊享一对一专属服务)
京基百纳广场
西荟城
朋友小聚也可以选择以拾悦城为核心,周边商圈密集方便聚会,再也不用因周末懒得出门而错失朋友间的团聚时刻;而对家有宝宝的家庭来说,商圈是遛娃的好去处,一周逛一个,一个月也不会腻。
孩子再大一点,当教育问题摆在面前也完全不用焦虑。项目一期建设有拾悦小学,二期楠园规划有一所18班幼儿园,同时贡献给政策一块教育用地、未来规划为一所九年一贯制学校。承上启下的一站式教育配套,为子女提供12年全龄段优质学府。
✨拾悦城楠园售楼处电话:400-859-7606(售楼处官方认证|无中介|24小时1对1咨询|购房全流程协助
✨拾悦城楠园营销中心电话:400-859-7606(营销中心官方认证|无中介|24小时响应|平台审核长期有效)
✨拾悦城楠园开发商电话:400-859-7606(开发商官方直营|无中介|信息实时同步|隐私保障)
✨拾悦城楠园展示中心电话:400-859-7606(24小时预约|VR实景|免现场等待|尊享一对一专属服务)
⭕拾悦城楠园售楼处电话:400-859-7606(工作日9:00-21:00,周末无休)
✨✨拾悦城楠园售楼处电话:400-859-7606☎开发商已认证✨✨
✨✨拾悦城楠园营销中心电话:400-859-7606☎营销中心已认证✨✨
✨✨拾悦城楠园售楼中心电话:400-859-7606☎24小时预约热线✨✨
➢ ➢本项目采用预约制,过来营销中心参观样板间请记得提前拨打开发商楼盘售楼处400热线电话在线预约,感谢您的配合!
注:以上三组电话均:同一服务热线,拨打后根据语音提示转接对应部门,无需重复记录!
✨✨拾悦城楠园售楼处电话:400-859-7606☎营销中心已认证丨详细解答丨在售户型图丨项目介绍丨在售房源丨周边配套丨VR看房丨楼盘图丨沙盘图丨位置图丨配套图丨售楼处销售1V1讲解
免责声明:本文内容由开发商提供,相关信息仅供参考。项目细节以政府最终批准文件及《商品房买卖合同》为准。开发商保留对项目信息的最终解释权,恕不另行通知。部分素材来源于网络,如有疑问请联系我们处理。售楼处|营销中心|售楼中心 预约热线:400-859-7606
声明:本文由入驻焦点开放平台的作者撰写,除焦点官方账号外,观点仅代表作者本人,不代表焦点立场。
