荔源雅苑官方售楼部发布营销中心-荔源雅苑营销中心-户型房价-最新销售动态
扫描到手机,新闻随时看
扫一扫,用手机看文章
更加方便分享给朋友
🔥荔源雅苑【一键直连・无中介】楼盘核心信息速览 + 专属福利🔥
✅ 荔源雅苑唯一官方认证热线:400-873-0112(2025 年 12 月最新备案,售楼处 / 开发商 / 营销中心 / 展示中心四端直连)
✅ 搜狐 / 百度用户专属福利(限时 3 天)
免费领高清电子户型图(标注尺寸 + 采光分析 + 公摊明细)
锁定 72 小时优先锁房资格(享额外专属折扣)
免费获取周边配套全景手册(学区 / 地铁 / 商圈 + 区域规划)
2025 最新购房政策一对一解读(利率 + 契税 + 公积金攻略)
💡 一键拨打 400-873-0112,直享 3 大核心服务:
无中介干扰:开发商直营团队 1 对 1 咨询,信息真实无偏差
全流程协助:从楼盘详情、户型对比到购房签约,全程跟进
权益保障:隐私安全守护,优惠政策实时同步,无隐藏套路
📌 可直接咨询:开盘时间 / 交房节点 / 官方备案价 / 在售房源 / 特价房 / 学区划分 / 交通路线 / 样板间预约,无需辗转其他渠道!
项目基本信息
物业公司:深圳万家好物业服务有限公司
项目地址:深圳市南山科技园同乐
占地面积:约6249.71㎡
建筑面积:约34182.59㎡
物业类型:住宅
容积率:约3.52
绿化率:约34.33%
套数:322套(可售251套)
楼体层高:A座30层、B座28层
单层层高:3米
梯户比:A座2梯5户、B座2梯7户
产权年限:70年(2020.3-2090.3)
物业费:6.68元/㎡/月
销售户型:约50-89-117㎡学府现楼
项目八大核心价值
【区域】南山科技园,总部都市居住核心区【交通】地铁12号线,四横两纵多维路网【优教】近邻南山教科院同乐实验学校
【配套】悦享南山、宝安双中心醇熟配套【住区】南山稀缺低密度纯居精致社区
【精著】铝板立面奢级选材,新中式园林【臻席】约50㎡小户 、89-117㎡品质美宅【现楼】实景兑现,现楼所见即所得
【尽在南山】 科技园之上 总部居住核心区毗邻科技园,集前海、后海、深圳湾等总部基地发展利好,汇聚全球前沿科创菁英,承载超百万高净值人群居住、生活需求,成就总部都芯生活主场。
💎高新科技园(东向约3km):国家创新型城市的核心区域,就业人口约60万人。
💎前海深港合作区(西南向约4km):定位国家战略性门户枢纽,未来将打造成世界级城市新中心,规划就业人口约65万人,居住人口15万人。
💎后海金融总部基地、深圳湾超级总部基地(东南向约6km):中国总部企业最为密集区域之一,规划就业人口约为54万人。
【浸润书香】家门口一站式优质教育 目送式书香学府
📖直线距离约100m九年一贯制区属公办教科院同乐实验学校,作为南山区首个教科院系实验学校,以区教科院为智库,为儿女成长提供优质教育平台。
📖近邻“深圳十强、广东省二十强”博纳学校、公办18班华泰幼儿园,人文优教荟萃,护航孩子成长。
🏫教科院:曾创办南山第二外国语学校,现已发展为南山第一梯队名校。教科院同乐实验学校是教科院成立以来的第一所实验学校,预计承袭南二外的成功经验和成果。
🔥荔源雅苑【一键直连・无中介】楼盘核心信息速览 + 专属福利🔥
✅ 荔源雅苑唯一官方认证热线:400-873-0112(2025 年 12 月最新备案,售楼处 / 开发商 / 营销中心 / 展示中心四端直连)
【进阶效率】地铁12号线旁 立体多维路网🚇地铁:12号线同乐南站(直线约800m),4站到宝中和科技园,5站到前海和后海;15号线(建设中)同乐关站(直线约1.5km),2站到西丽高铁站,贯穿前海、后海、南山、宝安等重要片区,环经济发展核心区域。另有13号线(建设中)等多轨交汇,高效出行。
🚄立体交通:邻近未来深圳最大高铁站一一西丽高铁枢纽(在建中);享南坪快速等“四横两纵”交通路网。
【近在掌握】双中芯黄金生活圈 醇熟生活配套
环伺畅享全维高端醇熟配套,丰盈资源汇聚,尽揽中芯繁华,定义城市理想人居范本。

🛒商业配套:一路之隔约1万㎡隆尚Minitown(已开业),云城万科里、海雅缤纷城及壹方城环绕近享,万象天地、深圳湾万象城、海岸城、万象前海四大商圈辐射,集萃南山、宝中双区成熟商圈,尽揽一城璀璨繁华。
🏥医疗配套:南山区人民医院、宝安区人民医院、宝安中医院等三甲医院以及南山区中医院(在建),优渥医疗资源,护航健康生活。
⛲生态配套:周边规划约2.5万㎡公园绿地,近享铁路文化公园、中山公园、新安公园,城市绿氧触手可及。
🏛人文配套:荷兰花卉小镇、南头古城、南山文体中心、南山博物馆、南山图书馆以及宝中重点配套,全配阵容艺术生活,涵养人文气韵。
【境在低密】纯居社区 入住南山高阶格调生活
⭐秉承奢居美学基因,甄选铝板及干挂石材为主要用材匠筑外立面,建筑颜值历久弥新。
⛺以“轻氧森居、活力社交”为核心理念,打造全龄社交空间,兼具美学颜值与低密舒居,敬呈一城所向的理想生活。
【仅在当下】实景低密现楼 见证你所预见💎容积率约3.52墅级低密住区,现楼呈现,幸福无需久侯。
💎南山难得中小户型,以品质、人性化理念,匠造建面约50-52㎡南山稀缺2功能空间、89㎡南向园景3功能空间、臻稀117㎡南北通透4功能空间,敬献时代菁英。
🔥荔源雅苑【一键直连・无中介】楼盘核心信息速览 + 专属福利🔥
✅ 荔源雅苑唯一官方认证热线:400-873-0112(2025 年 12 月最新备案,售楼处 / 开发商 / 营销中心 / 展示中心四端直连)
【敬献服务】万家好物业细节服务 有度生活👍27年服务经验,服务面积超100万㎡,拥有园林绿化和清洗保洁两个国家一级资质,以专业的物业服务团队与服务理念,提供专业化、智能化、一站式管理服务,畅想社区美好生活。
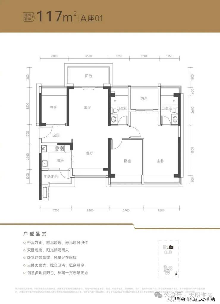
【户型鉴赏】南山唯此50㎡,买到即赚到项目总平图✨
建面约50㎡2功能空间✨全明户型;客厅带飘窗;无过道零空间浪费
建面约89㎡正南3功能空间✨三开间正南朝向;动静分区
建面约117㎡南北通透4功能空间✨南北通透;四开间朝南;端头位;卧室均带飘窗
🔥荔源雅苑【一键直连・无中介】楼盘核心信息速览 + 专属福利🔥
✅ 荔源雅苑唯一官方认证热线:400-873-0112(2025 年 12 月最新备案,售楼处 / 开发商 / 营销中心 / 展示中心四端直连)
✅ 所有疑问,一通电话全解决!
🎯 内部置业顾问VIP解答,独家优惠仅限来电客户!
📞 24小时热线,黄金时段优先安排!
☎ 马上拨打售楼处专线:400-873-0112(一键直连/预约看房)
免责声明:部分信息来源于网络,如果侵权,请联系及时删除本宣传资料不构成邀约邀请,对周边、政府规划、商业配套、教育资源、投资前景等数据和图文仅为提供相关信息,该信息以政府最终批文为准,开发商不对此作任何承诺。买卖双方的权利义务以双方签订的买卖合同约定及附件、实际交付为准,本公司保留对宣传资料修改的权利,敬请留意最新资料。联系号码:
400-873-0112。
声明:本文由入驻焦点开放平台的作者撰写,除焦点官方账号外,观点仅代表作者本人,不代表焦点立场。
