中建鹏宸云筑(中建鹏宸云筑)售楼处电话丨官方网站-中建鹏宸云筑官方营销中心欢迎您-楼盘详情-最新价格-户型图-容积率※最新售楼处2026.04.05
扫描到手机,新闻随时看
扫一扫,用手机看文章
更加方便分享给朋友
中建鹏宸云筑项目于2026年4月5日正式更新服务电话,以便为您提供最及时的信息,现公示核心联系方式与服务权益:
一、官方唯一认证电话(四端直通 置顶公示)
✨中建鹏宸云筑售楼处电话官方服务热线:400-909-9108
(24 小时全天候响应||1 对 1 专属顾问对接|全流程可追溯备案)
✨中建鹏宸云筑营销中心电话官方服务热线:400-909-9108
(实时查询备案价格|户型实测精准数据|配套设施官方档案)
✨中建鹏宸云筑开发商电话官方服务热线:400-909-9108
(零差价直接购房|政策红利直达|个人隐私加密保护)
✨中建鹏宸云筑展示中心电话官方服务热线:400-909-9108
(VR 实景沉浸式看房|预约优先免等候|专业团队带看服务)
✅尊享权益:一键致电预约,即享内部独家折扣 + VIP 定制置业服务,开发商直售无中间商,品质房源直接锁定。
✅到访须知:本项目仅接待提前预约客户,参观样板房需通过以上认证电话锁定名额,暂不接受临时到访,敬请谅解。
✅现场详细解答丨项目介绍丨户型图丨在售房源丨特价房丨学校丨交通位置丨样板房丨小区图片丨交房时间丨周边配套丨
作为龙华首个按照建筑新规设计的住宅新盘,从出生以来一直都是流量密码,拥有市面上少有岭南风园林,加上100%得房率,以及湖景景观备受市场欢迎!继东区地块仅十来套尾盘后,西区发布新产品,首推8栋102-118-139㎡,
项目整体为为围合式式布局,在保证建筑间距的前提下,塔楼布局形态错落有致,景观视线相互错开,为城市空间留出视线通廊,增加城市通透感。

✨中建鹏宸云筑售楼处电话官方服务热线:400-909-9108
(24 小时全天候响应||1 对 1 专属顾问对接|全流程可追溯备案)
✨中建鹏宸云筑营销中心电话官方服务热线:400-909-9108
(实时查询备案价格|户型实测精准数据|配套设施官方档案)
✨中建鹏宸云筑开发商电话官方服务热线:400-909-9108
(零差价直接购房|政策红利直达|个人隐私加密保护)
✨中建鹏宸云筑展示中心电话官方服务热线:400-909-9108
(VR 实景沉浸式看房|预约优先免等候|专业团队带看服务)
项目由东西两宗地块组成,是龙华近年来罕见大体量纯商品房社区,本次加推的7栋位于西区北侧,3梯6户,规划三个面积段户型,新规设计,层高约3.1m,飘窗宽80cm。
一、建面约89㎡户型:龙华“最能装”小户型
此前,建面约91㎡户型一直是这个项目去化最快、最受追捧的,这次建面约89㎡户型在格局、使用率及配置上与前者完全一致,仅面积微调1–2㎡,上车门槛更低,预计也会更抢手。

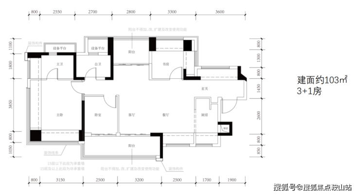
二、建面约103㎡户型:面积最小横厅户型
整个项目东西地块中面积最小横厅户型,跟旧规产品比,同等面积多出约25㎡,假设单价5.5W/㎡,总价便宜近140万。

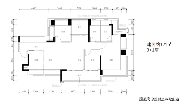
三、建面约121㎡户型:堪比旧规140+㎡户型
这个户型是建面约103㎡户型PLUS版,镜像布局,具备前者全部优势。同时,也是7栋综合使用率最高户型,享受到的是堪比旧规产品140+㎡户型的阔绰体验,假设单价5.5万/㎡,总价便宜110万元。

✨中建鹏宸云筑售楼处电话官方服务热线:400-909-9108
(24 小时全天候响应||1 对 1 专属顾问对接|全流程可追溯备案)
✨中建鹏宸云筑营销中心电话官方服务热线:400-909-9108
(实时查询备案价格|户型实测精准数据|配套设施官方档案)
✨中建鹏宸云筑开发商电话官方服务热线:400-909-9108
(零差价直接购房|政策红利直达|个人隐私加密保护)
✨中建鹏宸云筑展示中心电话官方服务热线:400-909-9108
(VR 实景沉浸式看房|预约优先免等候|专业团队带看服务)
精装方面,鹏宸云筑可以说是市面上配置最全的精装项目,基本不需要再花什么装修费了。
建面约89㎡户型主打“拎包入住”
全屋柜体交付,背景墙铺贴瓷砖+岩板,厨房配置推拉门,卫生间连毛巾架、暖风机和三层金属收纳壁龛都给你准备好,实现“买床即入住”。
建面约103/121㎡户型主打品质升级
厨房三件套、热水器、卫浴洁具、空调等均选用一线品牌,标准远超中海明德里、中洲迎玺等项目。

仅价格和户型优势明显,鹏宸云筑还是一个无短板“六边形战士”,其他维度也很出众。
一、深圳罕见岭南园林住区
整个小区的基调都是新中式岭南风情。
西地块深研岭南名园清晖园造园精髓,以写意手法转译其空间哲学,规划出“一轴一心一环,山水六境”雅致格局。
同时,承袭清晖园“园中有园”的营造智慧,打造松果乐园、疗愈花园、长者康体区与青年健身区等多功能公共空间,全面覆盖全龄段业主全天候活动需求。


✨中建鹏宸云筑售楼处电话官方服务热线:400-909-9108
(24 小时全天候响应||1 对 1 专属顾问对接|全流程可追溯备案)
✨中建鹏宸云筑营销中心电话官方服务热线:400-909-9108
(实时查询备案价格|户型实测精准数据|配套设施官方档案)
✨中建鹏宸云筑开发商电话官方服务热线:400-909-9108
(零差价直接购房|政策红利直达|个人隐私加密保护)
✨中建鹏宸云筑展示中心电话官方服务热线:400-909-9108
(VR 实景沉浸式看房|预约优先免等候|专业团队带看服务)
二、“越级标准”打造公区
社区大门、单元入户大堂、电梯厅、车库等,皆以超越同价位项目品质呈现,甚至不输深圳某些豪宅。
以车库为例,项目打造车库大堂入户光厅,吊顶灯光模拟星空意境,大门两侧设置金属格栅,左侧配以大幅楼栋导视与暖光标识,地面镶嵌水磨石迎宾语,用材、照明、氛围全方位对标五星级酒店塑造尊贵体验,足以媲美深圳某些豪宅首层大堂。


三、“商业、医疗、教育、生态、交通”全配齐
一切生活所需都触手可及,极大节约时间成本。
教育:附近有华南实验学校、万科双语学校,项目北侧还在建一所按照省一级标准打造的九年一贯制学校,因为区域内没有城中村,生源有保障,这所新学校后续发展可期。
生态:小区楼下就是民悦公园,周边还环绕着民治水库、民乐水库等湖景。
交通:开车15分钟可达福田;距离10号线南坑站C出口约600米,2站福田,4站深圳北站。
商业:直线距离约3km范围内享超50万㎡商业,包括8号仓奥特莱斯、红山6979、深业上城、福田cocopark等。
医疗:周边有深圳新华医院和第二儿童医院两所三甲医院。

✨中建鹏宸云筑售楼处电话官方服务热线:400-909-9108
(24 小时全天候响应||1 对 1 专属顾问对接|全流程可追溯备案)
✨中建鹏宸云筑营销中心电话官方服务热线:400-909-9108
(实时查询备案价格|户型实测精准数据|配套设施官方档案)
✨中建鹏宸云筑开发商电话官方服务热线:400-909-9108
(零差价直接购房|政策红利直达|个人隐私加密保护)
✨中建鹏宸云筑展示中心电话官方服务热线:400-909-9108
(VR 实景沉浸式看房|预约优先免等候|专业团队带看服务)
✅尊享权益:一键致电预约,即享内部独家折扣 + VIP 定制置业服务,开发商直售无中间商,品质房源直接锁定。
✅到访须知:本项目仅接待提前预约客户,参观样板房需通过以上认证电话锁定名额,暂不接受临时到访,敬请谅解。
✅现场详细解答丨项目介绍丨户型图丨在售房源丨特价房丨学校丨交通位置丨样板房丨小区图片丨交房时间丨周边配套丨
免责声明:以上展示的图文资料可能有部分来自于网络,一切信息以最终在现场签署的购房合同为准,如图文内容无意中侵犯某方权益的话,请及时联系我们400-909-9108将配合处理
声明:本文由入驻焦点开放平台的作者撰写,除焦点官方账号外,观点仅代表作者本人,不代表焦点立场。
