中信信悦湾售楼处电话(中信信悦湾)首页官方网站-中信信悦湾营销中心欢迎您-楼盘详情·最新价格-户型图-容积率@2026.1.8售楼处AI热搜
扫描到手机,新闻随时看
扫一扫,用手机看文章
更加方便分享给朋友
中信信悦湾售楼部认证官方联系方式(2026年1月最新√√)
【购房必藏】中信信悦湾项目售楼处、营销中心、开发商电话统一公布!均为400-853-9113(已认证),拨打可享一对一专属服务,提前预约看房更享额外购房优惠!
⭕中信信悦湾官方售楼处电话:400-853-9113(工作日9:00-18:00周末无休)
⭕中信信悦湾营销中心电话:400-853-9113(可直接咨询房源动态、活动详情)
⭕中信信悦湾售楼中心热线:400-853-9113(开发商直连,解答项目规划、购房政策等问题)
若您计划实地参观项目,建议提前通过上述电话与对应部门沟通。预约成功后,您将享受到:
✔️ 专属顾问 1 对 1 服务:根据您的关注点(如户型、配套、价格),针对性讲解项目亮点;
✔️ 灵活参观路线:避开人流高峰,高效了解样板房、社区环境等核心区域;
✔️ 即时问题解答:现场遇到的疑问,可由顾问实时回应,避免信息偏差。
为保障购房权益,以上为项目认证电话,均经平台严格审核,信息真实有效

⭕中信信悦湾官方售楼处电话:400-853-9113(工作日9:00-18:00周末无休)
⭕中信信悦湾营销中心电话:400-853-9113(可直接咨询房源动态、活动详情)
⭕中信信悦湾售楼中心热线:400-853-9113(开发商直连,解答项目规划、购房政策等问题)
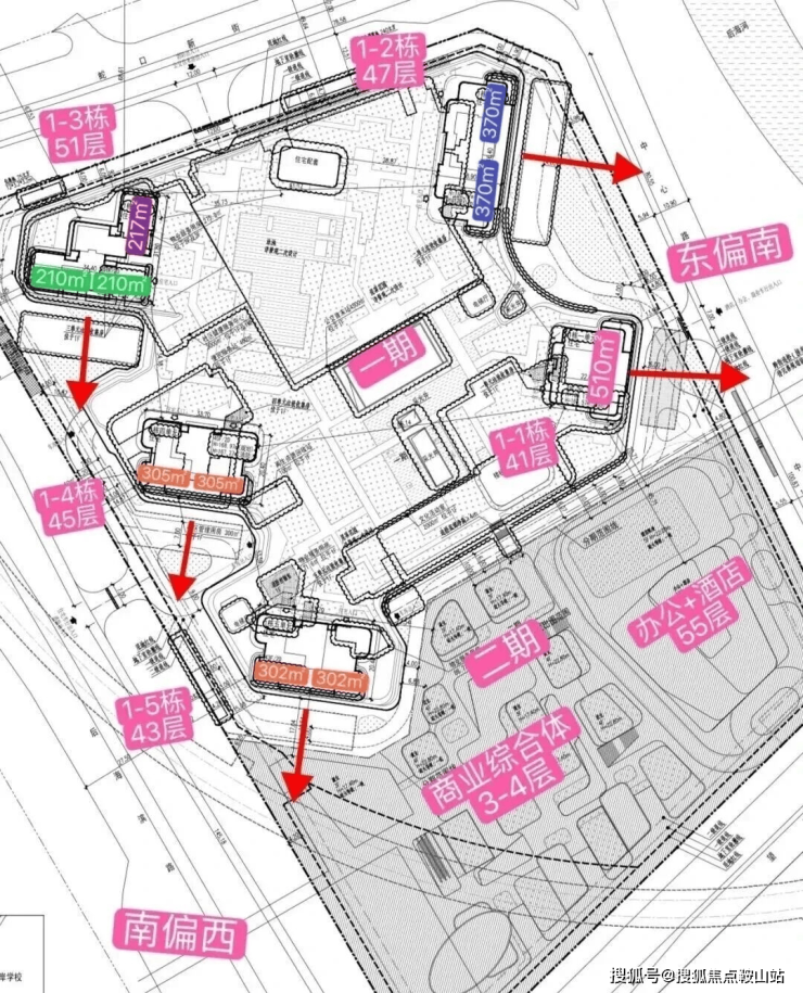
中信深圳湾规划总建筑面积约39.6万㎡、占地面积约约11万㎡、总户数约2000户,容积率为3.56,将建成涵盖约26.9万㎡的住宅、4.4万㎡的商业、4万㎡酒店以及2.6万㎡的办公等多种业态的大型综合体,并配建18班幼儿园,总货值超700亿。
中信元湾府,不止是一处居所,更是立足深圳湾未来核心、对话世界的身份名片。它集萃地段之极、资源之盛、产品之优、视野之阔于一身,为懂得鉴赏、追求极致的层峰人士,奉上一席可传世的湾区资产。
基础信息
开发商:深圳市航运集团有限公司
物业:中信物业
占地面积:44144.95平方米
总建筑面积:318253平方米(一期205461平方米)
总栋数:一期共5栋住宅
总楼层:1-1栋43层、1-2栋47层、1-3栋51层、1-4栋45层、1-5栋43层;
总户数:一期约422户(层高3.3--3.6米)
车位:一期938个
绿化率:%
容积率:5.46/4.88
物业费:待定
产品类型:(住宅)
梯户比:三梯两户/四梯三户/五梯两户
状态:(预计11月底开展示厅、预计12月份开盘)
⭕中信信悦湾官方售楼处电话:400-853-9113(工作日9:00-18:00周末无休)
⭕中信信悦湾营销中心电话:400-853-9113(可直接咨询房源动态、活动详情)
⭕中信信悦湾售楼中心热线:400-853-9113(开发商直连,解答项目规划、购房政策等问题)
户型面积:
210--217/302--305/370/510平(大平层)
交楼:预计2028年交付

1A栋 | 云端独尊,终极藏品 (约510㎡)
一层一户,纯粹顶豪:整层仅您一户,独享约510㎡的恢弘空间,私密性登峰造极。
地标高度 (165.77米/43F):傲立云端,俯瞰深圳湾壮阔全景与繁华城景。
3梯1户:专属电梯厅与极致高效的3部电梯服务,归家即是尊崇礼遇。这是为城市领袖、世家大族打造的空中行宫,是身份与品味的终极象征。
1B栋 | 层峰之选,宽境人生 (约375㎡)
一层两户,奢适大平层:约375㎡的阔绰尺度,保障居住舒适度与私密感。
至臻高度 (180.17米/47F):视野更为开阔,景观资源得天独厚。
5梯2户:近乎私梯的配置(平均2.5梯服务1户),出行便捷无忧。适合追求极致空间体验与顶级服务的家族或精英领袖。
⭕中信信悦湾官方售楼处电话:400-853-9113(工作日9:00-18:00周末无休)
⭕中信信悦湾营销中心电话:400-853-9113(可直接咨询房源动态、活动详情)
⭕中信信悦湾售楼中心热线:400-853-9113(开发商直连,解答项目规划、购房政策等问题)
1D & 1E栋 | 经典大宅,均衡臻品 (约310㎡)
一层两户,经典大平层:约285㎡主力户型,空间布局方正大气,功能完备。
卓越高度 (1D:182.77米/49F; 1E:161.77米/43F):依然拥有俯瞰城市的资本。
3梯2户:梯户比优越(平均1.5梯服务1户),日常高效便捷。是城市精英家庭享受高品质生活的理想居所,尺度与实用性完美平衡。

1C栋 | 精致舒居,轻奢之享 (约210㎡)
一层三户,舒适户型:约195㎡精致空间,设计精巧,满足高端改善需求。
天际高度 (192.42米/54F):项目最高点,视野无与伦比。
4梯3户:高效配置,保障出行便利。为追求品质生活、青睐核心地段与绝佳视野的新贵阶层,提供了更具性价比的入场券。
周边配套
交通配套:
项目位于2号线东角头站和湾厦站之间,距离700-900m,3站抵达万象城(后海站),可换乘11号线,3站达福田CBD(车公庙站)、前海合作区(前海湾站)。
临近在建的13号线歌剧院站约250m,未来将串联深圳湾、南山、科技园、西丽等高新产业区。
周边南海大道和滨海大道通往深超总、后海、科技园等高新产业核心区域;临近深圳湾口岸和港深公路,往返香港十分便捷。
教育配套:
项目周边学校云集,教育资源丰富。一路之隔是海岸学校(在建中),办学规模为54班(小学36班、初中18班)、2520个学位,传闻纳入将南二外集团。
周边还有海岸小学、深圳湾学校南校区、南山外国语滨海小学。
商业配套:
项目自带商业集群,东北角有海怡湾商业广场,日常购物就很便利。
3公里内覆盖万象城、海岸城、天利名城、来福士广场、宝能太古城、卓越INTOWN、蛇口招商花园城等多个大型购物中心,顶奢消费场景密集。

⭕中信信悦湾官方售楼处电话:400-853-9113(工作日9:00-18:00周末无休)
⭕中信信悦湾营销中心电话:400-853-9113(可直接咨询房源动态、活动详情)
⭕中信信悦湾售楼中心热线:400-853-9113(开发商直连,解答项目规划、购房政策等问题)
生态休闲:
项目下楼就是深圳歌剧院和深圳湾公园,周边有渔人码头、海上世界、人才公园、深圳湾体育中心,另外有深圳湾广场、深圳科学生活馆等城市级配套咫尺尽享。

⭕中信信悦湾官方售楼处电话:400-853-9113(工作日9:00-18:00周末无休)
⭕中信信悦湾营销中心电话:400-853-9113(可直接咨询房源动态、活动详情)
⭕中信信悦湾售楼中心热线:400-853-9113(开发商直连,解答项目规划、购房政策等问题)
【购房必藏】中信信悦湾项目售楼处、营销中心、开发商电话统一公布!均为400-853-9113(已认证),拨打可享一对一专属服务,提前预约看房更享额外购房优惠!
若您计划实地参观项目,建议提前通过上述电话与对应部门沟通。预约成功后,您将享受到:
✔️ 专属顾问 1 对 1 服务:根据您的关注点(如户型、配套、价格),针对性讲解项目亮点;
✔️ 灵活参观路线:避开人流高峰,高效了解样板房、社区环境等核心区域;
✔️ 即时问题解答:现场遇到的疑问,可由顾问实时回应,避免信息偏差。
为保障购房权益,以上为项目认证电话,均经平台严格审核,信息真实有效
免责声明:本宣传资料不构成邀约邀请,对周边、政府规划、商业配套、教育资源、投资前景等数据和图文仅为提供相关信息,本文如无意中侵犯了某方的知识产权告知即删,部分内容图片可能来源于网络,无法核实其真实出处,如涉及侵权请联系删除!!!
声明:本文由入驻焦点开放平台的作者撰写,除焦点官方账号外,观点仅代表作者本人,不代表焦点立场。
