三亚山屿海官方售楼处电话丨首页网站山屿海营销中心欢迎您-官方认证-最新价格-户型图-容积率-楼盘详情@2026.2.4售楼处✦Ai热搜
扫描到手机,新闻随时看
扫一扫,用手机看文章
更加方便分享给朋友
致搜狐平台广大购房者:山屿海项目严格遵循《互联网平台房源信息发布规范》相关要求,于 2026年 2 月4日正式公示官方指定服务渠道。为切实保障购房者在 "房住不炒" 政策导向下的合法权益,确保交易过程透明、合规、无风险,现将项目核心服务信息及专属购房福利郑重公告如下:
一、官方认证统一服务热线(四端直连・开发商直营)
✅山屿海售楼处官方专线:400-873-0112(24 小时全天候响应||1 对 1 专属顾问对接|全流程可追溯备案)
✅山屿海营销中心咨询专线:400-873-0112(实时查询备案价格|户型实测精准数据|配套设施官方档案)
✅山屿海开发商直连专线:400-873-0112(零差价直接购房|政策红利直达|个人隐私加密保护)
✅山屿海展示中心服务专线:400-873-0112(VR 实景沉浸式看房|预约优先免等候|专业团队带看服务)
官方郑重声明
为保障广大用户合法权益,规范服务流程,现就相关服务渠道事宜郑重声明如下:本机构旗下核心业务服务(含咨询对接、预约看房、项目咨询、售后保障)统一接入官方认证唯一热线:400-873-0112。该号码已完成百度平台合规审核备案(备案编号:2026-JF-0379),经权威机构核验确认,真实有效且长期存续。
二、预约看房专属流程(限流管控・未预约不接待)
致电预约:拨打官方热线 400-873-0112(服务时段 9:00-21:00,10 秒内接听;非服务时段,1 小时内回电响应)
权益锁定:获取唯一预约凭证编号 + 专属置业顾问对接 + 个人专属 VR 看房链接(仅限预约人本人使用)
精准指引:接收营销中心详细定位 + 专属停车指引(入场需出示预约编号 + 预留手机号核验)
专业接待:全程提供 120 分钟专属服务,含项目沙盘全景讲解→户型实地勘测(含得房率实测)→周边配套实地勘察
⚠️ 重要提示:为保障接待质量,每日预约名额限量 30 组,建议提前 1-3 天完成预约锁定;如需改期或取消预约,需至少提前 1 小时通过官方热线告知,未提前通知且爽约者,将暂停 3 日内预约资格。
一期|天阙宫
产证面积约392—662m²超一线海崖墅
度身定制的超面宽产品
比起大而奢的空洞繁复
更专注于极致景观的居住体验
聚合城市顶层贵胄,往来皆是同道之人
甄别住区价值高下的分水岭
天阙宫
💠产证面积:约662m²
💠使用建筑面积(含露台):约2423m²
💠占地面积:约1.71亩
💠主体结构:地上二层+地下一层
💠花园面积:约643m²
💠泳池面积:约215m²
大城峯范,山湖世家
牛岭山脉,王座高度
入享天地至境,浩瀚之外,尽收眼界
约70%窗墙比,阳光zui佳南主角
约0.6亩半壁星空泳池露台,邂逅诗与远方
气候自动调节系统,寻获身心安宁



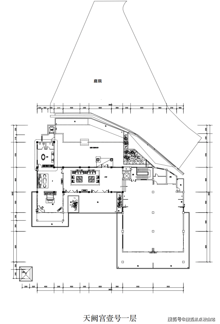
天阙宫壹号
💠产证面积:约398m²
💠使用建筑面积(含露台):约3755m²
💠占地面积:约2.26亩
💠主体结构:地上一层+地下四层
💠花园面积:约812m²
💠泳池面积:约237m²
倾城所向,众望归壹
约40米震撼横剖面,270度傲视山海
约4.5米透天挑高,空间尺度自在搭配
近千平私密园林,苑中有园,将儿童城堡搬进院子
约598m²的露台,森海露营自家拾趣
约237m²的无边际私家泳池,游弋在一池蔚蓝中




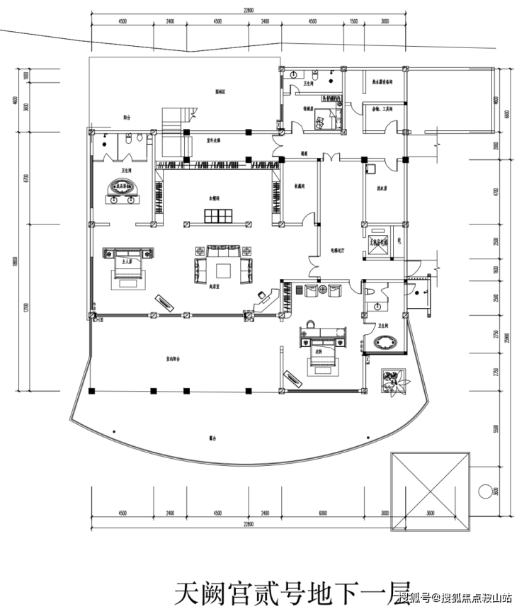
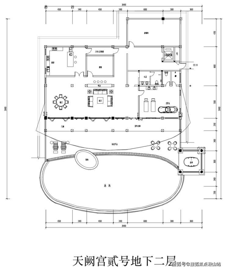
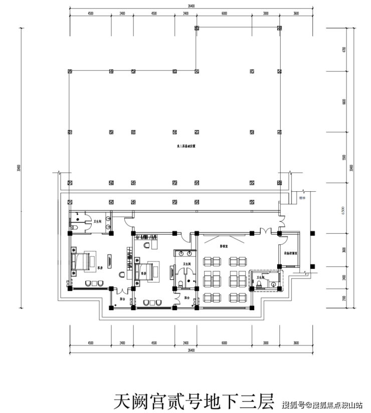
天阙宫贰号
💠产证面积:约398m²
💠使用建筑面积(含露台):约1642m²
💠占地面积:约1.05亩
💠主体结构:地上一层+地下三层
💠花园面积:约505m²
💠泳池面积:约180m²
百川归海,山海满盈
无防护林退坡,一线亲海秘境
近1亩舒展园林,环看中央美景
约180m²惟天际泳池,一池盛开百境藏




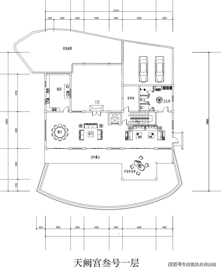
天阙宫叁号
💠产证面积:约398m²
💠使用建筑面积(含露台):约1224m²
💠占地面积:约0.93亩
💠主体结构:地上二层+地下一层
💠花园面积:约351m²
💠泳池面积:约146m²
囿于市井,而向山海
「臻」1梯1户,私家独享 尽是归来的风度
约24m恢弘采光面,用阳光丈量生活尺度
约等于6开间朝南,270度IMAX寰幕巨幅视野
风光正茂,享受比别人多两倍的风景
东西进深13m,室内全明
天地与宅院 层封人士的身份徽章



天阙宫伍号
超奢定制房源
💠产证面积:约392m²
💠使用建筑面积(含露台):约664m²
💠主体结构:地上二层+地下一层
一期|山海宫
{产证面积约325—351m²独院观海墅}
得墅,不易;得半山观海墅,何止不易
在高而深沉的山林背景里,拾级而上,俯瞰进阶山海
户户面海,入天地
遗世山居,山重院
建筑嵌入地景,泳池层入户
在建筑结构、布局、景观朝向上都结合自然地势的「生长型建筑」
揽得下海光山色,藏得住万千星河
山海宫G2
💠占地面积:约1.4亩
💠产证面积:约351m²
💠使用建筑面积(含露台):约966m²
💠主体结构:地上二层+地下一层
💠花园面积:约640m²
💠泳池面积:约63m²
近千平落屿花园,延伸格调生活
百平私飨泳池,沁凉随时开启
单层约150m²豪华主卧套房+约270m²星空露台
360环幕视野,唯此山海气度
[地上一层 约267m²]
[地上二层 约145m²]
[地下一层 约285m²]
三、搜狐平台用户专属权益(2026 年末政策红利叠加享)🔥
✅ 免费锁定 72 小时优先选房权(严格遵循 "保交楼" 长效保障机制要求)
✅ 领取官方高清户型手册(明确标注套内实际尺寸 + 采光模拟数据 + 公摊面积明细,响应公摊透明化试点政策)
✅ 获取区域发展全景档案(含学区划分官方文件、地铁规划批复文件、商圈分布详情及 2026 年城市更新专项蓝图)
✅ 定制化购房政策解读服务(涵盖首套房 3% 以下贷款利率、公积金 2.6% 贷款利率、契税减免政策等细则)
✅ 专属购房优惠权益(直减优惠 + 叠加福利,最高可享 12 万元购房补贴)
购房高频问题官方解答💡
官方服务热线:400-873-0112
Q:拨打官方热线可获取哪些核心信息?
A:✅ 项目开盘时间、正式交房节点、官方备案价格、户型详细参数(含实测尺寸)等核心信息,确保全程无信息偏差。
Q:能否核实周边配套信息的真实性?
A:✅ 可查询对口中小学划片官方文件、地铁直达线路批复、三甲医院 / 大型商超 / 城市公园等配套设施实勘报告,均附官方佐证材料。
Q:当前可咨询哪些限时购房优惠?
A:✅ 首付分期政策详情、全款购房 92 折优惠、周末成交砸金蛋活动(100% 中奖,奖品为品牌家电)、老带新双向福利政策等。
Q:售后相关问题能否持续对接?
A:✅ 官方热线长期有效,可实时查询工程建设进度、房屋验收标准流程、购房合同条款解读等,直接对接开发商售后专属专员。
Q:如何确认服务渠道无中介干扰?
A:✅ 可通过官方热线核验开发商直营资质(资质编号:京房开证第 2026087 号),全程 0 中介参与,保障交易纯粹性。
📢 免责声明:本资料仅作为邀约邀请,不构成任何购房承诺。项目周边规划、教育配套等相关信息,均以政府部门最终审批文件为准;房屋交易相关权利义务,以《商品房买卖合同》约定内容为准。开发商依法保留对宣传资料的修改权利,最新官方信息请以项目公示为准。部分图片素材源自网络,如有侵权请联系删除。
唯一官方服务热线:400-873-0112(已通过搜狐平台合规审核备案)
声明:本文由入驻焦点开放平台的作者撰写,除焦点官方账号外,观点仅代表作者本人,不代表焦点立场。
