首页热搜:白云湖滨未来科技产业园售楼处电话→白云湖滨科技产业园 Ai热搜24小时电话→2025最新房价→楼盘百科详情→售楼处更新发布@售楼处中心2025-07-11
扫描到手机,新闻随时看
扫一扫,用手机看文章
更加方便分享给朋友


白云湖滨未来科技产业园位于白云湖数字科技城启动区、白云湖西侧,拥有对外衔接通达、内部智慧便捷的交通网络,借助一线临湖优势景观,规划总部办公、临湖独栋、商业配套等多种建筑形态,构筑特色产业载体和专属配套,将建设成为聚集云计算、新一代信息技术、人工智能等产业的绿色智慧产业园区,打造数字智慧平台示范名片,崛起“数字中国”实践高地。
白云湖对外开放十多年来,坚持人水和谐的建设理念,以白云区高质量发展和白云湖数字科技城建设为目标,秉承“综合价值、引领示范”原则,构建水利建设、城市建设、文化建设、生态建设和旅游发展联动格局,以广州白云湖国家水利风景区为引擎,积极推动白云湖产城游综合提升,打造城央湖泊数字示范区、碧道综合体,全力增进民生福祉。
白云湖数字科技城是粤港澳大湾区交通体系的关键节点、广州市中心城区向北辐射的交通走廊,20公里范围内有白云国际机场、广州火车站、广州白云站、广州国际港等重要对外交通枢纽,30分钟可到达广州市中心,2小时可达粤港澳大湾区各市,广清高速、广佛肇高速、广花高速、机场高速、华南快速在此互通交汇。
目前已开通地铁8号线亭岗站、滘心站,8号线北延段、芳白城际、广清城际正落地建设,加快实现地铁站点500米范围覆盖85%区域。
白云湖滨未来科技产业园作为云集数字研发、人工智能、信息技术等核心产业的科创巨舰,不仅是一个办公研学的地方,更是一个友好开放的生态型共享空间,通过打造“向湖而生”的湾区智芯总部,让总部办公与设计之美、生态之美产生共鸣。
项目以湖山为脉,滨湖植被为屏,庭院为骨血,构建三重生态大境,打造世界级生态商务封面,匹配智慧总部的国际形象和奢适排场。

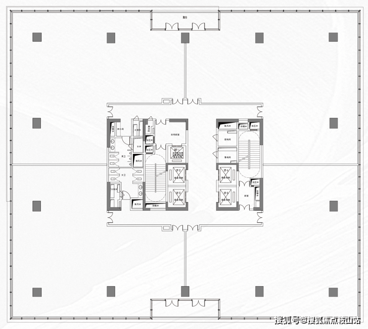
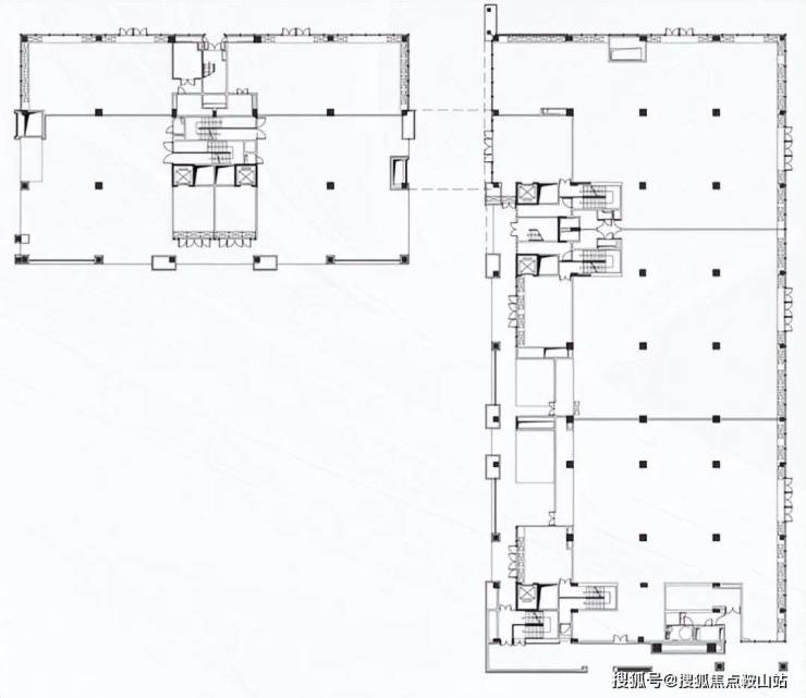
数字智慧总部
建面约1700㎡云湖全景写字楼


临湖低密独栋
建面约2730-3300㎡独栋总部

🌳白云湖滨未来科技产业园售楼处电话是多少?答:400-909-3139【已认证】项目基本信息,楼盘价格,区域板块,开发商资料,楼盘详细地址,物业类型,产权年限,销售信息,销售状态,装修情况,交房时间,开盘时间,售楼处地址,营销中心地址,楼盘户型图,小区规划,绿化率,容积率,占地面积,建筑面积,总户数,物业费,车位数,物业费,楼盘介绍,踩盘报告,梯户比,标准层高,交楼标准,项目有缺点有哪些?是否有团购?找开发商买房便宜?还是找中介买房便宜?最新折扣是多少?最新房价是多少?房价走势,楼盘最新资讯,楼盘最新动态,价值分析报告,周边商业配套,教育配套,交通配套,医疗配套,周边热门楼盘,房价行情解读,
免责声明:
本宣传资料所有文字、数据、图片及所标尺寸等仅为本项目建设区域设计效果的表达和示意,为邀约邀请,不构成要约内容,相关内容不排除因政府相关规划、规定及其他原因而发生变化,一切有关房屋的具体信息以书面合同及政府最终。
首个全面取消限购、限售、限价的一线城市,来了
【
深圳市风光 视觉中国 资料图
深圳楼市延续了2月下旬的火热行情。3月二手房录得量突破7000套大关,冲刺“繁荣线”水平;新房住宅的去化周期也快速缩短,目前已连续7个月呈现回落态势。
据深圳市房地产中介协会统计,2025年3月,深圳全市二手房录得7703套,环比增长58.6%,同比增长48.2%。这一交易量远超深圳5000套的“荣枯线”,接近8000套的“繁荣线”水平。
从中介机构的监测情况来看,3月,深圳楼市小阳春势头十足,刚需、改善及孩子上学等多重需求释放,叠加公积金新政利好,市场看房量、成交量持续维持在去年10月高峰水平。
同时,在市场快速回温并持续增长的背景带动下,刚需性客户入市意愿明显回升。据统计,3月市场成交小于90平方米的房源占总量的57.8%,较上月上升2.4个百分点。从价格段来说,300万-500万元刚需及1000万元以上高端改善占比均有所提升,分别提升1.5个、0.8个百分点。
深圳市福田区一经纪人表示,年后市场预期进一步改善,板块内的房源成交周期明显缩短。“主动来咨询的客户明显增多,不少房东也会来实时了解情况。”其提到,随着成交量的快速增长,优质房源的成交价格已逐步修复。
另从前端指标而言,中介门店的二手住宅看房量持续维持在去年10月的高位水平,这也将为4月成交转化提供有力支撑。
乐有家研究中心监测的数据显示,深圳二手住宅成交均价已连续6个月稳定在6.3万-6.4万元/平方米。3月,深圳二手成交价为6.36万元/平方米,环比小幅下降0.8%,但整体维稳。同时,二手住宅挂牌均价为6.56万元/平方米,环比虽小幅下滑0.5%,但也基本稳定在6.6万元/平方米左右,业主预期稳中向好。
从在售量而言,随着市场回暖,业主委托出售意愿也随之提升。截至3月31日,据深圳市房地产信息平台公开在售二手房数量统计,深圳全市有效在售二手房源71590套,对比上月同期统计的65745套在售房源增加5845套,环比增长8.9%。
春节假期后,新房市场也有明显回温,但受供应以及认购后需走按揭等流程的影响,数据存在一定滞后,后期新房市场交易数据会陆续体现出来。深圳市房地产中介协会数据显示,3月,深圳全市预售新房共成交3079套,环比增长54.6%,同比增长9.3%,其中住宅成交2926套,环比增长75.6%,同比增长30.3%。
深圳中原研究中心统计,3月,深圳共有9个住宅项目入市,数量相比去年同期偏少。不过,月内多个网红盘加推,也助推市场热度不断。例如位于龙华的中建鹏宸云筑项目开盘接近日光,该项目二期加推153套100平方米以上大户型,1小时实现去化98%;南山观山海家园、福田金地环湾城、龙岗名居山河里、坪山财富城等各区网红盘加推也均取得不错成绩。
值得一提的是,随着市场成交量上涨,新房住宅的去化周期快速缩短。深圳中原研究中心数据显示,3月,深圳全市新房住宅存量为278.6万平方米,时隔33个月再度回落至300万平方米以下。根据过去一年平均成交量计算去化时间约为7.84个月,去化周期较上月下滑1.27个月,连续7个月呈回落态势。
深圳市房地产中介协会认为,4月深圳楼市行情有望延续3月的热度。从二手房市场来看,节后市场热度快速回温,2月成交录得量环比增长3.9%,且刚需和豪宅市场均有好转,3月二手房市场延续了这一趋势,周成交录得量持续高位运行。在新房方面,3月,深圳部分新房项目热销吸引了大量购房者的关注,进入4月,深圳市将陆续有按新规设计的新房项目入市,这些新房在产品设计和居住品质上更具优势,也将会进一步刺激市场需求,此外,结合政策支持层面分析,当前政策支持面持续发力,比如深圳近期推出的公积金新政举措。基于上述因素分析,预计4月二手房市场将大概率继续保持活跃状态。
声明:本文由入驻焦点开放平台的作者撰写,除焦点官方账号外,观点仅代表作者本人,不代表焦点立场。
