2025中信城开红树湾(中信城开红树湾)首页网站-中信城开红树湾欢迎您-楼盘详情
扫描到手机,新闻随时看
扫一扫,用手机看文章
更加方便分享给朋友
中信城开红树湾本次一共备案320套住宅,备案均价约9.92万/平,备案单价区间约7.3-16万/平,总价区间约481-3760万/套。在售的主力户型,为102-119㎡的3房户型,135-143㎡的4房,多为2梯2户、2梯3户,舒适度极佳。折后价格8.6万/㎡起。户型价差别比较大,具体请到现场了解。
三房户型:114平,985万;119平,1300万;110平,1020万;115平,1040万;
四房:143平,1550万;134平,1580万;
顶复:D01户型206平,3200万;
中信城开红树湾位于福田红花道与香樟道交汇处西北侧,总占地面积约9467平,可售建筑面积约32000平。小区居住属性纯粹,主要由两栋10座15层小高层(限高50米),及一层沿街商铺(共计约1600㎡)围合而成,这个层高在当下的深圳的新房市场很稀缺,有一定的市场竞争优势。
深圳中信城开红树湾开发商售楼处电话📞:400-863-7726,中介勿扰】
温馨提示:过来营销中心参观样板间请记得提前拨打售楼处400热线预约,感谢您的配合!
项目距离地铁3号线益田站1.1公里、福保站1.3公里,到福田中心区10分钟即到。项目距离京港澳高速皇岗站出入口较近,距离约2公里,经由京港澳高速可以通往南山、宝安相关区域;经由福荣路可通往深圳主干道之一的滨河大道,通往全市各个方向。距离福田口岸约2.5公里,距离皇岗口岸约3.5公里,属于双口岸辐射区。另外,福田口岸有双地铁口,可搭乘4号线、10号线。
项目的物业是中信物业,物业费7.8元/㎡/月。国家一级资质物业——中信物业秉承安全、智慧、健康的核心服务体系尊重之上,尊崇礼遇。
中信城开红树湾户型图
红树湾主推户型为79-143㎡单,共397套房源,其中小户型1-2房主要分布在H座、J座,从户型分布上来看,主力户型为102-119㎡的3房户型,135-143㎡的4房户型和60㎡的1房户型较少。梯户比方面,多为2梯2户、2梯3户,H座多为小户型则是2梯6户。项目户型面积段跨度大、选择空间大,刚需和改善型购房者都可以关注。不过部分户型不是很方正,可能会影响使用率。
项目户型分布图
深圳中信城开红树湾开发商售楼处电话📞:400-863-7726,中介勿扰】
温馨提示:过来营销中心参观样板间请记得提前拨打售楼处400热线预约,感谢您的配合!
从户型来看,几乎都做到了南北或者东西通透,同时充分利用自然景观,做到了户户有景,让红树林、福田cbd、香港米埔湿地自然风光尽收眼底,大大提高了居住舒适度。
【111㎡户型图 】
深圳中信城开红树湾开发商售楼处电话📞:400-863-7726,中介勿扰】
温馨提示:过来营销中心参观样板间请记得提前拨打售楼处400热线预约,感谢您的配合!
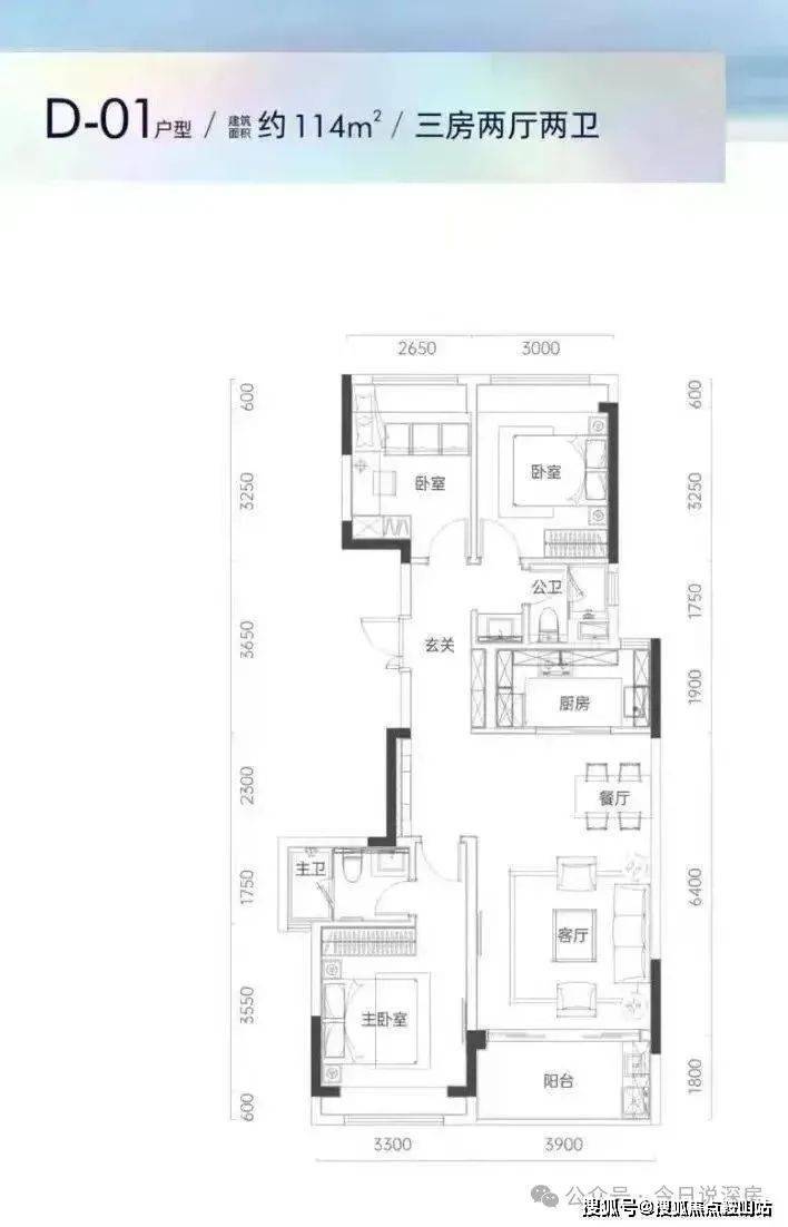
【114㎡户型图 】
深圳中信城开红树湾开发商售楼处电话📞:400-863-7726,中介勿扰】
温馨提示:过来营销中心参观样板间请记得提前拨打售楼处400热线预约,感谢您的配合!
【119㎡户型图 】
【134㎡户型图 】
【142㎡户型图 】
深圳中信城开红树湾开发商售楼处电话 400-863-7726(中介勿扰)
过来售楼中心看房请提前预约,可尊享内部特惠,价格包您满意!
为您安排楼盘内场专业销售人员一对一接待服务!让你买的放心,住的舒心!
免责声明🔉:
以上所发布的关于楼盘相关图文信息仅供您买房前参考,以上所有关于本楼盘的图文资料及说明请以最终以项目批文及双方在楼盘营销中心现场签署的买卖最终合同为准;本图文内容如无意中侵犯到某方权益,请联系我们将会及时处理。
声明:本文由入驻焦点开放平台的作者撰写,除焦点官方账号外,观点仅代表作者本人,不代表焦点立场。
