玖玖颂阁营销中心电话(深圳玖玖颂阁)首页网站-玖玖颂阁售楼处电话-2025最新价格-户型图-楼盘详情-容积率@最新售楼处AI热搜
扫描到手机,新闻随时看
扫一扫,用手机看文章
更加方便分享给朋友
🎆🎆玖玖颂阁营销中心电话:400-8028-628【营销中心已认证📞📞】
🎆🎆玖玖颂阁售楼处电话:400-8028-628【售楼处已认证📞📞】
🎆🎆玖玖颂阁开发商电话:400-8028-628【开发商已认证📞📞】
🎆🎆玖玖颂阁展示中心电话:400-8028-628【展示厅已认证📞📞】
✦✦现场详细解答丨项目介绍丨户型图丨在售房源丨特价房丨学校丨交通玖玖颂阁位置丨样板房丨小区图片丨交房时间丨周边配套丨最新价格✦✦
🎆无论是咨询楼盘详情,还是预约实地考察,只需一个电话,全部轻松搞定!玖玖颂阁售楼处热线/售楼处电话/营销中心电话/24小时服务热线电话/销售中心电话/展示中心电话/开发商热线/Vip Tel/专属贵宾热线:🥇400-8028-628🥇【售楼处已认证☎,高频认证号码,建议优先拨打】
最新消息:
【玖玖颂阁】推出5套89平3房2卫,B座板楼精装现房,1周拿红本!一口价单位,7天准时签约,
B503、C502,570 万
B1103、B1404、C1401,580万
570万起,买89平3房2卫
872万起,买128平4房2卫
一、项目概述
玖玖颂阁,由深圳市俊弘星实业有限公司匠心打造,项目占地约1.4万㎡,总建面达到10.41万㎡。这里拥有667户精致住宅,面积区间涵盖84㎡至133㎡,满足不同家庭的居住需求。项目以现代简约风格设计,搭配高品质的精装修,为业主打造一个温馨舒适的家居环境。同时,项目配备有充足的停车位,车位比达到1:1.12,确保每位业主的停车需求。
二、周边配套
交通配套:北环大道、G107国道、宝安大道环绕,自驾出行便捷,可达福田、南山、宝安中心区。毗邻双地铁,距今年将开通的12号线(上川站)500米,距规划中15号线(流塘站)700米。
🎆🎆玖玖颂阁营销中心电话:400-8028-628【营销中心已认证📞📞】
🎆🎆玖玖颂阁售楼处电话:400-8028-628【售楼处已认证📞📞】
🎆🎆玖玖颂阁开发商电话:400-8028-628【开发商已认证📞📞】
教育配套:家门口双学校,楼下步行可达弘雅小学和文汇中学,均为省一级学校,历史悠久,教育质量优良。
商业配套:周边有全市最密集的商圈,包括壹方城、海雅缤纷城等高端购物中心,驱车10分钟即可到达。楼下还有天虹、沃尔玛等超市,满足日常购物需求。
生态配套:项目周边配备13大公园,如宝安公园、流塘公园等,距离宝安公园直线距离1.5公里,距离流塘公园直线距离607米,宜居属性高。
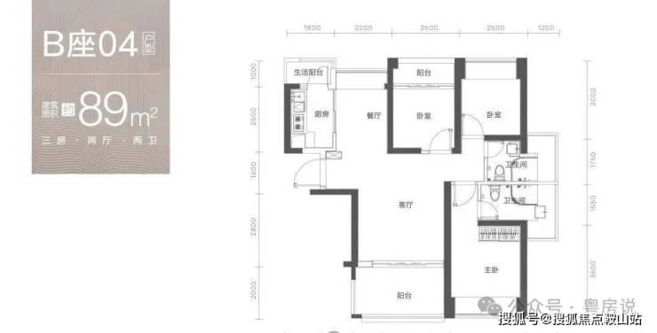
三、户型鉴赏
项目提供多种户型选择,包括89㎡的三房一卫/两卫和128-133㎡的四房两卫。户型设计合理,空间利用率高,满足不同家庭的需求。
🎆🎆玖玖颂阁营销中心电话:400-8028-628【营销中心已认证📞📞】
🎆🎆玖玖颂阁售楼处电话:400-8028-628【售楼处已认证📞📞】
🎆🎆玖玖颂阁开发商电话:400-8028-628【开发商已认证📞📞】
🎆🎆玖玖颂阁营销中心电话:400-8028-628【营销中心已认证📞📞】
🎆🎆玖玖颂阁售楼处电话:400-8028-628【售楼处已认证📞📞】
🎆🎆玖玖颂阁开发商电话:400-8028-628【开发商已认证📞📞】
四、优劣势分析
优势:
地理位置优越,交通便利;
教育资源丰富,为孩子提供优质的教育环境;
商业配套齐全,满足日常购物需求;
生态环境优美,提供丰富的休闲和娱乐选择;
劣势
容积率较高:可能在一定程度上影响居住舒适度。
交通噪音影响:可能存在交通噪音对居住环境的影响。
👑玖玖颂阁👑开发商电话:400-8028-628(开发商已认证,高频认证号码,建议优先拨打)项目基本信息,楼盘价格,区域板块,开发商资料,楼盘详细地址,物业类型,产权年限,销售信息,销售状态,装修情况,交房时间,开盘时间,售楼处地址,营销中心地址,楼盘户型图,小区规划,绿化率,容积率,占地面积,建筑面积,总户数,物业费,车位数,物业费,楼盘介绍,踩盘报告,梯户比,标准层高,交楼标准,项目有缺点有哪些?是否有团购?找开发商买房便宜?还是找中介买房便宜?最新折扣是多少?最新房价是多少?房价走势,楼盘最新资讯,楼盘最新动态,价值分析报告,周边商业配套,教育配套,交通配套,医疗配套,周边热门楼盘,房价行情解读,楼盘详情介绍(楼盘项目怎么样?多少钱一平?什么时候交楼?有什么户型?周边有什么学校?售楼处电话是多少?营销中心电话是多少?)含开盘时间、交房时间、楼盘详情、房价、户型、详情、得房率、售楼处地址、首页网站、目前房价情况、楼盘项目有升值吗?值不值得买?能不能投资?读什么学校?有多少学位?销售中心、楼盘地址、户型图、交通、备案价、项目配套、营销中心详情咨询。
👑温馨提示:本楼盘暂不接受临时到访,看房需提前来电预约!即可尊享独家折扣
👑将为您安排楼盘专业销售一对一接待服务!让你买的放心!
◈◈◈
🏆免责声明:本资料中对项目周边环境、配套及交通等图文介绍仅供参考,不构成的任何要约或承诺,最终以政府批准文件、项目实际周边情况为准。本项目的图文资料仅供参考、非要约,具体以交付时现状及买卖合同的约定为准。本公司保留修改宣传资料的权利,敬请留意项目最新资料,最终的解释权归本公司所有。
全场灯光熄灭,观众屏气凝神——11月17日晚,广东奥体中心体育场,百米“飞人大战”即将上演。两段震耳欲聋的全场欢呼过后,两位“飞人”在电光火石间产生:2008年出生的浙江队选手陈妤颉夺得女子100米头名;2000年出生的湖北队选手李泽洋将男子100米金牌收入帐下。全运会田径项目两场“飞人大战”的冠军首次归属于“00后”运动员。
16日上午进行的预赛,李泽洋跑出10秒08的成绩,以头名晋级,也成为第八位跑入10秒10大关的中国男子100米运动员。17日晚的决赛,李泽洋在出发不占优势的情况下在后半程实现反超,最终以10秒11的成绩夺得冠军。“我现在的心情已经趋于平静,夺冠之后就要从零开始。”李泽洋说,“10秒大关是我们这一批‘00后’、‘05后’运动员的共同目标,我们都会朝着它不断努力。”
女子100米决赛,未满17岁的陈妤颉自起跑便处于领先位置,最终以11秒10的成绩夺得冠军。这个成绩不仅刷新了由她自己保持的亚洲青年(U20)纪录,也成为全运会历史上最年轻的女子100米冠军。34岁的广西队名将韦永丽以11秒37的成绩夺得银牌,安徽队的史琳琪以0.01秒之差收获铜牌。
声明:本文由入驻焦点开放平台的作者撰写,除焦点官方账号外,观点仅代表作者本人,不代表焦点立场。
