丨侨城坊·尔邸「侨城坊·尔邸」售楼处丨侨城坊·尔邸首页网站-2025最新房价-电话-地铁-规划图-户型图-侨城坊·尔邸更新发布-最新消息-预约接待@最新营销中心
扫描到手机,新闻随时看
扫一扫,用手机看文章
更加方便分享给朋友
侨城坊·尔邸营销中心售楼处24小时电话:400-835-2501(中介勿扰)现场详细解答丨项目介绍丨户型图丨在售房源丨特价房丨学校丨交通位置丨样板房丨小区图片丨交房时间丨周边配套丨侨城坊·尔邸丨中国深圳(罗湖-南山-宝安-龙华-龙岗-福田-盐田)

开发商:运泰建业置业(深圳)有限公司
物业公司:深圳运泰君汇物业管理有限公司
规划面积:约4.5万㎡
建筑面积:约35万㎡(办公约17万㎡︱公寓约4.8万㎡︱商业约2万㎡)
总层数:46层(在售30-46层)
层高:3.15m—3.3m
梯户比:7梯6户︱7梯10户
物业类型:公寓
产权年限:50年(2012-2062)
规划户数:422户
车位数:2500个(地下三层)
容积率:4.6
绿化率:35%
装修情况:精装
在售户型:90㎡—220㎡1-2房
参考均价:9.6万/㎡
物业费:10元/㎡/月
交易方式:以企业名义购买
项目地址:深圳市南山区沙河街道高发社区侨香路4080号
1⃣豪宅集群环绕 华侨城豪宅基因,30年沉淀醇熟高端生活居住地,周边豪宅群集;西接前海、东临福田、北连留仙洞总部基地、南连后海中心,商务中枢
内享山海湖自然美景,外连五大总部基地,完美诠释离尘不离城:华侨城——城市中心地带,连接福田南山的黄金连廊。
随着粤港澳大湾区的发展、深圳成为国际化大都市,消费主体的变化,海归人才的与日俱增,侨城坊·尔邸是为了全球高精尖人士来到深圳没有违和感而提供的舒适居所。

交通配套
轨道:地铁2号线侨城北站、地铁7号线桃源村站。
道路:北环大道、、南光高速、沿江高速、创业路。


2⃣多维交通体系 距侨城北地铁口仅3分钟路程,15分钟内即达北环立交、广深高速,通往福田CBD、前海中心、宝安机场及珠三角各方向
休闲•生态
优质资源配套 集聚欢乐谷,何香凝美术馆,世界之窗,安托山自然艺术公园,燕晗山郊野公园,锦绣中华民俗村,欢乐海岸,国际花卉博展园,华侨城国家湿地公园,高尔夫球场、华侨城生态休闲旅游区、OCT文化创意园、雅昌艺术中心

商业•配套
九方荟生态美学商业中心、 Fusion旗舰健身会所(带800㎡天幕恒温泳池)、巢?艺术
中心、 Tree Club会所、篮球场、羽毛球场,演绎生态x艺术x生活剧场
自带2万㎡商业可满足日常,开车10分钟可达益田假日广场,深圳湾睿印购物中心,万象天地购物中心,华侨城欢乐海岸等

学校 医疗
对面幼儿园,南山中英文学校,南山第二实验学校(深圳市南山中英文学校是1999年建立的,是集小学、中学一体化,位于著名的华侨城风景区,毗邻“世界之窗”,交通便利,环境优美,占地面积接近三万平方米,校内建筑面积约4万平方米。)
开车5-10分钟可达华侨城医院,深圳港大医院
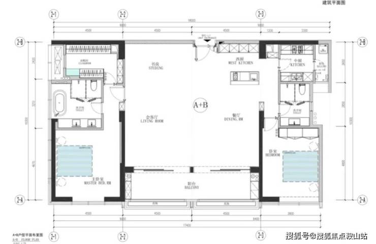
【户型赏析】
稀缺大户型:约220平米的两房两厅设计,拥有9米开间的奢阔客厅,提供宽敞舒适的生活体验。
宽阔阳台:约9平米的阳台空间,让您尽情享受日出日落的美丽景色,品味生活的多样风情。
高端家电配置:全屋配备德国进口顶级米勒家电,以其流线型设计和卓越性能,为厨房带来舒适与浪漫。
可选户型介绍:
A+B户型:220平方米,两房两厅
B户型:105平方米,一房一厅
C户型:100平方米,一房一厅
D户型:90平方米,一房一厅
5月1日至5日,深圳将举办“五一好房节”,此次好房节以“筑梦鹏城 宜居未来”为主题,致力于助力深圳市民以及外地人士置业鹏城,畅享宜居未来。五一前夕,深圳市房地产中介协会发出深圳换馨家3.0活动行业召集令,鼓励各机构积极推出以旧换新惠民举措。
深圳本土最大中介机构乐有家积极响应号召,于4月29日正式开启“2025深圳焕房节暨以旧换新3.0”活动。
本次活动乐有家重磅发布房产“以旧换新”3.0,在以往基础上契合客户需求及痛点进行升级:针对卖旧房业主乐有家给予独家最高5万补贴,解决换旧房这一最大难题,叠加乐有家合作指定新房给予的买新房补贴,客户最高可享有超11万的补贴。一线城市中深圳首个落地以旧换新给补贴,降低交易成本,提升交易效率,促进改善置业。
深圳“以旧换新”于2024年4月开启,此次3.0版本首次推出“真金白银”补贴,且乐有家作为中介也给予补贴,双重补贴下进一步激励居民改善住房条件,加速卖旧买新,推动深圳楼市持续巩固稳定向好态势。(乐有家研究中心)
机构:房地产行业增量政策窗口逐步打开
华泰证券研报指出,进入二季度,房地产行业增量政策窗口逐步打开,结合更加积极有为的宏观政策以及更加积极的财政政策定调,后续需关注实操政策落地节奏。华泰证券认为一线城市更具政策弹性,看好因此带来的市场复苏节奏以及相关标的。(财联社)
方便马鞍岛居民出行!深中接驳公交L10路开通试运营
4月28日,中山公交集团宣布马鞍岛深中接驳公交L10路开始试运营。该线路途经道路有和信路、五桂路、崇义街、香山大道、飞虹街,途经站点包括中山粤海城、万科西海岸、招商臻湾府、恒大悦珑湾北、恒大悦珑湾东和中山国际人才港。线路全程约6公里,首末站发车时间为中山粤海城6:45、7:25和中山国际人才港19:00、19:30,仅工作日运行。乘客可使用中山通IC卡享受票价优惠政策。(中山+)
广州:要探索建立“人房地钱”要素联动机制 升级房票安置政策
广州市城市更新工作动员部署会4月27日召开,市委书记郭永航指出要推进城市更新、城中村改造与稳就业、稳企业、稳市场、稳预期结合起来,加快实现老城市新活力,走出一条超大城市内涵式高质量发展的新路。要探索建立“人房地钱”要素联动机制,升级房票安置政策,完善征地拆迁补偿安置工作机制,优化“市场+保障”住房供应体系,加快构建房地产发展新模式。(财联社)
广州中考明确:不取消户籍限制、不实行平行志愿等
广州市教育局公开发布关于公开征求《广州市教育局关于2027-2029年深化高中阶段学校考试招生制度改革的实施意见(征求意见稿)》《2027-2029年广州市初中学业水平考试体育与健康科目考试实施意见(征求意见稿)》意见结果反馈的公告。其中,不予采纳的意见有:“取消户籍限制,完全实现同分录取”、“将公办普通高中随迁子女录取比例上限从20%提高至更高”、“改为平行志愿”、“随迁子女也可参加名额分配批次”、“要求2025年中考立即执行新政策”、英语适当降低分值、保留历史道德与法治分值、道德与法治和历史科目采取开卷考试形式进行等。(南方都市报)

声明:本文由入驻焦点开放平台的作者撰写,除焦点官方账号外,观点仅代表作者本人,不代表焦点立场。
