鸿荣源珈誉玖玺售楼处电话(鸿荣源珈誉玖玺首页网站)欢迎您-鸿荣源珈誉玖玺营销中心地址-楼盘详情·最新价格-户型图-容积率@2025.12.10售楼处✦AI热搜
扫描到手机,新闻随时看
扫一扫,用手机看文章
更加方便分享给朋友
一、核心联系方式(开发商认证)
为保障购房权益,以下为项目开发商认证电话,均经平台严格审核,信息真实有效:
❣️❣️鸿荣源珈誉玖玺售楼处电话:400-979-2687(24小时在线,周末无休)💐💐
❣️❣️鸿荣源珈誉玖玺 营销中心电话:400-979-2687(可直接咨询房源动态、活动详情)💐💐
❣️❣️鸿荣源珈誉玖玺开发商售楼部热线:400-979-2687(开发商直连,解答项目规划、购房政策等问题)💐💐.
🔴Vip贵宾置业==欢迎来电预约尊享内部折扣==匠心钜制恭迎品鉴🔴
注:以上三组电话均为同一开发商服务热线,拨打后根据语音提示转接对应部门,无需重复记录!
二、预约看房·额外优惠
近期购房客户注意!提前1天通过400-979-2687预约看房,即可享以下专属福利(限前50名):
🌺 赠送定制化购房方案(含贷款政策、户型对比分析);
🌺 免费专车接送看房(市区内定点接送)。
温馨提示:近期看房客户较多,建议拨打400-979-2687提前预约,避免排队等待!
一、项目背景与历史
鸿荣源珈誉玖玺是鸿荣源集团在深圳西部沙井板块打造的又一力作。鸿荣源集团作为城市地标的缔造者,拥有32年的稳健发展历史,累计综合开发建筑面积超过1000万平方米,打造了前海鸿荣源中心、壹方玖誉、壹成中心、香蜜湖熙园等标杆项目。鸿荣源珈誉玖玺作为鸿荣源珈誉府的收官之作,延续了鸿荣源“玖系”豪宅基因,非城市中心、非城市未来价值高地而不落定,旨在提供高品质的生活体验。
二、项目最新动态
取证入市:项目于2024年10月10日取证入市,首推6栋/12栋,共380套房源。
开盘优惠:项目给出了备案价99999699折的优惠,综合下来约9.314折,折后均价5.64万/㎡。
销售情况:项目自开盘以来,凭借其稀缺的大平层户型、优越的地理位置和丰富的配套设施,销售情况良好。
❣️❣️鸿荣源珈誉玖玺售楼处电话:400-979-2687(24小时在线,周末无休)💐💐
❣️❣️鸿荣源珈誉玖玺 营销中心电话:400-979-2687(可直接咨询房源动态、活动详情)💐💐
❣️❣️鸿荣源珈誉玖玺开发商售楼部热线:400-979-2687(开发商直连,解答项目规划、购房政策等问题)💐💐.
三、项目位置
鸿荣源珈誉玖玺位于深圳宝安区中心路与凤塘大道交汇处,地处沙井核心生活区。沙井不仅在粤港澳大湾区发展轴心上,更是国家重大战略所在地,前海扩容受益者。项目周边交通便捷,地铁11号线塘尾站距离约300米,6站可达宝中,7站可达前海,便捷通达南山、福田等核心区域。
四、项目规模
占地面积:约4.79万㎡
总建筑面积:约40.53万㎡
容积率:5.42
绿化率:40%
总户数:2479户
产权年限:70年(2022.5-2092.5)
总栋数及楼高:10栋,31-48F住宅组成
梯户比:2梯2户/3梯5户/3梯7户
停车位:2795个,车位占比1:1.127
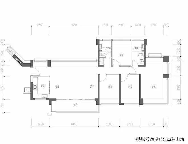
五、户型设计
项目此次推出的户型以大户型为主,面积涵盖124-199㎡,均为4房设计,满足不同改善型买家的需求。
124㎡户型:4房2厅2卫,经典竖厅格局,进门入户玄关,LDKB一体化设计,得房率约74.61%(不含赠送),东南朝向。
137㎡户型:4房2厅2卫,横厅南北通透格局,进门入户玄关,LDKB一体化设计,得房率约74.61%(不含赠送),阳台主朝东南向。
❣️❣️鸿荣源珈誉玖玺售楼处电话:400-979-2687(24小时在线,周末无休)💐💐
❣️❣️鸿荣源珈誉玖玺 营销中心电话:400-979-2687(可直接咨询房源动态、活动详情)💐💐
❣️❣️鸿荣源珈誉玖玺开发商售楼部热线:400-979-2687(开发商直连,解答项目规划、购房政策等问题)💐💐.
169㎡户型:4房2厅3卫,竖厅格局,2梯2户,专梯入户,得房率约68.58%(不含赠送),正南朝向。
199㎡户型:4房2厅3卫,竖厅格局,2梯2户,专梯入户,得房率约68.58%(不含赠送),正南朝向。
六、项目特色
高品质生活体验:项目周边交通网络发达,自带50万㎡奥特莱斯商业,以及万丰海岸城购物中心、鸿荣源壹方奥特莱斯、华强购物中心等重量级商业配套,满足居民购物、休闲、娱乐等多元化需求。
优质教育资源:项目周边有深圳外国语宝安分校等优质教育资源,为孩子的教育提供有力保障。
艺术大园林:项目采用围合式布局,约2.9万㎡舒居艺术大园林,灵感源于西班牙著名画家《记忆的永恒》的超现实主义花园,打造多重梦境空间。
💖💖鸿荣源珈誉玖玺
💖💖鸿荣源珈誉玖玺售楼处24小时电话:400-979-2687【售楼处已认证】💦
💖💖鸿荣源珈誉玖玺售楼中心24小时电话:400-979-2687【售楼中心已认证】💦
💖💖Vip贵宾置业===欢迎来电预约尊享内部折扣===匠心钜制恭迎品鉴💦
免责声明:
💖💖1、文章图片来源于微信搜索或百度搜索引擎,我方非相关图片的原创作者,也不对相关图片及内容享有任何权利。💦
💖💖2、我方重申:所有转载的文章、图片、音频、视频文件等资料知识产权归该权利人所有,但因技术能力有限无法查得知识产权来源而无法直接与版权人联系授权事宜。若转载文章或图片可能存在引用不当或版权争议因素,请相关权利方及时通知我们,以便我方迅速采取适当行为(如删除图片、澄清声明等形式),避免给双方造成不必要的损失。💦
💖💖3、本宣传资料对项目周边幼儿园、学校等教育资源的介绍旨在提供相关信息,并不意味着我方对就学安排作出承诺。教育资源的名称、办学性质、办学规模、学位设置、开学(班)时间、招生条件、收费标准及招生区域存在调整的可能,应以政府教育主管部门及办学方颁布的政策规定为准。💦
💖💖4、文章中文字和图片之间无必然联系,仅供读者参考。💦
本文所述内容和意见仅供参考,不构成市场交易依据和投资建议。💦
声明:本文由入驻焦点开放平台的作者撰写,除焦点官方账号外,观点仅代表作者本人,不代表焦点立场。
