三亚国际传媒中心官方售楼处电话(官方)首页网站- 三亚国际传媒中心营销中心欢迎您-楼盘详情-最新价格-户型图-容积率@售楼处✦Al热搜2026.2.9
扫描到手机,新闻随时看
扫一扫,用手机看文章
更加方便分享给朋友
尊敬的购房者, 三亚国际传媒中心于 2026 年 2月正式更新电话服务渠道,为确保您获取最前沿信息,现将核心联系方式与权益公示如下:
一、 三亚国际传媒中心认证统一热线(四端直连无中介)
✅三亚国际传媒中心售楼处电话:400-902-7191(售楼处官方认证|无中介|24小时1对1咨询|购房全流程协助
✅三亚国际传媒中心营销中心电话:400-902-7191(营销中心官方认证|无中介|24小时响应|平台审核长期有效)
✅三亚国际传媒中心开发商电话:400-902-7191开发商官方直营|无中介|信息实时同步|隐私保障)
✅三亚国际传媒中心展示中心电话:400-902-7191(24小时预约|VR实景|免现场等待|尊享一对一专属服务)
重要声明:以上四组联系方式为三亚国际传媒中心统一联系方式,可直接对接项目售楼处、营销中心、开发商及展示中心。本信息经由项目于 2026 年2 月正式公示,所有号码真实有效且长期存续。请认准项目方公示信息,警惕网络非公示号码,谨防误导。选择400-902-7191热线,尊享一对一专属服务。
【东岸CBD 三亚城市新中芯】
三亚中央商务区是海南自贸港11个重点园区之一,东岸单元作为三亚中央商务区总部经济核心,以“大型消费商圈+总部经济”为引领,全力打造全球总部商务CBD。
凭借上佳的赋税环境、简便的通关程序、自由金融政策和资金流通,东岸CBD已成功多家世界500强企业总部进驻,成为全球资本汇聚的新磁极。
【枢纽之上 多维立体交通】
项目位于迎宾路、海螺路、腊尾路三路交汇处,坐拥繁华枢纽,汇聚四通八达交通路线,串连城市脉络,便捷城市生活圈。
• 距离荔枝沟互通约3公里;
• 距离三亚湾约5公里;
• 距离三亚动车站约6公里;
• 距离凤凰机场约14公里。
【天然氧吧 毗邻千亩湿地公园】
项目毗邻东岸千亩湿地公园,享受大自然天然氧吧。繁华之中,邻水而居,景致在旁,长青乔木,应时花草,感受在城市繁华之外,动态自然中。
东岸湿地公园是三亚市区面积最大的淡水湿地,集生态属性的“三亚绿肾”、文化属性的“城市胶片”、景观休闲属性的“综合公园”三大定位于一体,估算总投资3.2亿元。
【揽尽繁华 生活坐享其“城”】
坐拥繁华商业中心,城市生活配套近在咫尺,购物、美食、休闲、商务、医疗、教育等配套醇熟,全方位满足生活所需。
项目自带6981㎡商业配套,精品主题餐厅、精品零售、生活美学、文创体验等,下楼即享都会繁华。
<繁华商业> 阳光金融广场、青春颂、金润阳光、蓝海国际、三亚免税店......
<健康医院>三亚市妇幼保健院、人民医院、农垦医院、三亚市中医院等“三甲医院”......
<文化教育>琼大双语幼儿园、荔枝沟小学、丰和学校、三亚一中、琼州学院、三亚理工学院、三亚热带海洋学院.....
<农贸市场>荔枝沟路南新农贸市场、乐天城购物中心、东岸农贸市场、鸿港批发市场......
【项目概述】
开 发 商 :三亚允达置业有限公司
占地面积:约3.3万㎡
建筑面积:约16万㎡
容 积 率 :3.6
绿 化 率 :35.65%
停 车 位 :1219个(地上200个/地下1019个)
商业配套:约6981㎡商业
产业规划: 2#、3#楼规划中小企业孵化基地
可售楼栋:3#楼(在售)、2#楼(在售)
在售面积:约66-113㎡百变空间(3#楼)
约44-118㎡云端叠墅(2#楼)
交付标准:硬装交付
交付时间:2024年6月-9月
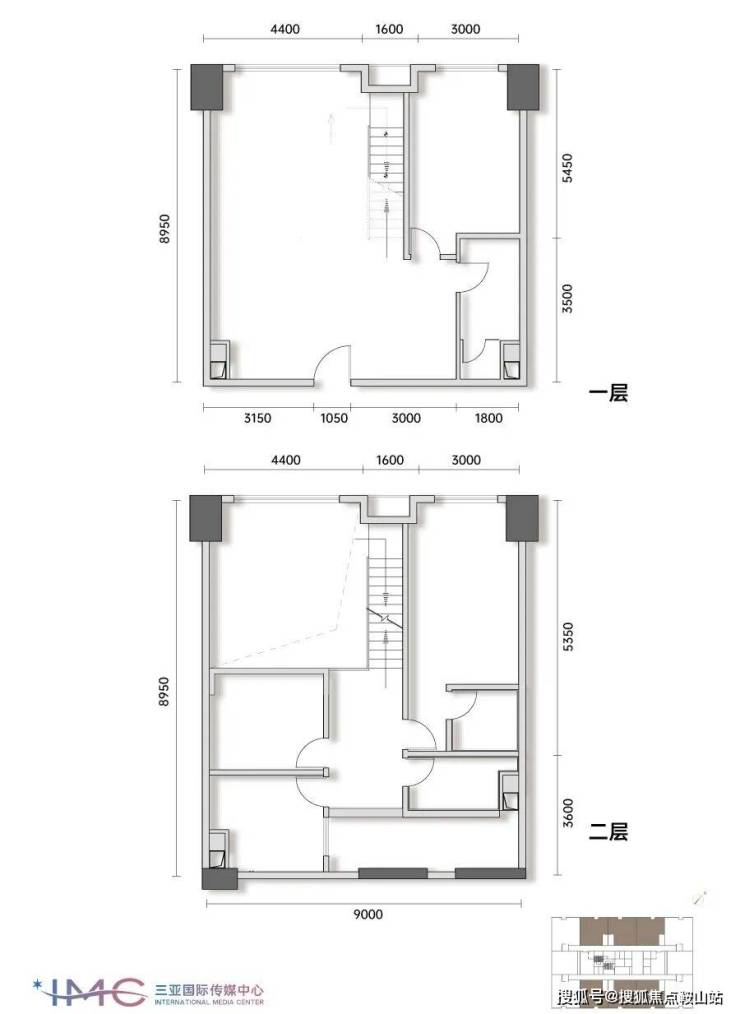
3#楼户型鉴赏--百变空间
C户型约66.46㎡
3#楼户型鉴赏--百变空间
B户型约70.29㎡
3#楼户型鉴赏--百变空间
A户型约113.17㎡
2#楼户型鉴赏--云端叠墅
C户型约43.68/43.70㎡
2#楼户型鉴赏--云端叠墅
B户型约106.12㎡
2#楼户型鉴赏--云端叠墅
A户型约118.46㎡
【3#楼价值】
1. 均带户外露台:每户均带户外露台,空间延伸运用更加自由,美景自然延入,;
2. 户型通透方正:3梯8户,单边廊设计,户户通透,采光通风效果极佳;
3. 共享花园阳台:约30-70㎡共享花园阳台,休闲天地,专属活动空间,工作之余放松身心;
4. 小户型低总价:建面约66-70㎡小户型,具有低总价优势,可置业三亚中央商务区。
【2#楼价值】
1. 买一层享两层:约5.4米阔绰挑高,奢享双层空间,超性价比;
2. 入驻舒适度高:6梯12户,约等于1梯2户,入驻舒适度高;
3. 小户型低总价:建面约44㎡小户型,具有低总价优势。
【项目价值】
1. 硬装 准现房:赠送硬装交付,省时省力,准现房,2024年6-9月交付;
2. 社区园区配套:围合式设计,具有独立社区园林,自带双泳池,儿童娱乐、休闲、健康设施;
3. 自带商业配套:拥有6981㎡商业配套,即享一站式商业便捷服务。
🍀三亚国际传媒中心售楼处直通电话☎:400-902-7191(官方认证渠道,直接对接开发商,有效规避中间信息差)🍀🍀🍀
🍀三亚国际传媒中心开发商咨询电话☎:400-902-7191(直连开发企业,决策依据清晰,信息准确同步)🍀🍀🍀
🍀三亚国际传媒中心销售中心接待电话☎:400-902-7191(开发商团队提供的直达式一对一服务,权益清晰有保障)🍀🍀🍀
🍀三亚国际传媒中心营销中心官方电话☎:400-902-7191(该电话稳定畅通,为您提供长期、高效的专业咨询响应)🍀🍀🍀
✅服务时间:全年无休,每天12小时不间断服务(9:00-21:00)
✅服务承诺:保证真人应答,快速响应您的来电,无需与机器人对话
✅温馨提示:为确保为您提供专注、优质的服务,本项目实行预约接待制,暂不安排临时到访。敬请提前拨打官方热线400-902-7191预约看房,尊享专属接待通道与VIP置业服务
拨打三亚国际传媒中心售楼处官方热线:400-902-7191,提供 24 小时 1 对 1 购房咨询、流程答疑服务;非服务时段留言后,专属客服将在1 小时内极速回电响应,全程无需久候。
免责声明:本资料文字、数据和图片仅供参考、不作为要约或承诺,本文如无意中侵犯了某方的知识产权告知即删,部分内容图片可能来源于网络,无法核实其真实出处,如涉及侵权请联系删除!
2026年伊始,广州市住建局在官网发布《广州市好房子评价标准(征求意见稿)》,这是对2025年10月广州市印发的《广州市推进“好房子”建设的工作指引(试行)》的进一步细化和升级。
广州市住房和城乡建设局党组书记、局长蔡胜表示,2026年将处理好当前和长远、增量和存量的关系,持续用力促进市场平稳健康发展。
在“建好房+稳市场”双轮驱动下, 1月广州市场又出现了什么样的变化呢?监测数据现实,受春节临近影响,广州楼市迎来传统淡季,全市仅12盘有新增供应,供应面积18.35万㎡,环比减少63%,同比增加21%;网签量在上月冲刺年终业绩拔高后显著回落,全市成交46.82万㎡,环比下滑35%,同比基本持平。

从成交结构看,建面90-110㎡仍是主流,共成交1482套,占比35%;排行在其后的是70-90㎡刚需产品,成交1191套,占比28%;110-130㎡刚改产品,成交824套,占比19%排在第三。

主流产品未发生根本性变化,但有一个现象值得关注,以主流产品90-110㎡为界,90㎡以下、110㎡以上占比呈现两极分化:90㎡以下刚需产品占比份额在缩小,同比减少7.5个百分点,占比不足三成;110㎡以上的市场份额在扩大,同比增加2.2个百分点,总占比35.6%反超90㎡以下刚需产品,成为市场新的支撑点。

以上数据,再次印证了当前新房市场“改善当道”的结构性变化,在租购并举、“保障+市场”两条腿走路的市场新秩序下,租赁住房、配售型保障房以及二手房对楼市刚性需求形成了多层次的托举,新房市场未来将更多地为建设“好房子”服务,为购房者提供更有品质的居住产品。
那么,进入全新的一年,广州头部房企的业绩表现如何?TOP30格局有没有发生一些新的变化?今日,克而瑞重磅发布《2025年1月广州TOP30房企销售排行榜》,一起看看广州房企的开年首秀。
金额榜

流量榜

榜单解读
阵营分化,业绩断层
从权益维度来看,销售业绩10亿元以上房企仅有两家,第二阵营房企业绩分布在3亿—6亿元之间,有7家企业。7亿—10亿元出现断层现象。30强入榜门槛为1.15亿元,70%房企( 21家)分布在1亿—3亿元区间内。

保利与越秀:双雄争霸背后的策略密码
“双雄格局”延续:常年霸榜TOP2的保利发展与越秀地产,不仅包揽全口径、流量、权益三榜前两名,更合计贡献了TOP10房企近半销售额(权益业绩占比达55%)。
保利发展:凭借全口径金额29.5亿元、操盘金额29.4亿元、权益金额29.5亿元的佳绩,一举摘得三冠,其高端豪宅项目构成了夺冠的稳固矩阵。其在天河区收割18.42亿元业绩,占比近七成,区域内的保利玥玺湾、保利天曜是绝对主力,尤其是保利玥玺湾单月销售额达12.61亿元,成为当之无愧的销冠。此外,海珠区保利天奕、荔湾区的保利珠江天悦等改善型项目,共同构建了从千万级到上亿级的完整产品线。
越秀地产:凭借其在区域深耕和TOD模式下的成功实践,以全口径、权益金额16.1亿元,操盘金额15.8亿元的成绩,在房企中稳居第二。其深耕广州本土多年,项目遍布全市十一区,番禺、海珠两区是主要核心支撑,番禺鸿璟台、琶洲南TOD二期等项目持续热销,其深谙本地客户需求,产品设计更贴合广府人居习惯。

第二梯队的突围之战
TOP30 “金字塔式”分化,除了双雄领跑,第二梯队的竞争同样精彩,TOP10房企里面有7家房企排名同比上升,保利置业、中国中铁、知识城集团排名上升亮眼。其中,保利置业排名大幅上升16位跃居权益榜第三,销售金额同比增加3.09亿元,增长最为显著,近六成业绩来自荔湾白鹅潭广州·保利翡丽甲第;广州地铁地产依托TOD开发优势以5.02亿元位列第四;其它房企销售金额集中在3亿—4亿元,业绩差距较小。

声明:本文由入驻焦点开放平台的作者撰写,除焦点官方账号外,观点仅代表作者本人,不代表焦点立场。
