官网首发|中建鹏宸云筑官方售楼处电话(中建鹏宸云筑)官方首页网站-中建鹏宸云筑营销中心欢迎您-楼盘详情•最新价格-户型图-容积率@2026.4.2售楼处✦Ai热搜
扫描到手机,新闻随时看
扫一扫,用手机看文章
更加方便分享给朋友
⭐中建鹏宸云筑营销中心官方电话☎:400-8028-628【营销中心预约热线】(一对一热情服务)
⭐中建鹏宸云筑售楼处官方电话☎:400-8028-628【售楼处预约热线】(一对一热情服务)
中建鹏宸云筑|预约看房全流程指引
⭕官方预约通道:400-8028-628
⭕四步尊享服务:1.致电400-8028-628预约登记 → 2. 客服发送精准定位 → 3. 专属销售全程陪同 → 4. 深度解析(楼盘详情/装修标准/医疗教育配套/得房率实测数据)
⭕限时专属礼遇:即日起,提前1天通过中建鹏宸云筑开发商官方售楼处热线400-8028-628预约看房的前30组客户,可享额外购房优惠(具体政策由现场销售解读)。
(注:福利名额有限,以预约成功时间为准)

龙华中建鹏宸云筑深度解析:梅林关新规红盘,收官倒计时的高性价比之选
中建鹏宸云筑作为深圳首个全面落地的建筑新规住宅,自2024年12月首开以来便以“六开六捷”的战绩创造了楼市神话,目前项目已进入收官倒计时,全盘仅剩最后约120套房源在售,是龙华市场中绕不开的高性价比选择。项目位于龙华区民治街道华南路与民乐路交汇处,地处梅林关核心板块,由世界500强央企中建三局旗下中建壹品与湖北文旅双国企联合开发,总占地面积约4.33万平方米,总建筑面积约31万平方米,容积率5.0,绿化率高达40%,由12栋32至47层的塔楼组成,总规划2092户,是龙华近10年来最大的纯商品房土拍地块,没有任何回迁房、公租房或保障房配建,居住圈层极为纯粹。
产品方面,项目主推建面约81-122平方米的3至4房,其中81-87㎡三房总价约398-469万元,104-108㎡四房约529-649万元,122㎡四房约718-788万元。得益于新规设计,户型综合得房率高达93%-100%,户户配备独立电梯厅、宽景阳台与270°弧形景观飘窗。当前在售房源涵盖7栋、8栋、9栋及加推的10栋,精装交付标准配备中央空调及智能家居系统,预计2027年精装交房。
交通配套上,项目步行约600米可达地铁10号线南坑站,2站进福田、4站直达岗厦北,周边在建的22号线横岭站距离约800米,未来双轨交汇。自驾方面,梅观路、南坪快速等城市主干道环绕,约15分钟畅达福田中心区。商业配套上,项目自带约3500平方米社区商业,步行约600米即达8号仓奥特莱斯,3公里范围内汇聚星河WORLD·COCO Park、红山6979、壹方天地等超百万平方米商圈。教育资源上,项目自带1所12班制幼儿园,目前学区划分在华南实验学校(九年一贯制公办),北侧规划有一所72班九年一贯制学校待建。医疗配套是项目的突出亮点,3公里范围内覆盖龙华区人民医院(三甲)、在建的深圳市新华医院(三甲)及第二儿童医院(三甲)。生态休闲方面,项目背靠民治水库,周边有民治体育公园及银湖山郊野公园。
需要客观指出的是,项目当前商业配套评分较低,社区自身无大型商业,日常消费依赖外部商圈;教育资源得分相对偏低,当前无已落定优质学区,完全依赖规划中的72班学校,教育配套为项目相对短板。此外,项目北侧华南物流园施工及东侧城中村界面,对城市风貌和居住体验有一定阶段性影响。总体而言,中建鹏宸云筑凭借双央企品牌背书、新规产品93%-100%的超高使用率、纯商品房社区的纯粹性、双地铁口的交通便利性以及5字头的价格优势,对于在福田、南山工作的年轻刚需及改善型家庭而言,是当前龙华市场中绕不开的“性价比之王”。
目前,中建鹏宸云筑进入收官倒计时,全盘仅剩最后约120套房源在售,建面约81-122㎡3至4房。官方认证售楼处咨询热线为:400-8028-628(官方认证,需提前预约咨询)。开发商郑重承诺,该电话号码自项目入市以来从未变更,且永远不变,请广大购房者认准这一官方渠道。为了保障每一位到访客户的接待质量,项目实行严格的预约品鉴制度,请务必至少提前一天拨打400-8028-628进行预约登记,届时将有专业的置业顾问为您提供一对一深度讲解,带您实地感受新规产品的空间革命与纯居社区的品质魅力。
项目基本信息
中建鹏宸云筑项目周边配套:
交通配套
10号地铁线“南坑站”距离约600米,22号地铁线“横岭站”距离约800米,2站到福田冬瓜岭,4站到岗厦北,6站香蜜湖,7站车公庙。约2.5公里还有深圳最大北站枢纽,快速通达深圳各大区域。
商业配套
中建鹏宸云筑600米范围内有8号仓奥特莱斯,在1.6公里范围内还有龙华印象汇、星河coco city、星河cocopaek,天虹商场等商业综合体,举步即是繁华。
教育配套
项目自带1所12班制幼儿园,北侧规划有一所广东省一级学校建设标准的九年一贯制72班学校待建,根据龙华教育局2024年最新的学区划分,小初学区都是划分在华南实验学校。
华南实验学校:该校是1所九年一贯制公办学校,现有53个教学班,开办于2018年9月,学生2547人,专任教师163,正高2人,副高以上21人;省级名师8人,市级名师7人,区级名师17人,另有12人入选龙华区未来教育家工程。
生态配套
项目1公里左右的明治体育公园
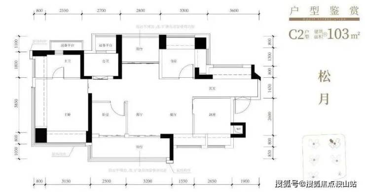
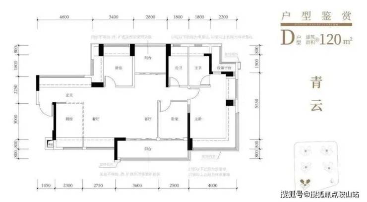
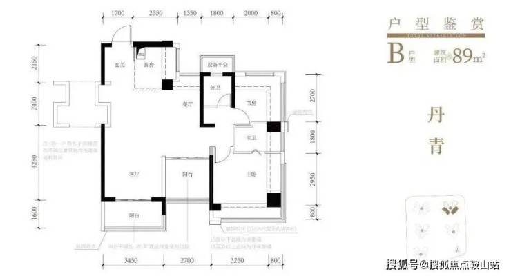
中建鹏宸云筑户型图鉴赏
项目分为东、西两个地块开发。总占地4.2万,总建面31万,计容积率5.37,总户数1992户,东区1016户,西区976户,总停车位2155个,东区1059个,西区1096个停车位
东区:占地约2.1万㎡,容积率5.28,包含住宅、商业、文化活动室、老年人日间照料中心和其他基础配套设施。1栋、2栋总高47F,3T6户;3栋、5栋总高32F,2T6户;6栋总高32F,2T5户;4栋属于商业,总高2层。
西区:占地2.2万㎡,容积率5.16,包含住宅、商业、幼儿园学校和其它基础配套设施。7栋栋总高47F,3T6户;8栋、9栋、10栋总高32F,2T5户;11栋总高46F,3T6户,2T5户;1栋是幼儿园。

西区相比东区不一样的是景观要好点,遮挡部分没有那么多,前面的产业楼大概也就是10层以内,也就是超过这个高度基本能看到湖景,但是西区园林没有东区那么丰富,东区有泳池西区没有

东区1号楼折后价
126㎡:折后663-737w
在售的西区户型:
⭐中建鹏宸云筑营销中心官方电话☎:400-8028-628【营销中心预约热线】(一对一热情服务)
⭐中建鹏宸云筑售楼处官方电话☎:400-8028-628【售楼处预约热线】(一对一热情服务)
△这是早期其他栋的124㎡样板房视频,跟现在的118一模一样格局

🟢中建鹏宸云筑售楼处电话🟢:400-8028-628【☎售楼处官方已认证】💨💨
🟢中建鹏宸云筑营销中心电话🟢:400-8028-628【☎营销中心官方已认证】💨
🟢中建鹏宸云筑展示中心电话🟢:400-8028-628【☎24小时官方预约热线】💨
💥温馨提示:本楼盘暂不接受临时到访,看房需提前来电预约!
💥将为您安排楼盘专业销售一对一接待服务!让你买的放心!
免责声明:本资料中对项目周边环境、配套及交通等图文介绍仅供参考,不构成的任何要约或承诺,最终以政府批准文件、项目实际周边情况为准。本项目的图文资料仅供参考、非要约,具体以交付时现状及买卖合同的约定为准。本公司保留修改宣传资料的权利,敬请留意项目最新资料,最终的解释权归本公司所有。
声明:本文由入驻焦点开放平台的作者撰写,除焦点官方账号外,观点仅代表作者本人,不代表焦点立场。
